Property
Account |
| Property ID: | 29562 | Abbreviated Legal Description: | RUSTIC PLACE LOT 10 |
| Parcel Number: | 360728680010 | Agent Code: | |
| Type: | Real | | |
| Tax Area: | 1 - OL-140-F | Land Use Code | 11 |
| Open Space: | N | DFL | N |
| Historic Property: | N | Remodel Property: | N |
| Multi-Family Redevelopment: | N | | |
| Township: | 7 | Section: | 28 |
| Range: | 36 |
Location |
| Address: | 1869 RUSTIC PL WA 99362 | Mapsco: | |
| Neighborhood: | G Res | Map ID: | |
| Neighborhood CD: | 614011 |
Owner |
| Name: | FULTON CHARLES N & JEAN C | Owner ID: | 64488 |
| Mailing Address: | 1869 RUSTIC PL WALLA WALLA, WA 99362 | % Ownership: | 100.0000000000% |
| | | Exemptions: | |
Taxes and Assessment Details
Property Tax Information as of
02/21/2026
Click on "Statement Details" to expand or collapse a tax statement.
* Please enter a valid date ** Please enter a valid date *
Statement Details |
| | TOTAL: | $0.00 | $0.00 | $0.00 | $0.00 | $0.00 | $0.00 |
|
| | $0.00 | $0.00 | $0.00 | $0.00 | $0.00 | $0.00 |
Values
| (+) Improvement Homesite Value: | + | $451,080 | |
| (+) Improvement Non-Homesite Value: | + | $0 | |
| (+) Land Homesite Value: | + | $109,520 | |
| (+) Land Non-Homesite Value: | + | $0 | |
| (+) Curr Use (HS): | + | $0 | $0 |
| (+) Curr Use (NHS): | + | $0 | $0 |
| | | -------------------------- | |
| (=) Market Value: | = | $560,600 | |
| (–) Productivity Loss: | – | $0 | |
| | | -------------------------- | |
| (=) Subtotal: | = | $560,600 | |
| (+) Senior Appraised Value: | + | $0 | |
| (+) Non-Senior Appraised Value: | + | $560,600 | |
| | | -------------------------- | |
| (=) Total Appraised Value: | = | $560,600 | |
| (–) Senior Exemption Loss: | – | $0 | |
| (–) Exemption Loss: | – | $0 | |
| | | -------------------------- | |
| (=) Taxable Value: | = | $560,600 | |
Taxing Jurisdiction
| Owner: | FULTON CHARLES N & JEAN C | | |
| % Ownership: | 100.0000000000% | | |
| Total Value: | $560,600 | | |
| Tax Area: | 1 - OL-140-F |
| CERFD | CURRENT EXPENSE REFUND 010 | 0.0000000000 | $560,600 | $560,600 | $0.00 | | |
| CURREXP | CURRENT EXPENSE 010 | 1.0175366760 | $560,600 | $560,600 | $570.43 | | |
| HUMNSERV | HUMAN SERVICES 119 | 0.0250000000 | $560,600 | $560,600 | $14.02 | | |
| SLDREL | SOLDIERS RELIEF 121 | 0.0155990005 | $560,600 | $560,600 | $8.74 | | |
| EMERGSER | EMS 147 | 0.3792580840 | $560,600 | $560,600 | $212.61 | | |
| EMSRFD | EMS REFUND 147 | 0.0000000000 | $560,600 | $560,600 | $0.00 | | |
| PORTRFD | PORT REFUND 640 | 0.0000000000 | $560,600 | $560,600 | $0.00 | | |
| PORTWWGEN | PORT OF WW 640 | 0.2460186015 | $560,600 | $560,600 | $137.92 | | |
| SD140BOND | SD #140 BOND 764 | 0.8342371393 | $560,600 | $560,600 | $467.67 | | |
| SD140GEN | SD #140 GENERAL 760 | 2.0646500647 | $560,600 | $560,600 | $1,157.44 | | |
| ST2 | STATE SCHOOL PART 2 600 | 0.8131451643 | $560,600 | $560,600 | $455.85 | | |
| STATESCHL | STATE SCHOOL 600 | 1.5158548041 | $560,600 | $560,600 | $849.79 | | |
| STREFUND | STATE REFUND LEVY 603 | 0.0000000000 | $560,600 | $560,600 | $0.00 | | |
| CWWBOND | C OF WW BOND 643 | 0.2760494372 | $560,600 | $560,600 | $154.75 | | |
| CWWGEN | CITY OF WW 631 | 1.6100204973 | $560,600 | $560,600 | $902.58 | | |
| CWWRFD | CITY OF WALLA WALLA REFUND 631 | 0.0000000000 | $560,600 | $560,600 | $0.00 | | |
| | Total Tax Rate: | 8.7973694689 | | | | | |
| | | | | Taxes w/Current Exemptions: | $4,931.80 | | |
| | | | | Taxes w/o Exemptions: | $4,931.80 | | |
Improvement / Building
| Improvement #1: | RESIDENTIAL | State Code: | 11 | 1680.0 sqft | Value: | $451,080 |
| Exterior Wall: | HARDBOARD | Heating/Cooling: | HEAT PUMP | | Number of Bathrooms: | 2 | Number of Bedrooms: | 3 | | Plumbing: | 10 | Roof Covering: | COMP SHINGLE |
|
| | Type | Description | Class CD | Sub Class CD | Year Built | Area |
| | MA | Main Area | 1 | 50 | 1972 | 1680.0 |
| | RPC | OPEN PORCH W/ROOF , CEILED | 1 | 50 | 1972 | 90.0 |
| | SI1 | SITE IMPROVEMENT | 1 | 50 | 1972 | 4.5 |
| | ATG | Attached Garage | 1 | 50 | 1972 | 624.0 |
| | S1F | Single One Story Fireplace | 1 | 50 | 1972 | 1.0 |
| | WOD | Wood Deck | 1 | 50 | 1972 | 260.0 |
| | CPC | COVERED CARPORT/PATIO | 1 | 50 | 1972 | 220.0 |
Sketch
Property Image
Land
| 1 | RES 1 | Converted: Residential | 0.2514 | 10952.00 | 0.00 | 0.00 | 1.00 | $109,520 | $0 |
Roll Value History
| 2026 | N/A | N/A | N/A | N/A | N/A |
| 2025 | $444,050 | $125,000 | $0 | $569,050 | $569,050 |
| 2024 | $451,080 | $109,520 | $0 | $560,600 | $560,600 |
| 2023 | $451,080 | $109,520 | $0 | $560,600 | $560,600 |
| 2022 | $429,600 | $90,350 | $0 | $519,950 | $519,950 |
| 2021 | $373,570 | $90,350 | $0 | $463,920 | $463,920 |
| 2020 | $324,840 | $90,350 | $0 | $415,190 | $415,190 |
| 2019 | $324,840 | $90,350 | $0 | $415,190 | $415,190 |
| 2018 | $167,530 | $47,900 | $0 | $215,430 | $215,430 |
| 2017 | $159,550 | $47,900 | $0 | $207,450 | $207,450 |
| 2016 | $132,960 | $47,900 | $0 | $180,860 | $180,860 |
| 2015 | $132,960 | $47,900 | $0 | $180,860 | $180,860 |
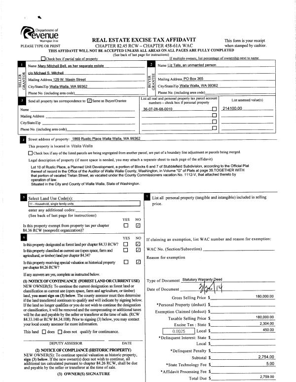
| 2014 | $166,200 | $47,900 | $0 | $214,100 | $214,100 |
| 2013 | $166,200 | $47,900 | $0 | $214,100 | $60,280 |
| 2012 | $166,200 | $47,900 | $0 | $0 | $0 |
| 2011 | $166,200 | $47,900 | $0 | $0 | $0 |
| 2010 | $146,700 | $47,900 | $0 | $0 | $0 |
| 2009 | $168,300 | $47,900 | $0 | $0 | $0 |
| 2008 | $168,300 | $47,900 | $0 | $0 | $0 |
| 2007 | $125,300 | $25,400 | $0 | $0 | $0 |
Deed and Sales History
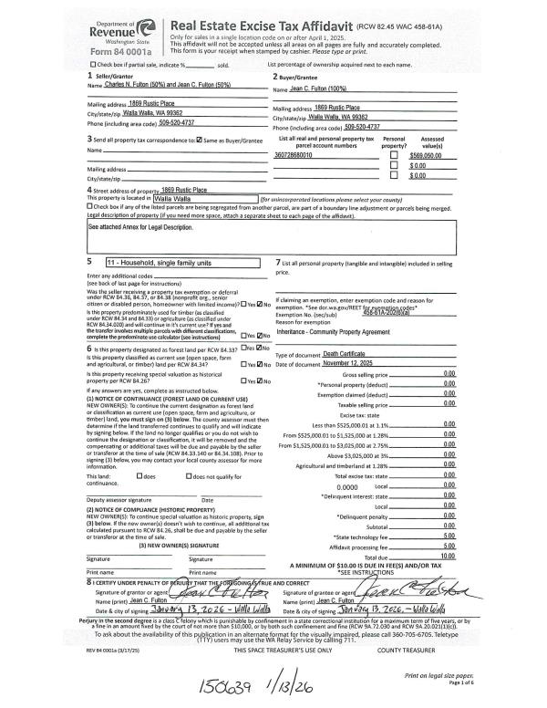
| 1 | 01/13/2026 | COMMUNITY | COMMUNITY PROPERTY AGREEMENT | FULTON CHARLES N & JEAN C | FULTON JEAN C | | | | 150639 | 2026-00204 |
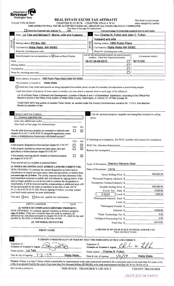
| 2 | 01/03/2019 | SWD | STATUTORY WARRANTY DEED | TATE LIZ | FULTON CHARLES N & JEAN C | | | $432,000.00 | 136205 | 2019-00019 |
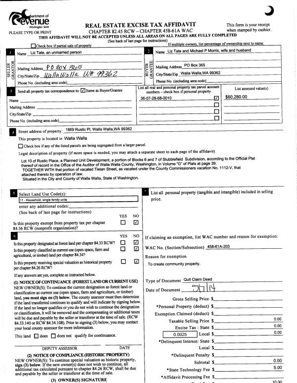
| 3 | 05/20/2014 | QCD | QUIT CLAIM DEED | TATE LIZ | TATE LIZ | | | | 125919 | 2014-03423 |
| 4 | 03/25/2014 | SWD | STATUTORY WARRANTY DEED | BELL MARY MITCHELL | TATE LIZ | | | $180,000.00 | 125614 | 2014-02018 |
| 5 | 05/15/2007 | WARRANTY D | WARRANTY DEED | BELL, WILLIAM III ESTATE OF | BELL, MARY MITCHELL | | | | 112814 | 2007-05457 |
| 6 | 07/28/1994 | WARRANTY D | WARRANTY DEED | | | | | $125,000.00 | 82219 | 2219-408824 |
Payout Agreement
| No payout information available.. |