Property
Account |
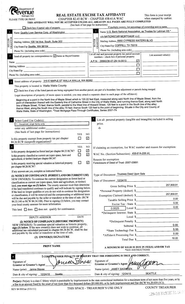
| Property ID: | 29560 | Abbreviated Legal Description: | 29-7-36 TAX 105 |
| Parcel Number: | 360729140013 | Agent Code: | |
| Type: | Real | | |
| Tax Area: | 1 - OL-140-F | Land Use Code | 11 |
| Open Space: | N | DFL | N |
| Historic Property: | N | Remodel Property: | N |
| Multi-Family Redevelopment: | N | | |
| Township: | 7 | Section: | 29 |
| Range: | 36 |
Location |
| Address: | 315 E MAPLE ST WALLA WALLA, WA 99362 | Mapsco: | |
| Neighborhood: | G Res | Map ID: | |
| Neighborhood CD: | 614011 |
Owner |
| Name: | GIFFORD JOHN & JANET | Owner ID: | 58484 |
| Mailing Address: | 3907 RIDGETOP ANACORTES, WA 98221 | % Ownership: | 100.0000000000% |
| | | Exemptions: | |
Taxes and Assessment Details
Property Tax Information as of
04/19/2026
Click on "Statement Details" to expand or collapse a tax statement.
* Please enter a valid date ** Please enter a valid date *
Statement Details |
| | TOTAL: | $0.00 | $0.00 | $0.00 | $0.00 | $0.00 | $0.00 |
|
| | $0.00 | $0.00 | $0.00 | $0.00 | $0.00 | $0.00 |
Values
| (+) Improvement Homesite Value: | + | $409,690 | |
| (+) Improvement Non-Homesite Value: | + | $0 | |
| (+) Land Homesite Value: | + | $84,000 | |
| (+) Land Non-Homesite Value: | + | $0 | |
| (+) Curr Use (HS): | + | $0 | $0 |
| (+) Curr Use (NHS): | + | $0 | $0 |
| | | -------------------------- | |
| (=) Market Value: | = | $493,690 | |
| (–) Productivity Loss: | – | $0 | |
| | | -------------------------- | |
| (=) Subtotal: | = | $493,690 | |
| (+) Senior Appraised Value: | + | $0 | |
| (+) Non-Senior Appraised Value: | + | $493,690 | |
| | | -------------------------- | |
| (=) Total Appraised Value: | = | $493,690 | |
| (–) Senior Exemption Loss: | – | $0 | |
| (–) Exemption Loss: | – | $0 | |
| | | -------------------------- | |
| (=) Taxable Value: | = | $493,690 | |
Taxing Jurisdiction
| Owner: | GIFFORD JOHN & JANET | | |
| % Ownership: | 100.0000000000% | | |
| Total Value: | $493,690 | | |
| Tax Area: | 1 - OL-140-F |
| CERFD | CURRENT EXPENSE REFUND 010 | 0.0000000000 | $493,690 | $493,690 | $0.00 | | |
| CURREXP | CURRENT EXPENSE 010 | 1.0175366760 | $493,690 | $493,690 | $502.35 | | |
| HUMNSERV | HUMAN SERVICES 119 | 0.0250000000 | $493,690 | $493,690 | $12.34 | | |
| SLDREL | SOLDIERS RELIEF 121 | 0.0155990005 | $493,690 | $493,690 | $7.70 | | |
| EMERGSER | EMS 147 | 0.3792580840 | $493,690 | $493,690 | $187.24 | | |
| EMSRFD | EMS REFUND 147 | 0.0000000000 | $493,690 | $493,690 | $0.00 | | |
| PORTRFD | PORT REFUND 640 | 0.0000000000 | $493,690 | $493,690 | $0.00 | | |
| PORTWWGEN | PORT OF WW 640 | 0.2460186015 | $493,690 | $493,690 | $121.46 | | |
| SD140BOND | SD #140 BOND 764 | 0.8342371393 | $493,690 | $493,690 | $411.85 | | |
| SD140GEN | SD #140 GENERAL 760 | 2.0646500647 | $493,690 | $493,690 | $1,019.30 | | |
| ST2 | STATE SCHOOL PART 2 600 | 0.8131451643 | $493,690 | $493,690 | $401.44 | | |
| STATESCHL | STATE SCHOOL 600 | 1.5158548041 | $493,690 | $493,690 | $748.36 | | |
| STREFUND | STATE REFUND LEVY 603 | 0.0000000000 | $493,690 | $493,690 | $0.00 | | |
| CWWBOND | C OF WW BOND 643 | 0.2760494372 | $493,690 | $493,690 | $136.28 | | |
| CWWGEN | CITY OF WW 631 | 1.6100204973 | $493,690 | $493,690 | $794.85 | | |
| CWWRFD | CITY OF WALLA WALLA REFUND 631 | 0.0000000000 | $493,690 | $493,690 | $0.00 | | |
| | Total Tax Rate: | 8.7973694689 | | | | | |
| | | | | Taxes w/Current Exemptions: | $4,343.17 | | |
| | | | | Taxes w/o Exemptions: | $4,343.17 | | |
Improvement / Building
| Improvement #1: | RESIDENTIAL | State Code: | 11 | 1330.0 sqft | Value: | $409,690 |
| Exterior Wall: | SIDING | Heating/Cooling: | HEAT PUMP | | Number of Bathrooms: | 2.5 | Number of Bedrooms: | 3 | | Plumbing: | 13 | Roof Covering: | COMP SHINGLE |
|
| | Type | Description | Class CD | Sub Class CD | Year Built | Area |
| | MA | Main Area | 1 | 35 | 1946 | 1330.0 |
| | SI1 | SITE IMPROVEMENT | 1 | 35 | 1946 | 2.0 |
| | BASE | BASEMENT | 1 | 35 | 1946 | 1330.0 |
| | BPF | BASEMENT -PARTITIONED FINISH | 1 | 35 | 1946 | 1330.0 |
| | S1F | Single One Story Fireplace | 1 | 35 | 1946 | 1.0 |
| | RPO | OPEN PORCH W/ROOF | 1 | 35 | 1946 | 240.0 |
| | DTG | Detached Garage | 1 | 35 | 1946 | 300.0 |
Sketch
Property Image
Land
| 1 | RES 1 | Converted: Residential | 0.1928 | 8400.00 | 0.00 | 0.00 | 1.00 | $84,000 | $0 |
Roll Value History
| 2026 | N/A | N/A | N/A | N/A | N/A |
| 2025 | $392,150 | $100,800 | $0 | $492,950 | $492,950 |
| 2024 | $409,690 | $84,000 | $0 | $493,690 | $493,690 |
| 2023 | $409,690 | $84,000 | $0 | $493,690 | $493,690 |
| 2022 | $341,410 | $69,300 | $0 | $410,710 | $410,710 |
| 2021 | $296,880 | $69,300 | $0 | $366,180 | $366,180 |
| 2020 | $237,500 | $69,300 | $0 | $306,800 | $306,800 |
| 2019 | $237,500 | $69,300 | $0 | $306,800 | $306,800 |
| 2018 | $226,090 | $45,800 | $0 | $271,890 | $271,890 |
| 2017 | $226,090 | $45,800 | $0 | $271,890 | $271,890 |
| 2016 | $187,110 | $45,800 | $0 | $232,910 | $232,910 |
| 2015 | $170,100 | $45,800 | $0 | $215,900 | $215,900 |
| 2014 | $170,100 | $45,800 | $0 | $215,900 | $215,900 |
| 2013 | $170,100 | $45,800 | $0 | $215,900 | $215,900 |
| 2012 | $196,300 | $45,800 | $0 | $242,100 | $158,400 |
| 2011 | $170,100 | $45,800 | $0 | $0 | $0 |
| 2010 | $159,800 | $45,800 | $0 | $0 | $0 |
| 2009 | $182,600 | $45,800 | $0 | $0 | $0 |
| 2008 | $182,600 | $45,800 | $0 | $0 | $0 |
| 2007 | $112,300 | $16,800 | $0 | $0 | $0 |
Deed and Sales History
| 1 | 04/08/2016 | BARGAIN & | BARGAIN & SALE DEED | US BANK NATIONAL ASSOCIATION | GIFFORD JOHN & JANET | | | $168,525.00 | 129981 | 2016-02561 |
| 2 | 12/31/2015 | TRUSTEES D | TRUSTEE'S DEED | WILLIAMS DAVID F & PATRICIA J | US BANK NATIONAL ASSOCIATION | | | $257,859.00 | 129438 | 2015-11186 |
| 3 | 04/02/2007 | WARRANTY D | WARRANTY DEED | RIEDIGER, BARRY | WILLIAMS, DAVID F & PATRICIA J | | | $229,000.00 | 112539 | 2007-03690 |
| 4 | 05/11/2005 | QCD | QUIT CLAIM DEED | HEALY, SUSAN | RIEDIGER, BARRY | | | | 107458 | 2005-05647 |
| 5 | 11/10/1997 | WARRANTY D | WARRANTY DEED | | | | | $123,000.00 | 89327 | 2599-711012 |
Payout Agreement
| No payout information available.. |