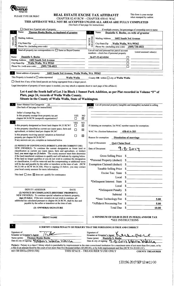
Property
Account |
| Property ID: | 29545 | Abbreviated Legal Description: | SUNSET PARK S1/2 OF LOT 3 BLK 1; LOT 4 BLK 1 |
| Parcel Number: | 360732620104 | Agent Code: | |
| Type: | Real | | |
| Tax Area: | 1 - OL-140-F | Land Use Code | 11 |
| Open Space: | N | DFL | N |
| Historic Property: | N | Remodel Property: | N |
| Multi-Family Redevelopment: | N | | |
| Township: | 7 | Section: | 32 |
| Range: | 36 |
Location |
| Address: | 1602 S 3RD AVE WA 99362 | Mapsco: | |
| Neighborhood: | A Res | Map ID: | |
| Neighborhood CD: | 613011 |
Owner |
| Name: | BEEBE DANIELLE S | Owner ID: | 61697 |
| Mailing Address: | 1321 BARLEEN DR WALLA WALLA, WA 99362 | % Ownership: | 100.0000000000% |
| | | Exemptions: | |
Taxes and Assessment Details
Property Tax Information as of
02/21/2026
Click on "Statement Details" to expand or collapse a tax statement.
* Please enter a valid date ** Please enter a valid date *
Statement Details |
| | TOTAL: | $0.00 | $0.00 | $0.00 | $0.00 | $0.00 | $0.00 |
|
| | $0.00 | $0.00 | $0.00 | $0.00 | $0.00 | $0.00 |
Values
| (+) Improvement Homesite Value: | + | $256,590 | |
| (+) Improvement Non-Homesite Value: | + | $0 | |
| (+) Land Homesite Value: | + | $91,260 | |
| (+) Land Non-Homesite Value: | + | $0 | |
| (+) Curr Use (HS): | + | $0 | $0 |
| (+) Curr Use (NHS): | + | $0 | $0 |
| | | -------------------------- | |
| (=) Market Value: | = | $347,850 | |
| (–) Productivity Loss: | – | $0 | |
| | | -------------------------- | |
| (=) Subtotal: | = | $347,850 | |
| (+) Senior Appraised Value: | + | $0 | |
| (+) Non-Senior Appraised Value: | + | $347,850 | |
| | | -------------------------- | |
| (=) Total Appraised Value: | = | $347,850 | |
| (–) Senior Exemption Loss: | – | $0 | |
| (–) Exemption Loss: | – | $0 | |
| | | -------------------------- | |
| (=) Taxable Value: | = | $347,850 | |
Taxing Jurisdiction
| Owner: | BEEBE DANIELLE S | | |
| % Ownership: | 100.0000000000% | | |
| Total Value: | $347,850 | | |
| Tax Area: | 1 - OL-140-F |
| CERFD | CURRENT EXPENSE REFUND 010 | 0.0000000000 | $347,850 | $347,850 | $0.00 | | |
| CURREXP | CURRENT EXPENSE 010 | 1.0175366760 | $347,850 | $347,850 | $353.95 | | |
| HUMNSERV | HUMAN SERVICES 119 | 0.0250000000 | $347,850 | $347,850 | $8.70 | | |
| SLDREL | SOLDIERS RELIEF 121 | 0.0155990005 | $347,850 | $347,850 | $5.43 | | |
| EMERGSER | EMS 147 | 0.3792580840 | $347,850 | $347,850 | $131.92 | | |
| EMSRFD | EMS REFUND 147 | 0.0000000000 | $347,850 | $347,850 | $0.00 | | |
| PORTRFD | PORT REFUND 640 | 0.0000000000 | $347,850 | $347,850 | $0.00 | | |
| PORTWWGEN | PORT OF WW 640 | 0.2460186015 | $347,850 | $347,850 | $85.58 | | |
| SD140BOND | SD #140 BOND 764 | 0.8342371393 | $347,850 | $347,850 | $290.19 | | |
| SD140GEN | SD #140 GENERAL 760 | 2.0646500647 | $347,850 | $347,850 | $718.19 | | |
| ST2 | STATE SCHOOL PART 2 600 | 0.8131451643 | $347,850 | $347,850 | $282.85 | | |
| STATESCHL | STATE SCHOOL 600 | 1.5158548041 | $347,850 | $347,850 | $527.29 | | |
| STREFUND | STATE REFUND LEVY 603 | 0.0000000000 | $347,850 | $347,850 | $0.00 | | |
| CWWBOND | C OF WW BOND 643 | 0.2760494372 | $347,850 | $347,850 | $96.02 | | |
| CWWGEN | CITY OF WW 631 | 1.6100204973 | $347,850 | $347,850 | $560.05 | | |
| CWWRFD | CITY OF WALLA WALLA REFUND 631 | 0.0000000000 | $347,850 | $347,850 | $0.00 | | |
| | Total Tax Rate: | 8.7973694689 | | | | | |
| | | | | Taxes w/Current Exemptions: | $3,060.17 | | |
| | | | | Taxes w/o Exemptions: | $3,060.17 | | |
Improvement / Building
| Improvement #1: | RESIDENTIAL | State Code: | 11 | 1352.0 sqft | Value: | $256,590 |
| Exterior Wall: | SIDING | Heating/Cooling: | BASEBOARD HOT WATER | | Number of Bathrooms: | 2 | Number of Bedrooms: | 4 | | Plumbing: | 9 | Roof Covering: | COMP SHINGLE |
|
| | Type | Description | Class CD | Sub Class CD | Year Built | Area |
| | MA | Main Area | 1 | 30 | 1957 | 1352.0 |
| | SI1 | SITE IMPROVEMENT | 1 | 30 | 1957 | 1.5 |
| | BASE | BASEMENT | 1 | 30 | 1957 | 1200.0 |
| | BPF | BASEMENT -PARTITIONED FINISH | 1 | 30 | 1957 | 800.0 |
| | ATG | Attached Garage | 1 | 30 | 1957 | 312.0 |
| | RPS | PORCH W/STEPS,ROOF | 1 | 30 | 1957 | 40.0 |
| | D2F | Double 2 Story Fireplace | 1 | 30 | 1957 | 1.0 |
Sketch
Property Image
Land
| 1 | RES 1 | Converted: Residential | 0.2686 | 11700.00 | 0.00 | 0.00 | 1.00 | $91,260 | $0 |
Roll Value History
| 2026 | N/A | N/A | N/A | N/A | N/A |
| 2025 | $291,200 | $111,620 | $0 | $402,820 | $402,820 |
| 2024 | $256,590 | $91,260 | $0 | $347,850 | $347,850 |
| 2023 | $256,590 | $91,260 | $0 | $347,850 | $347,850 |
| 2022 | $256,590 | $73,400 | $0 | $329,990 | $329,990 |
| 2021 | $176,960 | $73,400 | $0 | $250,360 | $250,360 |
| 2020 | $126,400 | $73,400 | $0 | $199,800 | $199,800 |
| 2019 | $126,400 | $73,400 | $0 | $199,800 | $199,800 |
| 2018 | $142,660 | $48,600 | $0 | $191,260 | $191,260 |
| 2017 | $129,690 | $48,600 | $0 | $178,290 | $178,290 |
| 2016 | $117,900 | $48,600 | $0 | $166,500 | $166,500 |
| 2015 | $117,900 | $48,600 | $0 | $166,500 | $166,500 |
| 2014 | $117,900 | $48,600 | $0 | $166,500 | $166,500 |
| 2013 | $117,900 | $48,600 | $0 | $166,500 | $42,280 |
| 2012 | $117,900 | $48,600 | $0 | $0 | $0 |
| 2011 | $117,900 | $48,600 | $0 | $0 | $0 |
| 2010 | $110,000 | $48,600 | $0 | $0 | $0 |
| 2009 | $127,600 | $48,600 | $0 | $0 | $0 |
| 2008 | $127,600 | $48,600 | $0 | $0 | $0 |
| 2007 | $96,800 | $26,100 | $0 | $0 | $0 |
Deed and Sales History
| 1 | 12/05/2024 | SWD | STATUTORY WARRANTY DEED | BEEBE DANIELLE S | BEASLEY AUSTIN G | | | $430,000.00 | 148616 | 2024-07020 |
| 2 | 09/08/2017 | QCD | QUIT CLAIM DEED | BEEBE THOMAS R & DANIELLE S | BEEBE DANIELLE S | | | $0.00 | 133196 | 2017-07145 |
| 3 | 08/13/2015 | SWD | STATUTORY WARRANTY DEED | MAC DONALD KATHERINE A ESTATE OF | BEEBE THOMAS R & DANIELLE S | | | $162,500.00 | 128601 | 2015-07060 |
| 4 | 07/12/2006 | QCD | QUIT CLAIM DEED | MAC DONALD, ROD F | MAC DONALD, KATHERINE A | | | | 110702 | 2006-08164 |
| 5 | 01/01/1958 | WARRANTY D | WARRANTY DEED | | | | | $0.00 | 0 | 2840-402338 |
Payout Agreement
| No payout information available.. |