Property
Account |
| Property ID: | 29544 | Abbreviated Legal Description: | HENDERSON LOT 10 BLK A |
| Parcel Number: | 360729682810 | Agent Code: | |
| Type: | Real | | |
| Tax Area: | 1 - OL-140-F | Land Use Code | 11 |
| Open Space: | N | DFL | N |
| Historic Property: | N | Remodel Property: | N |
| Multi-Family Redevelopment: | N | | |
| Township: | 7 | Section: | 29 |
| Range: | 36 |
Location |
| Address: | 214 MALCOLM ST WA 99362 | Mapsco: | |
| Neighborhood: | Fair Res | Map ID: | |
| Neighborhood CD: | 612011 |
Owner |
| Name: | MENDOZA JAVIER A | Owner ID: | 58540 |
| Mailing Address: | ROSA MARIA MACIAS ALEJO 214 MALCOLM ST WALLA WALLA, WA 99362 | % Ownership: | 100.0000000000% |
| | | Exemptions: | |
Taxes and Assessment Details
Property Tax Information as of
02/21/2026
Click on "Statement Details" to expand or collapse a tax statement.
* Please enter a valid date ** Please enter a valid date *
Statement Details |
| | TOTAL: | $0.00 | $0.00 | $0.00 | $0.00 | $0.00 | $0.00 |
|
| | $0.00 | $0.00 | $0.00 | $0.00 | $0.00 | $0.00 |
Values
| (+) Improvement Homesite Value: | + | $0 | |
| (+) Improvement Non-Homesite Value: | + | $187,190 | |
| (+) Land Homesite Value: | + | $0 | |
| (+) Land Non-Homesite Value: | + | $40,000 | |
| (+) Curr Use (HS): | + | $0 | $0 |
| (+) Curr Use (NHS): | + | $0 | $0 |
| | | -------------------------- | |
| (=) Market Value: | = | $227,190 | |
| (–) Productivity Loss: | – | $0 | |
| | | -------------------------- | |
| (=) Subtotal: | = | $227,190 | |
| (+) Senior Appraised Value: | + | $0 | |
| (+) Non-Senior Appraised Value: | + | $227,190 | |
| | | -------------------------- | |
| (=) Total Appraised Value: | = | $227,190 | |
| (–) Senior Exemption Loss: | – | $0 | |
| (–) Exemption Loss: | – | $0 | |
| | | -------------------------- | |
| (=) Taxable Value: | = | $227,190 | |
Taxing Jurisdiction
| Owner: | MENDOZA JAVIER A | | |
| % Ownership: | 100.0000000000% | | |
| Total Value: | $227,190 | | |
| Tax Area: | 1 - OL-140-F |
| CERFD | CURRENT EXPENSE REFUND 010 | 0.0000000000 | $227,190 | $227,190 | $0.00 | | |
| CURREXP | CURRENT EXPENSE 010 | 1.0175366760 | $227,190 | $227,190 | $231.17 | | |
| HUMNSERV | HUMAN SERVICES 119 | 0.0250000000 | $227,190 | $227,190 | $5.68 | | |
| SLDREL | SOLDIERS RELIEF 121 | 0.0155990005 | $227,190 | $227,190 | $3.54 | | |
| EMERGSER | EMS 147 | 0.3792580840 | $227,190 | $227,190 | $86.16 | | |
| EMSRFD | EMS REFUND 147 | 0.0000000000 | $227,190 | $227,190 | $0.00 | | |
| PORTRFD | PORT REFUND 640 | 0.0000000000 | $227,190 | $227,190 | $0.00 | | |
| PORTWWGEN | PORT OF WW 640 | 0.2460186015 | $227,190 | $227,190 | $55.89 | | |
| SD140BOND | SD #140 BOND 764 | 0.8342371393 | $227,190 | $227,190 | $189.53 | | |
| SD140GEN | SD #140 GENERAL 760 | 2.0646500647 | $227,190 | $227,190 | $469.07 | | |
| ST2 | STATE SCHOOL PART 2 600 | 0.8131451643 | $227,190 | $227,190 | $184.74 | | |
| STATESCHL | STATE SCHOOL 600 | 1.5158548041 | $227,190 | $227,190 | $344.39 | | |
| STREFUND | STATE REFUND LEVY 603 | 0.0000000000 | $227,190 | $227,190 | $0.00 | | |
| CWWBOND | C OF WW BOND 643 | 0.2760494372 | $227,190 | $227,190 | $62.72 | | |
| CWWGEN | CITY OF WW 631 | 1.6100204973 | $227,190 | $227,190 | $365.78 | | |
| CWWRFD | CITY OF WALLA WALLA REFUND 631 | 0.0000000000 | $227,190 | $227,190 | $0.00 | | |
| | Total Tax Rate: | 8.7973694689 | | | | | |
| | | | | Taxes w/Current Exemptions: | $1,998.67 | | |
| | | | | Taxes w/o Exemptions: | $1,998.67 | | |
Improvement / Building
| Improvement #1: | RESIDENTIAL | State Code: | 11 | 832.0 sqft | Value: | $187,190 |
| Exterior Wall: | METAL/STEEL | Heating/Cooling: | BASEBOARD ELECTRIC | | Number of Bathrooms: | 2 | Number of Bedrooms: | 2 | | Plumbing: | 7 | Roof Covering: | COMP SHINGLE |
|
| | Type | Description | Class CD | Sub Class CD | Year Built | Area |
| | MA | Main Area | 1 | 25 | 1901 | 832.0 |
| | SI1 | SITE IMPROVEMENT | 1 | 25 | 1901 | 1.0 |
| | RPO | OPEN PORCH W/ROOF | 1 | 25 | 1901 | 95.0 |
Sketch
Property Image
Land
| 1 | RES 1 | Converted: Residential | 0.1148 | 5000.00 | 0.00 | 0.00 | 1.00 | $40,000 | $0 |
Roll Value History
| 2026 | N/A | N/A | N/A | N/A | N/A |
| 2025 | $198,920 | $50,000 | $0 | $248,920 | $248,920 |
| 2024 | $187,190 | $40,000 | $0 | $227,190 | $227,190 |
| 2023 | $187,190 | $40,000 | $0 | $227,190 | $227,190 |
| 2022 | $187,190 | $31,250 | $0 | $218,440 | $218,440 |
| 2021 | $133,710 | $31,250 | $0 | $164,960 | $164,960 |
| 2020 | $102,850 | $31,250 | $0 | $134,100 | $134,100 |
| 2019 | $102,850 | $31,250 | $0 | $134,100 | $134,100 |
| 2018 | $43,850 | $30,000 | $0 | $73,850 | $73,850 |
| 2017 | $48,720 | $30,000 | $0 | $78,720 | $78,720 |
| 2016 | $48,720 | $30,000 | $0 | $78,720 | $78,720 |
| 2015 | $40,600 | $30,000 | $0 | $70,600 | $70,600 |
| 2014 | $40,600 | $30,000 | $0 | $70,600 | $70,600 |
| 2013 | $40,600 | $30,000 | $0 | $70,600 | $70,600 |
| 2012 | $51,200 | $30,000 | $0 | $0 | $0 |
| 2011 | $51,200 | $30,000 | $0 | $0 | $0 |
| 2010 | $51,200 | $30,000 | $0 | $0 | $0 |
| 2009 | $60,200 | $30,000 | $0 | $0 | $0 |
| 2008 | $60,200 | $30,000 | $0 | $0 | $0 |
| 2007 | $44,600 | $10,000 | $0 | $0 | $0 |
Deed and Sales History
| 1 | 04/12/2016 | SWD | STATUTORY WARRANTY DEED | BLUE WALTER C | MENDOZA JAVIER A | | | $70,000.00 | 129989 | 2016-02621 |
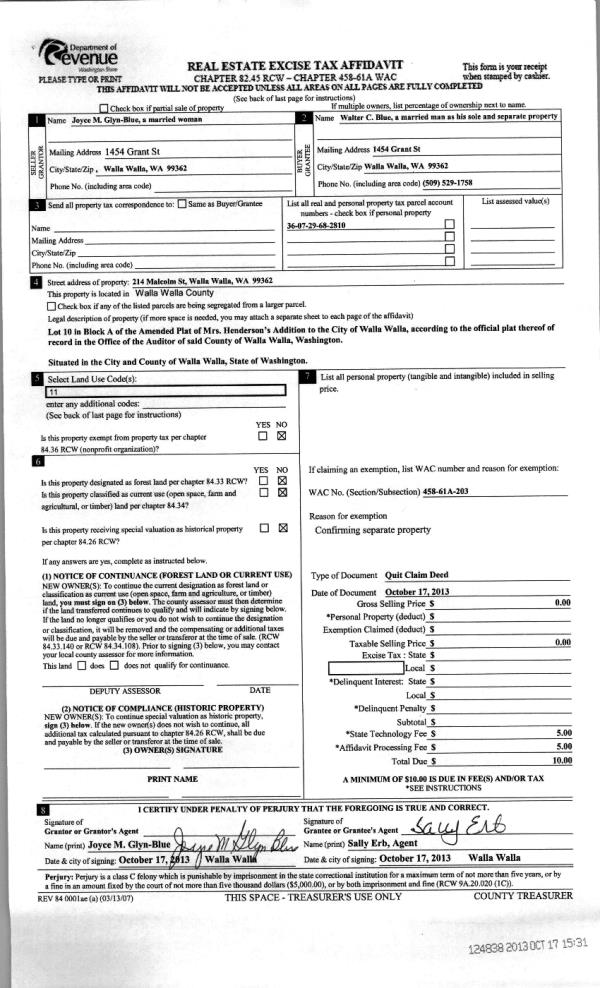
| 2 | 10/17/2013 | QCD | QUIT CLAIM DEED | GLYN-BLUE, JOYCE M | BLUE, WALTER C | | | $0.00 | 124838 | 2013-10448 |
| 3 | 09/02/2005 | WARRANTY D | WARRANTY DEED | BLUE, LINDA | BLUE, WALTER C | | | | 0 | CC #05-3-00115-6 |
| 4 | 04/21/1999 | WARRANTY D | WARRANTY DEED | | | | | $51,200.00 | 92597 | 2839-904863 |
Payout Agreement
| No payout information available.. |