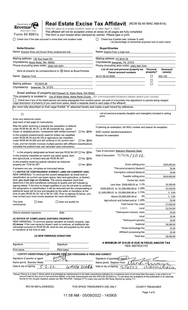
Property
Account |
| Property ID: | 29541 | Abbreviated Legal Description: | 28-7-36 TAX 45 |
| Parcel Number: | 360728220026 | Agent Code: | |
| Type: | Real | | |
| Tax Area: | 1 - OL-140-F | Land Use Code | 11 |
| Open Space: | N | DFL | N |
| Historic Property: | N | Remodel Property: | N |
| Multi-Family Redevelopment: | N | | |
| Township: | 7 | Section: | 28 |
| Range: | 36 |
Location |
| Address: | 609 PLEASANT ST WA 99362 | Mapsco: | |
| Neighborhood: | A Res | Map ID: | |
| Neighborhood CD: | 613011 |
Owner |
| Name: | FORD STEPHEN A | Owner ID: | 71597 |
| Mailing Address: | 609 PLEASANT ST WALLA WALLA, WA 99362-3367 | % Ownership: | 100.0000000000% |
| | | Exemptions: | |
Taxes and Assessment Details
Property Tax Information as of
02/21/2026
Click on "Statement Details" to expand or collapse a tax statement.
* Please enter a valid date ** Please enter a valid date *
Statement Details |
| | TOTAL: | $0.00 | $0.00 | $0.00 | $0.00 | $0.00 | $0.00 |
|
| | $0.00 | $0.00 | $0.00 | $0.00 | $0.00 | $0.00 |
Values
| (+) Improvement Homesite Value: | + | $537,690 | |
| (+) Improvement Non-Homesite Value: | + | $0 | |
| (+) Land Homesite Value: | + | $82,330 | |
| (+) Land Non-Homesite Value: | + | $0 | |
| (+) Curr Use (HS): | + | $0 | $0 |
| (+) Curr Use (NHS): | + | $0 | $0 |
| | | -------------------------- | |
| (=) Market Value: | = | $620,020 | |
| (–) Productivity Loss: | – | $0 | |
| | | -------------------------- | |
| (=) Subtotal: | = | $620,020 | |
| (+) Senior Appraised Value: | + | $0 | |
| (+) Non-Senior Appraised Value: | + | $620,020 | |
| | | -------------------------- | |
| (=) Total Appraised Value: | = | $620,020 | |
| (–) Senior Exemption Loss: | – | $0 | |
| (–) Exemption Loss: | – | $0 | |
| | | -------------------------- | |
| (=) Taxable Value: | = | $620,020 | |
Taxing Jurisdiction
| Owner: | FORD STEPHEN A | | |
| % Ownership: | 100.0000000000% | | |
| Total Value: | $620,020 | | |
| Tax Area: | 1 - OL-140-F |
| CERFD | CURRENT EXPENSE REFUND 010 | 0.0000000000 | $620,020 | $620,020 | $0.00 | | |
| CURREXP | CURRENT EXPENSE 010 | 1.0175366760 | $620,020 | $620,020 | $630.89 | | |
| HUMNSERV | HUMAN SERVICES 119 | 0.0250000000 | $620,020 | $620,020 | $15.50 | | |
| SLDREL | SOLDIERS RELIEF 121 | 0.0155990005 | $620,020 | $620,020 | $9.67 | | |
| EMERGSER | EMS 147 | 0.3792580840 | $620,020 | $620,020 | $235.15 | | |
| EMSRFD | EMS REFUND 147 | 0.0000000000 | $620,020 | $620,020 | $0.00 | | |
| PORTRFD | PORT REFUND 640 | 0.0000000000 | $620,020 | $620,020 | $0.00 | | |
| PORTWWGEN | PORT OF WW 640 | 0.2460186015 | $620,020 | $620,020 | $152.54 | | |
| SD140BOND | SD #140 BOND 764 | 0.8342371393 | $620,020 | $620,020 | $517.24 | | |
| SD140GEN | SD #140 GENERAL 760 | 2.0646500647 | $620,020 | $620,020 | $1,280.12 | | |
| ST2 | STATE SCHOOL PART 2 600 | 0.8131451643 | $620,020 | $620,020 | $504.17 | | |
| STATESCHL | STATE SCHOOL 600 | 1.5158548041 | $620,020 | $620,020 | $939.86 | | |
| STREFUND | STATE REFUND LEVY 603 | 0.0000000000 | $620,020 | $620,020 | $0.00 | | |
| CWWBOND | C OF WW BOND 643 | 0.2760494372 | $620,020 | $620,020 | $171.16 | | |
| CWWGEN | CITY OF WW 631 | 1.6100204973 | $620,020 | $620,020 | $998.24 | | |
| CWWRFD | CITY OF WALLA WALLA REFUND 631 | 0.0000000000 | $620,020 | $620,020 | $0.00 | | |
| | Total Tax Rate: | 8.7973694689 | | | | | |
| | | | | Taxes w/Current Exemptions: | $5,454.54 | | |
| | | | | Taxes w/o Exemptions: | $5,454.54 | | |
Improvement / Building
| Improvement #1: | RESIDENTIAL | State Code: | 11 | 1872.0 sqft | Value: | $537,690 |
| Exterior Wall: | SIDING | Heating/Cooling: | WARM & COOLED AIR | | Number of Bathrooms: | 2 | Number of Bedrooms: | 6 | | Plumbing: | 14 | Roof Covering: | COMP SHINGLE |
|
| | Type | Description | Class CD | Sub Class CD | Year Built | Area |
| | MA | Main Area | 5 | 35 | 1918 | 1872.0 |
| | SI1 | SITE IMPROVEMENT | 5 | 35 | 1918 | 6.0 |
| | BASE | BASEMENT | 5 | 35 | 1918 | 1344.0 |
| | BPF | BASEMENT -PARTITIONED FINISH | 5 | 35 | 2020 | 1344.0 |
| | WOD | Wood Deck | 1 | 35 | 1918 | 126.0 |
| | CPC | COVERED CARPORT/PATIO | 5 | 35 | 1918 | 210.0 |
| | OUT | OUTSIDE BASEMENT ENTRY | 5 | 35 | 1918 | 1.0 |
| | RPS | PORCH W/STEPS,ROOF | 5 | 35 | 1918 | 144.0 |
| | UPFL | Upper Floor (included in main area) | 5 | 35 | 1918 | 550.0 |
Sketch
Property Image
Land
| 1 | RES 1 | Converted: Residential | 0.2100 | 9148.00 | 0.00 | 0.00 | 1.00 | $82,330 | $0 |
Roll Value History
| 2026 | N/A | N/A | N/A | N/A | N/A |
| 2025 | $499,470 | $100,630 | $0 | $600,100 | $600,100 |
| 2024 | $537,690 | $82,330 | $0 | $620,020 | $620,020 |
| 2023 | $537,690 | $82,330 | $0 | $620,020 | $620,020 |
| 2022 | $537,690 | $66,320 | $0 | $604,010 | $604,010 |
| 2021 | $185,800 | $66,320 | $0 | $252,120 | $252,120 |
| 2020 | $88,310 | $66,320 | $0 | $154,630 | $154,630 |
| 2019 | $88,310 | $66,320 | $0 | $154,630 | $154,630 |
| 2018 | $105,050 | $46,400 | $0 | $151,450 | $151,450 |
| 2017 | $87,540 | $46,400 | $0 | $133,940 | $133,940 |
| 2016 | $76,120 | $46,400 | $0 | $122,520 | $122,520 |
| 2015 | $76,120 | $46,400 | $0 | $122,520 | $122,520 |
| 2014 | $69,200 | $46,400 | $0 | $115,600 | $115,600 |
| 2013 | $69,200 | $46,400 | $0 | $115,600 | $43,800 |
| 2012 | $91,400 | $46,400 | $0 | $0 | $0 |
| 2011 | $91,400 | $46,400 | $0 | $0 | $0 |
| 2010 | $91,400 | $46,400 | $0 | $0 | $0 |
| 2009 | $106,700 | $46,400 | $0 | $0 | $0 |
| 2008 | $106,700 | $46,400 | $0 | $0 | $0 |
| 2007 | $85,600 | $23,900 | $0 | $0 | $0 |
Deed and Sales History
| 1 | 05/09/2022 | SWD | STATUTORY WARRANTY DEED | WATTS BRANDON & NACOLE | FORD STEPHEN A | | | $620,000.00 | 143905 | 2022-03933 |
| 2 | 10/30/2020 | BARGAIN & | BARGAIN & SALE DEED | FEDERAL NATIONAL MORTGAGE ASSOCIATION | WATTS BRANDON & NACOLE | | | | 140233 | 2020-11377 |
| 3 | 07/07/2020 | SHERIFFS D | SHERIFFS DEED | SCRUGGS CAROLYN | FEDERAL NATIONAL MORTGAGE ASSOCIATION | | | $166,927.00 | 139429 | 2020-06325 |
| 4 | 01/01/1948 | WARRANTY D | WARRANTY DEED | | | | | $0.00 | 0 | 2410-317462 |
Payout Agreement
| No payout information available.. |