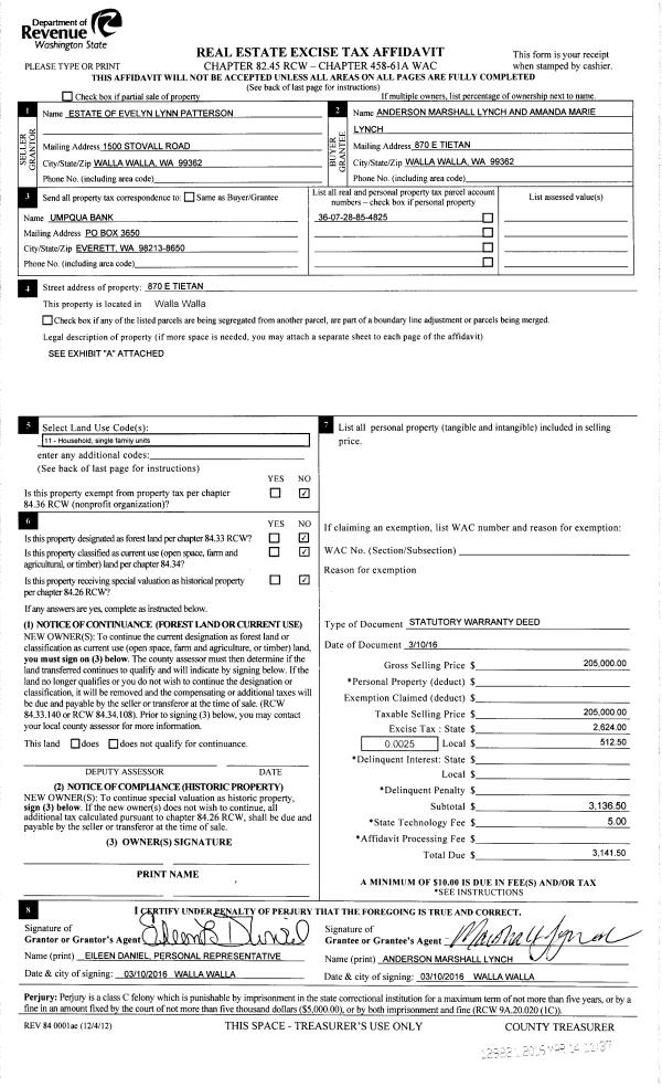
Property
Account |
| Property ID: | 29537 | Abbreviated Legal Description: | MTN VIEW TAX 20 |
| Parcel Number: | 360728854825 | Agent Code: | |
| Type: | Real | | |
| Tax Area: | 1 - OL-140-F | Land Use Code | 11 |
| Open Space: | N | DFL | N |
| Historic Property: | N | Remodel Property: | N |
| Multi-Family Redevelopment: | N | | |
| Township: | 7 | Section: | 28 |
| Range: | 36 |
Location |
| Address: | 870 E TIETAN ST WA 99362 | Mapsco: | |
| Neighborhood: | G Res | Map ID: | |
| Neighborhood CD: | 614011 |
Owner |
| Name: | LYNCH ANDERSON MARSHALL & AMANDA MARIE | Owner ID: | 58400 |
| Mailing Address: | 870 E TIETAN ST WALLA WALLA, WA 99362 | % Ownership: | 100.0000000000% |
| | | Exemptions: | |
Taxes and Assessment Details
Property Tax Information as of
02/21/2026
Click on "Statement Details" to expand or collapse a tax statement.
* Please enter a valid date ** Please enter a valid date *
Statement Details |
| | TOTAL: | $0.00 | $0.00 | $0.00 | $0.00 | $0.00 | $0.00 |
|
| | $0.00 | $0.00 | $0.00 | $0.00 | $0.00 | $0.00 |
Values
| (+) Improvement Homesite Value: | + | $261,710 | |
| (+) Improvement Non-Homesite Value: | + | $0 | |
| (+) Land Homesite Value: | + | $117,710 | |
| (+) Land Non-Homesite Value: | + | $0 | |
| (+) Curr Use (HS): | + | $0 | $0 |
| (+) Curr Use (NHS): | + | $0 | $0 |
| | | -------------------------- | |
| (=) Market Value: | = | $379,420 | |
| (–) Productivity Loss: | – | $0 | |
| | | -------------------------- | |
| (=) Subtotal: | = | $379,420 | |
| (+) Senior Appraised Value: | + | $0 | |
| (+) Non-Senior Appraised Value: | + | $379,420 | |
| | | -------------------------- | |
| (=) Total Appraised Value: | = | $379,420 | |
| (–) Senior Exemption Loss: | – | $0 | |
| (–) Exemption Loss: | – | $0 | |
| | | -------------------------- | |
| (=) Taxable Value: | = | $379,420 | |
Taxing Jurisdiction
| Owner: | LYNCH ANDERSON MARSHALL & AMANDA MARIE | | |
| % Ownership: | 100.0000000000% | | |
| Total Value: | $379,420 | | |
| Tax Area: | 1 - OL-140-F |
| CERFD | CURRENT EXPENSE REFUND 010 | 0.0000000000 | $379,420 | $379,420 | $0.00 | | |
| CURREXP | CURRENT EXPENSE 010 | 1.0175366760 | $379,420 | $379,420 | $386.07 | | |
| HUMNSERV | HUMAN SERVICES 119 | 0.0250000000 | $379,420 | $379,420 | $9.49 | | |
| SLDREL | SOLDIERS RELIEF 121 | 0.0155990005 | $379,420 | $379,420 | $5.92 | | |
| EMERGSER | EMS 147 | 0.3792580840 | $379,420 | $379,420 | $143.90 | | |
| EMSRFD | EMS REFUND 147 | 0.0000000000 | $379,420 | $379,420 | $0.00 | | |
| PORTRFD | PORT REFUND 640 | 0.0000000000 | $379,420 | $379,420 | $0.00 | | |
| PORTWWGEN | PORT OF WW 640 | 0.2460186015 | $379,420 | $379,420 | $93.34 | | |
| SD140BOND | SD #140 BOND 764 | 0.8342371393 | $379,420 | $379,420 | $316.53 | | |
| SD140GEN | SD #140 GENERAL 760 | 2.0646500647 | $379,420 | $379,420 | $783.37 | | |
| ST2 | STATE SCHOOL PART 2 600 | 0.8131451643 | $379,420 | $379,420 | $308.52 | | |
| STATESCHL | STATE SCHOOL 600 | 1.5158548041 | $379,420 | $379,420 | $575.15 | | |
| STREFUND | STATE REFUND LEVY 603 | 0.0000000000 | $379,420 | $379,420 | $0.00 | | |
| CWWBOND | C OF WW BOND 643 | 0.2760494372 | $379,420 | $379,420 | $104.74 | | |
| CWWGEN | CITY OF WW 631 | 1.6100204973 | $379,420 | $379,420 | $610.87 | | |
| CWWRFD | CITY OF WALLA WALLA REFUND 631 | 0.0000000000 | $379,420 | $379,420 | $0.00 | | |
| | Total Tax Rate: | 8.7973694689 | | | | | |
| | | | | Taxes w/Current Exemptions: | $3,337.90 | | |
| | | | | Taxes w/o Exemptions: | $3,337.90 | | |
Improvement / Building
| Improvement #1: | RESIDENTIAL | State Code: | 11 | 1343.0 sqft | Value: | $261,710 |
| Exterior Wall: | PLYWOOD | Heating/Cooling: | WARM & COOLED AIR | | Number of Bathrooms: | 2 | Number of Bedrooms: | 3 | | Plumbing: | 9 | Roof Covering: | COMP SHINGLE |
|
| | Type | Description | Class CD | Sub Class CD | Year Built | Area |
| | MA | Main Area | 1 | 30 | 1977 | 1343.0 |
| | SI1 | SITE IMPROVEMENT | 1 | 30 | 1977 | 3.0 |
| | BASE | BASEMENT | 1 | 30 | 1977 | 1343.0 |
| | BPF | BASEMENT -PARTITIONED FINISH | 1 | 30 | 1977 | 1343.0 |
| | ATG | Attached Garage | 1 | 30 | 1977 | 506.0 |
| | D2F | Double 2 Story Fireplace | 1 | 30 | 1977 | 1.0 |
| | RPC | OPEN PORCH W/ROOF , CEILED | 1 | 30 | 1977 | 115.0 |
Sketch
Property Image
Land
| 1 | RES 1 | Converted: Residential | 0.2702 | 11771.00 | 0.00 | 0.00 | 1.00 | $117,710 | $0 |
Roll Value History
| 2026 | N/A | N/A | N/A | N/A | N/A |
| 2025 | $251,540 | $141,250 | $0 | $392,790 | $392,790 |
| 2024 | $261,710 | $117,710 | $0 | $379,420 | $379,420 |
| 2023 | $261,710 | $117,710 | $0 | $379,420 | $379,420 |
| 2022 | $227,580 | $97,110 | $0 | $324,690 | $324,690 |
| 2021 | $197,890 | $97,110 | $0 | $295,000 | $295,000 |
| 2020 | $164,910 | $97,110 | $0 | $262,020 | $262,020 |
| 2019 | $164,910 | $97,110 | $0 | $262,020 | $262,020 |
| 2018 | $152,200 | $48,600 | $0 | $200,800 | $200,800 |
| 2017 | $152,200 | $48,600 | $0 | $200,800 | $200,800 |
| 2016 | $152,200 | $48,600 | $0 | $200,800 | $200,800 |
| 2015 | $152,200 | $48,600 | $0 | $200,800 | $54,480 |
| 2014 | $152,200 | $48,600 | $0 | $200,800 | $54,480 |
| 2013 | $152,200 | $48,600 | $0 | $200,800 | $54,480 |
| 2012 | $169,200 | $48,600 | $0 | $0 | $0 |
| 2011 | $169,200 | $48,600 | $0 | $0 | $0 |
| 2010 | $140,800 | $48,600 | $0 | $0 | $0 |
| 2009 | $161,800 | $48,600 | $0 | $0 | $0 |
| 2008 | $161,800 | $48,600 | $0 | $0 | $0 |
| 2007 | $110,100 | $26,100 | $0 | $0 | $0 |
Deed and Sales History
| 1 | 03/14/2016 | SWD | STATUTORY WARRANTY DEED | PATTERSON EVELYN LYNN ESTATE OF | LYNCH ANDERSON MARSHALL & AMANDA MARIE | | | $205,000.00 | 129821 | 2016-01905 |
| 2 | 03/11/1977 | WARRANTY D | WARRANTY DEED | | | | | $9,500.00 | 0 | 5605-62801 |
Payout Agreement
| No payout information available.. |