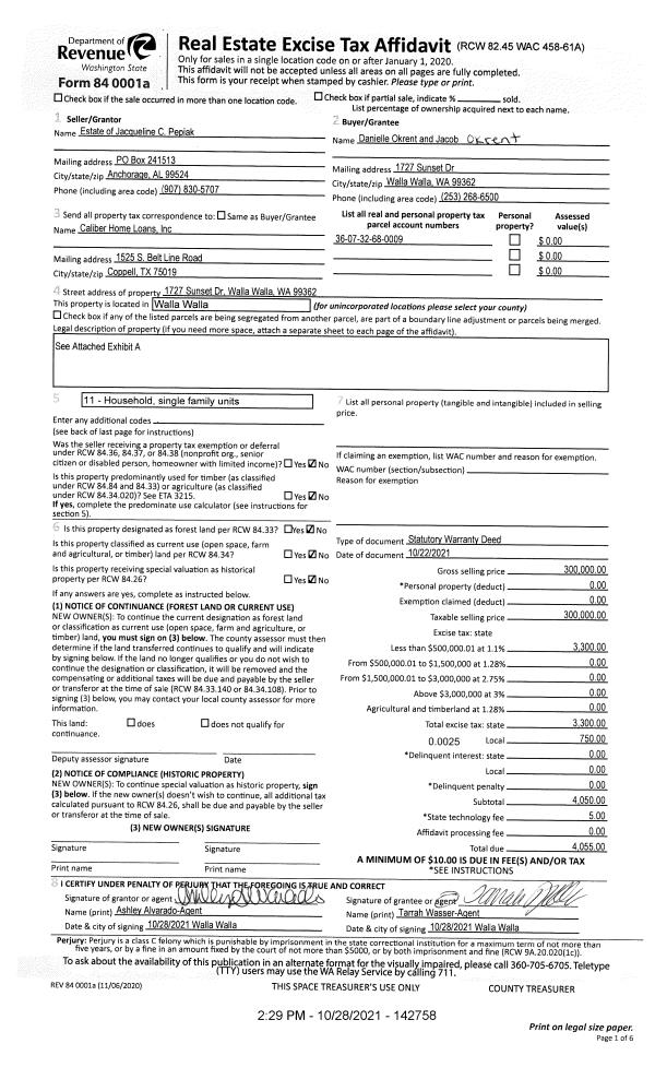
Property
Account |
| Property ID: | 29526 | Abbreviated Legal Description: | MCDONALDS ADDITION PARCEL #9 |
| Parcel Number: | 360732680009 | Agent Code: | |
| Type: | Real | | |
| Tax Area: | 1 - OL-140-F | Land Use Code | 11 |
| Open Space: | N | DFL | N |
| Historic Property: | N | Remodel Property: | N |
| Multi-Family Redevelopment: | N | | |
| Township: | 7 | Section: | 32 |
| Range: | 36 |
Location |
| Address: | 1727 SUNSET DR WA 99362 | Mapsco: | |
| Neighborhood: | A Res | Map ID: | |
| Neighborhood CD: | 613011 |
Owner |
| Name: | OKRENT DANIELLE & JACOB | Owner ID: | 70521 |
| Mailing Address: | 1727 SUNSET DR WALLA WALLA, WA 99362 | % Ownership: | 100.0000000000% |
| | | Exemptions: | |
Taxes and Assessment Details
Property Tax Information as of
04/19/2026
Click on "Statement Details" to expand or collapse a tax statement.
* Please enter a valid date ** Please enter a valid date *
Statement Details |
| | TOTAL: | $0.00 | $0.00 | $0.00 | $0.00 | $0.00 | $0.00 |
|
| | $0.00 | $0.00 | $0.00 | $0.00 | $0.00 | $0.00 |
Values
| (+) Improvement Homesite Value: | + | $246,020 | |
| (+) Improvement Non-Homesite Value: | + | $0 | |
| (+) Land Homesite Value: | + | $71,280 | |
| (+) Land Non-Homesite Value: | + | $0 | |
| (+) Curr Use (HS): | + | $0 | $0 |
| (+) Curr Use (NHS): | + | $0 | $0 |
| | | -------------------------- | |
| (=) Market Value: | = | $317,300 | |
| (–) Productivity Loss: | – | $0 | |
| | | -------------------------- | |
| (=) Subtotal: | = | $317,300 | |
| (+) Senior Appraised Value: | + | $0 | |
| (+) Non-Senior Appraised Value: | + | $317,300 | |
| | | -------------------------- | |
| (=) Total Appraised Value: | = | $317,300 | |
| (–) Senior Exemption Loss: | – | $0 | |
| (–) Exemption Loss: | – | $0 | |
| | | -------------------------- | |
| (=) Taxable Value: | = | $317,300 | |
Taxing Jurisdiction
| Owner: | OKRENT DANIELLE & JACOB | | |
| % Ownership: | 100.0000000000% | | |
| Total Value: | $317,300 | | |
| Tax Area: | 1 - OL-140-F |
| CERFD | CURRENT EXPENSE REFUND 010 | 0.0000000000 | $317,300 | $317,300 | $0.00 | | |
| CURREXP | CURRENT EXPENSE 010 | 1.0175366760 | $317,300 | $317,300 | $322.86 | | |
| HUMNSERV | HUMAN SERVICES 119 | 0.0250000000 | $317,300 | $317,300 | $7.93 | | |
| SLDREL | SOLDIERS RELIEF 121 | 0.0155990005 | $317,300 | $317,300 | $4.95 | | |
| EMERGSER | EMS 147 | 0.3792580840 | $317,300 | $317,300 | $120.34 | | |
| EMSRFD | EMS REFUND 147 | 0.0000000000 | $317,300 | $317,300 | $0.00 | | |
| PORTRFD | PORT REFUND 640 | 0.0000000000 | $317,300 | $317,300 | $0.00 | | |
| PORTWWGEN | PORT OF WW 640 | 0.2460186015 | $317,300 | $317,300 | $78.06 | | |
| SD140BOND | SD #140 BOND 764 | 0.8342371393 | $317,300 | $317,300 | $264.70 | | |
| SD140GEN | SD #140 GENERAL 760 | 2.0646500647 | $317,300 | $317,300 | $655.11 | | |
| ST2 | STATE SCHOOL PART 2 600 | 0.8131451643 | $317,300 | $317,300 | $258.01 | | |
| STATESCHL | STATE SCHOOL 600 | 1.5158548041 | $317,300 | $317,300 | $480.98 | | |
| STREFUND | STATE REFUND LEVY 603 | 0.0000000000 | $317,300 | $317,300 | $0.00 | | |
| CWWBOND | C OF WW BOND 643 | 0.2760494372 | $317,300 | $317,300 | $87.59 | | |
| CWWGEN | CITY OF WW 631 | 1.6100204973 | $317,300 | $317,300 | $510.86 | | |
| CWWRFD | CITY OF WALLA WALLA REFUND 631 | 0.0000000000 | $317,300 | $317,300 | $0.00 | | |
| | Total Tax Rate: | 8.7973694689 | | | | | |
| | | | | Taxes w/Current Exemptions: | $2,791.39 | | |
| | | | | Taxes w/o Exemptions: | $2,791.39 | | |
Improvement / Building
| Improvement #1: | RESIDENTIAL | State Code: | 11 | 1316.0 sqft | Value: | $246,020 |
| Exterior Wall: | PLYWOOD | Heating/Cooling: | WARM & COOLED AIR | | Number of Bathrooms: | 2 | Number of Bedrooms: | 3 | | Plumbing: | 9 | Roof Covering: | COMP SHINGLE |
|
| | Type | Description | Class CD | Sub Class CD | Year Built | Area |
| | MA | Main Area | 1 | 30 | 1977 | 1316.0 |
| | SI1 | SITE IMPROVEMENT | 1 | 30 | 1977 | 1.5 |
| | ATG | Attached Garage | 1 | 30 | 1977 | 640.0 |
| | RPO | OPEN PORCH W/ROOF | 1 | 30 | 1977 | 117.0 |
| | RPO | OPEN PORCH W/ROOF | 1 | 30 | 1977 | 104.0 |
| | D2F | Double 2 Story Fireplace | 1 | 30 | 1977 | 1.0 |
Sketch
Property Image
Land
| 1 | RES 1 | Converted: Residential | 0.1818 | 7920.00 | 0.00 | 0.00 | 1.00 | $71,280 | $0 |
Roll Value History
| 2026 | N/A | N/A | N/A | N/A | N/A |
| 2025 | $251,260 | $87,120 | $0 | $338,380 | $338,380 |
| 2024 | $246,020 | $71,280 | $0 | $317,300 | $317,300 |
| 2023 | $246,020 | $71,280 | $0 | $317,300 | $317,300 |
| 2022 | $234,300 | $57,400 | $0 | $291,700 | $291,700 |
| 2021 | $213,000 | $57,400 | $0 | $270,400 | $270,400 |
| 2020 | $142,000 | $57,400 | $0 | $199,400 | $44,080 |
| 2019 | $142,000 | $57,400 | $0 | $199,400 | $44,080 |
| 2018 | $143,230 | $45,400 | $0 | $188,630 | $44,080 |
| 2017 | $136,410 | $45,400 | $0 | $181,810 | $44,080 |
| 2016 | $129,910 | $45,400 | $0 | $175,310 | $44,080 |
| 2015 | $129,910 | $45,400 | $0 | $175,310 | $44,080 |
| 2014 | $118,100 | $45,400 | $0 | $163,500 | $44,080 |
| 2013 | $118,100 | $45,400 | $0 | $163,500 | $44,080 |
| 2012 | $118,100 | $45,400 | $0 | $0 | $0 |
| 2011 | $126,700 | $45,400 | $0 | $0 | $0 |
| 2010 | $112,500 | $45,400 | $0 | $0 | $0 |
| 2009 | $130,000 | $45,400 | $0 | $0 | $0 |
| 2008 | $130,000 | $45,400 | $0 | $0 | $0 |
| 2007 | $116,900 | $22,900 | $0 | $0 | $0 |
Deed and Sales History
| 1 | 10/28/2021 | SWD | STATUTORY WARRANTY DEED | PEPIAK JACQUELINE C ESTATE OF | OKRENT DANIELLE & JACOB | | | $300,000.00 | 142758 | 2021-13011 |
| 2 | 12/17/1977 | WARRANTY D | WARRANTY DEED | | | | | $44,500.00 | 0 | 7478-00022 |
Payout Agreement
| No payout information available.. |