Property
Account |
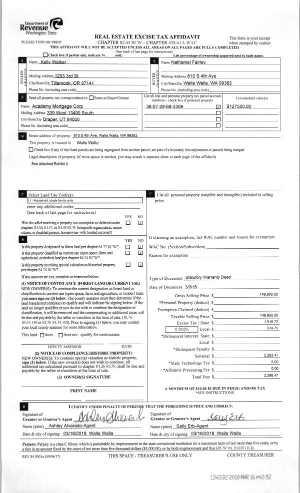
| Property ID: | 29512 | Abbreviated Legal Description: | HENDERSON E 100' OF N1/2 OF LESS ALLEY & TAX 8 BLK G 33 |
| Parcel Number: | 360729683309 | Agent Code: | |
| Type: | Real | | |
| Tax Area: | 1 - OL-140-F | Land Use Code | 11 |
| Open Space: | N | DFL | N |
| Historic Property: | N | Remodel Property: | N |
| Multi-Family Redevelopment: | N | | |
| Township: | 7 | Section: | 29 |
| Range: | 36 |
Location |
| Address: | 810 S 4TH AVE WA 99362 | Mapsco: | |
| Neighborhood: | Fair Res | Map ID: | |
| Neighborhood CD: | 612011 |
Owner |
| Name: | FAIRLEY NATHANIEL | Owner ID: | 62747 |
| Mailing Address: | 810 S 4TH AVE WALLA WALLA, WA 99362 | % Ownership: | 100.0000000000% |
| | | Exemptions: | |
Taxes and Assessment Details
Values
| (+) Improvement Homesite Value: | + | $203,200 | |
| (+) Improvement Non-Homesite Value: | + | $0 | |
| (+) Land Homesite Value: | + | $40,000 | |
| (+) Land Non-Homesite Value: | + | $0 | |
| (+) Curr Use (HS): | + | $0 | $0 |
| (+) Curr Use (NHS): | + | $0 | $0 |
| | | -------------------------- | |
| (=) Market Value: | = | $243,200 | |
| (–) Productivity Loss: | – | $0 | |
| | | -------------------------- | |
| (=) Subtotal: | = | $243,200 | |
| (+) Senior Appraised Value: | + | $0 | |
| (+) Non-Senior Appraised Value: | + | $243,200 | |
| | | -------------------------- | |
| (=) Total Appraised Value: | = | $243,200 | |
| (–) Senior Exemption Loss: | – | $0 | |
| (–) Exemption Loss: | – | $0 | |
| | | -------------------------- | |
| (=) Taxable Value: | = | $243,200 | |
Taxing Jurisdiction
| Owner: | FAIRLEY NATHANIEL | | |
| % Ownership: | 100.0000000000% | | |
| Total Value: | $243,200 | | |
| Tax Area: | 1 - OL-140-F |
| CERFD | CURRENT EXPENSE REFUND 010 | 0.0000000000 | $243,200 | $243,200 | $0.00 | | |
| CURREXP | CURRENT EXPENSE 010 | 1.0175366760 | $243,200 | $243,200 | $247.46 | | |
| HUMNSERV | HUMAN SERVICES 119 | 0.0250000000 | $243,200 | $243,200 | $6.08 | | |
| SLDREL | SOLDIERS RELIEF 121 | 0.0155990005 | $243,200 | $243,200 | $3.79 | | |
| EMERGSER | EMS 147 | 0.3792580840 | $243,200 | $243,200 | $92.24 | | |
| EMSRFD | EMS REFUND 147 | 0.0000000000 | $243,200 | $243,200 | $0.00 | | |
| PORTRFD | PORT REFUND 640 | 0.0000000000 | $243,200 | $243,200 | $0.00 | | |
| PORTWWGEN | PORT OF WW 640 | 0.2460186015 | $243,200 | $243,200 | $59.83 | | |
| SD140BOND | SD #140 BOND 764 | 0.8342371393 | $243,200 | $243,200 | $202.89 | | |
| SD140GEN | SD #140 GENERAL 760 | 2.0646500647 | $243,200 | $243,200 | $502.12 | | |
| ST2 | STATE SCHOOL PART 2 600 | 0.8131451643 | $243,200 | $243,200 | $197.76 | | |
| STATESCHL | STATE SCHOOL 600 | 1.5158548041 | $243,200 | $243,200 | $368.66 | | |
| STREFUND | STATE REFUND LEVY 603 | 0.0000000000 | $243,200 | $243,200 | $0.00 | | |
| CWWBOND | C OF WW BOND 643 | 0.2760494372 | $243,200 | $243,200 | $67.14 | | |
| CWWGEN | CITY OF WW 631 | 1.6100204973 | $243,200 | $243,200 | $391.56 | | |
| CWWRFD | CITY OF WALLA WALLA REFUND 631 | 0.0000000000 | $243,200 | $243,200 | $0.00 | | |
| | Total Tax Rate: | 8.7973694689 | | | | | |
| | | | | Taxes w/Current Exemptions: | $2,139.53 | | |
| | | | | Taxes w/o Exemptions: | $2,139.53 | | |
Improvement / Building
| Improvement #1: | RESIDENTIAL | State Code: | 11 | 1269.0 sqft | Value: | $203,200 |
| Exterior Wall: | PLYWOOD | Foundation: | SLAB FOUNDATION | | Heating/Cooling: | BASEBOARD ELECTRIC | Number of Bathrooms: | 1 | | Number of Bedrooms: | 2 | Plumbing: | 7 | | Roof Covering: | COMP SHINGLE |   |   |
|
| | Type | Description | Class CD | Sub Class CD | Year Built | Area |
| | MA | Main Area | 1 | 20 | 1900 | 1269.0 |
| | SI1 | SITE IMPROVEMENT | 1 | 20 | 1900 | 1.5 |
| | CPCG | CARPORT/ GABLE ROOF | 1 | 20 | 1900 | 224.0 |
| | OSP | Open | 1 | 20 | 1900 | 42.0 |
| | PRC | PORCH W STEPS, ROOF,CEILED | 1 | 20 | 1900 | 21.0 |
Sketch
Property Image
Land
| 1 | RES 1 | Converted: Residential | 0.1148 | 5000.00 | 0.00 | 0.00 | 1.00 | $40,000 | $0 |
Roll Value History
| 2026 | N/A | N/A | N/A | N/A | N/A |
| 2025 | $204,670 | $50,000 | $0 | $254,670 | $254,670 |
| 2024 | $203,200 | $40,000 | $0 | $243,200 | $243,200 |
| 2023 | $203,200 | $40,000 | $0 | $243,200 | $243,200 |
| 2022 | $203,200 | $31,250 | $0 | $234,450 | $234,450 |
| 2021 | $145,150 | $31,250 | $0 | $176,400 | $176,400 |
| 2020 | $111,650 | $31,250 | $0 | $142,900 | $142,900 |
| 2019 | $111,650 | $31,250 | $0 | $142,900 | $142,900 |
| 2018 | $107,300 | $30,000 | $0 | $137,300 | $137,300 |
| 2017 | $97,550 | $30,000 | $0 | $127,550 | $127,550 |
| 2016 | $88,680 | $30,000 | $0 | $118,680 | $118,680 |
| 2015 | $73,900 | $30,000 | $0 | $103,900 | $103,900 |
| 2014 | $73,900 | $30,000 | $0 | $103,900 | $103,900 |
| 2013 | $73,900 | $30,000 | $0 | $103,900 | $103,900 |
| 2012 | $97,900 | $30,000 | $0 | $127,900 | $0 |
| 2011 | $75,400 | $30,000 | $0 | $0 | $0 |
| 2010 | $75,400 | $30,000 | $0 | $0 | $0 |
| 2009 | $93,300 | $30,000 | $0 | $0 | $0 |
| 2008 | $93,300 | $30,000 | $0 | $0 | $0 |
| 2007 | $69,200 | $10,000 | $0 | $0 | $0 |
Deed and Sales History
| 1 | 03/16/2018 | SWD | STATUTORY WARRANTY DEED | WARNER KELLY | FAIRLEY NATHANIEL | | | $149,900.00 | 134332 | 2018-02086 |
| 2 | 11/22/2013 | QCD | QUIT CLAIM DEED | WARNER GLENDA J | WARNER KELLY | | | | 0 | 2013-11458 |
| 3 | 01/09/2017 | DEATH CERT | DEATH CERTIFICATE | WARNER FRANK EDVIN | WARNER GLENDA J | | | | 0 | |
| 4 | 09/09/1998 | QCD | QUIT CLAIM DEED | WARNER FRANK E & GLENDA J | | | | | 0 | 1998-10389 |
| 5 | 07/31/1997 | QCD | QUIT CLAIM DEED | WARNER FRANK E & GLENDA J | | | | | 0 | 1997-08548 |
| 6 | 03/23/1976 | WARRANTY D | WARRANTY DEED | | | | | $3,500.00 | 0 | 3905-52296 |
Payout Agreement
| No payout information available.. |