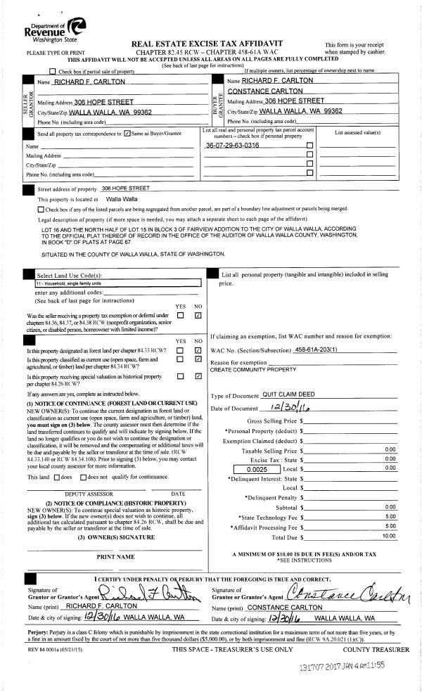
Property
Account |
| Property ID: | 29507 | Abbreviated Legal Description: | FAIRVIEW N1/2 OF LOT 15 BLK 3; LOT 16 BLK 3 |
| Parcel Number: | 360729630316 | Agent Code: | |
| Type: | Real | | |
| Tax Area: | 1 - OL-140-F | Land Use Code | 11 |
| Open Space: | N | DFL | N |
| Historic Property: | N | Remodel Property: | N |
| Multi-Family Redevelopment: | N | | |
| Township: | 7 | Section: | 29 |
| Range: | 36 |
Location |
| Address: | 306 HOPE ST WA 99362 | Mapsco: | |
| Neighborhood: | A Res | Map ID: | |
| Neighborhood CD: | 613011 |
Owner |
| Name: | CARLTON RICHARD F & CONSTANCE | Owner ID: | 60205 |
| Mailing Address: | 306 HOPE ST WALLA WALLA, WA 99362 | % Ownership: | 100.0000000000% |
| | | Exemptions: | |
Taxes and Assessment Details
Values
| (+) Improvement Homesite Value: | + | $0 | |
| (+) Improvement Non-Homesite Value: | + | $296,780 | |
| (+) Land Homesite Value: | + | $0 | |
| (+) Land Non-Homesite Value: | + | $81,000 | |
| (+) Curr Use (HS): | + | $0 | $0 |
| (+) Curr Use (NHS): | + | $0 | $0 |
| | | -------------------------- | |
| (=) Market Value: | = | $377,780 | |
| (–) Productivity Loss: | – | $0 | |
| | | -------------------------- | |
| (=) Subtotal: | = | $377,780 | |
| (+) Senior Appraised Value: | + | $0 | |
| (+) Non-Senior Appraised Value: | + | $377,780 | |
| | | -------------------------- | |
| (=) Total Appraised Value: | = | $377,780 | |
| (–) Senior Exemption Loss: | – | $0 | |
| (–) Exemption Loss: | – | $0 | |
| | | -------------------------- | |
| (=) Taxable Value: | = | $377,780 | |
Taxing Jurisdiction
| Owner: | CARLTON RICHARD F & CONSTANCE | | |
| % Ownership: | 100.0000000000% | | |
| Total Value: | $377,780 | | |
| Tax Area: | 1 - OL-140-F |
| CERFD | CURRENT EXPENSE REFUND 010 | 0.0000000000 | $377,780 | $377,780 | $0.00 | | |
| CURREXP | CURRENT EXPENSE 010 | 1.0175366760 | $377,780 | $377,780 | $384.41 | | |
| HUMNSERV | HUMAN SERVICES 119 | 0.0250000000 | $377,780 | $377,780 | $9.44 | | |
| SLDREL | SOLDIERS RELIEF 121 | 0.0155990005 | $377,780 | $377,780 | $5.89 | | |
| EMERGSER | EMS 147 | 0.3792580840 | $377,780 | $377,780 | $143.28 | | |
| EMSRFD | EMS REFUND 147 | 0.0000000000 | $377,780 | $377,780 | $0.00 | | |
| PORTRFD | PORT REFUND 640 | 0.0000000000 | $377,780 | $377,780 | $0.00 | | |
| PORTWWGEN | PORT OF WW 640 | 0.2460186015 | $377,780 | $377,780 | $92.94 | | |
| SD140BOND | SD #140 BOND 764 | 0.8342371393 | $377,780 | $377,780 | $315.16 | | |
| SD140GEN | SD #140 GENERAL 760 | 2.0646500647 | $377,780 | $377,780 | $779.98 | | |
| ST2 | STATE SCHOOL PART 2 600 | 0.8131451643 | $377,780 | $377,780 | $307.19 | | |
| STATESCHL | STATE SCHOOL 600 | 1.5158548041 | $377,780 | $377,780 | $572.66 | | |
| STREFUND | STATE REFUND LEVY 603 | 0.0000000000 | $377,780 | $377,780 | $0.00 | | |
| CWWBOND | C OF WW BOND 643 | 0.2760494372 | $377,780 | $377,780 | $104.29 | | |
| CWWGEN | CITY OF WW 631 | 1.6100204973 | $377,780 | $377,780 | $608.23 | | |
| CWWRFD | CITY OF WALLA WALLA REFUND 631 | 0.0000000000 | $377,780 | $377,780 | $0.00 | | |
| | Total Tax Rate: | 8.7973694689 | | | | | |
| | | | | Taxes w/Current Exemptions: | $3,323.47 | | |
| | | | | Taxes w/o Exemptions: | $3,323.47 | | |
Improvement / Building
| Improvement #1: | RESIDENTIAL | State Code: | 11 | 1465.0 sqft | Value: | $296,780 |
| Exterior Wall: | SIDING | Heating/Cooling: | WARM & COOLED AIR | | Number of Bathrooms: | 2 | Number of Bedrooms: | 3 | | Plumbing: | 9 | Roof Covering: | COMP SHINGLE |
|
| | Type | Description | Class CD | Sub Class CD | Year Built | Area |
| | MA | Main Area | 1 | 30 | 1957 | 1465.0 |
| | SI1 | SITE IMPROVEMENT | 1 | 30 | 1957 | 1.5 |
| | ATG | Attached Garage | 1 | 30 | 1957 | 725.0 |
| | WOD | Wood Deck | 1 | 30 | 1957 | 150.0 |
| | S1F | Single One Story Fireplace | 1 | 30 | 1957 | 1.0 |
| | OSP | Open | 1 | 30 | 1957 | 140.0 |
Sketch
Property Image
Land
| 1 | RES 1 | Converted: Residential | 0.2066 | 9000.00 | 0.00 | 0.00 | 1.00 | $81,000 | $0 |
Roll Value History
| 2026 | N/A | N/A | N/A | N/A | N/A |
| 2025 | $299,770 | $99,000 | $0 | $398,770 | $398,770 |
| 2024 | $296,780 | $81,000 | $0 | $377,780 | $377,780 |
| 2023 | $296,780 | $81,000 | $0 | $377,780 | $377,780 |
| 2022 | $247,320 | $65,250 | $0 | $312,570 | $312,570 |
| 2021 | $224,840 | $65,250 | $0 | $290,090 | $290,090 |
| 2020 | $172,950 | $65,250 | $0 | $238,200 | $238,200 |
| 2019 | $172,950 | $65,250 | $0 | $238,200 | $238,200 |
| 2018 | $135,420 | $46,300 | $0 | $181,720 | $181,720 |
| 2017 | $123,110 | $46,300 | $0 | $169,410 | $169,410 |
| 2016 | $102,590 | $46,300 | $0 | $148,890 | $148,890 |
| 2015 | $102,590 | $46,300 | $0 | $148,890 | $148,890 |
| 2014 | $99,600 | $46,300 | $0 | $145,900 | $145,900 |
| 2013 | $99,600 | $46,300 | $0 | $145,900 | $145,900 |
| 2012 | $113,600 | $46,300 | $0 | $0 | $0 |
| 2011 | $99,100 | $46,300 | $0 | $0 | $0 |
| 2010 | $99,100 | $46,300 | $0 | $0 | $0 |
| 2009 | $123,700 | $46,300 | $0 | $0 | $0 |
| 2008 | $123,700 | $46,300 | $0 | $0 | $0 |
| 2007 | $99,000 | $18,000 | $0 | $0 | $0 |
Deed and Sales History
| 1 | 12/30/2016 | QCD | QUIT CLAIM DEED | CARLTON RICHARD F | CARLTON RICHARD F & CONSTANCE | | | $0.00 | 131707 | 2017-00091 |
| 2 | 04/18/1994 | WARRANTY D | WARRANTY DEED | | | | | $98,500.00 | 81438 | 2189-404538 |
Payout Agreement
| No payout information available.. |