Property
Account |
| Property ID: | 29503 | Abbreviated Legal Description: | FAIRFIELD LOT 16 BLK 1 |
| Parcel Number: | 360729610116 | Agent Code: | |
| Type: | Real | | |
| Tax Area: | 1 - OL-140-F | Land Use Code | 11 |
| Open Space: | N | DFL | N |
| Historic Property: | N | Remodel Property: | N |
| Multi-Family Redevelopment: | N | | |
| Township: | 7 | Section: | 29 |
| Range: | 36 |
Location |
| Address: | 132 KENNETH ST WA 99362 | Mapsco: | |
| Neighborhood: | Fair Res | Map ID: | |
| Neighborhood CD: | 612011 |
Owner |
| Name: | BROOKSHIRE SARA | Owner ID: | 65657 |
| Mailing Address: | PHILLIP SCHMATT 132 KENNETH ST WALLA WALLA, WA 99362 | % Ownership: | 100.0000000000% |
| | | Exemptions: | |
Taxes and Assessment Details
Values
| (+) Improvement Homesite Value: | + | $135,310 | |
| (+) Improvement Non-Homesite Value: | + | $0 | |
| (+) Land Homesite Value: | + | $57,200 | |
| (+) Land Non-Homesite Value: | + | $0 | |
| (+) Curr Use (HS): | + | $0 | $0 |
| (+) Curr Use (NHS): | + | $0 | $0 |
| | | -------------------------- | |
| (=) Market Value: | = | $192,510 | |
| (–) Productivity Loss: | – | $0 | |
| | | -------------------------- | |
| (=) Subtotal: | = | $192,510 | |
| (+) Senior Appraised Value: | + | $0 | |
| (+) Non-Senior Appraised Value: | + | $192,510 | |
| | | -------------------------- | |
| (=) Total Appraised Value: | = | $192,510 | |
| (–) Senior Exemption Loss: | – | $0 | |
| (–) Exemption Loss: | – | $0 | |
| | | -------------------------- | |
| (=) Taxable Value: | = | $192,510 | |
Taxing Jurisdiction
| Owner: | BROOKSHIRE SARA | | |
| % Ownership: | 100.0000000000% | | |
| Total Value: | $192,510 | | |
| Tax Area: | 1 - OL-140-F |
| CERFD | CURRENT EXPENSE REFUND 010 | 0.0000000000 | $192,510 | $192,510 | $0.00 | | |
| CURREXP | CURRENT EXPENSE 010 | 1.0175366760 | $192,510 | $192,510 | $195.89 | | |
| HUMNSERV | HUMAN SERVICES 119 | 0.0250000000 | $192,510 | $192,510 | $4.81 | | |
| SLDREL | SOLDIERS RELIEF 121 | 0.0155990005 | $192,510 | $192,510 | $3.00 | | |
| EMERGSER | EMS 147 | 0.3792580840 | $192,510 | $192,510 | $73.01 | | |
| EMSRFD | EMS REFUND 147 | 0.0000000000 | $192,510 | $192,510 | $0.00 | | |
| PORTRFD | PORT REFUND 640 | 0.0000000000 | $192,510 | $192,510 | $0.00 | | |
| PORTWWGEN | PORT OF WW 640 | 0.2460186015 | $192,510 | $192,510 | $47.36 | | |
| SD140BOND | SD #140 BOND 764 | 0.8342371393 | $192,510 | $192,510 | $160.60 | | |
| SD140GEN | SD #140 GENERAL 760 | 2.0646500647 | $192,510 | $192,510 | $397.47 | | |
| ST2 | STATE SCHOOL PART 2 600 | 0.8131451643 | $192,510 | $192,510 | $156.54 | | |
| STATESCHL | STATE SCHOOL 600 | 1.5158548041 | $192,510 | $192,510 | $291.82 | | |
| STREFUND | STATE REFUND LEVY 603 | 0.0000000000 | $192,510 | $192,510 | $0.00 | | |
| CWWBOND | C OF WW BOND 643 | 0.2760494372 | $192,510 | $192,510 | $53.14 | | |
| CWWGEN | CITY OF WW 631 | 1.6100204973 | $192,510 | $192,510 | $309.95 | | |
| CWWRFD | CITY OF WALLA WALLA REFUND 631 | 0.0000000000 | $192,510 | $192,510 | $0.00 | | |
| | Total Tax Rate: | 8.7973694689 | | | | | |
| | | | | Taxes w/Current Exemptions: | $1,693.59 | | |
| | | | | Taxes w/o Exemptions: | $1,693.59 | | |
Improvement / Building
| Improvement #1: | RESIDENTIAL | State Code: | 11 | 750.0 sqft | Value: | $135,310 |
| Exterior Wall: | VINYL | Heating/Cooling: | STOVE-NO HEAT | | Number of Bathrooms: | 1 | Number of Bedrooms: | 2 | | Plumbing: | 7 | Roof Covering: | COMP SHINGLE |
|
| | Type | Description | Class CD | Sub Class CD | Year Built | Area |
| | MA | Main Area | 1 | 25 | 1954 | 750.0 |
| | SI1 | SITE IMPROVEMENT | 1 | 25 | 1954 | 1.0 |
| | DTG | Detached Garage | 1 | 25 | 1954 | 396.0 |
| | RPS | PORCH W/STEPS,ROOF | 1 | 25 | 1954 | 30.0 |
| | WDR | WOOD DECK W/ROOF | 1 | 25 | 1954 | 240.0 |
Sketch
Property Image
Land
| 1 | RES 1 | Converted: Residential | 0.1641 | 7150.00 | 0.00 | 0.00 | 1.00 | $57,200 | $0 |
Roll Value History
| 2026 | N/A | N/A | N/A | N/A | N/A |
| 2025 | $147,010 | $71,500 | $0 | $218,510 | $218,510 |
| 2024 | $135,310 | $57,200 | $0 | $192,510 | $192,510 |
| 2023 | $135,310 | $57,200 | $0 | $192,510 | $192,510 |
| 2022 | $135,310 | $44,690 | $0 | $180,000 | $180,000 |
| 2021 | $123,010 | $44,690 | $0 | $167,700 | $167,700 |
| 2020 | $102,510 | $44,690 | $0 | $147,200 | $147,200 |
| 2019 | $102,510 | $44,690 | $0 | $147,200 | $147,200 |
| 2018 | $84,560 | $42,900 | $0 | $127,460 | $127,460 |
| 2017 | $76,880 | $42,900 | $0 | $119,780 | $0 |
| 2016 | $61,500 | $42,900 | $0 | $104,400 | $0 |
| 2015 | $61,500 | $42,900 | $0 | $104,400 | $0 |
| 2014 | $41,000 | $42,900 | $0 | $83,900 | $0 |
| 2013 | $41,000 | $42,900 | $0 | $83,900 | $0 |
| 2012 | $56,600 | $42,900 | $0 | $0 | $0 |
| 2011 | $56,600 | $42,900 | $0 | $0 | $0 |
| 2010 | $56,600 | $42,900 | $0 | $0 | $0 |
| 2009 | $67,700 | $42,900 | $0 | $0 | $0 |
| 2008 | $67,700 | $42,900 | $0 | $0 | $0 |
| 2007 | $42,800 | $14,300 | $0 | $0 | $0 |
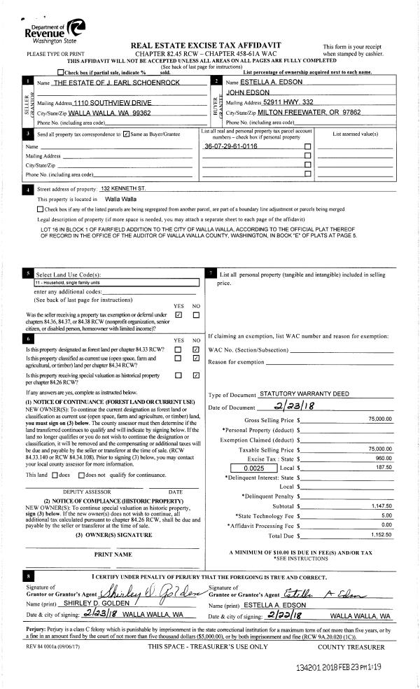
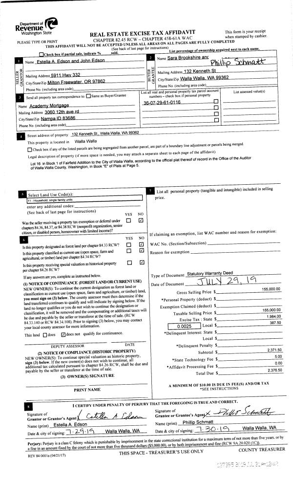
Deed and Sales History
| 1 | 07/31/2019 | SWD | STATUTORY WARRANTY DEED | EDSON JOHN P & ESTELLA A | BROOKSHIRE SARA | | | $155,000.00 | 137395 | 2019-05630 |
| 2 | 02/23/2018 | SWD | STATUTORY WARRANTY DEED | SCHOENROCK J EARL ESTATE OF | EDSON JOHN P & ESTELLA A | | | $75,000.00 | 134201 | 2018-01502 |
| 3 | 07/02/1990 | WARRANTY D | WARRANTY DEED | | | | | $15,000.00 | 0 | 1839-004480 |
Payout Agreement
| No payout information available.. |