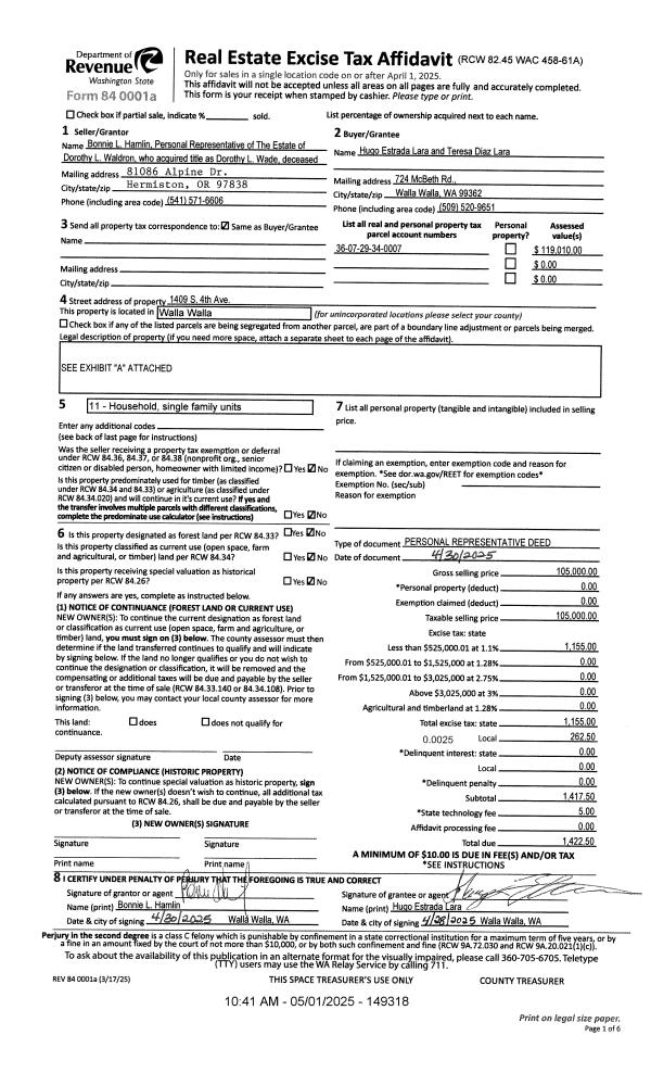
Property
Account |
| Property ID: | 29498 | Abbreviated Legal Description: | 29-7-36 TAX 68E |
| Parcel Number: | 360729340007 | Agent Code: | |
| Type: | Real | | |
| Tax Area: | 105 - 140-F-4 | Land Use Code | 11 |
| Open Space: | N | DFL | N |
| Historic Property: | N | Remodel Property: | N |
| Multi-Family Redevelopment: | N | | |
| Township: | 7 | Section: | 29 |
| Range: | 36 |
Location |
| Address: | 1409 S 4TH AVE WA 99362 | Mapsco: | |
| Neighborhood: | Fair Res | Map ID: | |
| Neighborhood CD: | 612011 |
Owner |
| Name: | WALDRON DOROTHY L ESTATE OF | Owner ID: | 11885 |
| Mailing Address: | 1409 S 4TH WALLA WALLA, WA 99362 | % Ownership: | 100.0000000000% |
| | | Exemptions: | SNR/DSBL |
Taxes and Assessment Details
Values
| (+) Improvement Homesite Value: | + | $54,210 | |
| (+) Improvement Non-Homesite Value: | + | $0 | |
| (+) Land Homesite Value: | + | $64,800 | |
| (+) Land Non-Homesite Value: | + | $0 | |
| (+) Curr Use (HS): | + | $0 | $0 |
| (+) Curr Use (NHS): | + | $0 | $0 |
| | | -------------------------- | |
| (=) Market Value: | = | $119,010 | |
| (–) Productivity Loss: | – | $0 | |
| | | -------------------------- | |
| (=) Subtotal: | = | $119,010 | |
| (+) Senior Appraised Value: | + | $33,900 | |
| (+) Non-Senior Appraised Value: | + | $0 | |
| | | -------------------------- | |
| (=) Total Appraised Value: | = | $33,900 | |
| (–) Senior Exemption Loss: | – | $33,900 | |
| (–) Exemption Loss: | – | $0 | |
| | | -------------------------- | |
| (=) Taxable Value: | = | $0 | |
Taxing Jurisdiction
| Owner: | WALDRON DOROTHY L ESTATE OF | | |
| % Ownership: | 100.0000000000% | | |
| Total Value: | $119,010 | | |
| Tax Area: | 105 - 140-F-4 |
| CERFD | CURRENT EXPENSE REFUND 010 | 0.0000000000 | $119,010 | $0 | $0.00 | | |
| CURREXP | CURRENT EXPENSE 010 | 1.0175366760 | $119,010 | $0 | $96.94 | | |
| HUMNSERV | HUMAN SERVICES 119 | 0.0250000000 | $119,010 | $0 | $2.38 | | |
| SLDREL | SOLDIERS RELIEF 121 | 0.0155990005 | $119,010 | $0 | $1.49 | | |
| EMERGSER | EMS 147 | 0.3792580840 | $119,010 | $0 | $36.13 | | |
| EMSRFD | EMS REFUND 147 | 0.0000000000 | $119,010 | $0 | $0.00 | | |
| FD4EXP | FD #4 EXPENSE 686 | 0.8836993059 | $119,010 | $0 | $84.19 | | |
| RLBRFD | RURAL LIBRARY REFUND 623 | 0.0000000000 | $119,010 | $0 | $0.00 | | |
| RURALLIB | RURAL LIBRARY 623 | 0.3710609029 | $119,010 | $0 | $35.35 | | |
| PORTRFD | PORT REFUND 640 | 0.0000000000 | $119,010 | $0 | $0.00 | | |
| PORTWWGEN | PORT OF WW 640 | 0.2460186015 | $119,010 | $0 | $23.44 | | |
| SD140BOND | SD #140 BOND 764 | 0.0000000000 | $119,010 | $0 | $79.48 | | |
| SD140GEN | SD #140 GENERAL 760 | 0.0000000000 | $119,010 | $0 | $196.71 | | |
| ST2 | STATE SCHOOL PART 2 600 | 0.0000000000 | $119,010 | $0 | $77.47 | | |
| STATESCHL | STATE SCHOOL 600 | 1.5158548041 | $119,010 | $0 | $144.42 | | |
| STREFUND | STATE REFUND LEVY 603 | 0.0000000000 | $119,010 | $0 | $0.00 | | |
| COROAD | COUNTY ROAD 115 | 1.6549953990 | $119,010 | $0 | $157.68 | | |
| CRPRD | COUNTY ROAD REFUND 115 | 0.0000000000 | $119,010 | $0 | $0.00 | | |
| | Total Tax Rate: | 6.1090227739 | | | | | |
| | | | | Taxes w/Current Exemptions: | $935.68 | | |
| | | | | Taxes w/o Exemptions: | $1,168.81 | | |
Improvement / Building
| Improvement #1: | RESIDENTIAL | State Code: | 11 | 930.0 sqft | Value: | $54,210 |
| Exterior Wall: | STUCCO | Foundation: | POST & PIER | | Heating/Cooling: | STOVE-NO HEAT | Number of Bathrooms: | 1 | | Number of Bedrooms: | 2 | Plumbing: | 7 | | Roof Covering: | METAL ROOFING |   |   |
|
| | Type | Description | Class CD | Sub Class CD | Year Built | Area |
| | MA | Main Area | 1 | 15 | 1948 | 930.0 |
| | SI1 | SITE IMPROVEMENT | 1 | 15 | 1948 | 1.0 |
| | UTST | Utility Storage Shed | 1 | 15 | 1948 | 192.0 |
| | OSP | Open | 1 | 15 | 1948 | 36.0 |
Sketch
Property Image
Land
| 1 | RES 1 | Converted: Residential | 0.1860 | 8100.00 | 0.00 | 0.00 | 1.00 | $64,800 | $0 |
Roll Value History
| 2026 | N/A | N/A | N/A | N/A | N/A |
| 2025 | $38,810 | $81,000 | $0 | $119,810 | $119,810 |
| 2024 | $54,210 | $64,800 | $0 | $119,010 | $119,010 |
| 2023 | $54,210 | $64,800 | $0 | $119,010 | $0 |
| 2022 | $54,210 | $50,630 | $0 | $104,840 | $0 |
| 2021 | $38,720 | $50,630 | $0 | $89,350 | $0 |
| 2020 | $32,270 | $50,630 | $0 | $82,900 | $0 |
| 2019 | $32,270 | $50,630 | $0 | $82,900 | $0 |
| 2018 | $20,130 | $45,500 | $0 | $65,630 | $0 |
| 2017 | $20,130 | $45,500 | $0 | $65,630 | $0 |
| 2016 | $20,130 | $45,500 | $0 | $65,630 | $0 |
| 2015 | $18,300 | $45,500 | $0 | $63,800 | $0 |
| 2014 | $18,300 | $45,500 | $0 | $63,800 | $0 |
| 2013 | $18,300 | $45,500 | $0 | $63,800 | $0 |
| 2012 | $34,200 | $45,500 | $0 | $0 | $0 |
| 2011 | $34,200 | $45,500 | $0 | $0 | $0 |
| 2010 | $34,200 | $45,500 | $0 | $0 | $0 |
| 2009 | $43,100 | $45,500 | $0 | $0 | $0 |
| 2008 | $43,100 | $45,500 | $0 | $0 | $0 |
| 2007 | $43,700 | $16,200 | $0 | $0 | $0 |
Deed and Sales History
| 1 | 05/01/2025 | DPR | DEED OF PERSONAL REPRESENTATIVE | WALDRON DOROTHY L ESTATE OF | LARA HUGO ESTRADA & TERESA DIAZ | | | $105,000.00 | 149318 | 2025-02355 |
| 2 | 08/15/1974 | WARRANTY D | WARRANTY DEED | | | | | $0.00 | 0 | 1905-39097 |
Payout Agreement
| No payout information available.. |