Property
Account |
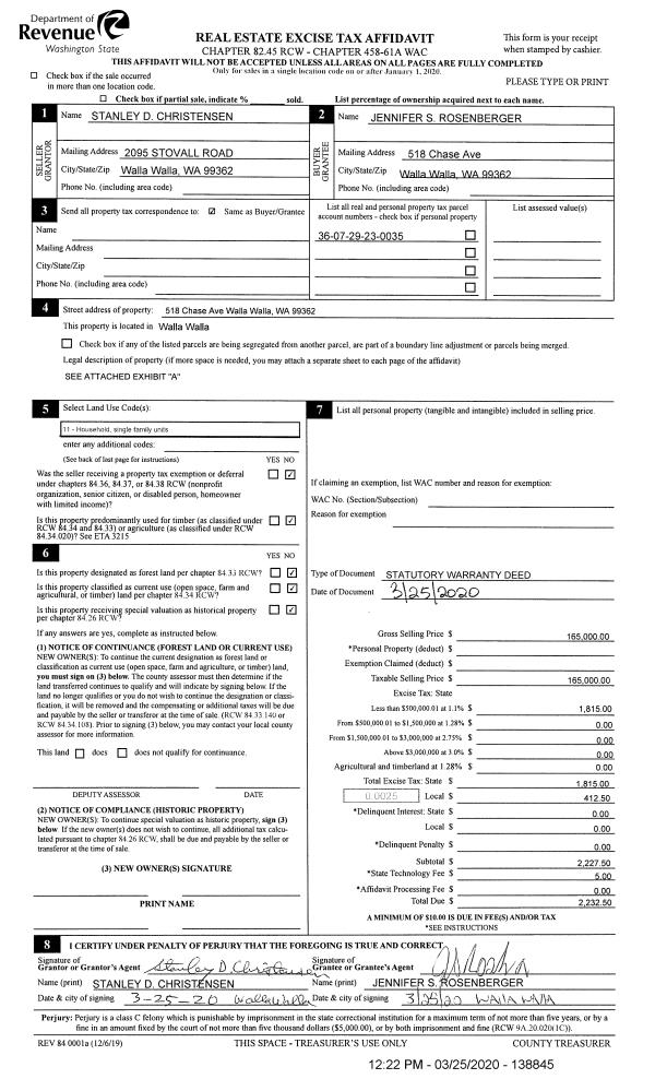
| Property ID: | 29496 | Abbreviated Legal Description: | 29-7-36 TAX 158 |
| Parcel Number: | 360729230035 | Agent Code: | |
| Type: | Real | | |
| Tax Area: | 1 - OL-140-F | Land Use Code | 11 |
| Open Space: | N | DFL | N |
| Historic Property: | N | Remodel Property: | N |
| Multi-Family Redevelopment: | N | | |
| Township: | 7 | Section: | 29 |
| Range: | 36 |
Location |
| Address: | 518 CHASE AVE WA 99362 | Mapsco: | |
| Neighborhood: | Fair Res | Map ID: | |
| Neighborhood CD: | 612011 |
Owner |
| Name: | GUEVARA F ROBERTO ANTONIO | Owner ID: | 69283 |
| Mailing Address: | 518 CHASE AVE WALLA WALLA, WA 99362 | % Ownership: | 100.0000000000% |
| | | Exemptions: | |
Taxes and Assessment Details
Values
| (+) Improvement Homesite Value: | + | $0 | |
| (+) Improvement Non-Homesite Value: | + | $187,730 | |
| (+) Land Homesite Value: | + | $0 | |
| (+) Land Non-Homesite Value: | + | $49,920 | |
| (+) Curr Use (HS): | + | $0 | $0 |
| (+) Curr Use (NHS): | + | $0 | $0 |
| | | -------------------------- | |
| (=) Market Value: | = | $237,650 | |
| (–) Productivity Loss: | – | $0 | |
| | | -------------------------- | |
| (=) Subtotal: | = | $237,650 | |
| (+) Senior Appraised Value: | + | $0 | |
| (+) Non-Senior Appraised Value: | + | $237,650 | |
| | | -------------------------- | |
| (=) Total Appraised Value: | = | $237,650 | |
| (–) Senior Exemption Loss: | – | $0 | |
| (–) Exemption Loss: | – | $0 | |
| | | -------------------------- | |
| (=) Taxable Value: | = | $237,650 | |
Taxing Jurisdiction
| Owner: | GUEVARA F ROBERTO ANTONIO | | |
| % Ownership: | 100.0000000000% | | |
| Total Value: | $237,650 | | |
| Tax Area: | 1 - OL-140-F |
| CERFD | CURRENT EXPENSE REFUND 010 | 0.0000000000 | $237,650 | $237,650 | $0.00 | | |
| CURREXP | CURRENT EXPENSE 010 | 1.0175366760 | $237,650 | $237,650 | $241.82 | | |
| HUMNSERV | HUMAN SERVICES 119 | 0.0250000000 | $237,650 | $237,650 | $5.94 | | |
| SLDREL | SOLDIERS RELIEF 121 | 0.0155990005 | $237,650 | $237,650 | $3.71 | | |
| EMERGSER | EMS 147 | 0.3792580840 | $237,650 | $237,650 | $90.13 | | |
| EMSRFD | EMS REFUND 147 | 0.0000000000 | $237,650 | $237,650 | $0.00 | | |
| PORTRFD | PORT REFUND 640 | 0.0000000000 | $237,650 | $237,650 | $0.00 | | |
| PORTWWGEN | PORT OF WW 640 | 0.2460186015 | $237,650 | $237,650 | $58.47 | | |
| SD140BOND | SD #140 BOND 764 | 0.8342371393 | $237,650 | $237,650 | $198.26 | | |
| SD140GEN | SD #140 GENERAL 760 | 2.0646500647 | $237,650 | $237,650 | $490.66 | | |
| ST2 | STATE SCHOOL PART 2 600 | 0.8131451643 | $237,650 | $237,650 | $193.24 | | |
| STATESCHL | STATE SCHOOL 600 | 1.5158548041 | $237,650 | $237,650 | $360.24 | | |
| STREFUND | STATE REFUND LEVY 603 | 0.0000000000 | $237,650 | $237,650 | $0.00 | | |
| CWWBOND | C OF WW BOND 643 | 0.2760494372 | $237,650 | $237,650 | $65.60 | | |
| CWWGEN | CITY OF WW 631 | 1.6100204973 | $237,650 | $237,650 | $382.62 | | |
| CWWRFD | CITY OF WALLA WALLA REFUND 631 | 0.0000000000 | $237,650 | $237,650 | $0.00 | | |
| | Total Tax Rate: | 8.7973694689 | | | | | |
| | | | | Taxes w/Current Exemptions: | $2,090.69 | | |
| | | | | Taxes w/o Exemptions: | $2,090.69 | | |
Improvement / Building
| Improvement #1: | RESIDENTIAL | State Code: | 11 | 956.0 sqft | Value: | $187,730 |
| Exterior Wall: | VINYL | Heating/Cooling: | HEAT PUMP | | Number of Bathrooms: | 1 | Number of Bedrooms: | 2 | | Plumbing: | 7 | Roof Covering: | COMP SHINGLE |
|
| | Type | Description | Class CD | Sub Class CD | Year Built | Area |
| | MA | Main Area | 1 | 20 | 1900 | 956.0 |
| | SI1 | SITE IMPROVEMENT | 1 | 20 | 1900 | 1.5 |
| | OSP | Open | 1 | 20 | 1900 | 200.0 |
| | WDR | WOOD DECK W/ROOF | 1 | 20 | 1900 | 84.0 |
Sketch
Property Image
Land
| 1 | RES 1 | Converted: Residential | 0.1433 | 6240.00 | 0.00 | 0.00 | 1.00 | $49,920 | $0 |
Roll Value History
| 2026 | N/A | N/A | N/A | N/A | N/A |
| 2025 | $177,050 | $62,400 | $0 | $239,450 | $239,450 |
| 2024 | $187,730 | $49,920 | $0 | $237,650 | $237,650 |
| 2023 | $187,730 | $49,920 | $0 | $237,650 | $237,650 |
| 2022 | $178,790 | $39,000 | $0 | $217,790 | $217,790 |
| 2021 | $162,540 | $39,000 | $0 | $201,540 | $201,540 |
| 2020 | $116,100 | $39,000 | $0 | $155,100 | $155,100 |
| 2019 | $53,200 | $39,000 | $0 | $92,200 | $92,200 |
| 2018 | $88,570 | $37,400 | $0 | $125,970 | $125,970 |
| 2017 | $80,520 | $37,400 | $0 | $117,920 | $117,920 |
| 2016 | $67,100 | $37,400 | $0 | $104,500 | $0 |
| 2015 | $67,100 | $37,400 | $0 | $104,500 | $0 |
| 2014 | $67,100 | $37,400 | $0 | $104,500 | $0 |
| 2013 | $67,100 | $37,400 | $0 | $104,500 | $0 |
| 2012 | $67,100 | $37,400 | $0 | $0 | $0 |
| 2011 | $67,100 | $37,400 | $0 | $0 | $0 |
| 2010 | $67,100 | $37,400 | $0 | $0 | $0 |
| 2009 | $78,700 | $37,400 | $0 | $0 | $0 |
| 2008 | $78,700 | $37,400 | $0 | $0 | $0 |
| 2007 | $49,600 | $12,500 | $0 | $0 | $0 |
Deed and Sales History
| 1 | 04/27/2021 | SWD | STATUTORY WARRANTY DEED | ROSENBERGER JENNIFER S | GUEVARA F ROBERTO ANTONIO | | | $210,000.00 | 141435 | 2021-04947 |
| 2 | 03/25/2020 | SWD | STATUTORY WARRANTY DEED | CHRISTENSEN STANLEY D | ROSENBERGER JENNIFER S | | | $165,000.00 | 138845 | 2020-02639 |
| 3 | 06/13/2019 | SWD | STATUTORY WARRANTY DEED | STEVENS RICHARD ET AL | CHRISTENSEN STANLEY D | | | $59,000.00 | 137068 | 2019-04102 |
| 4 | 06/13/2019 | QCD | QUIT CLAIM DEED | CHRISTENSEN DEBBIE L | CHRISTENSEN STANLEY D | | | | 137067 | 2019-04103 |
| 5 | 11/19/2018 | DPR | DEED OF PERSONAL REPRESENTATIVE | STEVENS ALICE | STEVENS RICHARD ET AL | | | $0.00 | 135969 | 2018-09598 |
| 6 | 06/08/2018 | LOPA | LACK OF PROBATE AFFIDAVIT | STEVENS DICK D & ALICE | STEVENS ALICE | | | | 0 | 2018-04605 |
| 7 | 06/10/1970 | WARRANTY D | WARRANTY DEED | | | | | $6,200.00 | 31564 | 3130-465690 |
Payout Agreement
| No payout information available.. |