Property
Account |
| Property ID: | 29492 | Abbreviated Legal Description: | MTN VIEW TAX 11 LOT 17 BLK 14 |
| Parcel Number: | 360728851417 | Agent Code: | |
| Type: | Real | | |
| Tax Area: | 1 - OL-140-F | Land Use Code | 11 |
| Open Space: | N | DFL | N |
| Historic Property: | N | Remodel Property: | N |
| Multi-Family Redevelopment: | N | | |
| Township: | 7 | Section: | 28 |
| Range: | 36 |
Location |
| Address: | 519 SHERIDAN RD WA 99362 | Mapsco: | |
| Neighborhood: | A Res | Map ID: | |
| Neighborhood CD: | 613011 |
Owner |
| Name: | SNIDER DONALD L | Owner ID: | 12192 |
| Mailing Address: | 519 SHERIDAN RD WALLA WALLA, WA 99362 | % Ownership: | 100.0000000000% |
| | | Exemptions: | |
Taxes and Assessment Details
Property Tax Information as of
02/21/2026
Click on "Statement Details" to expand or collapse a tax statement.
* Please enter a valid date ** Please enter a valid date *
Statement Details |
| | TOTAL: | $0.00 | $0.00 | $0.00 | $0.00 | $0.00 | $0.00 |
|
| | $0.00 | $0.00 | $0.00 | $0.00 | $0.00 | $0.00 |
Values
| (+) Improvement Homesite Value: | + | $231,720 | |
| (+) Improvement Non-Homesite Value: | + | $0 | |
| (+) Land Homesite Value: | + | $79,560 | |
| (+) Land Non-Homesite Value: | + | $0 | |
| (+) Curr Use (HS): | + | $0 | $0 |
| (+) Curr Use (NHS): | + | $0 | $0 |
| | | -------------------------- | |
| (=) Market Value: | = | $311,280 | |
| (–) Productivity Loss: | – | $0 | |
| | | -------------------------- | |
| (=) Subtotal: | = | $311,280 | |
| (+) Senior Appraised Value: | + | $0 | |
| (+) Non-Senior Appraised Value: | + | $311,280 | |
| | | -------------------------- | |
| (=) Total Appraised Value: | = | $311,280 | |
| (–) Senior Exemption Loss: | – | $0 | |
| (–) Exemption Loss: | – | $0 | |
| | | -------------------------- | |
| (=) Taxable Value: | = | $311,280 | |
Taxing Jurisdiction
| Owner: | SNIDER DONALD L | | |
| % Ownership: | 100.0000000000% | | |
| Total Value: | $311,280 | | |
| Tax Area: | 1 - OL-140-F |
| CERFD | CURRENT EXPENSE REFUND 010 | 0.0000000000 | $311,280 | $311,280 | $0.00 | | |
| CURREXP | CURRENT EXPENSE 010 | 1.0175366760 | $311,280 | $311,280 | $316.74 | | |
| HUMNSERV | HUMAN SERVICES 119 | 0.0250000000 | $311,280 | $311,280 | $7.78 | | |
| SLDREL | SOLDIERS RELIEF 121 | 0.0155990005 | $311,280 | $311,280 | $4.86 | | |
| EMERGSER | EMS 147 | 0.3792580840 | $311,280 | $311,280 | $118.06 | | |
| EMSRFD | EMS REFUND 147 | 0.0000000000 | $311,280 | $311,280 | $0.00 | | |
| PORTRFD | PORT REFUND 640 | 0.0000000000 | $311,280 | $311,280 | $0.00 | | |
| PORTWWGEN | PORT OF WW 640 | 0.2460186015 | $311,280 | $311,280 | $76.58 | | |
| SD140BOND | SD #140 BOND 764 | 0.8342371393 | $311,280 | $311,280 | $259.68 | | |
| SD140GEN | SD #140 GENERAL 760 | 2.0646500647 | $311,280 | $311,280 | $642.68 | | |
| ST2 | STATE SCHOOL PART 2 600 | 0.8131451643 | $311,280 | $311,280 | $253.12 | | |
| STATESCHL | STATE SCHOOL 600 | 1.5158548041 | $311,280 | $311,280 | $471.86 | | |
| STREFUND | STATE REFUND LEVY 603 | 0.0000000000 | $311,280 | $311,280 | $0.00 | | |
| CWWBOND | C OF WW BOND 643 | 0.2760494372 | $311,280 | $311,280 | $85.93 | | |
| CWWGEN | CITY OF WW 631 | 1.6100204973 | $311,280 | $311,280 | $501.17 | | |
| CWWRFD | CITY OF WALLA WALLA REFUND 631 | 0.0000000000 | $311,280 | $311,280 | $0.00 | | |
| | Total Tax Rate: | 8.7973694689 | | | | | |
| | | | | Taxes w/Current Exemptions: | $2,738.46 | | |
| | | | | Taxes w/o Exemptions: | $2,738.46 | | |
Improvement / Building
| Improvement #1: | RESIDENTIAL | State Code: | 11 | 1104.0 sqft | Value: | $231,720 |
| Exterior Wall: | VINYL | Heating/Cooling: | WARM & COOLED AIR | | Number of Bathrooms: | 1 | Number of Bedrooms: | 3 | | Plumbing: | 6 | Roof Covering: | COMP SHINGLE |
|
| | Type | Description | Class CD | Sub Class CD | Year Built | Area |
| | MA | Main Area | 1 | 30 | 1951 | 1104.0 |
| | SI1 | SITE IMPROVEMENT | 1 | 30 | 1951 | 2.0 |
| | BASE | BASEMENT | 1 | 30 | 1951 | 825.0 |
| | DTG | Detached Garage | 1 | 30 | 1951 | 440.0 |
| | S1F | Single One Story Fireplace | 1 | 30 | 1951 | 1.0 |
| | RPC | OPEN PORCH W/ROOF , CEILED | 1 | 30 | 1951 | 30.0 |
Sketch
Property Image
Land
| 1 | RES 1 | Converted: Residential | 0.2029 | 8840.00 | 0.00 | 0.00 | 1.00 | $79,560 | $0 |
Roll Value History
| 2026 | N/A | N/A | N/A | N/A | N/A |
| 2025 | $225,280 | $97,240 | $0 | $322,520 | $322,520 |
| 2024 | $231,720 | $79,560 | $0 | $311,280 | $311,280 |
| 2023 | $231,720 | $79,560 | $0 | $311,280 | $311,280 |
| 2022 | $185,370 | $64,090 | $0 | $249,460 | $249,460 |
| 2021 | $185,370 | $64,090 | $0 | $249,460 | $249,460 |
| 2020 | $132,410 | $64,090 | $0 | $196,500 | $53,080 |
| 2019 | $132,410 | $64,090 | $0 | $196,500 | $53,080 |
| 2018 | $128,620 | $46,100 | $0 | $174,720 | $53,080 |
| 2017 | $111,840 | $46,100 | $0 | $157,940 | $53,080 |
| 2016 | $93,200 | $46,100 | $0 | $139,300 | $53,080 |
| 2015 | $93,200 | $46,100 | $0 | $139,300 | $53,080 |
| 2014 | $93,200 | $46,100 | $0 | $139,300 | $53,080 |
| 2013 | $93,200 | $46,100 | $0 | $139,300 | $53,080 |
| 2012 | $93,200 | $46,100 | $0 | $0 | $0 |
| 2011 | $93,200 | $46,100 | $0 | $0 | $0 |
| 2010 | $86,600 | $46,100 | $0 | $0 | $0 |
| 2009 | $101,300 | $46,100 | $0 | $0 | $0 |
| 2008 | $101,300 | $46,100 | $0 | $0 | $0 |
| 2007 | $70,000 | $23,600 | $0 | $0 | $0 |
Deed and Sales History
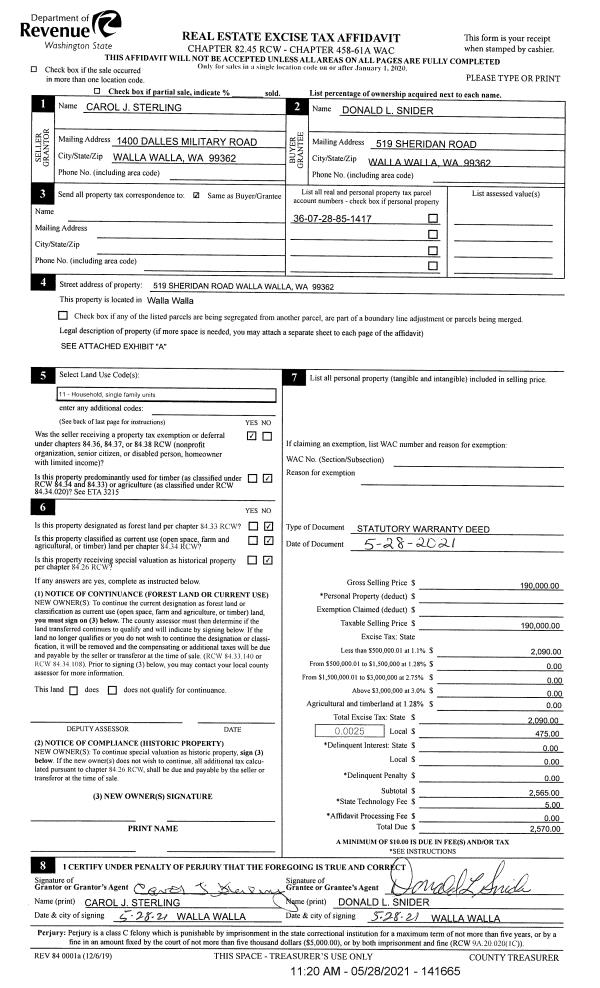
| 1 | 05/28/2021 | SWD | STATUTORY WARRANTY DEED | STERLING CAROL J | SNIDER DONALD L | | | $190,000.00 | 141665 | 2021-06512 |
| 2 | 01/10/1963 | WARRANTY D | WARRANTY DEED | | | | | $16,075.00 | 0 | 2990-433192 |
Payout Agreement
| No payout information available.. |