Property
Account |
| Property ID: | 29491 | Abbreviated Legal Description: | MTN VIEW LOT 4 AND W 1/2 OF LOT 5 BLK 8 |
| Parcel Number: | 360728850804 | Agent Code: | |
| Type: | Real | | |
| Tax Area: | 1 - OL-140-F | Land Use Code | 11 |
| Open Space: | N | DFL | N |
| Historic Property: | N | Remodel Property: | N |
| Multi-Family Redevelopment: | N | | |
| Township: | 7 | Section: | 28 |
| Range: | 36 |
Location |
| Address: | 614 LIBERTY ST WA 99362 | Mapsco: | |
| Neighborhood: | A Res | Map ID: | |
| Neighborhood CD: | 613011 |
Owner |
| Name: | ESCALANTE TONY | Owner ID: | 65260 |
| Mailing Address: | ASHLEY CESNA 614 LIBERTY ST WALLA WALLA, WA 99362 | % Ownership: | 100.0000000000% |
| | | Exemptions: | |
Taxes and Assessment Details
Values
| (+) Improvement Homesite Value: | + | $202,360 | |
| (+) Improvement Non-Homesite Value: | + | $0 | |
| (+) Land Homesite Value: | + | $77,630 | |
| (+) Land Non-Homesite Value: | + | $0 | |
| (+) Curr Use (HS): | + | $0 | $0 |
| (+) Curr Use (NHS): | + | $0 | $0 |
| | | -------------------------- | |
| (=) Market Value: | = | $279,990 | |
| (–) Productivity Loss: | – | $0 | |
| | | -------------------------- | |
| (=) Subtotal: | = | $279,990 | |
| (+) Senior Appraised Value: | + | $0 | |
| (+) Non-Senior Appraised Value: | + | $279,990 | |
| | | -------------------------- | |
| (=) Total Appraised Value: | = | $279,990 | |
| (–) Senior Exemption Loss: | – | $0 | |
| (–) Exemption Loss: | – | $0 | |
| | | -------------------------- | |
| (=) Taxable Value: | = | $279,990 | |
Taxing Jurisdiction
| Owner: | ESCALANTE TONY | | |
| % Ownership: | 100.0000000000% | | |
| Total Value: | $279,990 | | |
| Tax Area: | 1 - OL-140-F |
| CERFD | CURRENT EXPENSE REFUND 010 | 0.0000000000 | $279,990 | $279,990 | $0.00 | | |
| CURREXP | CURRENT EXPENSE 010 | 1.0175366760 | $279,990 | $279,990 | $284.90 | | |
| HUMNSERV | HUMAN SERVICES 119 | 0.0250000000 | $279,990 | $279,990 | $7.00 | | |
| SLDREL | SOLDIERS RELIEF 121 | 0.0155990005 | $279,990 | $279,990 | $4.37 | | |
| EMERGSER | EMS 147 | 0.3792580840 | $279,990 | $279,990 | $106.19 | | |
| EMSRFD | EMS REFUND 147 | 0.0000000000 | $279,990 | $279,990 | $0.00 | | |
| PORTRFD | PORT REFUND 640 | 0.0000000000 | $279,990 | $279,990 | $0.00 | | |
| PORTWWGEN | PORT OF WW 640 | 0.2460186015 | $279,990 | $279,990 | $68.88 | | |
| SD140BOND | SD #140 BOND 764 | 0.8342371393 | $279,990 | $279,990 | $233.58 | | |
| SD140GEN | SD #140 GENERAL 760 | 2.0646500647 | $279,990 | $279,990 | $578.08 | | |
| ST2 | STATE SCHOOL PART 2 600 | 0.8131451643 | $279,990 | $279,990 | $227.67 | | |
| STATESCHL | STATE SCHOOL 600 | 1.5158548041 | $279,990 | $279,990 | $424.42 | | |
| STREFUND | STATE REFUND LEVY 603 | 0.0000000000 | $279,990 | $279,990 | $0.00 | | |
| CWWBOND | C OF WW BOND 643 | 0.2760494372 | $279,990 | $279,990 | $77.29 | | |
| CWWGEN | CITY OF WW 631 | 1.6100204973 | $279,990 | $279,990 | $450.79 | | |
| CWWRFD | CITY OF WALLA WALLA REFUND 631 | 0.0000000000 | $279,990 | $279,990 | $0.00 | | |
| | Total Tax Rate: | 8.7973694689 | | | | | |
| | | | | Taxes w/Current Exemptions: | $2,463.17 | | |
| | | | | Taxes w/o Exemptions: | $2,463.17 | | |
Improvement / Building
| Improvement #1: | RESIDENTIAL | State Code: | 11 | 1052.0 sqft | Value: | $202,360 |
| Exterior Wall: | SIDING | Foundation: | SLAB FOUNDATION | | Heating/Cooling: | FORCED AIR | Number of Bathrooms: | 1 | | Number of Bedrooms: | 2 | Plumbing: | 6 | | Roof Covering: | COMP SHINGLE |   |   |
|
| | Type | Description | Class CD | Sub Class CD | Year Built | Area |
| | MA | Main Area | 1 | 30 | 1949 | 1052.0 |
| | SI1 | SITE IMPROVEMENT | 1 | 30 | 1949 | 1.5 |
| | RPO | OPEN PORCH W/ROOF | 1 | 30 | 1949 | 25.0 |
| | CPC | COVERED CARPORT/PATIO | 1 | 30 | 1949 | 280.0 |
| | CPC | COVERED CARPORT/PATIO | 1 | 30 | 1949 | 483.0 |
Sketch
Property Image
Land
| 1 | RES 1 | Converted: Residential | 0.1980 | 8625.00 | 0.00 | 0.00 | 1.00 | $77,630 | $0 |
Roll Value History
| 2026 | N/A | N/A | N/A | N/A | N/A |
| 2025 | $181,760 | $94,880 | $0 | $276,640 | $276,640 |
| 2024 | $202,360 | $77,630 | $0 | $279,990 | $279,990 |
| 2023 | $202,360 | $77,630 | $0 | $279,990 | $279,990 |
| 2022 | $192,730 | $62,530 | $0 | $255,260 | $255,260 |
| 2021 | $154,180 | $62,530 | $0 | $216,710 | $216,710 |
| 2020 | $110,130 | $62,530 | $0 | $172,660 | $172,660 |
| 2019 | $110,130 | $62,530 | $0 | $172,660 | $172,660 |
| 2018 | $100,670 | $46,000 | $0 | $146,670 | $146,670 |
| 2017 | $91,520 | $46,000 | $0 | $137,520 | $137,520 |
| 2016 | $83,200 | $46,000 | $0 | $129,200 | $129,200 |
| 2015 | $83,200 | $46,000 | $0 | $129,200 | $129,200 |
| 2014 | $83,200 | $46,000 | $0 | $129,200 | $129,200 |
| 2013 | $83,200 | $46,000 | $0 | $129,200 | $0 |
| 2012 | $83,200 | $46,000 | $0 | $0 | $0 |
| 2011 | $83,200 | $46,000 | $0 | $0 | $0 |
| 2010 | $72,500 | $46,000 | $0 | $0 | $0 |
| 2009 | $85,700 | $46,000 | $0 | $0 | $0 |
| 2008 | $85,700 | $46,000 | $0 | $0 | $0 |
| 2007 | $58,300 | $23,500 | $0 | $0 | $0 |
Deed and Sales History
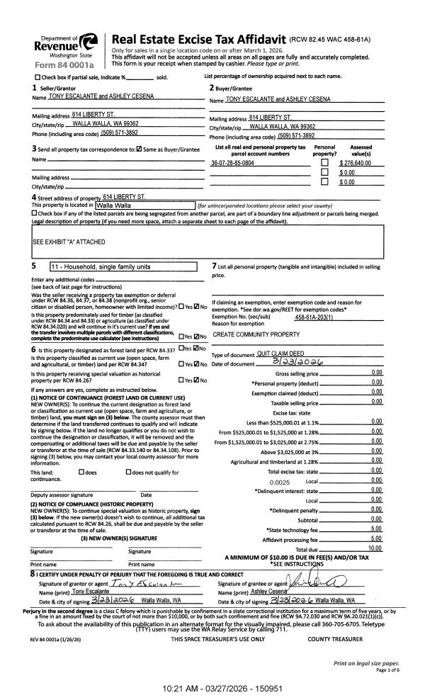
| 1 | 06/10/2019 | SWD | STATUTORY WARRANTY DEED | THOMSON MARK A & LISA K | ESCALANTE TONY | | | $210,000.00 | 137046 | 2019-04009 |
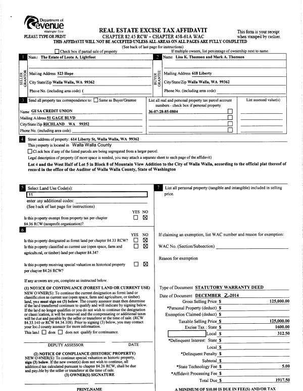
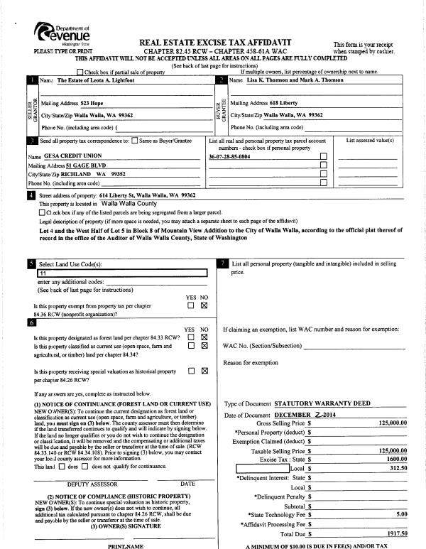
| 2 | 12/03/2014 | SWD | STATUTORY WARRANTY DEED | LIGHTFOOT LEOTA ESTATE OF | THOMSON MARK A & LISA K | | | $125,000.00 | 127040 | 2014-08743 |
| 3 | 01/01/1956 | WARRANTY D | WARRANTY DEED | | | | | $0.00 | 0 | 2790-390809 |
Payout Agreement
| No payout information available.. |