Property
Account |
| Property ID: | 29490 | Abbreviated Legal Description: | MTN VIEW TAX 2 BLK 7 |
| Parcel Number: | 360728850712 | Agent Code: | |
| Type: | Real | | |
| Tax Area: | 1 - OL-140-F | Land Use Code | 11 |
| Open Space: | N | DFL | N |
| Historic Property: | N | Remodel Property: | N |
| Multi-Family Redevelopment: | N | | |
| Township: | 7 | Section: | 28 |
| Range: | 36 |
Location |
| Address: | 527 COLUMBIA ST WA 99362 | Mapsco: | |
| Neighborhood: | A Res | Map ID: | |
| Neighborhood CD: | 613011 |
Owner |
| Name: | HARMS RENEE | Owner ID: | 61411 |
| Mailing Address: | 527 COLUMBIA ST WALLA WALLA, WA 99362 | % Ownership: | 100.0000000000% |
| | | Exemptions: | |
Taxes and Assessment Details
Property Tax Information as of
02/21/2026
Click on "Statement Details" to expand or collapse a tax statement.
* Please enter a valid date ** Please enter a valid date *
Statement Details |
| | TOTAL: | $0.00 | $0.00 | $0.00 | $0.00 | $0.00 | $0.00 |
|
| | $0.00 | $0.00 | $0.00 | $0.00 | $0.00 | $0.00 |
Values
| (+) Improvement Homesite Value: | + | $241,850 | |
| (+) Improvement Non-Homesite Value: | + | $0 | |
| (+) Land Homesite Value: | + | $64,680 | |
| (+) Land Non-Homesite Value: | + | $0 | |
| (+) Curr Use (HS): | + | $0 | $0 |
| (+) Curr Use (NHS): | + | $0 | $0 |
| | | -------------------------- | |
| (=) Market Value: | = | $306,530 | |
| (–) Productivity Loss: | – | $0 | |
| | | -------------------------- | |
| (=) Subtotal: | = | $306,530 | |
| (+) Senior Appraised Value: | + | $0 | |
| (+) Non-Senior Appraised Value: | + | $306,530 | |
| | | -------------------------- | |
| (=) Total Appraised Value: | = | $306,530 | |
| (–) Senior Exemption Loss: | – | $0 | |
| (–) Exemption Loss: | – | $0 | |
| | | -------------------------- | |
| (=) Taxable Value: | = | $306,530 | |
Taxing Jurisdiction
| Owner: | HARMS RENEE | | |
| % Ownership: | 100.0000000000% | | |
| Total Value: | $306,530 | | |
| Tax Area: | 1 - OL-140-F |
| CERFD | CURRENT EXPENSE REFUND 010 | 0.0000000000 | $306,530 | $306,530 | $0.00 | | |
| CURREXP | CURRENT EXPENSE 010 | 1.0175366760 | $306,530 | $306,530 | $311.91 | | |
| HUMNSERV | HUMAN SERVICES 119 | 0.0250000000 | $306,530 | $306,530 | $7.66 | | |
| SLDREL | SOLDIERS RELIEF 121 | 0.0155990005 | $306,530 | $306,530 | $4.78 | | |
| EMERGSER | EMS 147 | 0.3792580840 | $306,530 | $306,530 | $116.25 | | |
| EMSRFD | EMS REFUND 147 | 0.0000000000 | $306,530 | $306,530 | $0.00 | | |
| PORTRFD | PORT REFUND 640 | 0.0000000000 | $306,530 | $306,530 | $0.00 | | |
| PORTWWGEN | PORT OF WW 640 | 0.2460186015 | $306,530 | $306,530 | $75.41 | | |
| SD140BOND | SD #140 BOND 764 | 0.8342371393 | $306,530 | $306,530 | $255.72 | | |
| SD140GEN | SD #140 GENERAL 760 | 2.0646500647 | $306,530 | $306,530 | $632.88 | | |
| ST2 | STATE SCHOOL PART 2 600 | 0.8131451643 | $306,530 | $306,530 | $249.25 | | |
| STATESCHL | STATE SCHOOL 600 | 1.5158548041 | $306,530 | $306,530 | $464.65 | | |
| STREFUND | STATE REFUND LEVY 603 | 0.0000000000 | $306,530 | $306,530 | $0.00 | | |
| CWWBOND | C OF WW BOND 643 | 0.2760494372 | $306,530 | $306,530 | $84.62 | | |
| CWWGEN | CITY OF WW 631 | 1.6100204973 | $306,530 | $306,530 | $493.52 | | |
| CWWRFD | CITY OF WALLA WALLA REFUND 631 | 0.0000000000 | $306,530 | $306,530 | $0.00 | | |
| | Total Tax Rate: | 8.7973694689 | | | | | |
| | | | | Taxes w/Current Exemptions: | $2,696.65 | | |
| | | | | Taxes w/o Exemptions: | $2,696.65 | | |
Improvement / Building
| Improvement #1: | RESIDENTIAL | State Code: | 11 | 984.0 sqft | Value: | $241,850 |
| Exterior Wall: | SIDING | Heating/Cooling: | HEAT PUMP | | Number of Bathrooms: | 1 | Number of Bedrooms: | 2 | | Plumbing: | 6 | Roof Covering: | COMP SHINGLE |
|
| | Type | Description | Class CD | Sub Class CD | Year Built | Area |
| | MA | Main Area | 1 | 30 | 1948 | 984.0 |
| | SI1 | SITE IMPROVEMENT | 1 | 30 | 1948 | 2.0 |
| | ATG | Attached Garage | 1 | 30 | 1948 | 330.0 |
| | RCD | WOOD DECK W/ROOF, CEILED | 1 | 30 | 1948 | 24.0 |
Sketch
Property Image
Land
| 1 | RES 1 | Converted: Residential | 0.1650 | 7187.00 | 0.00 | 0.00 | 1.00 | $64,680 | $0 |
Roll Value History
| 2026 | N/A | N/A | N/A | N/A | N/A |
| 2025 | $229,920 | $79,060 | $0 | $308,980 | $308,980 |
| 2024 | $241,850 | $64,680 | $0 | $306,530 | $306,530 |
| 2023 | $241,850 | $64,680 | $0 | $306,530 | $306,530 |
| 2022 | $201,540 | $52,110 | $0 | $253,650 | $253,650 |
| 2021 | $155,030 | $52,110 | $0 | $207,140 | $207,140 |
| 2020 | $114,840 | $52,110 | $0 | $166,950 | $166,950 |
| 2019 | $114,840 | $52,110 | $0 | $166,950 | $166,950 |
| 2018 | $103,580 | $43,100 | $0 | $146,680 | $146,680 |
| 2017 | $94,160 | $43,100 | $0 | $137,260 | $137,260 |
| 2016 | $85,600 | $43,100 | $0 | $128,700 | $51,480 |
| 2015 | $85,600 | $43,100 | $0 | $128,700 | $51,480 |
| 2014 | $85,600 | $43,100 | $0 | $128,700 | $128,700 |
| 2013 | $85,600 | $43,100 | $0 | $128,700 | $128,700 |
| 2012 | $96,500 | $43,100 | $0 | $0 | $0 |
| 2011 | $83,800 | $43,100 | $0 | $0 | $0 |
| 2010 | $83,800 | $43,100 | $0 | $0 | $0 |
| 2009 | $97,900 | $43,100 | $0 | $0 | $0 |
| 2008 | $97,900 | $43,100 | $0 | $0 | $0 |
| 2007 | $64,000 | $21,600 | $0 | $0 | $0 |
Deed and Sales History
| 1 | 07/31/2017 | SWD | STATUTORY WARRANTY DEED | WELCH CAROL N | HARMS RENEE | | | $169,000.00 | 132883 | 2017-05843 |
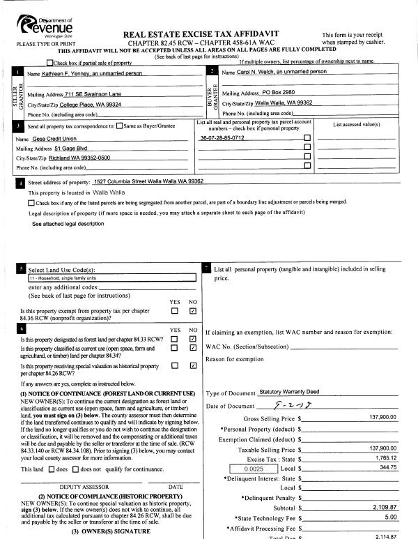
| 2 | 09/03/2015 | SWD | STATUTORY WARRANTY DEED | YENNEY KATHLEEN F | WELCH CAROL N | | | $137,900.00 | 128764 | 2015-07803 |
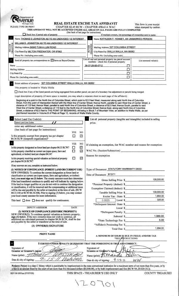
| 3 | 09/15/2011 | WARRANTY D | WARRANTY DEED | JOHNSTON, THOMAS D | YENNEY, KATHLEEN F | | | $130,000.00 | 120701 | 2011-07209 |
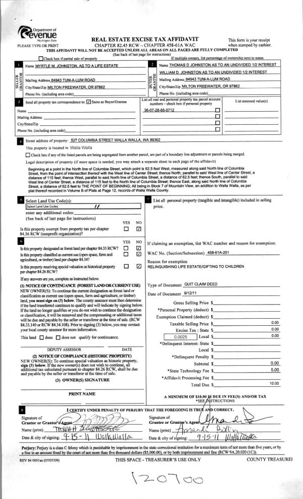
| 4 | 09/15/2011 | QCD | QUIT CLAIM DEED | JOHNSTON, MYRTLE M LIFE EST | JOHNSTON, THOMAS D | | | $0.00 | 120700 | 2011-07208 |
| 5 | 03/01/1967 | QCD | QUIT CLAIM DEED | | | | | $0.00 | 0 | 3204-83874 |
Payout Agreement
| No payout information available.. |