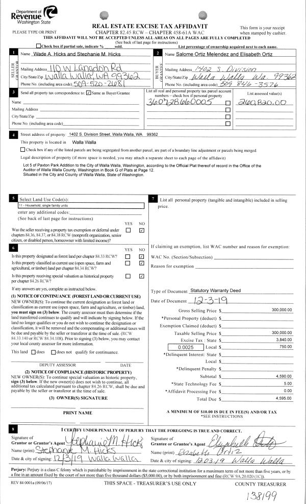
Property
Account |
| Property ID: | 29482 | Abbreviated Legal Description: | PAXTON PARK LOT 5 |
| Parcel Number: | 360728660005 | Agent Code: | |
| Type: | Real | | |
| Tax Area: | 1 - OL-140-F | Land Use Code | 11 |
| Open Space: | N | DFL | N |
| Historic Property: | N | Remodel Property: | N |
| Multi-Family Redevelopment: | N | | |
| Township: | 7 | Section: | 28 |
| Range: | 36 |
Location |
| Address: | 1402 S DIVISION ST WA 99362 | Mapsco: | |
| Neighborhood: | A Res | Map ID: | |
| Neighborhood CD: | 613011 |
Owner |
| Name: | MELENDEZ SALOME ORTIZ & ELISABETH ORTIZ | Owner ID: | 66398 |
| Mailing Address: | 1402 S DIVISION ST WALLA WALLA, WA 99362 | % Ownership: | 100.0000000000% |
| | | Exemptions: | |
Taxes and Assessment Details
Values
| (+) Improvement Homesite Value: | + | $0 | |
| (+) Improvement Non-Homesite Value: | + | $282,340 | |
| (+) Land Homesite Value: | + | $0 | |
| (+) Land Non-Homesite Value: | + | $90,440 | |
| (+) Curr Use (HS): | + | $0 | $0 |
| (+) Curr Use (NHS): | + | $0 | $0 |
| | | -------------------------- | |
| (=) Market Value: | = | $372,780 | |
| (–) Productivity Loss: | – | $0 | |
| | | -------------------------- | |
| (=) Subtotal: | = | $372,780 | |
| (+) Senior Appraised Value: | + | $0 | |
| (+) Non-Senior Appraised Value: | + | $372,780 | |
| | | -------------------------- | |
| (=) Total Appraised Value: | = | $372,780 | |
| (–) Senior Exemption Loss: | – | $0 | |
| (–) Exemption Loss: | – | $0 | |
| | | -------------------------- | |
| (=) Taxable Value: | = | $372,780 | |
Taxing Jurisdiction
| Owner: | MELENDEZ SALOME ORTIZ & ELISABETH ORTIZ | | |
| % Ownership: | 100.0000000000% | | |
| Total Value: | $372,780 | | |
| Tax Area: | 1 - OL-140-F |
| CERFD | CURRENT EXPENSE REFUND 010 | 0.0000000000 | $372,780 | $372,780 | $0.00 | | |
| CURREXP | CURRENT EXPENSE 010 | 1.0175366760 | $372,780 | $372,780 | $379.32 | | |
| HUMNSERV | HUMAN SERVICES 119 | 0.0250000000 | $372,780 | $372,780 | $9.32 | | |
| SLDREL | SOLDIERS RELIEF 121 | 0.0155990005 | $372,780 | $372,780 | $5.81 | | |
| EMERGSER | EMS 147 | 0.3792580840 | $372,780 | $372,780 | $141.38 | | |
| EMSRFD | EMS REFUND 147 | 0.0000000000 | $372,780 | $372,780 | $0.00 | | |
| PORTRFD | PORT REFUND 640 | 0.0000000000 | $372,780 | $372,780 | $0.00 | | |
| PORTWWGEN | PORT OF WW 640 | 0.2460186015 | $372,780 | $372,780 | $91.71 | | |
| SD140BOND | SD #140 BOND 764 | 0.8342371393 | $372,780 | $372,780 | $310.99 | | |
| SD140GEN | SD #140 GENERAL 760 | 2.0646500647 | $372,780 | $372,780 | $769.66 | | |
| ST2 | STATE SCHOOL PART 2 600 | 0.8131451643 | $372,780 | $372,780 | $303.12 | | |
| STATESCHL | STATE SCHOOL 600 | 1.5158548041 | $372,780 | $372,780 | $565.08 | | |
| STREFUND | STATE REFUND LEVY 603 | 0.0000000000 | $372,780 | $372,780 | $0.00 | | |
| CWWBOND | C OF WW BOND 643 | 0.2760494372 | $372,780 | $372,780 | $102.91 | | |
| CWWGEN | CITY OF WW 631 | 1.6100204973 | $372,780 | $372,780 | $600.18 | | |
| CWWRFD | CITY OF WALLA WALLA REFUND 631 | 0.0000000000 | $372,780 | $372,780 | $0.00 | | |
| | Total Tax Rate: | 8.7973694689 | | | | | |
| | | | | Taxes w/Current Exemptions: | $3,279.48 | | |
| | | | | Taxes w/o Exemptions: | $3,279.48 | | |
Improvement / Building
| Improvement #1: | RESIDENTIAL | State Code: | 11 | 1648.0 sqft | Value: | $282,340 |
| Exterior Wall: | SIDING | Heating/Cooling: | WARM & COOLED AIR | | Number of Bathrooms: | 2 | Number of Bedrooms: | 3 | | Plumbing: | 9 | Roof Covering: | COMP SHINGLE |
|
| | Type | Description | Class CD | Sub Class CD | Year Built | Area |
| | MA | Main Area | 1 | 30 | 1967 | 1648.0 |
| | SI1 | SITE IMPROVEMENT | 1 | 30 | 1967 | 3.0 |
| | ATG | Attached Garage | 1 | 30 | 1967 | 528.0 |
| | S1F | Single One Story Fireplace | 1 | 30 | 1967 | 1.0 |
| | CPC | COVERED CARPORT/PATIO | 1 | 30 | 1967 | 225.0 |
| | RPC | OPEN PORCH W/ROOF , CEILED | 1 | 30 | 1967 | 161.0 |
Sketch
Property Image
Land
| 1 | RES 1 | Converted: Residential | 0.2428 | 10578.00 | 0.00 | 0.00 | 1.00 | $90,440 | $0 |
Roll Value History
| 2026 | N/A | N/A | N/A | N/A | N/A |
| 2025 | $262,880 | $110,540 | $0 | $373,420 | $373,420 |
| 2024 | $282,340 | $90,440 | $0 | $372,780 | $372,780 |
| 2023 | $282,340 | $90,440 | $0 | $372,780 | $372,780 |
| 2022 | $268,900 | $72,780 | $0 | $341,680 | $341,680 |
| 2021 | $244,450 | $72,780 | $0 | $317,230 | $317,230 |
| 2020 | $188,040 | $72,780 | $0 | $260,820 | $260,820 |
| 2019 | $188,040 | $72,780 | $0 | $260,820 | $260,820 |
| 2018 | $153,160 | $47,600 | $0 | $200,760 | $200,760 |
| 2017 | $133,180 | $47,600 | $0 | $180,780 | $180,780 |
| 2016 | $110,990 | $47,600 | $0 | $158,590 | $158,590 |
| 2015 | $105,700 | $47,600 | $0 | $153,300 | $153,300 |
| 2014 | $105,700 | $47,600 | $0 | $153,300 | $153,300 |
| 2013 | $117,400 | $47,600 | $0 | $165,000 | $165,000 |
| 2012 | $117,400 | $47,600 | $0 | $0 | $0 |
| 2011 | $117,400 | $47,600 | $0 | $0 | $0 |
| 2010 | $103,800 | $47,600 | $0 | $0 | $0 |
| 2009 | $120,600 | $47,600 | $0 | $0 | $0 |
| 2008 | $120,600 | $47,600 | $0 | $0 | $0 |
| 2007 | $107,400 | $25,100 | $0 | $0 | $0 |
Deed and Sales History
| 1 | 12/04/2019 | SWD | STATUTORY WARRANTY DEED | HICKS WADE A & STEPHANIE M | MELENDEZ SALOME ORTIZ & ELISABETH ORTIZ | | | $300,000.00 | 138199 | 2019-10045 |
| 2 | 10/19/2015 | QCD | QUIT CLAIM DEED | HICKS WADE A | HICKS WADE A & STEPHANIE M | | | | 129038 | 2015-09144 |
| 3 | 03/11/2014 | SWD | STATUTORY WARRANTY DEED | SPANISH AGNES J | HICKS WADE A | | | $154,000.00 | 125552 | 2014-01662 |
| 4 | 09/10/1976 | WARRANTY D | WARRANTY DEED | | | | | $24,500.00 | 67139 | 3220-487808 |
Payout Agreement
| No payout information available.. |