Property
Account |
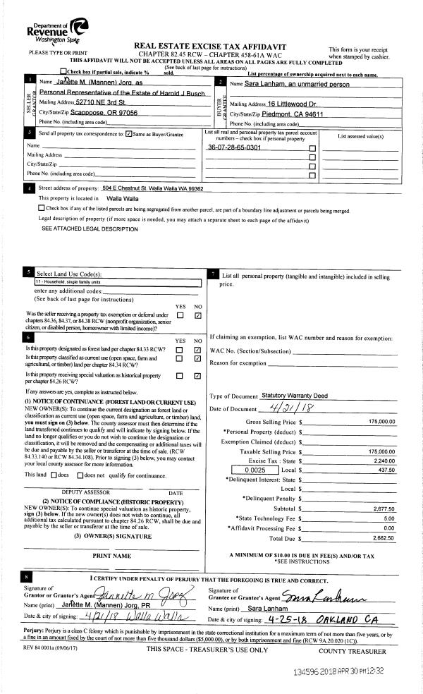
| Property ID: | 29480 | Abbreviated Legal Description: | PARK ST GARDENS LOT 1 BLK 3 AND TRACT |
| Parcel Number: | 360728650301 | Agent Code: | |
| Type: | Real | | |
| Tax Area: | 1 - OL-140-F | Land Use Code | 11 |
| Open Space: | N | DFL | N |
| Historic Property: | N | Remodel Property: | N |
| Multi-Family Redevelopment: | N | | |
| Township: | 7 | Section: | 28 |
| Range: | 36 |
Location |
| Address: | 504 E CHESTNUT ST WA 99362 | Mapsco: | |
| Neighborhood: | A Res | Map ID: | |
| Neighborhood CD: | 613011 |
Owner |
| Name: | LANHAM SARA B TRUST | Owner ID: | 62841 |
| Mailing Address: | 1800 TAYLOR AVE N UNIT 408 SEATTLE, WA 98109 | % Ownership: | 100.0000000000% |
| | | Exemptions: | |
Taxes and Assessment Details
Values
| (+) Improvement Homesite Value: | + | $213,740 | |
| (+) Improvement Non-Homesite Value: | + | $0 | |
| (+) Land Homesite Value: | + | $70,000 | |
| (+) Land Non-Homesite Value: | + | $0 | |
| (+) Curr Use (HS): | + | $0 | $0 |
| (+) Curr Use (NHS): | + | $0 | $0 |
| | | -------------------------- | |
| (=) Market Value: | = | $283,740 | |
| (–) Productivity Loss: | – | $0 | |
| | | -------------------------- | |
| (=) Subtotal: | = | $283,740 | |
| (+) Senior Appraised Value: | + | $0 | |
| (+) Non-Senior Appraised Value: | + | $283,740 | |
| | | -------------------------- | |
| (=) Total Appraised Value: | = | $283,740 | |
| (–) Senior Exemption Loss: | – | $0 | |
| (–) Exemption Loss: | – | $0 | |
| | | -------------------------- | |
| (=) Taxable Value: | = | $283,740 | |
Taxing Jurisdiction
| Owner: | LANHAM SARA B TRUST | | |
| % Ownership: | 100.0000000000% | | |
| Total Value: | $283,740 | | |
| Tax Area: | 1 - OL-140-F |
| CERFD | CURRENT EXPENSE REFUND 010 | 0.0000000000 | $283,740 | $283,740 | $0.00 | | |
| CURREXP | CURRENT EXPENSE 010 | 1.0175366760 | $283,740 | $283,740 | $288.72 | | |
| HUMNSERV | HUMAN SERVICES 119 | 0.0250000000 | $283,740 | $283,740 | $7.09 | | |
| SLDREL | SOLDIERS RELIEF 121 | 0.0155990005 | $283,740 | $283,740 | $4.43 | | |
| EMERGSER | EMS 147 | 0.3792580840 | $283,740 | $283,740 | $107.61 | | |
| EMSRFD | EMS REFUND 147 | 0.0000000000 | $283,740 | $283,740 | $0.00 | | |
| PORTRFD | PORT REFUND 640 | 0.0000000000 | $283,740 | $283,740 | $0.00 | | |
| PORTWWGEN | PORT OF WW 640 | 0.2460186015 | $283,740 | $283,740 | $69.81 | | |
| SD140BOND | SD #140 BOND 764 | 0.8342371393 | $283,740 | $283,740 | $236.71 | | |
| SD140GEN | SD #140 GENERAL 760 | 2.0646500647 | $283,740 | $283,740 | $585.82 | | |
| ST2 | STATE SCHOOL PART 2 600 | 0.8131451643 | $283,740 | $283,740 | $230.72 | | |
| STATESCHL | STATE SCHOOL 600 | 1.5158548041 | $283,740 | $283,740 | $430.11 | | |
| STREFUND | STATE REFUND LEVY 603 | 0.0000000000 | $283,740 | $283,740 | $0.00 | | |
| CWWBOND | C OF WW BOND 643 | 0.2760494372 | $283,740 | $283,740 | $78.33 | | |
| CWWGEN | CITY OF WW 631 | 1.6100204973 | $283,740 | $283,740 | $456.83 | | |
| CWWRFD | CITY OF WALLA WALLA REFUND 631 | 0.0000000000 | $283,740 | $283,740 | $0.00 | | |
| | Total Tax Rate: | 8.7973694689 | | | | | |
| | | | | Taxes w/Current Exemptions: | $2,496.18 | | |
| | | | | Taxes w/o Exemptions: | $2,496.18 | | |
Improvement / Building
| Improvement #1: | RESIDENTIAL | State Code: | 11 | 798.0 sqft | Value: | $213,740 |
| Exterior Wall: | SIDING | Heating/Cooling: | WARM & COOLED AIR | | Number of Bathrooms: | 1 | Number of Bedrooms: | 4 | | Plumbing: | 7 | Roof Covering: | COMP SHINGLE |
|
| | Type | Description | Class CD | Sub Class CD | Year Built | Area |
| | MA | Main Area | 1 | 30 | 1935 | 798.0 |
| | SI1 | SITE IMPROVEMENT | 1 | 30 | 1935 | 1.0 |
| | BASE | BASEMENT | 1 | 30 | 1935 | 728.0 |
| | BRF | BASEMENT - REC FINISH | 1 | 30 | 1935 | 120.0 |
| | S1F | Single One Story Fireplace | 1 | 30 | 1935 | 1.0 |
| | OPS | OPEN PORCH W/STEPS | 1 | 30 | 1935 | 12.0 |
| | ATIC | ATTIC ROOM | 1 | 30 | 1935 | 280.0 |
| | DTG | Detached Garage | 1 | 30 | 1935 | 378.0 |
| | SWP | Solid Wall Porch | 1 | 30 | 1935 | 64.0 |
| | CPC | COVERED CARPORT/PATIO | 1 | 30 | 1935 | 160.0 |
Sketch
Property Image
Land
| 1 | RES 1 | Converted: Residential | 0.1377 | 6000.00 | 0.00 | 0.00 | 1.00 | $70,000 | $0 |
Roll Value History
| 2026 | N/A | N/A | N/A | N/A | N/A |
| 2025 | $215,540 | $66,000 | $0 | $281,540 | $281,540 |
| 2024 | $210,500 | $70,000 | $0 | $280,500 | $280,500 |
| 2023 | $213,740 | $70,000 | $0 | $283,740 | $283,740 |
| 2022 | $203,560 | $55,000 | $0 | $258,560 | $258,560 |
| 2021 | $140,390 | $55,000 | $0 | $195,390 | $195,390 |
| 2020 | $116,990 | $55,000 | $0 | $171,990 | $171,990 |
| 2019 | $116,990 | $55,000 | $0 | $171,990 | $171,990 |
| 2018 | $134,180 | $36,000 | $0 | $170,180 | $170,180 |
| 2017 | $111,820 | $36,000 | $0 | $147,820 | $147,820 |
| 2016 | $97,230 | $36,000 | $0 | $133,230 | $13,200 |
| 2015 | $97,230 | $36,000 | $0 | $133,230 | $13,200 |
| 2014 | $92,600 | $36,000 | $0 | $128,600 | $13,200 |
| 2013 | $92,600 | $36,000 | $0 | $128,600 | $128,600 |
| 2012 | $92,600 | $36,000 | $0 | $0 | $0 |
| 2011 | $92,600 | $36,000 | $0 | $0 | $0 |
| 2010 | $75,800 | $36,000 | $0 | $0 | $0 |
| 2009 | $88,200 | $36,000 | $0 | $0 | $0 |
| 2008 | $88,200 | $36,000 | $0 | $0 | $0 |
| 2007 | $62,600 | $18,000 | $0 | $0 | $0 |
Deed and Sales History
| 1 | 10/24/2025 | QCD | QUIT CLAIM DEED | LANHAM SARA B TRUST | PETERSON ERIN LIVING TRUST | | | | 150241 | 2025-06587 |
| 2 | 01/09/2025 | EASE | EASEMENT | LANHAM SARA B TRUST | CITY OF WALLA WALLA CITY CLERK | | | $14,662.00 | 148775 | 2025-00130 |
| 3 | 10/18/2018 | QCD | QUIT CLAIM DEED | LANHAM SARA B | LANHAM SARA B TRUST | | | $0.00 | 135760 | 2018-08639 |
| 4 | 04/30/2018 | SWD | STATUTORY WARRANTY DEED | BUSCH HAROLD J ESTATE OF | LANHAM SARA B | | | $175,000.00 | 134596 | 2018-03375 |
| 5 | 02/05/2018 | DEATH CERT | DEATH CERTIFICATE | BUSCH EVA JOAN | | | | | 0 | 2018-00980 |
| 6 | 02/05/2018 | COMMUNITY | COMMUNITY PROPERTY AGREEMENT | BUSCH HAROLD J & EVA J | BUSCH HAROLD J & EVA J | | | | 0 | 2018-00979 |
| 7 | 11/29/1989 | WARRANTY D | WARRANTY DEED | | | | | $52,000.00 | 0 | 1798-907975 |
Payout Agreement
| No payout information available.. |