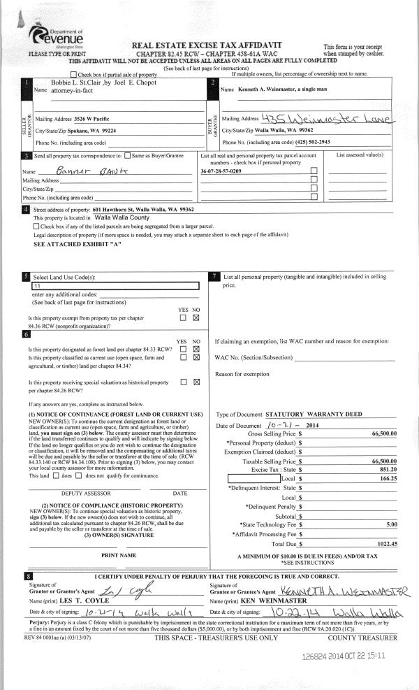
Property
Account |
| Property ID: | 29477 | Abbreviated Legal Description: | EDGEWOOD PLACE LOT 9 BLK 2 AND TRACT |
| Parcel Number: | 360728570209 | Agent Code: | |
| Type: | Real | | |
| Tax Area: | 1 - OL-140-F | Land Use Code | 11 |
| Open Space: | N | DFL | N |
| Historic Property: | N | Remodel Property: | N |
| Multi-Family Redevelopment: | N | | |
| Township: | 7 | Section: | 28 |
| Range: | 36 |
Location |
| Address: | 601 HAWTHORNE ST WA 99362 | Mapsco: | |
| Neighborhood: | A Res | Map ID: | |
| Neighborhood CD: | 613011 |
Owner |
| Name: | WEINMASTER KENNETH A | Owner ID: | 55677 |
| Mailing Address: | 435 WEINMASTER LN WALLA WALLA, WA 99362 | % Ownership: | 100.0000000000% |
| | | Exemptions: | |
Taxes and Assessment Details
Values
| (+) Improvement Homesite Value: | + | $0 | |
| (+) Improvement Non-Homesite Value: | + | $75,400 | |
| (+) Land Homesite Value: | + | $0 | |
| (+) Land Non-Homesite Value: | + | $60,000 | |
| (+) Curr Use (HS): | + | $0 | $0 |
| (+) Curr Use (NHS): | + | $0 | $0 |
| | | -------------------------- | |
| (=) Market Value: | = | $135,400 | |
| (–) Productivity Loss: | – | $0 | |
| | | -------------------------- | |
| (=) Subtotal: | = | $135,400 | |
| (+) Senior Appraised Value: | + | $0 | |
| (+) Non-Senior Appraised Value: | + | $135,400 | |
| | | -------------------------- | |
| (=) Total Appraised Value: | = | $135,400 | |
| (–) Senior Exemption Loss: | – | $0 | |
| (–) Exemption Loss: | – | $0 | |
| | | -------------------------- | |
| (=) Taxable Value: | = | $135,400 | |
Taxing Jurisdiction
| Owner: | WEINMASTER KENNETH A | | |
| % Ownership: | 100.0000000000% | | |
| Total Value: | $135,400 | | |
| Tax Area: | 1 - OL-140-F |
| CERFD | CURRENT EXPENSE REFUND 010 | 0.0000000000 | $135,400 | $135,400 | $0.00 | | |
| CURREXP | CURRENT EXPENSE 010 | 1.0175366760 | $135,400 | $135,400 | $137.77 | | |
| HUMNSERV | HUMAN SERVICES 119 | 0.0250000000 | $135,400 | $135,400 | $3.39 | | |
| SLDREL | SOLDIERS RELIEF 121 | 0.0155990005 | $135,400 | $135,400 | $2.11 | | |
| EMERGSER | EMS 147 | 0.3792580840 | $135,400 | $135,400 | $51.35 | | |
| EMSRFD | EMS REFUND 147 | 0.0000000000 | $135,400 | $135,400 | $0.00 | | |
| PORTRFD | PORT REFUND 640 | 0.0000000000 | $135,400 | $135,400 | $0.00 | | |
| PORTWWGEN | PORT OF WW 640 | 0.2460186015 | $135,400 | $135,400 | $33.31 | | |
| SD140BOND | SD #140 BOND 764 | 0.8342371393 | $135,400 | $135,400 | $112.96 | | |
| SD140GEN | SD #140 GENERAL 760 | 2.0646500647 | $135,400 | $135,400 | $279.55 | | |
| ST2 | STATE SCHOOL PART 2 600 | 0.8131451643 | $135,400 | $135,400 | $110.10 | | |
| STATESCHL | STATE SCHOOL 600 | 1.5158548041 | $135,400 | $135,400 | $205.25 | | |
| STREFUND | STATE REFUND LEVY 603 | 0.0000000000 | $135,400 | $135,400 | $0.00 | | |
| CWWBOND | C OF WW BOND 643 | 0.2760494372 | $135,400 | $135,400 | $37.38 | | |
| CWWGEN | CITY OF WW 631 | 1.6100204973 | $135,400 | $135,400 | $218.00 | | |
| CWWRFD | CITY OF WALLA WALLA REFUND 631 | 0.0000000000 | $135,400 | $135,400 | $0.00 | | |
| | Total Tax Rate: | 8.7973694689 | | | | | |
| | | | | Taxes w/Current Exemptions: | $1,191.17 | | |
| | | | | Taxes w/o Exemptions: | $1,191.17 | | |
Improvement / Building
| Improvement #1: | RESIDENTIAL | State Code: | 11 | 474.0 sqft | Value: | $75,400 |
| Exterior Wall: | VINYL | Heating/Cooling: | BASEBOARD ELECTRIC | | Number of Bathrooms: | 1 | Number of Bedrooms: | 1 | | Plumbing: | 7 | Roof Covering: | COMP SHINGLE |
|
| | Type | Description | Class CD | Sub Class CD | Year Built | Area |
| | MA | Main Area | 1 | 25 | 1910 | 474.0 |
| | SI1 | SITE IMPROVEMENT | 1 | 25 | 1910 | 1.0 |
| | RPS | PORCH W/STEPS,ROOF | 1 | 25 | 1910 | 30.0 |
| | SWP | Solid Wall Porch | 1 | 25 | 1910 | 132.0 |
| | UTST | Utility Storage Shed | 1 | 25 | 1910 | 40.0 |
Sketch
Property Image
Land
| 1 | RES 1 | Converted: Residential | 0.1148 | 5000.00 | 0.00 | 0.00 | 1.00 | $60,000 | $0 |
Roll Value History
| 2026 | N/A | N/A | N/A | N/A | N/A |
| 2025 | $76,410 | $60,000 | $0 | $136,410 | $136,410 |
| 2024 | $75,400 | $60,000 | $0 | $135,400 | $135,400 |
| 2023 | $75,400 | $60,000 | $0 | $135,400 | $135,400 |
| 2022 | $75,400 | $45,000 | $0 | $120,400 | $120,400 |
| 2021 | $62,830 | $45,000 | $0 | $107,830 | $107,830 |
| 2020 | $52,360 | $45,000 | $0 | $97,360 | $97,360 |
| 2019 | $57,360 | $45,000 | $0 | $102,360 | $102,360 |
| 2018 | $38,980 | $30,000 | $0 | $68,980 | $68,980 |
| 2017 | $37,130 | $30,000 | $0 | $67,130 | $67,130 |
| 2016 | $35,360 | $30,000 | $0 | $65,360 | $65,360 |
| 2015 | $35,360 | $30,000 | $0 | $65,360 | $65,360 |
| 2014 | $22,100 | $30,000 | $0 | $52,100 | $52,100 |
| 2013 | $22,100 | $30,000 | $0 | $52,100 | $52,100 |
| 2012 | $21,800 | $30,000 | $0 | $0 | $0 |
| 2011 | $21,800 | $30,000 | $0 | $0 | $0 |
| 2010 | $21,800 | $30,000 | $0 | $0 | $0 |
| 2009 | $27,500 | $30,000 | $0 | $0 | $0 |
| 2008 | $27,500 | $30,000 | $0 | $0 | $0 |
| 2007 | $19,900 | $15,000 | $0 | $0 | $0 |
Deed and Sales History
| 1 | 10/22/2014 | SWD | STATUTORY WARRANTY DEED | ST CLAIR BOBBIE L | WEINMASTER KENNETH A | | | $66,500.00 | 126824 | 2014-07732 |
| 2 | 06/20/1983 | WARRANTY D | WARRANTY DEED | | | | | $18,500.00 | 0 | 1388-304278 |
Payout Agreement
| No payout information available.. |