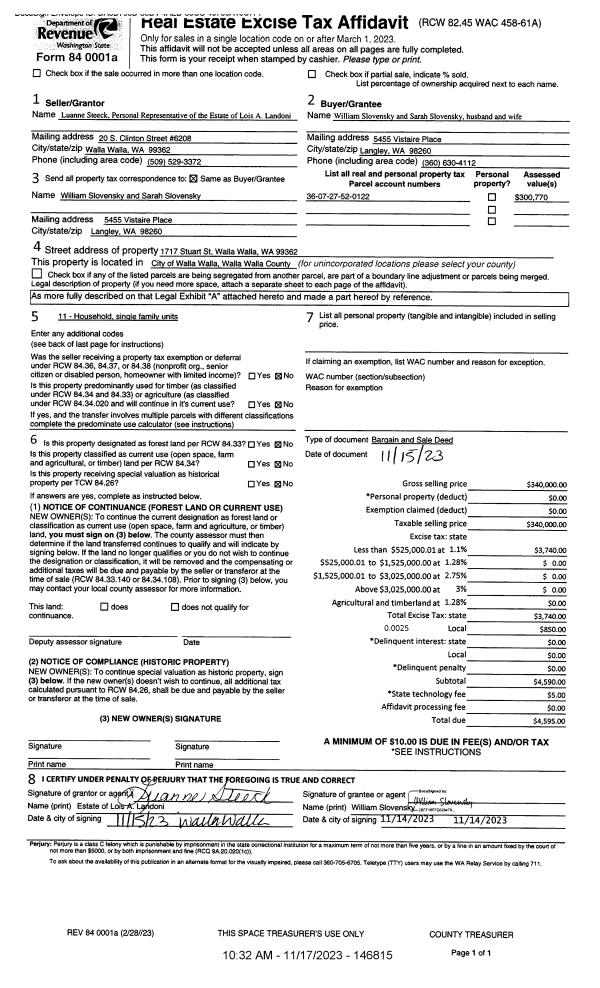
Property
Account |
| Property ID: | 29468 | Abbreviated Legal Description: | DEANS E 40' OF LOT 22 BLK 1; W 30' OF LOT 23 BLK 1 |
| Parcel Number: | 360727520122 | Agent Code: | |
| Type: | Real | | |
| Tax Area: | 105 - 140-F-4 | Land Use Code | 11 |
| Open Space: | N | DFL | N |
| Historic Property: | N | Remodel Property: | N |
| Multi-Family Redevelopment: | N | | |
| Township: | 7 | Section: | 27 |
| Range: | 36 |
Location |
| Address: | 1717 STUART ST WA 99362 | Mapsco: | |
| Neighborhood: | A Res | Map ID: | |
| Neighborhood CD: | 613011 |
Owner |
| Name: | LANDONI ANGELO D & LOIS A | Owner ID: | 10363 |
| Mailing Address: | 1717 STUART ST WALLA WALLA, WA 99362 | % Ownership: | 100.0000000000% |
| | | Exemptions: | |
Taxes and Assessment Details
Property Tax Information as of
02/21/2026
Click on "Statement Details" to expand or collapse a tax statement.
* Please enter a valid date ** Please enter a valid date *
Statement Details |
| | TOTAL: | $0.00 | $0.00 | $0.00 | $0.00 | $0.00 | $0.00 |
|
| | $0.00 | $0.00 | $0.00 | $0.00 | $0.00 | $0.00 |
Values
| (+) Improvement Homesite Value: | + | $222,020 | |
| (+) Improvement Non-Homesite Value: | + | $0 | |
| (+) Land Homesite Value: | + | $78,750 | |
| (+) Land Non-Homesite Value: | + | $0 | |
| (+) Curr Use (HS): | + | $0 | $0 |
| (+) Curr Use (NHS): | + | $0 | $0 |
| | | -------------------------- | |
| (=) Market Value: | = | $300,770 | |
| (–) Productivity Loss: | – | $0 | |
| | | -------------------------- | |
| (=) Subtotal: | = | $300,770 | |
| (+) Senior Appraised Value: | + | $0 | |
| (+) Non-Senior Appraised Value: | + | $300,770 | |
| | | -------------------------- | |
| (=) Total Appraised Value: | = | $300,770 | |
| (–) Senior Exemption Loss: | – | $0 | |
| (–) Exemption Loss: | – | $0 | |
| | | -------------------------- | |
| (=) Taxable Value: | = | $300,770 | |
Taxing Jurisdiction
| Owner: | LANDONI ANGELO D & LOIS A | | |
| % Ownership: | 100.0000000000% | | |
| Total Value: | $300,770 | | |
| Tax Area: | 105 - 140-F-4 |
| CERFD | CURRENT EXPENSE REFUND 010 | 0.0000000000 | $300,770 | $300,770 | $0.00 | | |
| CURREXP | CURRENT EXPENSE 010 | 1.0175366760 | $300,770 | $300,770 | $306.04 | | |
| HUMNSERV | HUMAN SERVICES 119 | 0.0250000000 | $300,770 | $300,770 | $7.52 | | |
| SLDREL | SOLDIERS RELIEF 121 | 0.0155990005 | $300,770 | $300,770 | $4.69 | | |
| EMERGSER | EMS 147 | 0.3792580840 | $300,770 | $300,770 | $114.07 | | |
| EMSRFD | EMS REFUND 147 | 0.0000000000 | $300,770 | $300,770 | $0.00 | | |
| FD4EXP | FD #4 EXPENSE 686 | 0.8836993059 | $300,770 | $300,770 | $265.79 | | |
| RLBRFD | RURAL LIBRARY REFUND 623 | 0.0000000000 | $300,770 | $300,770 | $0.00 | | |
| RURALLIB | RURAL LIBRARY 623 | 0.3710609029 | $300,770 | $300,770 | $111.60 | | |
| PORTRFD | PORT REFUND 640 | 0.0000000000 | $300,770 | $300,770 | $0.00 | | |
| PORTWWGEN | PORT OF WW 640 | 0.2460186015 | $300,770 | $300,770 | $74.00 | | |
| SD140BOND | SD #140 BOND 764 | 0.8342371393 | $300,770 | $300,770 | $250.91 | | |
| SD140GEN | SD #140 GENERAL 760 | 2.0646500647 | $300,770 | $300,770 | $620.98 | | |
| ST2 | STATE SCHOOL PART 2 600 | 0.8131451643 | $300,770 | $300,770 | $244.57 | | |
| STATESCHL | STATE SCHOOL 600 | 1.5158548041 | $300,770 | $300,770 | $455.92 | | |
| STREFUND | STATE REFUND LEVY 603 | 0.0000000000 | $300,770 | $300,770 | $0.00 | | |
| COROAD | COUNTY ROAD 115 | 1.6549953990 | $300,770 | $300,770 | $497.77 | | |
| CRPRD | COUNTY ROAD REFUND 115 | 0.0000000000 | $300,770 | $300,770 | $0.00 | | |
| | Total Tax Rate: | 9.8210551422 | | | | | |
| | | | | Taxes w/Current Exemptions: | $2,953.86 | | |
| | | | | Taxes w/o Exemptions: | $2,953.86 | | |
Improvement / Building
| Improvement #1: | RESIDENTIAL | State Code: | 11 | 1237.0 sqft | Value: | $222,020 |
| Exterior Wall: | METAL/STEEL | Heating/Cooling: | WARM & COOLED AIR | | Number of Bathrooms: | 2 | Number of Bedrooms: | 3 | | Plumbing: | 8 | Roof Covering: | COMP SHINGLE |
|
| | Type | Description | Class CD | Sub Class CD | Year Built | Area |
| | MA | Main Area | 1 | 30 | 1965 | 1237.0 |
| | SI1 | SITE IMPROVEMENT | 1 | 30 | 1965 | 1.5 |
| | S1F | Single One Story Fireplace | 1 | 30 | 1965 | 1.0 |
| | OPS | OPEN PORCH W/STEPS | 1 | 30 | 1965 | 16.0 |
| | CPC | COVERED CARPORT/PATIO | 1 | 30 | 1965 | 180.0 |
| | ATG | Attached Garage | 1 | 30 | 1965 | 286.0 |
Sketch
Property Image
Land
| 1 | RES 1 | Converted: Residential | 0.2009 | 8750.00 | 0.00 | 0.00 | 1.00 | $78,750 | $0 |
Roll Value History
| 2026 | N/A | N/A | N/A | N/A | N/A |
| 2025 | $256,840 | $96,250 | $0 | $353,090 | $353,090 |
| 2024 | $233,120 | $78,750 | $0 | $311,870 | $311,870 |
| 2023 | $222,020 | $78,750 | $0 | $300,770 | $300,770 |
| 2022 | $222,020 | $63,440 | $0 | $285,460 | $43,160 |
| 2021 | $185,020 | $63,440 | $0 | $248,460 | $43,160 |
| 2020 | $137,050 | $63,440 | $0 | $200,490 | $43,160 |
| 2019 | $137,050 | $63,440 | $0 | $200,490 | $43,160 |
| 2018 | $133,840 | $46,100 | $0 | $179,940 | $43,160 |
| 2017 | $116,380 | $46,100 | $0 | $162,480 | $43,160 |
| 2016 | $105,800 | $46,100 | $0 | $151,900 | $43,160 |
| 2015 | $105,800 | $46,100 | $0 | $151,900 | $43,160 |
| 2014 | $105,800 | $46,100 | $0 | $151,900 | $43,160 |
| 2013 | $105,800 | $46,100 | $0 | $151,900 | $43,160 |
| 2012 | $106,900 | $46,100 | $0 | $0 | $0 |
| 2011 | $106,900 | $46,100 | $0 | $0 | $0 |
| 2010 | $93,000 | $46,100 | $0 | $0 | $0 |
| 2009 | $108,400 | $46,100 | $0 | $0 | $0 |
| 2008 | $108,400 | $46,100 | $0 | $0 | $0 |
| 2007 | $84,300 | $23,600 | $0 | $0 | $0 |
Deed and Sales History
| 1 | 11/17/2023 | BARGAIN & | BARGAIN & SALE DEED | LANDONI LOIS A ESTATE OF | SLOVENSKY WILLIAM & SARAH | | | $340,000.00 | 146815 | 2023-06748 |
| 2 | 09/26/2023 | COMMUNITY | COMMUNITY PROPERTY AGREEMENT | LANDONI ANGELO D & LOIS A | LANDONI LOIS A ESTATE OF | | | | 0 | 2023-05624 |
| 3 | 01/01/1962 | WARRANTY D | WARRANTY DEED | | | | | $16,500.00 | 0 | 3020-439521 |
Payout Agreement
| No payout information available.. |