Property
Account |
| Property ID: | 29450 | Abbreviated Legal Description: | REEDS LOT 6 BLK 10 |
| Parcel Number: | 360721711006 | Agent Code: | |
| Type: | Real | | |
| Tax Area: | 1 - OL-140-F | Land Use Code | 11 |
| Open Space: | N | DFL | N |
| Historic Property: | N | Remodel Property: | N |
| Multi-Family Redevelopment: | N | | |
| Township: | 7 | Section: | 21 |
| Range: | 36 |
Location |
| Address: | 802 NEWELL ST WA 99362 | Mapsco: | |
| Neighborhood: | G-SFR | Map ID: | |
| Neighborhood CD: | 514011 |
Owner |
| Name: | SINE LIVING TRUST | Owner ID: | 57680 |
| Mailing Address: | 802 NEWELL ST WALLA WALLA, WA 99362 | % Ownership: | 100.0000000000% |
| | | Exemptions: | |
Taxes and Assessment Details
Values
| (+) Improvement Homesite Value: | + | $0 | |
| (+) Improvement Non-Homesite Value: | + | $305,900 | |
| (+) Land Homesite Value: | + | $0 | |
| (+) Land Non-Homesite Value: | + | $50,030 | |
| (+) Curr Use (HS): | + | $0 | $0 |
| (+) Curr Use (NHS): | + | $0 | $0 |
| | | -------------------------- | |
| (=) Market Value: | = | $355,930 | |
| (–) Productivity Loss: | – | $0 | |
| | | -------------------------- | |
| (=) Subtotal: | = | $355,930 | |
| (+) Senior Appraised Value: | + | $0 | |
| (+) Non-Senior Appraised Value: | + | $355,930 | |
| | | -------------------------- | |
| (=) Total Appraised Value: | = | $355,930 | |
| (–) Senior Exemption Loss: | – | $0 | |
| (–) Exemption Loss: | – | $0 | |
| | | -------------------------- | |
| (=) Taxable Value: | = | $355,930 | |
Taxing Jurisdiction
| Owner: | SINE LIVING TRUST | | |
| % Ownership: | 100.0000000000% | | |
| Total Value: | $355,930 | | |
| Tax Area: | 1 - OL-140-F |
| CERFD | CURRENT EXPENSE REFUND 010 | 0.0000000000 | $355,930 | $355,930 | $0.00 | | |
| CURREXP | CURRENT EXPENSE 010 | 1.0175366760 | $355,930 | $355,930 | $362.17 | | |
| HUMNSERV | HUMAN SERVICES 119 | 0.0250000000 | $355,930 | $355,930 | $8.90 | | |
| SLDREL | SOLDIERS RELIEF 121 | 0.0155990005 | $355,930 | $355,930 | $5.55 | | |
| EMERGSER | EMS 147 | 0.3792580840 | $355,930 | $355,930 | $134.99 | | |
| EMSRFD | EMS REFUND 147 | 0.0000000000 | $355,930 | $355,930 | $0.00 | | |
| PORTRFD | PORT REFUND 640 | 0.0000000000 | $355,930 | $355,930 | $0.00 | | |
| PORTWWGEN | PORT OF WW 640 | 0.2460186015 | $355,930 | $355,930 | $87.57 | | |
| SD140BOND | SD #140 BOND 764 | 0.8342371393 | $355,930 | $355,930 | $296.93 | | |
| SD140GEN | SD #140 GENERAL 760 | 2.0646500647 | $355,930 | $355,930 | $734.87 | | |
| ST2 | STATE SCHOOL PART 2 600 | 0.8131451643 | $355,930 | $355,930 | $289.42 | | |
| STATESCHL | STATE SCHOOL 600 | 1.5158548041 | $355,930 | $355,930 | $539.54 | | |
| STREFUND | STATE REFUND LEVY 603 | 0.0000000000 | $355,930 | $355,930 | $0.00 | | |
| CWWBOND | C OF WW BOND 643 | 0.2760494372 | $355,930 | $355,930 | $98.25 | | |
| CWWGEN | CITY OF WW 631 | 1.6100204973 | $355,930 | $355,930 | $573.05 | | |
| CWWRFD | CITY OF WALLA WALLA REFUND 631 | 0.0000000000 | $355,930 | $355,930 | $0.00 | | |
| | Total Tax Rate: | 8.7973694689 | | | | | |
| | | | | Taxes w/Current Exemptions: | $3,131.24 | | |
| | | | | Taxes w/o Exemptions: | $3,131.24 | | |
Improvement / Building
| Improvement #1: | RESIDENTIAL | State Code: | 11 | 1025.0 sqft | Value: | $305,900 |
| Exterior Wall: | VINYL | Heating/Cooling: | FORCED AIR | | Number of Bathrooms: | 1 | Number of Bedrooms: | 2 | | Plumbing: | 7 | Roof Covering: | COMP SHINGLE |
|
| | Type | Description | Class CD | Sub Class CD | Year Built | Area |
| | MA | Main Area | 1 | 35 | 1936 | 1025.0 |
| | SI1 | SITE IMPROVEMENT | 1 | 35 | 1936 | 1.0 |
| | BASE | BASEMENT | 1 | 35 | 1936 | 1025.0 |
| | BRF | BASEMENT - REC FINISH | 1 | 35 | 1936 | 196.0 |
| | S1F | Single One Story Fireplace | 1 | 35 | 1936 | 1.0 |
| | OPS | OPEN PORCH W/STEPS | 1 | 35 | 1936 | 25.0 |
| | DTG | Detached Garage | 1 | 35 | 1936 | 240.0 |
Sketch
Property Image
Land
| 1 | RES 1 | Converted: Residential | 0.1584 | 6900.00 | 0.00 | 0.00 | 1.00 | $50,030 | $0 |
Roll Value History
| 2026 | N/A | N/A | N/A | N/A | N/A |
| 2025 | $290,700 | $75,900 | $0 | $366,600 | $366,600 |
| 2024 | $264,270 | $75,900 | $0 | $340,170 | $340,170 |
| 2023 | $305,900 | $50,030 | $0 | $355,930 | $355,930 |
| 2022 | $278,090 | $50,030 | $0 | $328,120 | $328,120 |
| 2021 | $185,390 | $50,030 | $0 | $235,420 | $235,420 |
| 2020 | $142,610 | $50,030 | $0 | $192,640 | $192,640 |
| 2019 | $142,610 | $50,030 | $0 | $192,640 | $192,640 |
| 2018 | $142,610 | $50,030 | $0 | $192,640 | $192,640 |
| 2017 | $141,650 | $31,100 | $0 | $172,750 | $172,750 |
| 2016 | $134,900 | $31,100 | $0 | $166,000 | $166,000 |
| 2015 | $134,900 | $31,100 | $0 | $166,000 | $166,000 |
| 2014 | $134,900 | $31,100 | $0 | $166,000 | $166,000 |
| 2013 | $134,900 | $31,100 | $0 | $166,000 | $166,000 |
| 2012 | $133,000 | $31,100 | $0 | $0 | $0 |
| 2011 | $151,200 | $31,100 | $0 | $0 | $0 |
| 2010 | $142,500 | $31,100 | $0 | $0 | $0 |
| 2009 | $161,800 | $31,100 | $0 | $0 | $0 |
| 2008 | $105,400 | $27,600 | $0 | $0 | $0 |
| 2007 | $105,400 | $27,600 | $0 | $0 | $0 |
Deed and Sales History
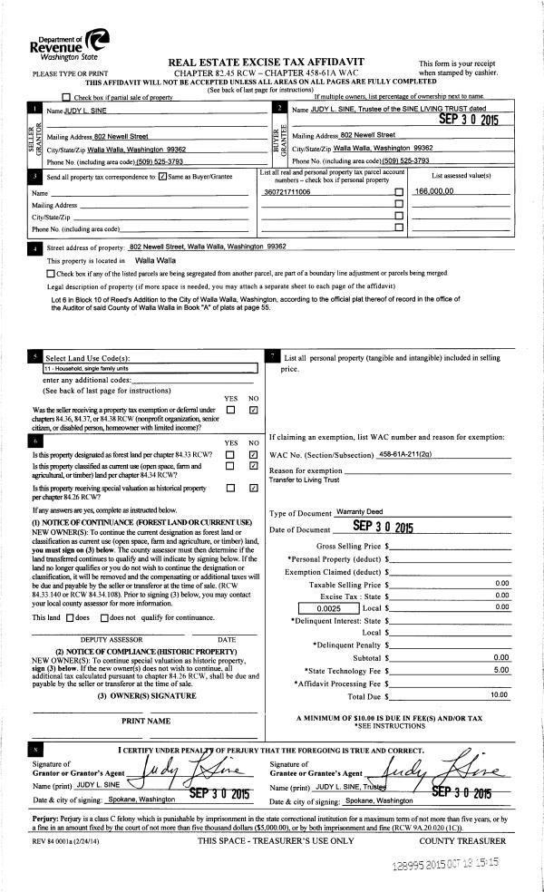
| 1 | 09/30/2015 | WARRANTY D | WARRANTY DEED | SINE JUDY L | SINE LIVING TRUST | | | | 128995 | 2015-09492 |
| 2 | 05/23/1985 | WARRANTY D | WARRANTY DEED | | | | | $42,500.00 | 0 | 1508-503358 |
Payout Agreement
| No payout information available.. |