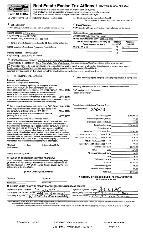
Property
Account |
| Property ID: | 29448 | Abbreviated Legal Description: | MILBROOKE PARK LOT 13 BLK 1 |
| Parcel Number: | 360721650113 | Agent Code: | |
| Type: | Real | | |
| Tax Area: | 1 - OL-140-F | Land Use Code | 11 |
| Open Space: | N | DFL | N |
| Historic Property: | N | Remodel Property: | N |
| Multi-Family Redevelopment: | N | | |
| Township: | 7 | Section: | 21 |
| Range: | 36 |
Location |
| Address: | 109 CASCADE DR WA 99362 | Mapsco: | |
| Neighborhood: | A-Superior SFR | Map ID: | |
| Neighborhood CD: | 513211 |
Owner |
| Name: | NEGRETE JENNIFER L & FRANCISCO J NEGRETE PEREZ | Owner ID: | 73120 |
| Mailing Address: | 109 CASCADE DR WALLA WALLA, WA 99362 | % Ownership: | 100.0000000000% |
| | | Exemptions: | |
Taxes and Assessment Details
Values
| (+) Improvement Homesite Value: | + | $289,850 | |
| (+) Improvement Non-Homesite Value: | + | $0 | |
| (+) Land Homesite Value: | + | $41,250 | |
| (+) Land Non-Homesite Value: | + | $0 | |
| (+) Curr Use (HS): | + | $0 | $0 |
| (+) Curr Use (NHS): | + | $0 | $0 |
| | | -------------------------- | |
| (=) Market Value: | = | $331,100 | |
| (–) Productivity Loss: | – | $0 | |
| | | -------------------------- | |
| (=) Subtotal: | = | $331,100 | |
| (+) Senior Appraised Value: | + | $0 | |
| (+) Non-Senior Appraised Value: | + | $331,100 | |
| | | -------------------------- | |
| (=) Total Appraised Value: | = | $331,100 | |
| (–) Senior Exemption Loss: | – | $0 | |
| (–) Exemption Loss: | – | $0 | |
| | | -------------------------- | |
| (=) Taxable Value: | = | $331,100 | |
Taxing Jurisdiction
| Owner: | NEGRETE JENNIFER L & FRANCISCO J NEGRETE PEREZ | | |
| % Ownership: | 100.0000000000% | | |
| Total Value: | $331,100 | | |
| Tax Area: | 1 - OL-140-F |
| CERFD | CURRENT EXPENSE REFUND 010 | 0.0000000000 | $331,100 | $331,100 | $0.00 | | |
| CURREXP | CURRENT EXPENSE 010 | 1.0175366760 | $331,100 | $331,100 | $336.91 | | |
| HUMNSERV | HUMAN SERVICES 119 | 0.0250000000 | $331,100 | $331,100 | $8.28 | | |
| SLDREL | SOLDIERS RELIEF 121 | 0.0155990005 | $331,100 | $331,100 | $5.16 | | |
| EMERGSER | EMS 147 | 0.3792580840 | $331,100 | $331,100 | $125.57 | | |
| EMSRFD | EMS REFUND 147 | 0.0000000000 | $331,100 | $331,100 | $0.00 | | |
| PORTRFD | PORT REFUND 640 | 0.0000000000 | $331,100 | $331,100 | $0.00 | | |
| PORTWWGEN | PORT OF WW 640 | 0.2460186015 | $331,100 | $331,100 | $81.46 | | |
| SD140BOND | SD #140 BOND 764 | 0.8342371393 | $331,100 | $331,100 | $276.22 | | |
| SD140GEN | SD #140 GENERAL 760 | 2.0646500647 | $331,100 | $331,100 | $683.61 | | |
| ST2 | STATE SCHOOL PART 2 600 | 0.8131451643 | $331,100 | $331,100 | $269.23 | | |
| STATESCHL | STATE SCHOOL 600 | 1.5158548041 | $331,100 | $331,100 | $501.90 | | |
| STREFUND | STATE REFUND LEVY 603 | 0.0000000000 | $331,100 | $331,100 | $0.00 | | |
| CWWBOND | C OF WW BOND 643 | 0.2760494372 | $331,100 | $331,100 | $91.40 | | |
| CWWGEN | CITY OF WW 631 | 1.6100204973 | $331,100 | $331,100 | $533.08 | | |
| CWWRFD | CITY OF WALLA WALLA REFUND 631 | 0.0000000000 | $331,100 | $331,100 | $0.00 | | |
| | Total Tax Rate: | 8.7973694689 | | | | | |
| | | | | Taxes w/Current Exemptions: | $2,912.82 | | |
| | | | | Taxes w/o Exemptions: | $2,912.82 | | |
Improvement / Building
| Improvement #1: | RESIDENTIAL | State Code: | 11 | 1068.0 sqft | Value: | $289,850 |
| Exterior Wall: | VINYL | Heating/Cooling: | FORCED AIR | | Number of Bathrooms: | 2 | Number of Bedrooms: | 4 | | Plumbing: | 9 | Roof Covering: | COMP SHINGLE |
|
| | Type | Description | Class CD | Sub Class CD | Year Built | Area |
| | MA | Main Area | 1 | 30 | 1950 | 1068.0 |
| | SI1 | SITE IMPROVEMENT | 1 | 30 | 1950 | 2.5 |
| | BASE | BASEMENT | 1 | 30 | 1950 | 960.0 |
| | BPF | BASEMENT -PARTITIONED FINISH | 1 | 30 | 1950 | 720.0 |
| | WOD | Wood Deck | 1 | 30 | 1950 | 280.0 |
| | SWP | Solid Wall Porch | 1 | 30 | 1950 | 216.0 |
| | S1F | Single One Story Fireplace | 1 | 30 | 1950 | 1.0 |
| | CPC | COVERED CARPORT/PATIO | 1 | 30 | 1950 | 510.0 |
Sketch
Property Image
Land
| 1 | RES 1 | Converted: Residential | 0.1515 | 6600.00 | 0.00 | 0.00 | 1.00 | $41,250 | $0 |
Roll Value History
| 2026 | N/A | N/A | N/A | N/A | N/A |
| 2025 | $286,500 | $66,000 | $0 | $352,500 | $352,500 |
| 2024 | $272,860 | $66,000 | $0 | $338,860 | $338,860 |
| 2023 | $289,850 | $41,250 | $0 | $331,100 | $331,100 |
| 2022 | $276,050 | $41,250 | $0 | $317,300 | $317,300 |
| 2021 | $197,180 | $41,250 | $0 | $238,430 | $238,430 |
| 2020 | $131,450 | $41,250 | $0 | $172,700 | $172,700 |
| 2019 | $131,450 | $41,250 | $0 | $172,700 | $172,700 |
| 2018 | $119,500 | $41,250 | $0 | $160,750 | $160,750 |
| 2017 | $159,360 | $26,400 | $0 | $185,760 | $185,760 |
| 2016 | $132,800 | $26,400 | $0 | $159,200 | $159,200 |
| 2015 | $132,800 | $26,400 | $0 | $159,200 | $29,800 |
| 2014 | $132,800 | $26,400 | $0 | $159,200 | $29,800 |
| 2013 | $132,800 | $26,400 | $0 | $159,200 | $29,800 |
| 2012 | $138,000 | $26,400 | $0 | $0 | $0 |
| 2011 | $138,000 | $26,400 | $0 | $0 | $0 |
| 2010 | $130,200 | $26,400 | $0 | $0 | $0 |
| 2009 | $147,600 | $26,400 | $0 | $0 | $0 |
| 2008 | $118,600 | $26,400 | $0 | $0 | $0 |
| 2007 | $118,600 | $26,400 | $0 | $0 | $0 |
Deed and Sales History
| 1 | 02/13/2023 | SWD | STATUTORY WARRANTY DEED | CANTRELL ZACHARY M & VIJA-MARIE K | NEGRETE JENNIFER L & FRANCISCO J NEGRETE PEREZ | | | $354,900.00 | 145387 | 2023-00712 |
| 2 | 04/04/2017 | SWD | STATUTORY WARRANTY DEED | DIBBLE PAUL MICHAEL ETAL | CANTRELL ZACHARY M & VIJA-MARIE K | | | $159,900.00 | 132161 | 2017-02552 |
| 3 | 03/31/2017 | LOPA | LACK OF PROBATE AFFIDAVIT | HAMMOCK CAROL A | DIBBLE PAUL MICHAEL ETAL | | | $0.00 | 132160 | 2017-02551 |
| 4 | 03/31/2017 | LOPA | LACK OF PROBATE AFFIDAVIT | HAMMOCK LOUIS D | DIBBLE PAUL MICHAEL ETAL | | | $0.00 | 132159 | 2017-02550 |
| 5 | 11/09/1990 | WARRANTY D | WARRANTY DEED | | | | | $59,000.00 | 0 | 1869-007959 |
Payout Agreement
| No payout information available.. |