Property
Account |
| Property ID: | 29435 | Abbreviated Legal Description: | 21-7-36 TAX 79; LESS PUBLIC RIGHT-OF-WAY |
| Parcel Number: | 360721240029 | Agent Code: | |
| Type: | Real | | |
| Tax Area: | 1 - OL-140-F | Land Use Code | 11 |
| Open Space: | N | DFL | N |
| Historic Property: | N | Remodel Property: | N |
| Multi-Family Redevelopment: | N | | |
| Township: | 7 | Section: | 21 |
| Range: | 36 |
Location |
| Address: | 1350 ISAACS AVE WA 99362 | Mapsco: | |
| Neighborhood: | G-SFR | Map ID: | |
| Neighborhood CD: | 514011 |
Owner |
| Name: | ROSE SUZANN | Owner ID: | 69063 |
| Mailing Address: | 1350 ISAACS AVE WALLA WALLA, WA 99362 | % Ownership: | 100.0000000000% |
| | | Exemptions: | |
Taxes and Assessment Details
Property Tax Information as of
02/21/2026
Click on "Statement Details" to expand or collapse a tax statement.
* Please enter a valid date ** Please enter a valid date *
Statement Details |
| | TOTAL: | $0.00 | $0.00 | $0.00 | $0.00 | $0.00 | $0.00 |
|
| | $0.00 | $0.00 | $0.00 | $0.00 | $0.00 | $0.00 |
Values
| (+) Improvement Homesite Value: | + | $0 | |
| (+) Improvement Non-Homesite Value: | + | $354,990 | |
| (+) Land Homesite Value: | + | $0 | |
| (+) Land Non-Homesite Value: | + | $43,630 | |
| (+) Curr Use (HS): | + | $0 | $0 |
| (+) Curr Use (NHS): | + | $0 | $0 |
| | | -------------------------- | |
| (=) Market Value: | = | $398,620 | |
| (–) Productivity Loss: | – | $0 | |
| | | -------------------------- | |
| (=) Subtotal: | = | $398,620 | |
| (+) Senior Appraised Value: | + | $0 | |
| (+) Non-Senior Appraised Value: | + | $398,620 | |
| | | -------------------------- | |
| (=) Total Appraised Value: | = | $398,620 | |
| (–) Senior Exemption Loss: | – | $0 | |
| (–) Exemption Loss: | – | $0 | |
| | | -------------------------- | |
| (=) Taxable Value: | = | $398,620 | |
Taxing Jurisdiction
| Owner: | ROSE SUZANN | | |
| % Ownership: | 100.0000000000% | | |
| Total Value: | $398,620 | | |
| Tax Area: | 1 - OL-140-F |
| CERFD | CURRENT EXPENSE REFUND 010 | 0.0000000000 | $398,620 | $398,620 | $0.00 | | |
| CURREXP | CURRENT EXPENSE 010 | 1.0175366760 | $398,620 | $398,620 | $405.61 | | |
| HUMNSERV | HUMAN SERVICES 119 | 0.0250000000 | $398,620 | $398,620 | $9.97 | | |
| SLDREL | SOLDIERS RELIEF 121 | 0.0155990005 | $398,620 | $398,620 | $6.22 | | |
| EMERGSER | EMS 147 | 0.3792580840 | $398,620 | $398,620 | $151.18 | | |
| EMSRFD | EMS REFUND 147 | 0.0000000000 | $398,620 | $398,620 | $0.00 | | |
| PORTRFD | PORT REFUND 640 | 0.0000000000 | $398,620 | $398,620 | $0.00 | | |
| PORTWWGEN | PORT OF WW 640 | 0.2460186015 | $398,620 | $398,620 | $98.07 | | |
| SD140BOND | SD #140 BOND 764 | 0.8342371393 | $398,620 | $398,620 | $332.54 | | |
| SD140GEN | SD #140 GENERAL 760 | 2.0646500647 | $398,620 | $398,620 | $823.01 | | |
| ST2 | STATE SCHOOL PART 2 600 | 0.8131451643 | $398,620 | $398,620 | $324.14 | | |
| STATESCHL | STATE SCHOOL 600 | 1.5158548041 | $398,620 | $398,620 | $604.25 | | |
| STREFUND | STATE REFUND LEVY 603 | 0.0000000000 | $398,620 | $398,620 | $0.00 | | |
| CWWBOND | C OF WW BOND 643 | 0.2760494372 | $398,620 | $398,620 | $110.04 | | |
| CWWGEN | CITY OF WW 631 | 1.6100204973 | $398,620 | $398,620 | $641.79 | | |
| CWWRFD | CITY OF WALLA WALLA REFUND 631 | 0.0000000000 | $398,620 | $398,620 | $0.00 | | |
| | Total Tax Rate: | 8.7973694689 | | | | | |
| | | | | Taxes w/Current Exemptions: | $3,506.82 | | |
| | | | | Taxes w/o Exemptions: | $3,506.82 | | |
Improvement / Building
| Improvement #1: | RESIDENTIAL | State Code: | 11 | 1179.0 sqft | Value: | $354,990 |
| Exterior Wall: | SIDING | Heating/Cooling: | WARM & COOLED AIR | | Number of Bathrooms: | 2 | Number of Bedrooms: | 2 | | Plumbing: | 12 | Roof Covering: | COMP SHINGLE |
|
| | Type | Description | Class CD | Sub Class CD | Year Built | Area |
| | MA | Main Area | 1 | 35 | 1924 | 1179.0 |
| | SI1 | SITE IMPROVEMENT | 1 | 35 | 1924 | 3.0 |
| | BASE | BASEMENT | 1 | 35 | 1924 | 1179.0 |
| | BPF | BASEMENT -PARTITIONED FINISH | 1 | 35 | 1924 | 1179.0 |
| | DTG | Detached Garage | 1 | 35 | 1924 | 228.0 |
| | S1F | Single One Story Fireplace | 1 | 35 | 1924 | 1.0 |
| | PRC | PORCH W STEPS, ROOF,CEILED | 1 | 35 | 1924 | 108.0 |
| | RCD | WOOD DECK W/ROOF, CEILED | 1 | 35 | 1924 | 198.0 |
Sketch
Property Image
Land
| 1 | RES 1 | Converted: Residential | 0.1382 | 6018.00 | 0.00 | 0.00 | 1.00 | $43,630 | $0 |
Roll Value History
| 2026 | N/A | N/A | N/A | N/A | N/A |
| 2025 | $434,450 | $66,200 | $0 | $500,650 | $500,650 |
| 2024 | $334,190 | $66,200 | $0 | $400,390 | $400,390 |
| 2023 | $354,990 | $43,630 | $0 | $398,620 | $398,620 |
| 2022 | $322,720 | $43,630 | $0 | $366,350 | $366,350 |
| 2021 | $307,350 | $43,630 | $0 | $350,980 | $350,980 |
| 2020 | $159,850 | $43,630 | $0 | $203,480 | $203,480 |
| 2019 | $159,850 | $43,630 | $0 | $203,480 | $203,480 |
| 2018 | $139,000 | $43,630 | $0 | $182,630 | $182,630 |
| 2017 | $152,680 | $27,400 | $0 | $180,080 | $180,080 |
| 2016 | $152,680 | $27,400 | $0 | $180,080 | $180,080 |
| 2015 | $138,800 | $27,400 | $0 | $166,200 | $166,200 |
| 2014 | $138,800 | $27,400 | $0 | $166,200 | $166,200 |
| 2013 | $138,800 | $27,400 | $0 | $166,200 | $166,200 |
| 2012 | $145,000 | $27,400 | $0 | $0 | $0 |
| 2011 | $145,000 | $27,400 | $0 | $0 | $0 |
| 2010 | $136,800 | $27,400 | $0 | $0 | $0 |
| 2009 | $155,000 | $27,400 | $0 | $0 | $0 |
| 2008 | $121,600 | $24,300 | $0 | $0 | $0 |
| 2007 | $121,600 | $24,300 | $0 | $0 | $0 |
Deed and Sales History
| 1 | 03/22/2021 | SWD | STATUTORY WARRANTY DEED | W2 RENTALS LLC | ROSE SUZANN | | | $362,500.00 | 141148 | 2021-03241 |
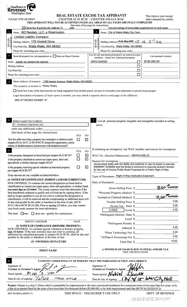
| 2 | 12/28/2018 | EASE | EASEMENT | W2 RENTALS LLC | WALLA WALLA CITY OF | | | $3,160.00 | 136163 | 2018-10654 |
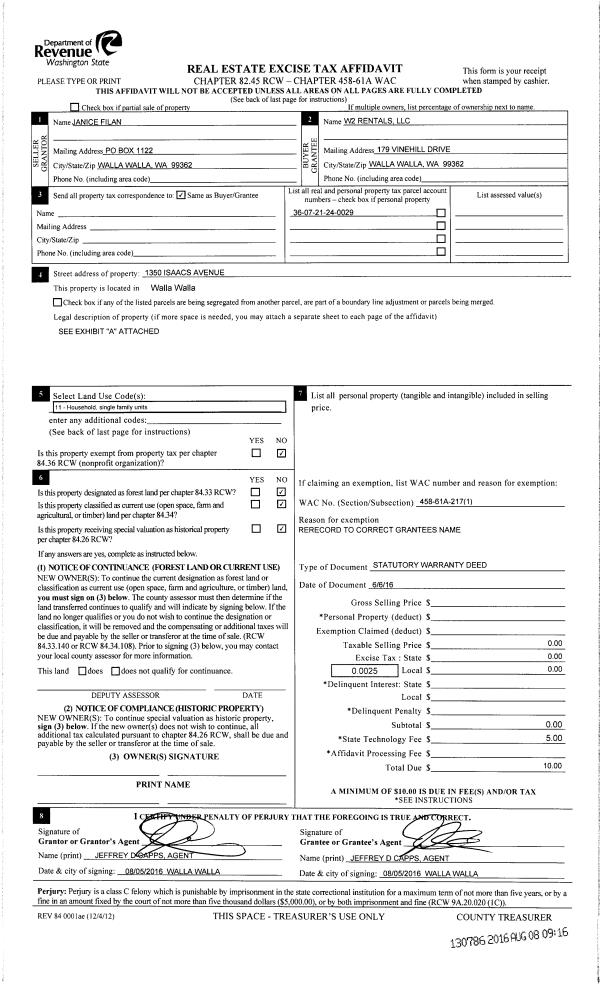
| 3 | 08/05/2016 | SWD | STATUTORY WARRANTY DEED | FILAN JANICE ELAINE | W2 RENTALS LLC | | | $0.00 | 130786 | 2016-06255 |
| 4 | 06/09/2016 | DEED | DEED | WALLA 2 RENTALS LLC | | | | | 0 | 2016-04322 |
| 5 | 06/06/2016 | SWD | STATUTORY WARRANTY DEED | FILAN JANICE ELAINE | WALLA 2 RENTALS LLC | | | $150,000.00 | 130354 | 2016-04252 |
| 6 | 08/27/1999 | WARRANTY D | WARRANTY DEED | | | | | $79,900.00 | 93499 | 2889-910066 |
Payout Agreement
| No payout information available.. |