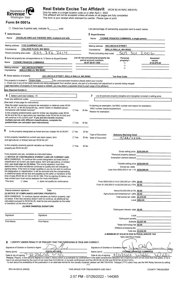
Property
Account |
| Property ID: | 29426 | Abbreviated Legal Description: | PARK WLY 1/2 LOT 1 BLOCK E (12); ELY 3 1/2' LOT 4 BLOCK 8 |
| Parcel Number: | 360720671205 | Agent Code: | |
| Type: | Real | | |
| Tax Area: | 1 - OL-140-F | Land Use Code | 11 |
| Open Space: | N | DFL | N |
| Historic Property: | N | Remodel Property: | N |
| Multi-Family Redevelopment: | N | | |
| Township: | 7 | Section: | 20 |
| Range: | 36 |
Location |
| Address: | 422 LINCOLN ST WA 99362 | Mapsco: | |
| Neighborhood: | G-SFR | Map ID: | |
| Neighborhood CD: | 514011 |
Owner |
| Name: | CUMMINGS YVONNE FRANCES | Owner ID: | 72013 |
| Mailing Address: | 422 LINCOLN ST WALLA WALLA, WA 99362 | % Ownership: | 100.0000000000% |
| | | Exemptions: | |
Taxes and Assessment Details
Values
| (+) Improvement Homesite Value: | + | $162,650 | |
| (+) Improvement Non-Homesite Value: | + | $0 | |
| (+) Land Homesite Value: | + | $24,290 | |
| (+) Land Non-Homesite Value: | + | $0 | |
| (+) Curr Use (HS): | + | $0 | $0 |
| (+) Curr Use (NHS): | + | $0 | $0 |
| | | -------------------------- | |
| (=) Market Value: | = | $186,940 | |
| (–) Productivity Loss: | – | $0 | |
| | | -------------------------- | |
| (=) Subtotal: | = | $186,940 | |
| (+) Senior Appraised Value: | + | $0 | |
| (+) Non-Senior Appraised Value: | + | $186,940 | |
| | | -------------------------- | |
| (=) Total Appraised Value: | = | $186,940 | |
| (–) Senior Exemption Loss: | – | $0 | |
| (–) Exemption Loss: | – | $0 | |
| | | -------------------------- | |
| (=) Taxable Value: | = | $186,940 | |
Taxing Jurisdiction
| Owner: | CUMMINGS YVONNE FRANCES | | |
| % Ownership: | 100.0000000000% | | |
| Total Value: | $186,940 | | |
| Tax Area: | 1 - OL-140-F |
| CERFD | CURRENT EXPENSE REFUND 010 | 0.0000000000 | $186,940 | $186,940 | $0.00 | | |
| CURREXP | CURRENT EXPENSE 010 | 1.0175366760 | $186,940 | $186,940 | $190.22 | | |
| HUMNSERV | HUMAN SERVICES 119 | 0.0250000000 | $186,940 | $186,940 | $4.67 | | |
| SLDREL | SOLDIERS RELIEF 121 | 0.0155990005 | $186,940 | $186,940 | $2.92 | | |
| EMERGSER | EMS 147 | 0.3792580840 | $186,940 | $186,940 | $70.90 | | |
| EMSRFD | EMS REFUND 147 | 0.0000000000 | $186,940 | $186,940 | $0.00 | | |
| PORTRFD | PORT REFUND 640 | 0.0000000000 | $186,940 | $186,940 | $0.00 | | |
| PORTWWGEN | PORT OF WW 640 | 0.2460186015 | $186,940 | $186,940 | $45.99 | | |
| SD140BOND | SD #140 BOND 764 | 0.8342371393 | $186,940 | $186,940 | $155.95 | | |
| SD140GEN | SD #140 GENERAL 760 | 2.0646500647 | $186,940 | $186,940 | $385.97 | | |
| ST2 | STATE SCHOOL PART 2 600 | 0.8131451643 | $186,940 | $186,940 | $152.01 | | |
| STATESCHL | STATE SCHOOL 600 | 1.5158548041 | $186,940 | $186,940 | $283.37 | | |
| STREFUND | STATE REFUND LEVY 603 | 0.0000000000 | $186,940 | $186,940 | $0.00 | | |
| CWWBOND | C OF WW BOND 643 | 0.2760494372 | $186,940 | $186,940 | $51.60 | | |
| CWWGEN | CITY OF WW 631 | 1.6100204973 | $186,940 | $186,940 | $300.98 | | |
| CWWRFD | CITY OF WALLA WALLA REFUND 631 | 0.0000000000 | $186,940 | $186,940 | $0.00 | | |
| | Total Tax Rate: | 8.7973694689 | | | | | |
| | | | | Taxes w/Current Exemptions: | $1,644.58 | | |
| | | | | Taxes w/o Exemptions: | $1,644.58 | | |
Improvement / Building
| Improvement #1: | RESIDENTIAL | State Code: | 11 | 722.0 sqft | Value: | $162,650 |
| Exterior Wall: | SIDING | Heating/Cooling: | FORCED AIR | | Number of Bathrooms: | 1 | Number of Bedrooms: | 1 | | Plumbing: | 6 | Roof Covering: | COMP SHINGLE |
|
| | Type | Description | Class CD | Sub Class CD | Year Built | Area |
| | MA | Main Area | 1 | 20 | 1900 | 722.0 |
| | SI1 | SITE IMPROVEMENT | 1 | 20 | 1900 | 1.0 |
| | BASE | BASEMENT | 1 | 20 | 1900 | 384.0 |
| | OPS | OPEN PORCH W/STEPS | 1 | 20 | 1900 | 12.0 |
Sketch
Property Image
Land
| 1 | RES 1 | Converted: Residential | 0.0769 | 3350.00 | 0.00 | 0.00 | 1.00 | $24,290 | $0 |
Roll Value History
| 2026 | N/A | N/A | N/A | N/A | N/A |
| 2025 | $161,900 | $36,850 | $0 | $198,750 | $198,750 |
| 2024 | $161,900 | $36,850 | $0 | $198,750 | $198,750 |
| 2023 | $162,650 | $24,290 | $0 | $186,940 | $186,940 |
| 2022 | $147,860 | $24,290 | $0 | $172,150 | $172,150 |
| 2021 | $98,580 | $24,290 | $0 | $122,870 | $122,870 |
| 2020 | $61,610 | $24,290 | $0 | $85,900 | $85,900 |
| 2019 | $61,610 | $24,290 | $0 | $85,900 | $85,900 |
| 2018 | $61,610 | $24,290 | $0 | $85,900 | $85,900 |
| 2017 | $66,690 | $15,100 | $0 | $81,790 | $81,790 |
| 2016 | $55,580 | $15,100 | $0 | $70,680 | $70,680 |
| 2015 | $55,580 | $15,100 | $0 | $70,680 | $70,680 |
| 2014 | $74,100 | $15,100 | $0 | $89,200 | $89,200 |
| 2013 | $74,100 | $15,100 | $0 | $89,200 | $0 |
| 2012 | $76,100 | $15,100 | $0 | $0 | $0 |
| 2011 | $76,100 | $15,100 | $0 | $0 | $0 |
| 2010 | $71,800 | $15,100 | $0 | $0 | $0 |
| 2009 | $81,500 | $15,100 | $0 | $0 | $0 |
| 2008 | $74,100 | $15,100 | $0 | $0 | $0 |
| 2007 | $74,100 | $15,100 | $0 | $0 | $0 |
Deed and Sales History
| 1 | 07/22/2022 | SWD | STATUTORY WARRANTY DEED | GIES DOUGLAS & TUESDEE | CUMMINGS YVONNE FRANCES | | | $225,000.00 | 144365 | 2022-06253 |
| 2 | 08/26/2014 | SWD | STATUTORY WARRANTY DEED | TENNYSON MARY | GIES DOUGLAS & TUESDEE | | | $72,000.00 | 126523 | 2014-06206 |
| 3 | 04/24/1984 | WARRANTY D | WARRANTY DEED | | | | | $0.00 | 0 | 1438-402838 |
Payout Agreement
| No payout information available.. |