Property
Account |
| Property ID: | 29425 | Abbreviated Legal Description: | FRISCO S 10' OF LOT 8 N 40' OF LOT 9 |
| Parcel Number: | 360729660009 | Agent Code: | |
| Type: | Real | | |
| Tax Area: | 1 - OL-140-F | Land Use Code | 11 |
| Open Space: | N | DFL | N |
| Historic Property: | N | Remodel Property: | N |
| Multi-Family Redevelopment: | N | | |
| Township: | 7 | Section: | 29 |
| Range: | 36 |
Location |
| Address: | 611 FRISCO ST WA 99362 | Mapsco: | |
| Neighborhood: | A-SFR | Map ID: | |
| Neighborhood CD: | 513011 |
Owner |
| Name: | CARELI PROPERTIES LLC | Owner ID: | 73446 |
| Mailing Address: | 387 N MACBETH AVE OTHELLO, WA 99344 | % Ownership: | 100.0000000000% |
| | | Exemptions: | |
Taxes and Assessment Details
Property Tax Information as of
02/21/2026
Click on "Statement Details" to expand or collapse a tax statement.
* Please enter a valid date ** Please enter a valid date *
Statement Details |
| | TOTAL: | $0.00 | $0.00 | $0.00 | $0.00 | $0.00 | $0.00 |
|
| | $0.00 | $0.00 | $0.00 | $0.00 | $0.00 | $0.00 |
Values
| (+) Improvement Homesite Value: | + | $98,050 | |
| (+) Improvement Non-Homesite Value: | + | $0 | |
| (+) Land Homesite Value: | + | $37,500 | |
| (+) Land Non-Homesite Value: | + | $0 | |
| (+) Curr Use (HS): | + | $0 | $0 |
| (+) Curr Use (NHS): | + | $0 | $0 |
| | | -------------------------- | |
| (=) Market Value: | = | $135,550 | |
| (–) Productivity Loss: | – | $0 | |
| | | -------------------------- | |
| (=) Subtotal: | = | $135,550 | |
| (+) Senior Appraised Value: | + | $0 | |
| (+) Non-Senior Appraised Value: | + | $135,550 | |
| | | -------------------------- | |
| (=) Total Appraised Value: | = | $135,550 | |
| (–) Senior Exemption Loss: | – | $0 | |
| (–) Exemption Loss: | – | $0 | |
| | | -------------------------- | |
| (=) Taxable Value: | = | $135,550 | |
Taxing Jurisdiction
| Owner: | CARELI PROPERTIES LLC | | |
| % Ownership: | 100.0000000000% | | |
| Total Value: | $135,550 | | |
| Tax Area: | 1 - OL-140-F |
| CERFD | CURRENT EXPENSE REFUND 010 | 0.0000000000 | $135,550 | $135,550 | $0.00 | | |
| CURREXP | CURRENT EXPENSE 010 | 1.0175366760 | $135,550 | $135,550 | $137.93 | | |
| HUMNSERV | HUMAN SERVICES 119 | 0.0250000000 | $135,550 | $135,550 | $3.39 | | |
| SLDREL | SOLDIERS RELIEF 121 | 0.0155990005 | $135,550 | $135,550 | $2.11 | | |
| EMERGSER | EMS 147 | 0.3792580840 | $135,550 | $135,550 | $51.41 | | |
| EMSRFD | EMS REFUND 147 | 0.0000000000 | $135,550 | $135,550 | $0.00 | | |
| PORTRFD | PORT REFUND 640 | 0.0000000000 | $135,550 | $135,550 | $0.00 | | |
| PORTWWGEN | PORT OF WW 640 | 0.2460186015 | $135,550 | $135,550 | $33.35 | | |
| SD140BOND | SD #140 BOND 764 | 0.8342371393 | $135,550 | $135,550 | $113.08 | | |
| SD140GEN | SD #140 GENERAL 760 | 2.0646500647 | $135,550 | $135,550 | $279.86 | | |
| ST2 | STATE SCHOOL PART 2 600 | 0.8131451643 | $135,550 | $135,550 | $110.22 | | |
| STATESCHL | STATE SCHOOL 600 | 1.5158548041 | $135,550 | $135,550 | $205.47 | | |
| STREFUND | STATE REFUND LEVY 603 | 0.0000000000 | $135,550 | $135,550 | $0.00 | | |
| CWWBOND | C OF WW BOND 643 | 0.2760494372 | $135,550 | $135,550 | $37.42 | | |
| CWWGEN | CITY OF WW 631 | 1.6100204973 | $135,550 | $135,550 | $218.24 | | |
| CWWRFD | CITY OF WALLA WALLA REFUND 631 | 0.0000000000 | $135,550 | $135,550 | $0.00 | | |
| | Total Tax Rate: | 8.7973694689 | | | | | |
| | | | | Taxes w/Current Exemptions: | $1,192.48 | | |
| | | | | Taxes w/o Exemptions: | $1,192.48 | | |
Improvement / Building
| Improvement #1: | RESIDENTIAL | State Code: | 11 | 870.0 sqft | Value: | $98,050 |
| Exterior Wall: | STUCCO | Heating/Cooling: | FORCED AIR | | Number of Bathrooms: | 1 | Number of Bedrooms: | 2 | | Plumbing: | 6 | Roof Covering: | COMP SHINGLE |
|
| | Type | Description | Class CD | Sub Class CD | Year Built | Area |
| | MA | Main Area | 1 | 30 | 1895 | 870.0 |
| | SI1 | SITE IMPROVEMENT | 1 | 30 | 1895 | 1.0 |
| | BASE | BASEMENT | 1 | 30 | 1895 | 615.0 |
| | RPS | PORCH W/STEPS,ROOF | 1 | 30 | 1895 | 20.0 |
Sketch
Property Image
Land
| 1 | RES 1 | Converted: Residential | 0.1377 | 6000.00 | 0.00 | 0.00 | 1.00 | $37,500 | $0 |
Roll Value History
| 2026 | N/A | N/A | N/A | N/A | N/A |
| 2025 | $194,740 | $60,000 | $0 | $254,740 | $254,740 |
| 2024 | $185,470 | $60,000 | $0 | $245,470 | $245,470 |
| 2023 | $98,050 | $37,500 | $0 | $135,550 | $135,550 |
| 2022 | $98,050 | $37,500 | $0 | $135,550 | $135,550 |
| 2021 | $75,430 | $37,500 | $0 | $112,930 | $0 |
| 2020 | $53,880 | $37,500 | $0 | $91,380 | $0 |
| 2019 | $53,880 | $37,500 | $0 | $91,380 | $0 |
| 2018 | $51,310 | $37,500 | $0 | $88,810 | $0 |
| 2017 | $47,120 | $24,000 | $0 | $71,120 | $0 |
| 2016 | $42,840 | $24,000 | $0 | $66,840 | $9,900 |
| 2015 | $42,840 | $24,000 | $0 | $66,840 | $0 |
| 2014 | $47,600 | $24,000 | $0 | $71,600 | $9,900 |
| 2013 | $47,600 | $24,000 | $0 | $71,600 | $9,900 |
| 2012 | $96,400 | $24,000 | $0 | $0 | $0 |
| 2011 | $96,400 | $24,000 | $0 | $0 | $0 |
| 2010 | $80,700 | $24,000 | $0 | $0 | $0 |
| 2009 | $92,300 | $24,000 | $0 | $0 | $0 |
| 2008 | $80,300 | $36,000 | $0 | $0 | $0 |
| 2007 | $41,900 | $18,000 | $0 | $0 | $0 |
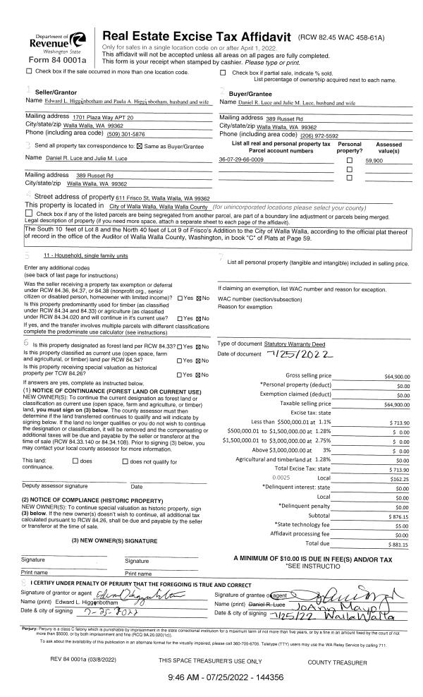
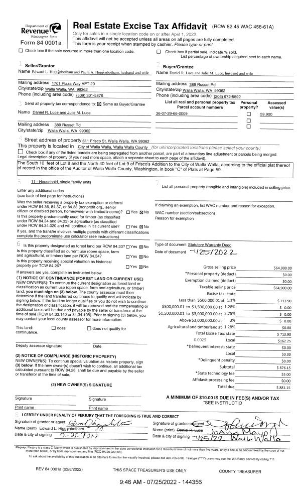
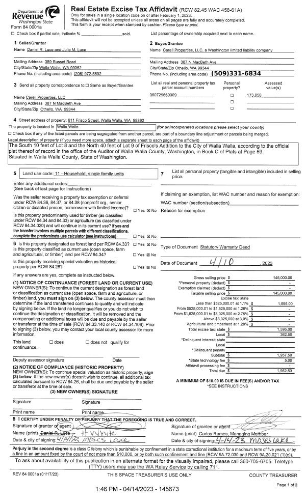
Deed and Sales History
| 1 | 04/14/2023 | SWD | STATUTORY WARRANTY DEED | LUCE DANIEL R & JULIE M | CARELI PROPERTIES LLC | | | $145,000.00 | 145673 | 2023-01985 |
| 2 | 07/25/2022 | SWD | STATUTORY WARRANTY DEED | HIGGINBOTHAM EDWARD & PAULA | LUCE DANIEL R & JULIE M | | | $64,900.00 | 144356 | 2022-06203 |
| 3 | 04/28/1995 | WARRANTY D | WARRANTY DEED | | | | | $52,500.00 | 83897 | 2299-503950 |
Payout Agreement
| No payout information available.. |