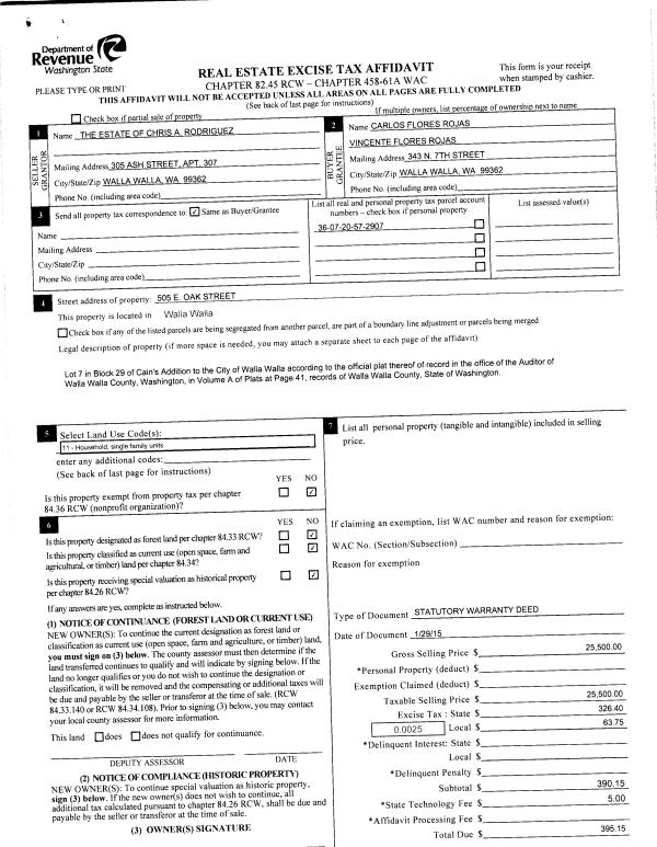
Property
Account |
| Property ID: | 29401 | Abbreviated Legal Description: | CAINS LOT 7 BLK 29 |
| Parcel Number: | 360720572907 | Agent Code: | |
| Type: | Real | | |
| Tax Area: | 1 - OL-140-F | Land Use Code | 91 |
| Open Space: | N | DFL | N |
| Historic Property: | N | Remodel Property: | N |
| Multi-Family Redevelopment: | N | | |
| Township: | 7 | Section: | 20 |
| Range: | 36 |
Location |
| Address: | 505 E OAK ST WA 99362 | Mapsco: | |
| Neighborhood: | F Land Only | Map ID: | |
| Neighborhood CD: | 512091 |
Owner |
| Name: | ROJAS CARLOS FLORES | Owner ID: | 51416 |
| Mailing Address: | VINCENTE FLORES ROJAS 343 N 7TH ST WALLA WALLA, WA 99362 | % Ownership: | 100.0000000000% |
| | | Exemptions: | |
Taxes and Assessment Details
Values
| (+) Improvement Homesite Value: | + | $0 | |
| (+) Improvement Non-Homesite Value: | + | $0 | |
| (+) Land Homesite Value: | + | $37,800 | |
| (+) Land Non-Homesite Value: | + | $0 | |
| (+) Curr Use (HS): | + | $0 | $0 |
| (+) Curr Use (NHS): | + | $0 | $0 |
| | | -------------------------- | |
| (=) Market Value: | = | $37,800 | |
| (–) Productivity Loss: | – | $0 | |
| | | -------------------------- | |
| (=) Subtotal: | = | $37,800 | |
| (+) Senior Appraised Value: | + | $0 | |
| (+) Non-Senior Appraised Value: | + | $37,800 | |
| | | -------------------------- | |
| (=) Total Appraised Value: | = | $37,800 | |
| (–) Senior Exemption Loss: | – | $0 | |
| (–) Exemption Loss: | – | $0 | |
| | | -------------------------- | |
| (=) Taxable Value: | = | $37,800 | |
Taxing Jurisdiction
| Owner: | ROJAS CARLOS FLORES | | |
| % Ownership: | 100.0000000000% | | |
| Total Value: | $37,800 | | |
| Tax Area: | 1 - OL-140-F |
| CERFD | CURRENT EXPENSE REFUND 010 | 0.0000000000 | $37,800 | $37,800 | $0.00 | | |
| CURREXP | CURRENT EXPENSE 010 | 1.0175366760 | $37,800 | $37,800 | $38.46 | | |
| HUMNSERV | HUMAN SERVICES 119 | 0.0250000000 | $37,800 | $37,800 | $0.95 | | |
| SLDREL | SOLDIERS RELIEF 121 | 0.0155990005 | $37,800 | $37,800 | $0.59 | | |
| EMERGSER | EMS 147 | 0.3792580840 | $37,800 | $37,800 | $14.34 | | |
| EMSRFD | EMS REFUND 147 | 0.0000000000 | $37,800 | $37,800 | $0.00 | | |
| PORTRFD | PORT REFUND 640 | 0.0000000000 | $37,800 | $37,800 | $0.00 | | |
| PORTWWGEN | PORT OF WW 640 | 0.2460186015 | $37,800 | $37,800 | $9.30 | | |
| SD140BOND | SD #140 BOND 764 | 0.8342371393 | $37,800 | $37,800 | $31.53 | | |
| SD140GEN | SD #140 GENERAL 760 | 2.0646500647 | $37,800 | $37,800 | $78.04 | | |
| ST2 | STATE SCHOOL PART 2 600 | 0.8131451643 | $37,800 | $37,800 | $30.74 | | |
| STATESCHL | STATE SCHOOL 600 | 1.5158548041 | $37,800 | $37,800 | $57.30 | | |
| STREFUND | STATE REFUND LEVY 603 | 0.0000000000 | $37,800 | $37,800 | $0.00 | | |
| CWWBOND | C OF WW BOND 643 | 0.2760494372 | $37,800 | $37,800 | $10.43 | | |
| CWWGEN | CITY OF WW 631 | 1.6100204973 | $37,800 | $37,800 | $60.86 | | |
| CWWRFD | CITY OF WALLA WALLA REFUND 631 | 0.0000000000 | $37,800 | $37,800 | $0.00 | | |
| | Total Tax Rate: | 8.7973694689 | | | | | |
| | | | | Taxes w/Current Exemptions: | $332.54 | | |
| | | | | Taxes w/o Exemptions: | $332.54 | | |
Improvement / Building
Sketch
| No sketches available for this property. |
Property Image
Land
| 1 | RES 1 | Converted: Residential | 0.1653 | 7200.00 | 0.00 | 0.00 | 1.00 | $37,800 | $0 |
Roll Value History
| 2026 | N/A | N/A | N/A | N/A | N/A |
| 2025 | $0 | $64,800 | $0 | $64,800 | $64,800 |
| 2024 | $0 | $64,800 | $0 | $64,800 | $64,800 |
| 2023 | $0 | $37,800 | $0 | $37,800 | $37,800 |
| 2022 | $0 | $37,800 | $0 | $37,800 | $37,800 |
| 2021 | $0 | $37,800 | $0 | $37,800 | $37,800 |
| 2020 | $0 | $37,800 | $0 | $37,800 | $37,800 |
| 2019 | $0 | $37,800 | $0 | $37,800 | $37,800 |
| 2018 | $0 | $37,800 | $0 | $37,800 | $37,800 |
| 2017 | $0 | $21,600 | $0 | $21,600 | $21,600 |
| 2016 | $0 | $21,600 | $0 | $21,600 | $21,600 |
| 2015 | $0 | $21,600 | $0 | $21,600 | $21,600 |
| 2014 | $10,000 | $21,600 | $0 | $31,600 | $31,600 |
| 2013 | $19,400 | $21,600 | $0 | $41,000 | $0 |
| 2012 | $19,400 | $21,600 | $0 | $0 | $0 |
| 2011 | $19,400 | $21,600 | $0 | $0 | $0 |
| 2010 | $19,400 | $21,600 | $0 | $0 | $0 |
| 2009 | $23,900 | $21,600 | $0 | $0 | $0 |
| 2008 | $13,400 | $21,600 | $0 | $0 | $0 |
| 2007 | $13,400 | $21,600 | $0 | $0 | $0 |
Deed and Sales History
| 1 | 01/30/2015 | SWD | STATUTORY WARRANTY DEED | RODRIGUEZ CHRIS ANTHONY ESTATE OF | ROJAS CARLOS FLORES | | | $25,500.00 | 127358 | 2015-00815 |
| 2 | 01/15/2015 | QCD | QUIT CLAIM DEED | BROOKS RENA ROSEMARY | RODRIGUEZ CHRIS ANTHONY ESTATE OF | | | $5.00 | 127280 | 2015-00367 |
| 3 | 05/15/2014 | QCD | QUIT CLAIM DEED | RODRIGUEZ RETA J | BROOKS RENA ROSEMARY | | | | 125889 | 2014-03301 |
| 4 | 01/27/1971 | WARRANTY D | WARRANTY DEED | | | | | $0.00 | 0 | 339-512245 |
Payout Agreement
| No payout information available.. |