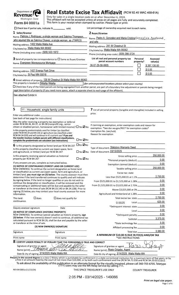
Property
Account |
| Property ID: | 29384 | Abbreviated Legal Description: | CHASE E 65' OF LOT 5 BLK 6 |
| Parcel Number: | 360729580605 | Agent Code: | |
| Type: | Real | | |
| Tax Area: | 1 - OL-140-F | Land Use Code | 11 |
| Open Space: | N | DFL | N |
| Historic Property: | N | Remodel Property: | N |
| Multi-Family Redevelopment: | N | | |
| Township: | 7 | Section: | 29 |
| Range: | 36 |
Location |
| Address: | 126 W CHESTNUT ST WA 99362 | Mapsco: | |
| Neighborhood: | Fair Inferior Res | Map ID: | |
| Neighborhood CD: | 512111 |
Owner |
| Name: | RODRIGUEZ PATRICIA J | Owner ID: | 45404 |
| Mailing Address: | SABRINA CHAVEZ 126 W CHESTNUT ST WALLA WALLA, WA 99362 | % Ownership: | 100.0000000000% |
| | | Exemptions: | SNR/DSBL |
Taxes and Assessment Details
Property Tax Information as of
04/19/2026
Click on "Statement Details" to expand or collapse a tax statement.
* Please enter a valid date ** Please enter a valid date *
Statement Details |
| | TOTAL: | $0.00 | $0.00 | $0.00 | $0.00 | $0.00 | $0.00 |
|
| | $0.00 | $0.00 | $0.00 | $0.00 | $0.00 | $0.00 |
Values
| (+) Improvement Homesite Value: | + | $151,380 | |
| (+) Improvement Non-Homesite Value: | + | $0 | |
| (+) Land Homesite Value: | + | $51,190 | |
| (+) Land Non-Homesite Value: | + | $0 | |
| (+) Curr Use (HS): | + | $0 | $0 |
| (+) Curr Use (NHS): | + | $0 | $0 |
| | | -------------------------- | |
| (=) Market Value: | = | $202,570 | |
| (–) Productivity Loss: | – | $0 | |
| | | -------------------------- | |
| (=) Subtotal: | = | $202,570 | |
| (+) Senior Appraised Value: | + | $48,800 | |
| (+) Non-Senior Appraised Value: | + | $0 | |
| | | -------------------------- | |
| (=) Total Appraised Value: | = | $48,800 | |
| (–) Senior Exemption Loss: | – | $48,800 | |
| (–) Exemption Loss: | – | $0 | |
| | | -------------------------- | |
| (=) Taxable Value: | = | $0 | |
Taxing Jurisdiction
| Owner: | RODRIGUEZ PATRICIA J | | |
| % Ownership: | 100.0000000000% | | |
| Total Value: | $202,570 | | |
| Tax Area: | 1 - OL-140-F |
| CERFD | CURRENT EXPENSE REFUND 010 | 0.0000000000 | $202,570 | $0 | $0.00 | | |
| CURREXP | CURRENT EXPENSE 010 | 1.0175366760 | $202,570 | $0 | $0.00 | | |
| HUMNSERV | HUMAN SERVICES 119 | 0.0250000000 | $202,570 | $0 | $0.00 | | |
| SLDREL | SOLDIERS RELIEF 121 | 0.0155990005 | $202,570 | $0 | $0.00 | | |
| EMERGSER | EMS 147 | 0.3792580840 | $202,570 | $0 | $0.00 | | |
| EMSRFD | EMS REFUND 147 | 0.0000000000 | $202,570 | $0 | $0.00 | | |
| PORTRFD | PORT REFUND 640 | 0.0000000000 | $202,570 | $0 | $0.00 | | |
| PORTWWGEN | PORT OF WW 640 | 0.2460186015 | $202,570 | $0 | $0.00 | | |
| SD140BOND | SD #140 BOND 764 | 0.0000000000 | $202,570 | $0 | $0.00 | | |
| SD140GEN | SD #140 GENERAL 760 | 0.0000000000 | $202,570 | $0 | $0.00 | | |
| ST2 | STATE SCHOOL PART 2 600 | 0.0000000000 | $202,570 | $0 | $0.00 | | |
| STATESCHL | STATE SCHOOL 600 | 1.5158548041 | $202,570 | $0 | $0.00 | | |
| STREFUND | STATE REFUND LEVY 603 | 0.0000000000 | $202,570 | $0 | $0.00 | | |
| CWWBOND | C OF WW BOND 643 | 0.0000000000 | $202,570 | $0 | $0.00 | | |
| CWWGEN | CITY OF WW 631 | 1.6100204973 | $202,570 | $0 | $0.00 | | |
| CWWRFD | CITY OF WALLA WALLA REFUND 631 | 0.0000000000 | $202,570 | $0 | $0.00 | | |
| | Total Tax Rate: | 4.8092876634 | | | | | |
| | | | | Taxes w/Current Exemptions: | $0.00 | | |
| | | | | Taxes w/o Exemptions: | $1,782.09 | | |
Improvement / Building
| Improvement #1: | RESIDENTIAL | State Code: | 11 | 1275.0 sqft | Value: | $151,380 |
| Exterior Wall: | STUCCO | Heating/Cooling: | FORCED AIR | | Number of Bathrooms: | 1 | Number of Bedrooms: | 3 | | Plumbing: | 6 | Roof Covering: | COMP SHINGLE |
|
| | Type | Description | Class CD | Sub Class CD | Year Built | Area |
| | MA | Main Area | 4 | 25 | 1895 | 1275.0 |
| | UPFL | Upper Floor (included in main area) | 4 | 25 | 1895 | 300.0 |
| | SI1 | SITE IMPROVEMENT | 4 | 25 | 1895 | 1.0 |
| | BASE | BASEMENT | 4 | 25 | 1895 | 487.0 |
| | RPO | OPEN PORCH W/ROOF | 4 | 25 | 1895 | 115.0 |
Sketch
Property Image
Land
| 1 | RES 1 | Converted: Residential | 0.2238 | 9750.00 | 0.00 | 0.00 | 1.00 | $51,190 | $0 |
Roll Value History
| 2026 | N/A | N/A | N/A | N/A | N/A |
| 2025 | $166,590 | $77,030 | $0 | $243,620 | $243,620 |
| 2024 | $190,100 | $77,030 | $0 | $267,130 | $0 |
| 2023 | $151,380 | $51,190 | $0 | $202,570 | $0 |
| 2022 | $108,130 | $51,190 | $0 | $159,320 | $0 |
| 2021 | $86,500 | $51,190 | $0 | $137,690 | $0 |
| 2020 | $78,640 | $51,190 | $0 | $129,830 | $0 |
| 2019 | $78,640 | $51,190 | $0 | $129,830 | $0 |
| 2018 | $78,640 | $51,190 | $0 | $129,830 | $0 |
| 2017 | $63,500 | $46,900 | $0 | $110,400 | $0 |
| 2016 | $63,500 | $46,900 | $0 | $110,400 | $0 |
| 2015 | $63,500 | $46,900 | $0 | $110,400 | $0 |
| 2014 | $63,500 | $46,900 | $0 | $110,400 | $0 |
| 2013 | $63,500 | $46,900 | $0 | $110,400 | $0 |
| 2012 | $63,500 | $46,900 | $0 | $0 | $0 |
| 2011 | $63,500 | $46,900 | $0 | $0 | $0 |
| 2010 | $63,500 | $46,900 | $0 | $0 | $0 |
| 2009 | $83,000 | $46,900 | $0 | $0 | $0 |
| 2008 | $83,000 | $46,900 | $0 | $0 | $0 |
| 2007 | $54,300 | $19,500 | $0 | $0 | $0 |
Deed and Sales History
| 1 | 03/14/2025 | SWD | STATUTORY WARRANTY DEED | RODRIGUEZ PATRICIA J | GONZALEZ PEDRO A & MARIA CRISTINA | | | $250,000.00 | 149066 | 2025-01354 |
| 2 | 02/07/2008 | QCD | QUIT CLAIM DEED | RODRIGUEZ, PATRICIA JOANNE | RODRIGUEZ, PATRICIA J | | | $41,500.00 | 114391 | 2008-01160 |
| 3 | 11/25/1991 | WARRANTY D | WARRANTY DEED | | | | | $25,000.00 | 0 | 1939-108499 |
Payout Agreement
| No payout information available.. |