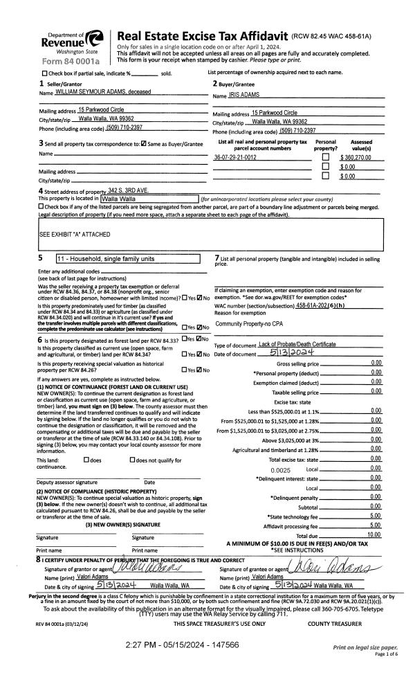
Property
Account |
| Property ID: | 29380 | Abbreviated Legal Description: | 29-7-36 TAX 19 |
| Parcel Number: | 360729210012 | Agent Code: | |
| Type: | Real | | |
| Tax Area: | 1 - OL-140-F | Land Use Code | 11 |
| Open Space: | N | DFL | N |
| Historic Property: | N | Remodel Property: | N |
| Multi-Family Redevelopment: | N | | |
| Township: | 7 | Section: | 29 |
| Range: | 36 |
Location |
| Address: | 342 S 3RD AVE WA 99362 | Mapsco: | |
| Neighborhood: | A-SFR | Map ID: | |
| Neighborhood CD: | 513011 |
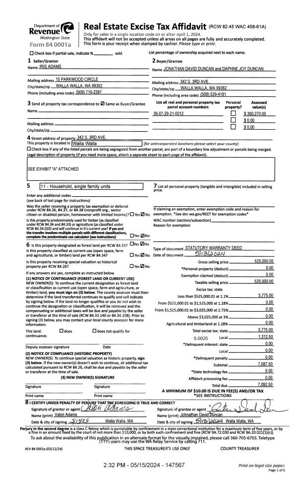
Owner |
| Name: | ADAMS IRIS | Owner ID: | 11815 |
| Mailing Address: | % VALORI ADAMS 15 PARKWOOD CIR WALLA WALLA, WA 99362 | % Ownership: | 100.0000000000% |
| | | Exemptions: | SNR/DSBL |
Taxes and Assessment Details
Values
| (+) Improvement Homesite Value: | + | $326,540 | |
| (+) Improvement Non-Homesite Value: | + | $0 | |
| (+) Land Homesite Value: | + | $63,410 | |
| (+) Land Non-Homesite Value: | + | $0 | |
| (+) Curr Use (HS): | + | $0 | $0 |
| (+) Curr Use (NHS): | + | $0 | $0 |
| | | -------------------------- | |
| (=) Market Value: | = | $389,950 | |
| (–) Productivity Loss: | – | $0 | |
| | | -------------------------- | |
| (=) Subtotal: | = | $389,950 | |
| (+) Senior Appraised Value: | + | $113,200 | |
| (+) Non-Senior Appraised Value: | + | $0 | |
| | | -------------------------- | |
| (=) Total Appraised Value: | = | $113,200 | |
| (–) Senior Exemption Loss: | – | $67,920 | |
| (–) Exemption Loss: | – | $0 | |
| | | -------------------------- | |
| (=) Taxable Value: | = | $45,280 | |
Taxing Jurisdiction
| Owner: | ADAMS IRIS | | |
| % Ownership: | 100.0000000000% | | |
| Total Value: | $389,950 | | |
| Tax Area: | 1 - OL-140-F |
| CERFD | CURRENT EXPENSE REFUND 010 | 0.0000000000 | $389,950 | $45,280 | $0.00 | | |
| CURREXP | CURRENT EXPENSE 010 | 1.0175366760 | $389,950 | $45,280 | $268.38 | | |
| HUMNSERV | HUMAN SERVICES 119 | 0.0250000000 | $389,950 | $45,280 | $6.59 | | |
| SLDREL | SOLDIERS RELIEF 121 | 0.0155990005 | $389,950 | $45,280 | $4.11 | | |
| EMERGSER | EMS 147 | 0.3792580840 | $389,950 | $45,280 | $100.03 | | |
| EMSRFD | EMS REFUND 147 | 0.0000000000 | $389,950 | $45,280 | $0.00 | | |
| PORTRFD | PORT REFUND 640 | 0.0000000000 | $389,950 | $45,280 | $0.00 | | |
| PORTWWGEN | PORT OF WW 640 | 0.2460186015 | $389,950 | $45,280 | $64.89 | | |
| SD140BOND | SD #140 BOND 764 | 0.0000000000 | $389,950 | $0 | $206.21 | | |
| SD140GEN | SD #140 GENERAL 760 | 0.0000000000 | $389,950 | $0 | $510.34 | | |
| ST2 | STATE SCHOOL PART 2 600 | 0.0000000000 | $389,950 | $0 | $200.99 | | |
| STATESCHL | STATE SCHOOL 600 | 1.5158548041 | $389,950 | $45,280 | $399.82 | | |
| STREFUND | STATE REFUND LEVY 603 | 0.0000000000 | $389,950 | $45,280 | $0.00 | | |
| CWWBOND | C OF WW BOND 643 | 0.0000000000 | $389,950 | $0 | $68.23 | | |
| CWWGEN | CITY OF WW 631 | 1.6100204973 | $389,950 | $45,280 | $424.66 | | |
| CWWRFD | CITY OF WALLA WALLA REFUND 631 | 0.0000000000 | $389,950 | $45,280 | $0.00 | | |
| | Total Tax Rate: | 4.8092876634 | | | | | |
| | | | | Taxes w/Current Exemptions: | $2,254.25 | | |
| | | | | Taxes w/o Exemptions: | $3,430.54 | | |
Improvement / Building
| Improvement #1: | RESIDENTIAL | State Code: | 11 | 3163.0 sqft | Value: | $326,540 |
| Exterior Wall: | SIDING | Heating/Cooling: | FORCED AIR | | Number of Bathrooms: | 3 | Number of Bedrooms: | 5 | | Plumbing: | 12 | Roof Covering: | COMP SHINGLE |
|
| | Type | Description | Class CD | Sub Class CD | Year Built | Area |
| | MA | Main Area | 2 | 40 | 1890 | 3163.0 |
| | UPFL | Upper Floor (included in main area) | 2 | 40 | 1890 | 1562.0 |
| | SI1 | SITE IMPROVEMENT | 2 | 40 | 1890 | 2.0 |
| | BASE | BASEMENT | 2 | 40 | 1890 | 1601.0 |
| | S2F | Single 2S Fireplace | 2 | 40 | 1890 | 2.0 |
| | WOD | Wood Deck | 2 | 40 | 1890 | 80.0 |
| | RCD | WOOD DECK W/ROOF, CEILED | 2 | 40 | 1890 | 479.0 |
| | DTG | Detached Garage | 2 | 40 | 1890 | 660.0 |
Sketch
Property Image
Land
| 1 | RES 1 | Converted: Residential | 0.2686 | 11700.00 | 0.00 | 0.00 | 1.00 | $63,410 | $0 |
Roll Value History
| 2026 | N/A | N/A | N/A | N/A | N/A |
| 2025 | $311,270 | $101,320 | $0 | $412,590 | $412,590 |
| 2024 | $303,300 | $101,320 | $0 | $404,620 | $404,620 |
| 2023 | $326,540 | $63,410 | $0 | $389,950 | $45,280 |
| 2022 | $296,860 | $63,410 | $0 | $360,270 | $45,280 |
| 2021 | $247,380 | $63,410 | $0 | $310,790 | $45,280 |
| 2020 | $206,150 | $63,410 | $0 | $269,560 | $45,280 |
| 2019 | $206,150 | $63,410 | $0 | $269,560 | $45,280 |
| 2018 | $206,150 | $63,410 | $0 | $269,560 | $45,280 |
| 2017 | $207,800 | $48,600 | $0 | $256,400 | $45,280 |
| 2016 | $197,900 | $48,600 | $0 | $246,500 | $45,280 |
| 2015 | $197,900 | $48,600 | $0 | $246,500 | $45,280 |
| 2014 | $197,900 | $48,600 | $0 | $246,500 | $45,280 |
| 2013 | $197,900 | $48,600 | $0 | $246,500 | $45,280 |
| 2012 | $197,900 | $48,600 | $0 | $0 | $0 |
| 2011 | $197,900 | $48,600 | $0 | $0 | $0 |
| 2010 | $197,900 | $48,600 | $0 | $0 | $0 |
| 2009 | $241,400 | $48,600 | $0 | $0 | $0 |
| 2008 | $241,400 | $48,600 | $0 | $0 | $0 |
| 2007 | $181,700 | $20,500 | $0 | $0 | $0 |
Deed and Sales History
| 1 | 05/15/2024 | SWD | STATUTORY WARRANTY DEED | ADAMS IRIS | DUNCAN JONATHAN DAVID & DAPHNE JOY | | | $525,000.00 | 147567 | 2024-02590 |
| 2 | 08/01/1966 | WARRANTY D | WARRANTY DEED | | | | | $7,500.00 | 0 | 3190-479336 |
Payout Agreement
| No payout information available.. |