Property
Account |
| Property ID: | 29363 | Abbreviated Legal Description: | MILBROOKE PARK LOT 2 BLK 2 |
| Parcel Number: | 360721650202 | Agent Code: | |
| Type: | Real | | |
| Tax Area: | 1 - OL-140-F | Land Use Code | 11 |
| Open Space: | N | DFL | N |
| Historic Property: | N | Remodel Property: | N |
| Multi-Family Redevelopment: | N | | |
| Township: | 7 | Section: | 21 |
| Range: | 36 |
Location |
| Address: | 139 FRANCIS DR WA 99362 | Mapsco: | |
| Neighborhood: | A-Superior SFR | Map ID: | |
| Neighborhood CD: | 513211 |
Owner |
| Name: | TINKER LINDA L BOLLINGER LIFE ESTATE | Owner ID: | 55650 |
| Mailing Address: | DEBRA JO KENTCH 139 FRANCIS DR WALLA WALLA, WA 99362 | % Ownership: | 100.0000000000% |
| | | Exemptions: | SNR/DSBL |
Taxes and Assessment Details
Property Tax Information as of
02/21/2026
Click on "Statement Details" to expand or collapse a tax statement.
* Please enter a valid date ** Please enter a valid date *
Statement Details |
| | TOTAL: | $0.00 | $0.00 | $0.00 | $0.00 | $0.00 | $0.00 |
|
| | $0.00 | $0.00 | $0.00 | $0.00 | $0.00 | $0.00 |
Values
| (+) Improvement Homesite Value: | + | $290,110 | |
| (+) Improvement Non-Homesite Value: | + | $0 | |
| (+) Land Homesite Value: | + | $33,300 | |
| (+) Land Non-Homesite Value: | + | $0 | |
| (+) Curr Use (HS): | + | $0 | $0 |
| (+) Curr Use (NHS): | + | $0 | $0 |
| | | -------------------------- | |
| (=) Market Value: | = | $323,410 | |
| (–) Productivity Loss: | – | $0 | |
| | | -------------------------- | |
| (=) Subtotal: | = | $323,410 | |
| (+) Senior Appraised Value: | + | $79,800 | |
| (+) Non-Senior Appraised Value: | + | $0 | |
| | | -------------------------- | |
| (=) Total Appraised Value: | = | $79,800 | |
| (–) Senior Exemption Loss: | – | $60,000 | |
| (–) Exemption Loss: | – | $0 | |
| | | -------------------------- | |
| (=) Taxable Value: | = | $19,800 | |
Taxing Jurisdiction
| Owner: | TINKER LINDA L BOLLINGER LIFE ESTATE | | |
| % Ownership: | 100.0000000000% | | |
| Total Value: | $323,410 | | |
| Tax Area: | 1 - OL-140-F |
| CERFD | CURRENT EXPENSE REFUND 010 | 0.0000000000 | $323,410 | $19,800 | $0.00 | | |
| CURREXP | CURRENT EXPENSE 010 | 1.0175366760 | $323,410 | $19,800 | $20.15 | | |
| HUMNSERV | HUMAN SERVICES 119 | 0.0250000000 | $323,410 | $19,800 | $0.50 | | |
| SLDREL | SOLDIERS RELIEF 121 | 0.0155990005 | $323,410 | $19,800 | $0.31 | | |
| EMERGSER | EMS 147 | 0.3792580840 | $323,410 | $19,800 | $7.51 | | |
| EMSRFD | EMS REFUND 147 | 0.0000000000 | $323,410 | $19,800 | $0.00 | | |
| PORTRFD | PORT REFUND 640 | 0.0000000000 | $323,410 | $19,800 | $0.00 | | |
| PORTWWGEN | PORT OF WW 640 | 0.2460186015 | $323,410 | $19,800 | $4.87 | | |
| SD140BOND | SD #140 BOND 764 | 0.0000000000 | $323,410 | $0 | $0.00 | | |
| SD140GEN | SD #140 GENERAL 760 | 0.0000000000 | $323,410 | $0 | $0.00 | | |
| ST2 | STATE SCHOOL PART 2 600 | 0.0000000000 | $323,410 | $0 | $0.00 | | |
| STATESCHL | STATE SCHOOL 600 | 1.5158548041 | $323,410 | $19,800 | $30.01 | | |
| STREFUND | STATE REFUND LEVY 603 | 0.0000000000 | $323,410 | $19,800 | $0.00 | | |
| CWWBOND | C OF WW BOND 643 | 0.0000000000 | $323,410 | $0 | $0.00 | | |
| CWWGEN | CITY OF WW 631 | 1.6100204973 | $323,410 | $19,800 | $31.88 | | |
| CWWRFD | CITY OF WALLA WALLA REFUND 631 | 0.0000000000 | $323,410 | $19,800 | $0.00 | | |
| | Total Tax Rate: | 4.8092876634 | | | | | |
| | | | | Taxes w/Current Exemptions: | $95.23 | | |
| | | | | Taxes w/o Exemptions: | $2,845.16 | | |
Improvement / Building
| Improvement #1: | RESIDENTIAL | State Code: | 11 | 960.0 sqft | Value: | $290,110 |
| Exterior Wall: | SIDING | Heating/Cooling: | WARM & COOLED AIR | | Number of Bathrooms: | 1 | Number of Bedrooms: | 3 | | Plumbing: | 6 | Roof Covering: | COMP SHINGLE |
|
| | Type | Description | Class CD | Sub Class CD | Year Built | Area |
| | MA | Main Area | 1 | 30 | 1954 | 960.0 |
| | SI1 | SITE IMPROVEMENT | 1 | 30 | 1954 | 1.5 |
| | BASE | BASEMENT | 1 | 30 | 1954 | 960.0 |
| | BPF | BASEMENT -PARTITIONED FINISH | 1 | 30 | 1954 | 720.0 |
| | DTG | Detached Garage | 1 | 30 | 1954 | 280.0 |
| | RPS | PORCH W/STEPS,ROOF | 1 | 30 | 1954 | 50.0 |
| | CPC | COVERED CARPORT/PATIO | 1 | 30 | 1954 | 228.0 |
Sketch
Property Image
Land
| 1 | RES 1 | Converted: Residential | 0.1223 | 5328.00 | 0.00 | 0.00 | 1.00 | $33,300 | $0 |
Roll Value History
| 2026 | N/A | N/A | N/A | N/A | N/A |
| 2025 | $256,530 | $53,280 | $0 | $309,810 | $19,800 |
| 2024 | $256,530 | $53,280 | $0 | $309,810 | $19,800 |
| 2023 | $290,110 | $33,300 | $0 | $323,410 | $19,800 |
| 2022 | $263,740 | $33,300 | $0 | $297,040 | $19,800 |
| 2021 | $219,780 | $33,300 | $0 | $253,080 | $19,800 |
| 2020 | $162,800 | $33,300 | $0 | $196,100 | $19,800 |
| 2019 | $162,800 | $33,300 | $0 | $196,100 | $19,800 |
| 2018 | $148,000 | $33,300 | $0 | $181,300 | $19,800 |
| 2017 | $156,400 | $21,300 | $0 | $177,700 | $29,800 |
| 2016 | $136,000 | $21,300 | $0 | $157,300 | $29,800 |
| 2015 | $136,000 | $21,300 | $0 | $157,300 | $19,800 |
| 2014 | $136,000 | $21,300 | $0 | $157,300 | $79,800 |
| 2013 | $136,000 | $21,300 | $0 | $157,300 | $19,800 |
| 2012 | $145,200 | $21,300 | $0 | $0 | $0 |
| 2011 | $137,300 | $21,300 | $0 | $0 | $0 |
| 2010 | $129,700 | $21,300 | $0 | $0 | $0 |
| 2009 | $146,500 | $21,300 | $0 | $0 | $0 |
| 2008 | $124,600 | $21,300 | $0 | $0 | $0 |
| 2007 | $124,600 | $21,300 | $0 | $0 | $0 |
Deed and Sales History
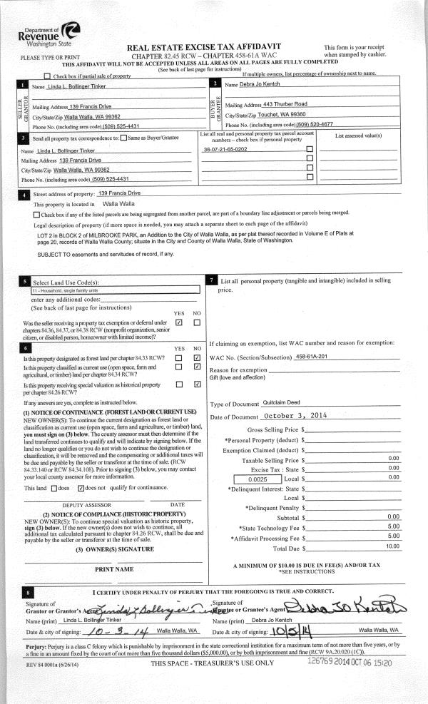
| 1 | 10/03/2014 | QCD | QUIT CLAIM DEED | TINKER LINDA L BOLLINGER | TINKER LINDA L BOLLINGER LIFE ESTATE | | | $0.00 | 126769 | 2014-07354 |
| 2 | 03/20/1970 | WARRANTY D | WARRANTY DEED | | | | | $18,500.00 | 0 | 3350-506839 |
Payout Agreement
| No payout information available.. |