Property
Account |
| Property ID: | 29348 | Abbreviated Legal Description: | 21-7-36 TAX 171 |
| Parcel Number: | 360721320019 | Agent Code: | |
| Type: | Real | | |
| Tax Area: | 1 - OL-140-F | Land Use Code | 11 |
| Open Space: | N | DFL | N |
| Historic Property: | N | Remodel Property: | N |
| Multi-Family Redevelopment: | N | | |
| Township: | 7 | Section: | 21 |
| Range: | 36 |
Location |
| Address: | 715 HOBSON ST WA 99362 | Mapsco: | |
| Neighborhood: | G-SFR | Map ID: | |
| Neighborhood CD: | 514011 |
Owner |
| Name: | HANSEN CHERYL A | Owner ID: | 16184 |
| Mailing Address: | 2194 S FORK COPPEI RD WAITSBURG, WA 99361 | % Ownership: | 100.0000000000% |
| | | Exemptions: | |
Taxes and Assessment Details
Property Tax Information as of
02/21/2026
Click on "Statement Details" to expand or collapse a tax statement.
* Please enter a valid date ** Please enter a valid date *
Statement Details |
| | TOTAL: | $0.00 | $0.00 | $0.00 | $0.00 | $0.00 | $0.00 |
|
| | $0.00 | $0.00 | $0.00 | $0.00 | $0.00 | $0.00 |
Values
| (+) Improvement Homesite Value: | + | $322,800 | |
| (+) Improvement Non-Homesite Value: | + | $0 | |
| (+) Land Homesite Value: | + | $55,420 | |
| (+) Land Non-Homesite Value: | + | $0 | |
| (+) Curr Use (HS): | + | $0 | $0 |
| (+) Curr Use (NHS): | + | $0 | $0 |
| | | -------------------------- | |
| (=) Market Value: | = | $378,220 | |
| (–) Productivity Loss: | – | $0 | |
| | | -------------------------- | |
| (=) Subtotal: | = | $378,220 | |
| (+) Senior Appraised Value: | + | $0 | |
| (+) Non-Senior Appraised Value: | + | $378,220 | |
| | | -------------------------- | |
| (=) Total Appraised Value: | = | $378,220 | |
| (–) Senior Exemption Loss: | – | $0 | |
| (–) Exemption Loss: | – | $0 | |
| | | -------------------------- | |
| (=) Taxable Value: | = | $378,220 | |
Taxing Jurisdiction
| Owner: | HANSEN CHERYL A | | |
| % Ownership: | 100.0000000000% | | |
| Total Value: | $378,220 | | |
| Tax Area: | 1 - OL-140-F |
| CERFD | CURRENT EXPENSE REFUND 010 | 0.0000000000 | $378,220 | $378,220 | $0.00 | | |
| CURREXP | CURRENT EXPENSE 010 | 1.0175366760 | $378,220 | $378,220 | $384.85 | | |
| HUMNSERV | HUMAN SERVICES 119 | 0.0250000000 | $378,220 | $378,220 | $9.46 | | |
| SLDREL | SOLDIERS RELIEF 121 | 0.0155990005 | $378,220 | $378,220 | $5.90 | | |
| EMERGSER | EMS 147 | 0.3792580840 | $378,220 | $378,220 | $143.44 | | |
| EMSRFD | EMS REFUND 147 | 0.0000000000 | $378,220 | $378,220 | $0.00 | | |
| PORTRFD | PORT REFUND 640 | 0.0000000000 | $378,220 | $378,220 | $0.00 | | |
| PORTWWGEN | PORT OF WW 640 | 0.2460186015 | $378,220 | $378,220 | $93.05 | | |
| SD140BOND | SD #140 BOND 764 | 0.8342371393 | $378,220 | $378,220 | $315.53 | | |
| SD140GEN | SD #140 GENERAL 760 | 2.0646500647 | $378,220 | $378,220 | $780.89 | | |
| ST2 | STATE SCHOOL PART 2 600 | 0.8131451643 | $378,220 | $378,220 | $307.55 | | |
| STATESCHL | STATE SCHOOL 600 | 1.5158548041 | $378,220 | $378,220 | $573.33 | | |
| STREFUND | STATE REFUND LEVY 603 | 0.0000000000 | $378,220 | $378,220 | $0.00 | | |
| CWWBOND | C OF WW BOND 643 | 0.2760494372 | $378,220 | $378,220 | $104.41 | | |
| CWWGEN | CITY OF WW 631 | 1.6100204973 | $378,220 | $378,220 | $608.94 | | |
| CWWRFD | CITY OF WALLA WALLA REFUND 631 | 0.0000000000 | $378,220 | $378,220 | $0.00 | | |
| | Total Tax Rate: | 8.7973694689 | | | | | |
| | | | | Taxes w/Current Exemptions: | $3,327.35 | | |
| | | | | Taxes w/o Exemptions: | $3,327.35 | | |
Improvement / Building
| Improvement #1: | RESIDENTIAL | State Code: | 11 | 937.0 sqft | Value: | $322,800 |
| Exterior Wall: | METAL/STEEL | Heating/Cooling: | HEAT PUMP | | Number of Bathrooms: | 2 | Number of Bedrooms: | 2 | | Plumbing: | 10 | Roof Covering: | COMP SHINGLE |
|
| | Type | Description | Class CD | Sub Class CD | Year Built | Area |
| | MA | Main Area | 1 | 30 | 1938 | 937.0 |
| | SI1 | SITE IMPROVEMENT | 1 | 30 | 1938 | 1.5 |
| | BASE | BASEMENT | 1 | 30 | 1938 | 937.0 |
| | BPF | BASEMENT -PARTITIONED FINISH | 1 | 30 | 2018 | 937.0 |
| | S1F | Single One Story Fireplace | 1 | 30 | 1938 | 1.0 |
| | OPS | OPEN PORCH W/STEPS | 1 | 30 | 1938 | 50.0 |
| | DTG | Detached Garage | 1 | 30 | 1938 | 240.0 |
Sketch
Property Image
Land
| 1 | RES 1 | Converted: Residential | 0.1755 | 7644.00 | 0.00 | 0.00 | 1.00 | $55,420 | $0 |
Roll Value History
| 2026 | N/A | N/A | N/A | N/A | N/A |
| 2025 | $293,750 | $84,080 | $0 | $377,830 | $377,830 |
| 2024 | $279,760 | $84,080 | $0 | $363,840 | $363,840 |
| 2023 | $322,800 | $55,420 | $0 | $378,220 | $378,220 |
| 2022 | $293,450 | $55,420 | $0 | $348,870 | $348,870 |
| 2021 | $244,540 | $55,420 | $0 | $299,960 | $299,960 |
| 2020 | $152,840 | $55,420 | $0 | $208,260 | $208,260 |
| 2019 | $152,840 | $55,420 | $0 | $208,260 | $208,260 |
| 2018 | $125,620 | $55,420 | $0 | $181,040 | $181,040 |
| 2017 | $129,240 | $34,400 | $0 | $163,640 | $163,640 |
| 2016 | $117,490 | $34,400 | $0 | $151,890 | $151,890 |
| 2015 | $106,810 | $34,400 | $0 | $141,210 | $11,300 |
| 2014 | $97,100 | $34,400 | $0 | $131,500 | $11,300 |
| 2013 | $97,100 | $34,400 | $0 | $131,500 | $11,300 |
| 2012 | $97,100 | $34,400 | $0 | $0 | $0 |
| 2011 | $85,100 | $34,400 | $0 | $0 | $0 |
| 2010 | $79,400 | $34,400 | $0 | $0 | $0 |
| 2009 | $92,000 | $34,400 | $0 | $0 | $0 |
| 2008 | $92,000 | $34,400 | $0 | $0 | $0 |
| 2007 | $92,000 | $34,400 | $0 | $0 | $0 |
Deed and Sales History
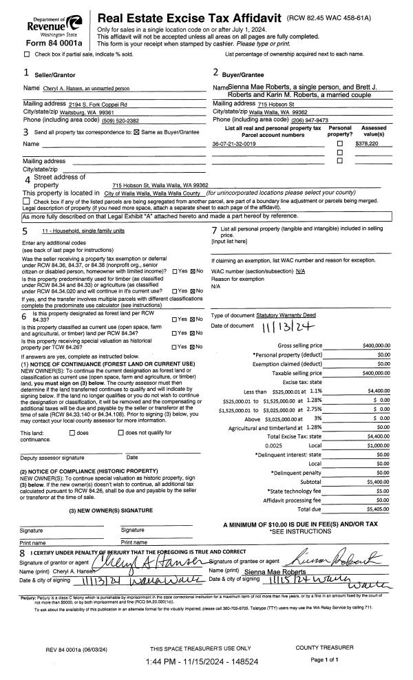
| 1 | 11/15/2024 | SWD | STATUTORY WARRANTY DEED | HANSEN CHERYL A | ROBERTS SIENNA MAE | | | $400,000.00 | 148524 | 2024-06657 |
| 2 | 09/03/2020 | QCD | QUIT CLAIM DEED | HANSEN GERAINE | HANSEN CHERYL A | | | | 139844 | 2020-08962 |
| 3 | 04/10/2019 | SHERIFFS D | SHERIFFS DEED | NEWBY MARY LOIS | HANSEN GERAINE | | | $0.00 | 136741 | 2019-02605 |
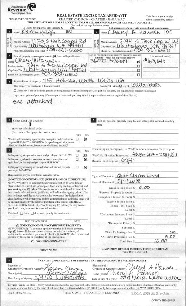
| 4 | 07/24/2018 | QCD | QUIT CLAIM DEED | HANSEN GERAINE | HANSEN CHERYL A | | | | 135175 | 2018-05980 |
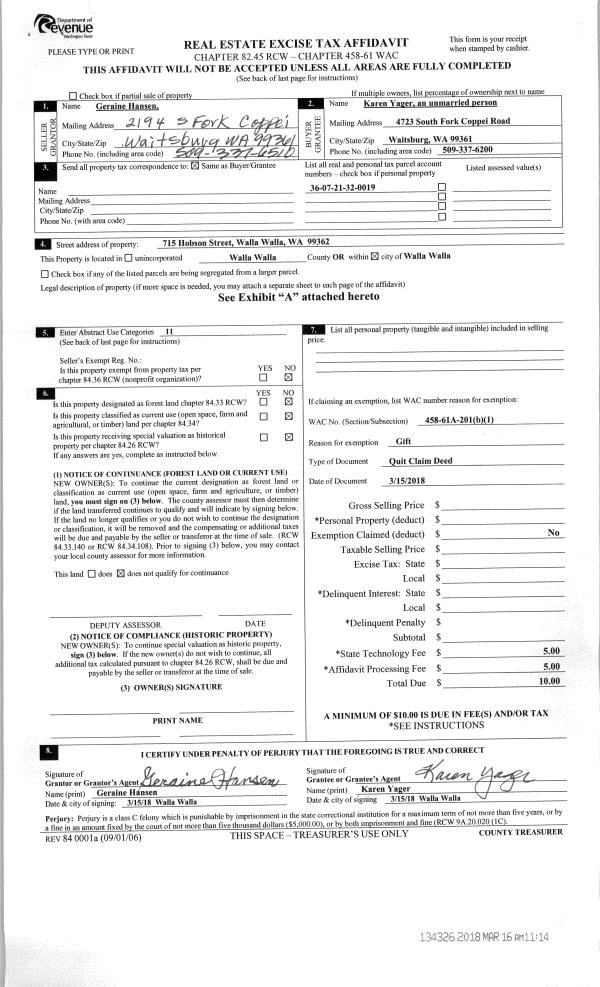
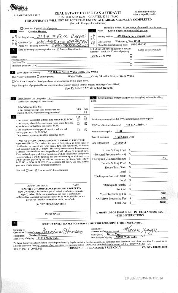
| 5 | 03/16/2018 | QCD | QUIT CLAIM DEED | HANSEN GERAINE | YAGER KAREN M | | | | 134326 | 2018-02069 |
Payout Agreement
| No payout information available.. |