Property
Account |
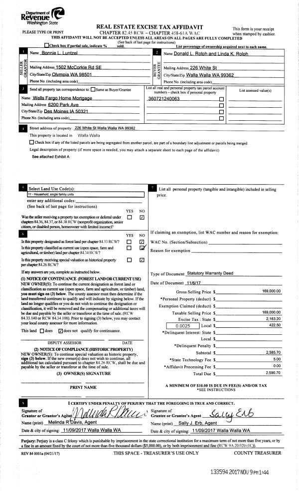
| Property ID: | 29344 | Abbreviated Legal Description: | 21-7-36 TAX 197 |
| Parcel Number: | 360721240063 | Agent Code: | |
| Type: | Real | | |
| Tax Area: | 1 - OL-140-F | Land Use Code | 11 |
| Open Space: | N | DFL | N |
| Historic Property: | N | Remodel Property: | N |
| Multi-Family Redevelopment: | N | | |
| Township: | 7 | Section: | 21 |
| Range: | 36 |
Location |
| Address: | 226 WHITE ST WA 99362 | Mapsco: | |
| Neighborhood: | A-SFR | Map ID: | |
| Neighborhood CD: | 513011 |
Owner |
| Name: | SWEENEY KEVIN J | Owner ID: | 73420 |
| Mailing Address: | 8345 TALBERT AVE HUNTINGTON BEACH, CA 92646 | % Ownership: | 100.0000000000% |
| | | Exemptions: | |
Taxes and Assessment Details
Values
| (+) Improvement Homesite Value: | + | $0 | |
| (+) Improvement Non-Homesite Value: | + | $261,660 | |
| (+) Land Homesite Value: | + | $0 | |
| (+) Land Non-Homesite Value: | + | $37,610 | |
| (+) Curr Use (HS): | + | $0 | $0 |
| (+) Curr Use (NHS): | + | $0 | $0 |
| | | -------------------------- | |
| (=) Market Value: | = | $299,270 | |
| (–) Productivity Loss: | – | $0 | |
| | | -------------------------- | |
| (=) Subtotal: | = | $299,270 | |
| (+) Senior Appraised Value: | + | $0 | |
| (+) Non-Senior Appraised Value: | + | $299,270 | |
| | | -------------------------- | |
| (=) Total Appraised Value: | = | $299,270 | |
| (–) Senior Exemption Loss: | – | $0 | |
| (–) Exemption Loss: | – | $0 | |
| | | -------------------------- | |
| (=) Taxable Value: | = | $299,270 | |
Taxing Jurisdiction
| Owner: | SWEENEY KEVIN J | | |
| % Ownership: | 100.0000000000% | | |
| Total Value: | $299,270 | | |
| Tax Area: | 1 - OL-140-F |
| CERFD | CURRENT EXPENSE REFUND 010 | 0.0000000000 | $299,270 | $299,270 | $0.00 | | |
| CURREXP | CURRENT EXPENSE 010 | 1.0175366760 | $299,270 | $299,270 | $304.52 | | |
| HUMNSERV | HUMAN SERVICES 119 | 0.0250000000 | $299,270 | $299,270 | $7.48 | | |
| SLDREL | SOLDIERS RELIEF 121 | 0.0155990005 | $299,270 | $299,270 | $4.67 | | |
| EMERGSER | EMS 147 | 0.3792580840 | $299,270 | $299,270 | $113.50 | | |
| EMSRFD | EMS REFUND 147 | 0.0000000000 | $299,270 | $299,270 | $0.00 | | |
| PORTRFD | PORT REFUND 640 | 0.0000000000 | $299,270 | $299,270 | $0.00 | | |
| PORTWWGEN | PORT OF WW 640 | 0.2460186015 | $299,270 | $299,270 | $73.63 | | |
| SD140BOND | SD #140 BOND 764 | 0.8342371393 | $299,270 | $299,270 | $249.66 | | |
| SD140GEN | SD #140 GENERAL 760 | 2.0646500647 | $299,270 | $299,270 | $617.89 | | |
| ST2 | STATE SCHOOL PART 2 600 | 0.8131451643 | $299,270 | $299,270 | $243.35 | | |
| STATESCHL | STATE SCHOOL 600 | 1.5158548041 | $299,270 | $299,270 | $453.65 | | |
| STREFUND | STATE REFUND LEVY 603 | 0.0000000000 | $299,270 | $299,270 | $0.00 | | |
| CWWBOND | C OF WW BOND 643 | 0.2760494372 | $299,270 | $299,270 | $82.61 | | |
| CWWGEN | CITY OF WW 631 | 1.6100204973 | $299,270 | $299,270 | $481.83 | | |
| CWWRFD | CITY OF WALLA WALLA REFUND 631 | 0.0000000000 | $299,270 | $299,270 | $0.00 | | |
| | Total Tax Rate: | 8.7973694689 | | | | | |
| | | | | Taxes w/Current Exemptions: | $2,632.79 | | |
| | | | | Taxes w/o Exemptions: | $2,632.79 | | |
Improvement / Building
| Improvement #1: | RESIDENTIAL | State Code: | 11 | 1068.0 sqft | Value: | $261,660 |
| Exterior Wall: | METAL/STEEL | Heating/Cooling: | WARM & COOLED AIR | | Number of Bathrooms: | 1 | Number of Bedrooms: | 2 | | Plumbing: | 6 | Roof Covering: | COMP SHINGLE |
|
| | Type | Description | Class CD | Sub Class CD | Year Built | Area |
| | MA | Main Area | 4 | 30 | 1941 | 1068.0 |
| | SI1 | SITE IMPROVEMENT | 4 | 30 | 0 | 2.0 |
| | BASE | BASEMENT | 4 | 30 | 1941 | 848.0 |
| | OPS | OPEN PORCH W/STEPS | 4 | 30 | 1941 | 36.0 |
| | DTG | Detached Garage | 4 | 30 | 1941 | 240.0 |
| | RPS | PORCH W/STEPS,ROOF | 4 | 30 | 1941 | 56.0 |
| | S1F | Single One Story Fireplace | 4 | 30 | 1941 | 1.0 |
Sketch
Property Image
Land
| 1 | RES 1 | Converted: Residential | 0.1382 | 6018.00 | 0.00 | 0.00 | 1.00 | $37,610 | $0 |
Roll Value History
| 2026 | N/A | N/A | N/A | N/A | N/A |
| 2025 | $263,850 | $60,180 | $0 | $324,030 | $324,030 |
| 2024 | $263,850 | $60,180 | $0 | $324,030 | $324,030 |
| 2023 | $261,660 | $37,610 | $0 | $299,270 | $299,270 |
| 2022 | $237,870 | $37,610 | $0 | $275,480 | $275,480 |
| 2021 | $198,220 | $37,610 | $0 | $235,830 | $235,830 |
| 2020 | $132,150 | $37,610 | $0 | $169,760 | $169,760 |
| 2019 | $132,150 | $37,610 | $0 | $169,760 | $169,760 |
| 2018 | $128,300 | $37,610 | $0 | $165,910 | $165,910 |
| 2017 | $118,730 | $24,100 | $0 | $142,830 | $142,830 |
| 2016 | $107,940 | $24,100 | $0 | $132,040 | $132,040 |
| 2015 | $107,940 | $24,100 | $0 | $132,040 | $132,040 |
| 2014 | $102,800 | $24,100 | $0 | $126,900 | $126,900 |
| 2013 | $102,800 | $24,100 | $0 | $126,900 | $126,900 |
| 2012 | $102,800 | $24,100 | $0 | $0 | $0 |
| 2011 | $91,300 | $24,100 | $0 | $0 | $0 |
| 2010 | $80,800 | $24,100 | $0 | $0 | $0 |
| 2009 | $92,400 | $24,100 | $0 | $0 | $0 |
| 2008 | $73,000 | $24,100 | $0 | $0 | $0 |
| 2007 | $73,000 | $24,100 | $0 | $0 | $0 |
Deed and Sales History
| 1 | 04/13/2023 | SWD | STATUTORY WARRANTY DEED | ROLPH DONALD L & LINDA K | SWEENEY KEVIN J | | | $0.00 | 145651 | 2023-01933 |
| 2 | 04/12/2023 | SWD | STATUTORY WARRANTY DEED | ROLPH DONALD L & LINDA K | SWEENEY KEVIN J | | | $336,650.00 | 145650 | 2023-01929 |
| 3 | 11/09/2017 | SWD | STATUTORY WARRANTY DEED | LUNTZEL BONNIE L | ROLPH DONALD L & LINDA K | | | $169,000.00 | 133594 | 2017-09034 |
| 4 | 07/15/2011 | WARRANTY D | WARRANTY DEED | LIGHTFOOT, PEGGY L | LUNTZEL, BONNIE L | | | $129,000.00 | 120401 | 2011-05503 |
| 5 | 12/19/2003 | QCD | QUIT CLAIM DEED | LIGHTFOOT, PEGGY L | LIGHTFOOT, PEGGY L | | | | 103766 | 2003-19141 |
| 6 | 07/12/1974 | WARRANTY D | WARRANTY DEED | | | | | $18,400.00 | 0 | 1705-38328 |
Payout Agreement
| No payout information available.. |