Property
Account |
| Property ID: | 29339 | Abbreviated Legal Description: | WALNUT GROVE TAX 1 & 2 LOTS 14 & 15 BLK 9 OF WALNUT GROVE; ALSOPTN OF SELY PTN OF TAX 4 (UNPLATTED) |
| Parcel Number: | 360720780918 | Agent Code: | |
| Type: | Real | | |
| Tax Area: | 1 - OL-140-F | Land Use Code | 11 |
| Open Space: | N | DFL | N |
| Historic Property: | N | Remodel Property: | N |
| Multi-Family Redevelopment: | N | | |
| Township: | 7 | Section: | 20 |
| Range: | 36 |
Location |
| Address: | 629 E SUMACH ST WA 99362 | Mapsco: | |
| Neighborhood: | A-Inferior SFR | Map ID: | |
| Neighborhood CD: | 513111 |
Owner |
| Name: | ARIAS CHARLIE R | Owner ID: | 65701 |
| Mailing Address: | 629 E SUMACH ST WALLA WALLA, WA 99362 | % Ownership: | 100.0000000000% |
| | | Exemptions: | |
Taxes and Assessment Details
Values
| (+) Improvement Homesite Value: | + | $314,580 | |
| (+) Improvement Non-Homesite Value: | + | $0 | |
| (+) Land Homesite Value: | + | $63,810 | |
| (+) Land Non-Homesite Value: | + | $0 | |
| (+) Curr Use (HS): | + | $0 | $0 |
| (+) Curr Use (NHS): | + | $0 | $0 |
| | | -------------------------- | |
| (=) Market Value: | = | $378,390 | |
| (–) Productivity Loss: | – | $0 | |
| | | -------------------------- | |
| (=) Subtotal: | = | $378,390 | |
| (+) Senior Appraised Value: | + | $0 | |
| (+) Non-Senior Appraised Value: | + | $378,390 | |
| | | -------------------------- | |
| (=) Total Appraised Value: | = | $378,390 | |
| (–) Senior Exemption Loss: | – | $0 | |
| (–) Exemption Loss: | – | $0 | |
| | | -------------------------- | |
| (=) Taxable Value: | = | $378,390 | |
Taxing Jurisdiction
| Owner: | ARIAS CHARLIE R | | |
| % Ownership: | 100.0000000000% | | |
| Total Value: | $378,390 | | |
| Tax Area: | 1 - OL-140-F |
| CERFD | CURRENT EXPENSE REFUND 010 | 0.0000000000 | $378,390 | $378,390 | $0.00 | | |
| CURREXP | CURRENT EXPENSE 010 | 1.0175366760 | $378,390 | $378,390 | $385.03 | | |
| HUMNSERV | HUMAN SERVICES 119 | 0.0250000000 | $378,390 | $378,390 | $9.46 | | |
| SLDREL | SOLDIERS RELIEF 121 | 0.0155990005 | $378,390 | $378,390 | $5.90 | | |
| EMERGSER | EMS 147 | 0.3792580840 | $378,390 | $378,390 | $143.51 | | |
| EMSRFD | EMS REFUND 147 | 0.0000000000 | $378,390 | $378,390 | $0.00 | | |
| PORTRFD | PORT REFUND 640 | 0.0000000000 | $378,390 | $378,390 | $0.00 | | |
| PORTWWGEN | PORT OF WW 640 | 0.2460186015 | $378,390 | $378,390 | $93.09 | | |
| SD140BOND | SD #140 BOND 764 | 0.8342371393 | $378,390 | $378,390 | $315.67 | | |
| SD140GEN | SD #140 GENERAL 760 | 2.0646500647 | $378,390 | $378,390 | $781.24 | | |
| ST2 | STATE SCHOOL PART 2 600 | 0.8131451643 | $378,390 | $378,390 | $307.69 | | |
| STATESCHL | STATE SCHOOL 600 | 1.5158548041 | $378,390 | $378,390 | $573.58 | | |
| STREFUND | STATE REFUND LEVY 603 | 0.0000000000 | $378,390 | $378,390 | $0.00 | | |
| CWWBOND | C OF WW BOND 643 | 0.2760494372 | $378,390 | $378,390 | $104.45 | | |
| CWWGEN | CITY OF WW 631 | 1.6100204973 | $378,390 | $378,390 | $609.22 | | |
| CWWRFD | CITY OF WALLA WALLA REFUND 631 | 0.0000000000 | $378,390 | $378,390 | $0.00 | | |
| | Total Tax Rate: | 8.7973694689 | | | | | |
| | | | | Taxes w/Current Exemptions: | $3,328.84 | | |
| | | | | Taxes w/o Exemptions: | $3,328.84 | | |
Improvement / Building
| Improvement #1: | RESIDENTIAL | State Code: | 11 | 1622.0 sqft | Value: | $314,580 |
| Exterior Wall: | METAL/STEEL | Foundation: | POST & PIER | | Heating/Cooling: | WARM & COOLED AIR | Number of Bathrooms: | 3 | | Number of Bedrooms: | 2 | Plumbing: | 13 | | Roof Covering: | GALVANIZED METAL |   |   |
|
| | Type | Description | Class CD | Sub Class CD | Year Built | Area |
| | MA | Main Area | 1 | 30 | 0 | 1622.0 |
| | SI1 | SITE IMPROVEMENT | 1 | 30 | 0 | 2.0 |
| | S1F | Single One Story Fireplace | 1 | 30 | 0 | 1.0 |
| | PRC | PORCH W STEPS, ROOF,CEILED | 1 | 30 | 0 | 35.0 |
| | SWP | Solid Wall Porch | 1 | 30 | 2018 | 180.0 |
| | CPC | COVERED CARPORT/PATIO | 1 | 30 | 2019 | 174.0 |
Sketch
Property Image
Land
| 1 | RES 1 | Converted: Residential | 0.2883 | 12560.00 | 0.00 | 0.00 | 1.00 | $63,810 | $0 |
Roll Value History
| 2026 | N/A | N/A | N/A | N/A | N/A |
| 2025 | $287,860 | $101,990 | $0 | $389,850 | $389,850 |
| 2024 | $274,150 | $101,990 | $0 | $376,140 | $376,140 |
| 2023 | $314,580 | $63,810 | $0 | $378,390 | $378,390 |
| 2022 | $285,980 | $63,810 | $0 | $349,790 | $349,790 |
| 2021 | $238,320 | $63,810 | $0 | $302,130 | $302,130 |
| 2020 | $176,530 | $63,810 | $0 | $240,340 | $240,340 |
| 2019 | $176,530 | $63,810 | $0 | $240,340 | $240,340 |
| 2018 | $57,690 | $63,810 | $0 | $121,500 | $121,500 |
| 2017 | $46,720 | $41,900 | $0 | $88,620 | $0 |
| 2016 | $46,720 | $41,900 | $0 | $88,620 | $0 |
| 2015 | $46,720 | $41,900 | $0 | $88,620 | $0 |
| 2014 | $45,800 | $41,900 | $0 | $87,700 | $0 |
| 2013 | $45,800 | $41,900 | $0 | $87,700 | $0 |
| 2012 | $45,800 | $41,900 | $0 | $0 | $0 |
| 2011 | $45,800 | $41,900 | $0 | $0 | $0 |
| 2010 | $45,800 | $41,900 | $0 | $0 | $0 |
| 2009 | $55,500 | $41,900 | $0 | $0 | $0 |
| 2008 | $73,100 | $24,300 | $0 | $0 | $0 |
| 2007 | $73,100 | $24,300 | $0 | $0 | $0 |
Deed and Sales History
| 1 | 08/08/2019 | QCD | QUIT CLAIM DEED | ARIAS BOBBIE SUE | ARIAS CHARLIE R | | | | 137444 | 2019-05897 |
| 2 | 08/08/2019 | SWD | STATUTORY WARRANTY DEED | REICH DANNY E & TERESA G | ARIAS CHARLIE R | | | $280,000.00 | 137443 | 2019-05896 |
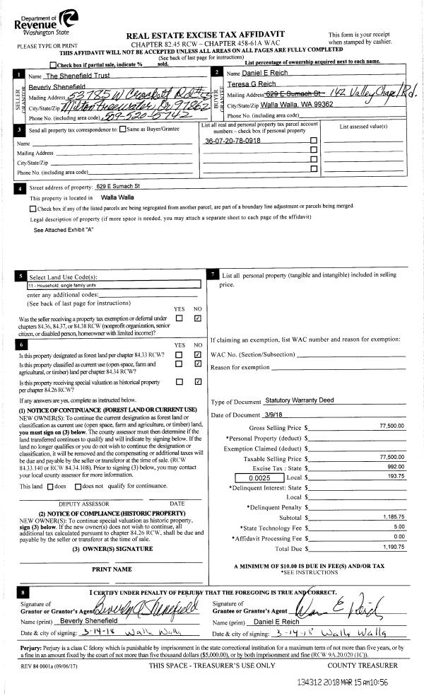
| 3 | 03/15/2018 | SWD | STATUTORY WARRANTY DEED | SHENEFIELD TRUST | REICH DANNY E & TERESA G | | | $77,500.00 | 134312 | 2018-02013 |
Payout Agreement
| No payout information available.. |