Property
Account |
| Property ID: | 29337 | Abbreviated Legal Description: | LANGFORDS LOT 4 BLK 35 |
| Parcel Number: | 360719593504 | Agent Code: | |
| Type: | Real | | |
| Tax Area: | 1 - OL-140-F | Land Use Code | 11 |
| Open Space: | N | DFL | N |
| Historic Property: | N | Remodel Property: | N |
| Multi-Family Redevelopment: | N | | |
| Township: | 7 | Section: | 19 |
| Range: | 36 |
Location |
| Address: | 417 N 7TH AVE WA 99362 | Mapsco: | |
| Neighborhood: | F SFR | Map ID: | |
| Neighborhood CD: | 512011 |
Owner |
| Name: | NUNEZ LUNA LUIS ALBERTO | Owner ID: | 60124 |
| Mailing Address: | 1226 SW BADE AVE COLLEGE PLACE, WA 99324 | % Ownership: | 100.0000000000% |
| | | Exemptions: | |
Taxes and Assessment Details
Property Tax Information as of
02/21/2026
Click on "Statement Details" to expand or collapse a tax statement.
* Please enter a valid date ** Please enter a valid date *
Statement Details |
| | TOTAL: | $0.00 | $0.00 | $0.00 | $0.00 | $0.00 | $0.00 |
|
| | $0.00 | $0.00 | $0.00 | $0.00 | $0.00 | $0.00 |
Values
| (+) Improvement Homesite Value: | + | $0 | |
| (+) Improvement Non-Homesite Value: | + | $97,180 | |
| (+) Land Homesite Value: | + | $0 | |
| (+) Land Non-Homesite Value: | + | $33,810 | |
| (+) Curr Use (HS): | + | $0 | $0 |
| (+) Curr Use (NHS): | + | $0 | $0 |
| | | -------------------------- | |
| (=) Market Value: | = | $130,990 | |
| (–) Productivity Loss: | – | $0 | |
| | | -------------------------- | |
| (=) Subtotal: | = | $130,990 | |
| (+) Senior Appraised Value: | + | $0 | |
| (+) Non-Senior Appraised Value: | + | $130,990 | |
| | | -------------------------- | |
| (=) Total Appraised Value: | = | $130,990 | |
| (–) Senior Exemption Loss: | – | $0 | |
| (–) Exemption Loss: | – | $0 | |
| | | -------------------------- | |
| (=) Taxable Value: | = | $130,990 | |
Taxing Jurisdiction
| Owner: | NUNEZ LUNA LUIS ALBERTO | | |
| % Ownership: | 100.0000000000% | | |
| Total Value: | $130,990 | | |
| Tax Area: | 1 - OL-140-F |
| CERFD | CURRENT EXPENSE REFUND 010 | 0.0000000000 | $130,990 | $130,990 | $0.00 | | |
| CURREXP | CURRENT EXPENSE 010 | 1.0175366760 | $130,990 | $130,990 | $133.29 | | |
| HUMNSERV | HUMAN SERVICES 119 | 0.0250000000 | $130,990 | $130,990 | $3.27 | | |
| SLDREL | SOLDIERS RELIEF 121 | 0.0155990005 | $130,990 | $130,990 | $2.04 | | |
| EMERGSER | EMS 147 | 0.3792580840 | $130,990 | $130,990 | $49.68 | | |
| EMSRFD | EMS REFUND 147 | 0.0000000000 | $130,990 | $130,990 | $0.00 | | |
| PORTRFD | PORT REFUND 640 | 0.0000000000 | $130,990 | $130,990 | $0.00 | | |
| PORTWWGEN | PORT OF WW 640 | 0.2460186015 | $130,990 | $130,990 | $32.23 | | |
| SD140BOND | SD #140 BOND 764 | 0.8342371393 | $130,990 | $130,990 | $109.28 | | |
| SD140GEN | SD #140 GENERAL 760 | 2.0646500647 | $130,990 | $130,990 | $270.45 | | |
| ST2 | STATE SCHOOL PART 2 600 | 0.8131451643 | $130,990 | $130,990 | $106.51 | | |
| STATESCHL | STATE SCHOOL 600 | 1.5158548041 | $130,990 | $130,990 | $198.56 | | |
| STREFUND | STATE REFUND LEVY 603 | 0.0000000000 | $130,990 | $130,990 | $0.00 | | |
| CWWBOND | C OF WW BOND 643 | 0.2760494372 | $130,990 | $130,990 | $36.16 | | |
| CWWGEN | CITY OF WW 631 | 1.6100204973 | $130,990 | $130,990 | $210.90 | | |
| CWWRFD | CITY OF WALLA WALLA REFUND 631 | 0.0000000000 | $130,990 | $130,990 | $0.00 | | |
| | Total Tax Rate: | 8.7973694689 | | | | | |
| | | | | Taxes w/Current Exemptions: | $1,152.37 | | |
| | | | | Taxes w/o Exemptions: | $1,152.37 | | |
Improvement / Building
| Improvement #1: | RESIDENTIAL | State Code: | 11 | 788.0 sqft | Value: | $97,180 |
| Exterior Wall: | VINYL | Heating/Cooling: | FLOOR FURNACE | | Number of Bathrooms: | 1 | Number of Bedrooms: | 2 | | Plumbing: | 6 | Roof Covering: | COMP SHINGLE |
|
| | Type | Description | Class CD | Sub Class CD | Year Built | Area |
| | MA | Main Area | 1 | 20 | 1895 | 788.0 |
| | SI1 | SITE IMPROVEMENT | 1 | 20 | 1895 | 1.0 |
| | RPO | OPEN PORCH W/ROOF | 1 | 20 | 1895 | 120.0 |
| | SWP | Solid Wall Porch | 1 | 20 | 1895 | 102.0 |
| | UTST | Utility Storage Shed | 1 | 20 | 1895 | 252.0 |
Sketch
Property Image
Land
| 1 | RES 1 | Converted: Residential | 0.1478 | 6440.00 | 0.00 | 0.00 | 1.00 | $33,810 | $0 |
Roll Value History
| 2026 | N/A | N/A | N/A | N/A | N/A |
| 2025 | $104,880 | $57,960 | $0 | $162,840 | $162,840 |
| 2024 | $104,880 | $57,960 | $0 | $162,840 | $162,840 |
| 2023 | $97,180 | $33,810 | $0 | $130,990 | $130,990 |
| 2022 | $88,340 | $33,810 | $0 | $122,150 | $122,150 |
| 2021 | $70,670 | $33,810 | $0 | $104,480 | $104,480 |
| 2020 | $58,900 | $33,810 | $0 | $92,710 | $92,710 |
| 2019 | $58,900 | $33,810 | $0 | $92,710 | $92,710 |
| 2018 | $56,090 | $33,810 | $0 | $89,900 | $89,900 |
| 2017 | $65,640 | $19,300 | $0 | $84,940 | $84,940 |
| 2016 | $62,510 | $19,300 | $0 | $81,810 | $81,810 |
| 2015 | $62,510 | $19,300 | $0 | $81,810 | $81,810 |
| 2014 | $65,800 | $19,300 | $0 | $85,100 | $85,100 |
| 2013 | $65,800 | $19,300 | $0 | $85,100 | $85,100 |
| 2012 | $65,800 | $19,300 | $0 | $0 | $0 |
| 2011 | $65,800 | $19,300 | $0 | $0 | $0 |
| 2010 | $65,800 | $19,300 | $0 | $0 | $0 |
| 2009 | $75,300 | $19,300 | $0 | $0 | $0 |
| 2008 | $21,300 | $11,300 | $0 | $0 | $0 |
| 2007 | $21,300 | $11,300 | $0 | $0 | $0 |
Deed and Sales History
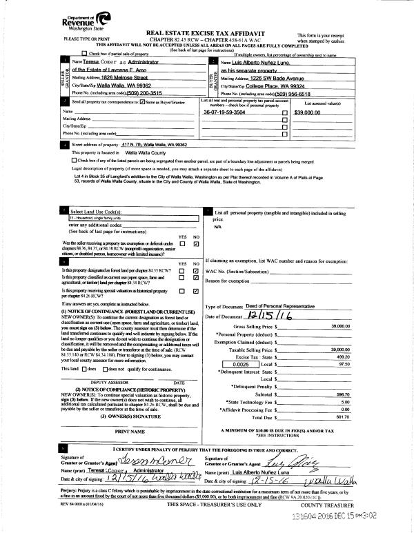
| 1 | 12/15/2016 | DPR | DEED OF PERSONAL REPRESENTATIVE | AMO LAVONNE E ESTATE OF | NUNEZ LUNA LUIS ALBERTO | | | $39,000.00 | 131604 | 2016-10323 |
| 2 | 11/19/1998 | WARRANTY D | WARRANTY DEED | | | | | $37,700.00 | 91653 | 2769-813340 |
Payout Agreement
| No payout information available.. |