Property
Account |
| Property ID: | 29334 | Abbreviated Legal Description: | GREENS 1ST LOT 9 BLK 1 |
| Parcel Number: | 360720620109 | Agent Code: | |
| Type: | Real | | |
| Tax Area: | 1 - OL-140-F | Land Use Code | 11 |
| Open Space: | N | DFL | N |
| Historic Property: | N | Remodel Property: | N |
| Multi-Family Redevelopment: | N | | |
| Township: | 7 | Section: | 20 |
| Range: | 36 |
Location |
| Address: | 1012 PENROSE ST WA 99362 | Mapsco: | |
| Neighborhood: | A-SFR | Map ID: | |
| Neighborhood CD: | 513011 |
Owner |
| Name: | LAAN JAMES VANDER | Owner ID: | 56036 |
| Mailing Address: | 31 HILLSIDE DR WHEAT RIDGE, CO 80215 | % Ownership: | 100.0000000000% |
| | | Exemptions: | |
Taxes and Assessment Details
Property Tax Information as of
02/21/2026
Click on "Statement Details" to expand or collapse a tax statement.
* Please enter a valid date ** Please enter a valid date *
Statement Details |
| | TOTAL: | $0.00 | $0.00 | $0.00 | $0.00 | $0.00 | $0.00 |
|
| | $0.00 | $0.00 | $0.00 | $0.00 | $0.00 | $0.00 |
Values
| (+) Improvement Homesite Value: | + | $0 | |
| (+) Improvement Non-Homesite Value: | + | $261,880 | |
| (+) Land Homesite Value: | + | $0 | |
| (+) Land Non-Homesite Value: | + | $37,500 | |
| (+) Curr Use (HS): | + | $0 | $0 |
| (+) Curr Use (NHS): | + | $0 | $0 |
| | | -------------------------- | |
| (=) Market Value: | = | $299,380 | |
| (–) Productivity Loss: | – | $0 | |
| | | -------------------------- | |
| (=) Subtotal: | = | $299,380 | |
| (+) Senior Appraised Value: | + | $0 | |
| (+) Non-Senior Appraised Value: | + | $299,380 | |
| | | -------------------------- | |
| (=) Total Appraised Value: | = | $299,380 | |
| (–) Senior Exemption Loss: | – | $0 | |
| (–) Exemption Loss: | – | $0 | |
| | | -------------------------- | |
| (=) Taxable Value: | = | $299,380 | |
Taxing Jurisdiction
| Owner: | LAAN JAMES VANDER | | |
| % Ownership: | 100.0000000000% | | |
| Total Value: | $299,380 | | |
| Tax Area: | 1 - OL-140-F |
| CERFD | CURRENT EXPENSE REFUND 010 | 0.0000000000 | $299,380 | $299,380 | $0.00 | | |
| CURREXP | CURRENT EXPENSE 010 | 1.0175366760 | $299,380 | $299,380 | $304.63 | | |
| HUMNSERV | HUMAN SERVICES 119 | 0.0250000000 | $299,380 | $299,380 | $7.48 | | |
| SLDREL | SOLDIERS RELIEF 121 | 0.0155990005 | $299,380 | $299,380 | $4.67 | | |
| EMERGSER | EMS 147 | 0.3792580840 | $299,380 | $299,380 | $113.54 | | |
| EMSRFD | EMS REFUND 147 | 0.0000000000 | $299,380 | $299,380 | $0.00 | | |
| PORTRFD | PORT REFUND 640 | 0.0000000000 | $299,380 | $299,380 | $0.00 | | |
| PORTWWGEN | PORT OF WW 640 | 0.2460186015 | $299,380 | $299,380 | $73.65 | | |
| SD140BOND | SD #140 BOND 764 | 0.8342371393 | $299,380 | $299,380 | $249.75 | | |
| SD140GEN | SD #140 GENERAL 760 | 2.0646500647 | $299,380 | $299,380 | $618.11 | | |
| ST2 | STATE SCHOOL PART 2 600 | 0.8131451643 | $299,380 | $299,380 | $243.44 | | |
| STATESCHL | STATE SCHOOL 600 | 1.5158548041 | $299,380 | $299,380 | $453.82 | | |
| STREFUND | STATE REFUND LEVY 603 | 0.0000000000 | $299,380 | $299,380 | $0.00 | | |
| CWWBOND | C OF WW BOND 643 | 0.2760494372 | $299,380 | $299,380 | $82.64 | | |
| CWWGEN | CITY OF WW 631 | 1.6100204973 | $299,380 | $299,380 | $482.01 | | |
| CWWRFD | CITY OF WALLA WALLA REFUND 631 | 0.0000000000 | $299,380 | $299,380 | $0.00 | | |
| | Total Tax Rate: | 8.7973694689 | | | | | |
| | | | | Taxes w/Current Exemptions: | $2,633.74 | | |
| | | | | Taxes w/o Exemptions: | $2,633.74 | | |
Improvement / Building
| Improvement #1: | RESIDENTIAL | State Code: | 11 | 945.0 sqft | Value: | $261,880 |
| Exterior Wall: | METAL/STEEL | Heating/Cooling: | WARM & COOLED AIR | | Number of Bathrooms: | 2 | Number of Bedrooms: | 3 | | Plumbing: | 10 | Roof Covering: | COMP SHINGLE |
|
| | Type | Description | Class CD | Sub Class CD | Year Built | Area |
| | MA | Main Area | 1 | 30 | 1905 | 945.0 |
| | SI1 | SITE IMPROVEMENT | 1 | 30 | 1905 | 1.0 |
| | BASE | BASEMENT | 1 | 30 | 1905 | 441.0 |
| | BPF | BASEMENT -PARTITIONED FINISH | 1 | 30 | 1905 | 441.0 |
| | DTG | Detached Garage | 1 | 30 | 1905 | 528.0 |
| | CPC | COVERED CARPORT/PATIO | 1 | 30 | 1905 | 152.0 |
| | OPS | OPEN PORCH W/STEPS | 1 | 30 | 1905 | 36.0 |
Sketch
Property Image
Land
| 1 | RES 1 | Converted: Residential | 0.1377 | 6000.00 | 0.00 | 0.00 | 1.00 | $37,500 | $0 |
Roll Value History
| 2026 | N/A | N/A | N/A | N/A | N/A |
| 2025 | $239,430 | $60,000 | $0 | $299,430 | $299,430 |
| 2024 | $239,430 | $60,000 | $0 | $299,430 | $299,430 |
| 2023 | $261,880 | $37,500 | $0 | $299,380 | $299,380 |
| 2022 | $227,720 | $37,500 | $0 | $265,220 | $265,220 |
| 2021 | $162,660 | $37,500 | $0 | $200,160 | $200,160 |
| 2020 | $125,120 | $37,500 | $0 | $162,620 | $162,620 |
| 2019 | $125,120 | $37,500 | $0 | $162,620 | $162,620 |
| 2018 | $125,120 | $37,500 | $0 | $162,620 | $162,620 |
| 2017 | $125,120 | $24,000 | $0 | $149,120 | $149,120 |
| 2016 | $119,160 | $24,000 | $0 | $143,160 | $143,160 |
| 2015 | $99,300 | $24,000 | $0 | $123,300 | $123,300 |
| 2014 | $99,300 | $24,000 | $0 | $123,300 | $123,300 |
| 2013 | $99,300 | $24,000 | $0 | $123,300 | $123,300 |
| 2012 | $99,300 | $24,000 | $0 | $0 | $0 |
| 2011 | $99,300 | $24,000 | $0 | $0 | $0 |
| 2010 | $93,400 | $24,000 | $0 | $0 | $0 |
| 2009 | $106,400 | $24,000 | $0 | $0 | $0 |
| 2008 | $80,200 | $24,000 | $0 | $0 | $0 |
| 2007 | $80,200 | $24,000 | $0 | $0 | $0 |
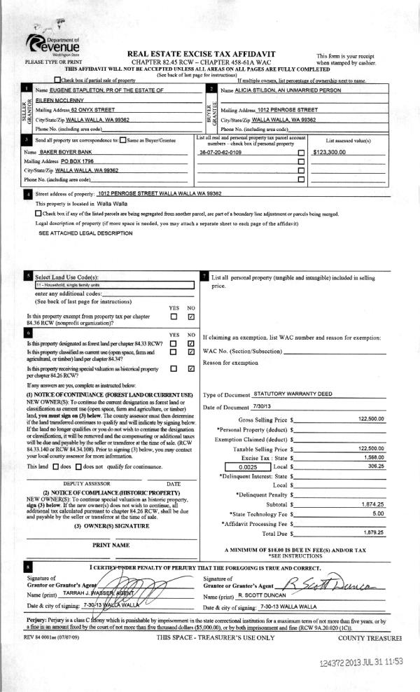
Deed and Sales History
| 1 | 12/08/2015 | SWD | STATUTORY WARRANTY DEED | STILSON ALICIA | LAAN JAMES VANDER | | | $165,000.00 | 129310 | 20115-10503 |
| 2 | 07/31/2013 | WARRANTY D | WARRANTY DEED | MC CLENNY, EILEEN F ESTATE OF | STILSON, ALICIA | | | $122,500.00 | 124372 | 2013-07749 |
| 3 | 06/08/1990 | WARRANTY D | WARRANTY DEED | | | | | $35,000.00 | 0 | 1839-004898 |
Payout Agreement
| No payout information available.. |