Property
Account |
| Property ID: | 29333 | Abbreviated Legal Description: | CAINS LOT 8 BLK 14 PLUS VAC STRIP |
| Parcel Number: | 360720571408 | Agent Code: | |
| Type: | Real | | |
| Tax Area: | 1 - OL-140-F | Land Use Code | 11 |
| Open Space: | N | DFL | N |
| Historic Property: | N | Remodel Property: | N |
| Multi-Family Redevelopment: | N | | |
| Township: | 7 | Section: | 20 |
| Range: | 36 |
Location |
| Address: | 417 E ROSE ST WA 99362 | Mapsco: | |
| Neighborhood: | F SFR | Map ID: | |
| Neighborhood CD: | 512011 |
Owner |
| Name: | BARTON NICOLA | Owner ID: | 65558 |
| Mailing Address: | 417 E ROSE ST WALLA WALLA, WA 99362 | % Ownership: | 100.0000000000% |
| | | Exemptions: | |
Taxes and Assessment Details
Values
| (+) Improvement Homesite Value: | + | $330,820 | |
| (+) Improvement Non-Homesite Value: | + | $0 | |
| (+) Land Homesite Value: | + | $39,380 | |
| (+) Land Non-Homesite Value: | + | $0 | |
| (+) Curr Use (HS): | + | $0 | $0 |
| (+) Curr Use (NHS): | + | $0 | $0 |
| | | -------------------------- | |
| (=) Market Value: | = | $370,200 | |
| (–) Productivity Loss: | – | $0 | |
| | | -------------------------- | |
| (=) Subtotal: | = | $370,200 | |
| (+) Senior Appraised Value: | + | $0 | |
| (+) Non-Senior Appraised Value: | + | $370,200 | |
| | | -------------------------- | |
| (=) Total Appraised Value: | = | $370,200 | |
| (–) Senior Exemption Loss: | – | $0 | |
| (–) Exemption Loss: | – | $0 | |
| | | -------------------------- | |
| (=) Taxable Value: | = | $370,200 | |
Taxing Jurisdiction
| Owner: | BARTON NICOLA | | |
| % Ownership: | 100.0000000000% | | |
| Total Value: | $370,200 | | |
| Tax Area: | 1 - OL-140-F |
| CERFD | CURRENT EXPENSE REFUND 010 | 0.0000000000 | $370,200 | $370,200 | $0.00 | | |
| CURREXP | CURRENT EXPENSE 010 | 1.0175366760 | $370,200 | $370,200 | $376.69 | | |
| HUMNSERV | HUMAN SERVICES 119 | 0.0250000000 | $370,200 | $370,200 | $9.26 | | |
| SLDREL | SOLDIERS RELIEF 121 | 0.0155990005 | $370,200 | $370,200 | $5.77 | | |
| EMERGSER | EMS 147 | 0.3792580840 | $370,200 | $370,200 | $140.40 | | |
| EMSRFD | EMS REFUND 147 | 0.0000000000 | $370,200 | $370,200 | $0.00 | | |
| PORTRFD | PORT REFUND 640 | 0.0000000000 | $370,200 | $370,200 | $0.00 | | |
| PORTWWGEN | PORT OF WW 640 | 0.2460186015 | $370,200 | $370,200 | $91.08 | | |
| SD140BOND | SD #140 BOND 764 | 0.8342371393 | $370,200 | $370,200 | $308.83 | | |
| SD140GEN | SD #140 GENERAL 760 | 2.0646500647 | $370,200 | $370,200 | $764.33 | | |
| ST2 | STATE SCHOOL PART 2 600 | 0.8131451643 | $370,200 | $370,200 | $301.03 | | |
| STATESCHL | STATE SCHOOL 600 | 1.5158548041 | $370,200 | $370,200 | $561.17 | | |
| STREFUND | STATE REFUND LEVY 603 | 0.0000000000 | $370,200 | $370,200 | $0.00 | | |
| CWWBOND | C OF WW BOND 643 | 0.2760494372 | $370,200 | $370,200 | $102.19 | | |
| CWWGEN | CITY OF WW 631 | 1.6100204973 | $370,200 | $370,200 | $596.03 | | |
| CWWRFD | CITY OF WALLA WALLA REFUND 631 | 0.0000000000 | $370,200 | $370,200 | $0.00 | | |
| | Total Tax Rate: | 8.7973694689 | | | | | |
| | | | | Taxes w/Current Exemptions: | $3,256.78 | | |
| | | | | Taxes w/o Exemptions: | $3,256.78 | | |
Improvement / Building
| Improvement #1: | RESIDENTIAL | State Code: | 11 | 826.0 sqft | Value: | $330,820 |
| Exterior Wall: | SIDING | Heating/Cooling: | FORCED AIR | | Number of Bathrooms: | 1 | Number of Bedrooms: | 2 | | Plumbing: | 6 | Roof Covering: | COMP SHINGLE |
|
| | Type | Description | Class CD | Sub Class CD | Year Built | Area |
| | MA | Main Area | 1 | 35 | 1920 | 826.0 |
| | SI1 | SITE IMPROVEMENT | 1 | 35 | 0 | 1.0 |
| | BASE | BASEMENT | 1 | 35 | 1920 | 810.0 |
| | DTG | Detached Garage | 1 | 35 | 1920 | 900.0 |
| | RPS | PORCH W/STEPS,ROOF | 1 | 35 | 1920 | 26.0 |
| | OUT | OUTSIDE BASEMENT ENTRY | 1 | 35 | 1920 | 1.0 |
Sketch
Property Image
Land
| 1 | RES 1 | Converted: Residential | 0.1722 | 7500.00 | 0.00 | 0.00 | 1.00 | $39,380 | $0 |
Roll Value History
| 2026 | N/A | N/A | N/A | N/A | N/A |
| 2025 | $320,400 | $67,500 | $0 | $387,900 | $387,900 |
| 2024 | $320,400 | $67,500 | $0 | $387,900 | $387,900 |
| 2023 | $330,820 | $39,380 | $0 | $370,200 | $370,200 |
| 2022 | $300,750 | $39,380 | $0 | $340,130 | $340,130 |
| 2021 | $231,350 | $39,380 | $0 | $270,730 | $270,730 |
| 2020 | $154,230 | $39,380 | $0 | $193,610 | $193,610 |
| 2019 | $154,230 | $39,380 | $0 | $193,610 | $193,610 |
| 2018 | $102,820 | $39,380 | $0 | $142,200 | $142,200 |
| 2017 | $104,140 | $21,800 | $0 | $125,940 | $125,940 |
| 2016 | $104,140 | $21,800 | $0 | $125,940 | $125,940 |
| 2015 | $98,910 | $21,800 | $0 | $120,710 | $120,710 |
| 2014 | $94,200 | $21,800 | $0 | $116,000 | $0 |
| 2013 | $94,200 | $21,800 | $0 | $116,000 | $0 |
| 2012 | $94,200 | $21,800 | $0 | $0 | $0 |
| 2011 | $94,200 | $21,800 | $0 | $0 | $0 |
| 2010 | $94,200 | $21,800 | $0 | $0 | $0 |
| 2009 | $107,100 | $21,800 | $0 | $0 | $0 |
| 2008 | $81,300 | $21,800 | $0 | $0 | $0 |
| 2007 | $81,300 | $21,800 | $0 | $0 | $0 |
Deed and Sales History
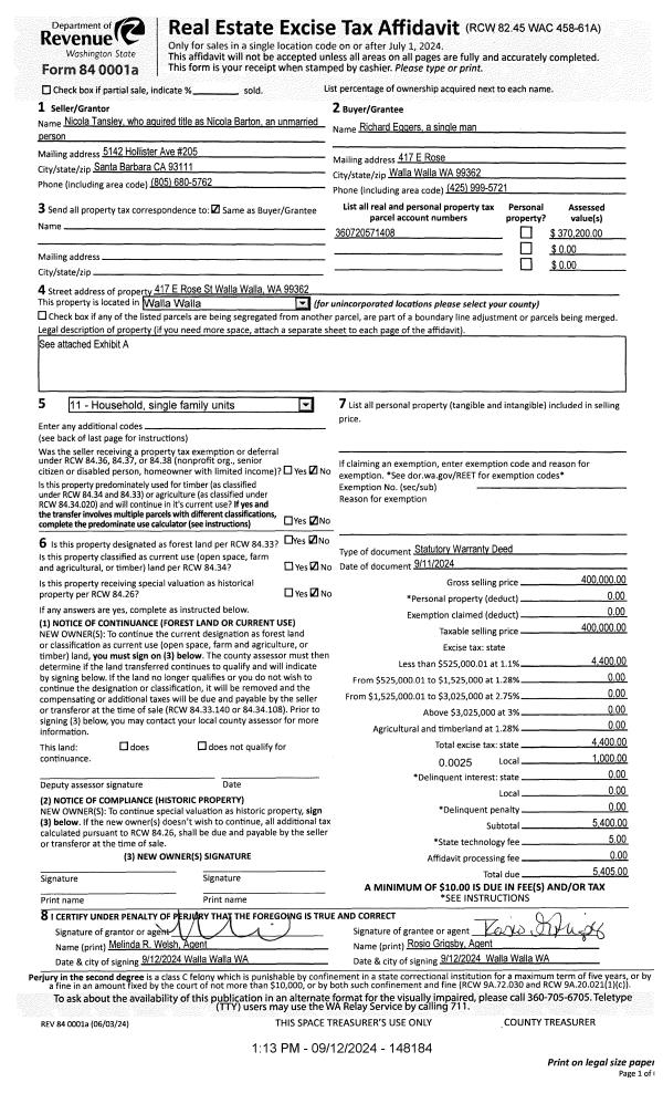
| 1 | 09/12/2024 | SWD | STATUTORY WARRANTY DEED | BARTON NICOLA | EGGERS RICHARD | | | $400,000.00 | 148184 | 2024-05196 |
| 2 | 07/18/2019 | SWD | STATUTORY WARRANTY DEED | PRICE JOANNE | BARTON NICOLA | | | $278,000.00 | 137310 | 2019-05222 |
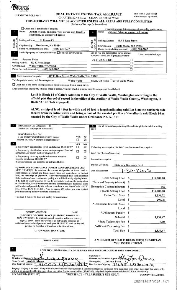
| 3 | 08/05/2015 | SWD | STATUTORY WARRANTY DEED | MORELAND BOYD L | PRICE JOANNE | | | $119,900.00 | 128549 | 2015-06770 |
| 4 | 07/31/2015 | QCD | QUIT CLAIM DEED | MORELAND ETHEL L LIFE EST | MORELAND BOYD L | | | $0.00 | 128548 | 2015-06769 |
| 5 | 02/12/1987 | WARRANTY D | WARRANTY DEED | | | | | $40,000.00 | 0 | 1628-701172 |
Payout Agreement
| No payout information available.. |