Property
Account |
| Property ID: | 29320 | Abbreviated Legal Description: | FRANKLAND LOT 14 BLK 5 |
| Parcel Number: | 360716500514 | Agent Code: | |
| Type: | Real | | |
| Tax Area: | 5 - OL-140 | Land Use Code | 12 |
| Open Space: | N | DFL | N |
| Historic Property: | N | Remodel Property: | N |
| Multi-Family Redevelopment: | N | | |
| Township: | 7 | Section: | 16 |
| Range: | 36 |
Location |
| Address: | 724 CLARK ST WA 99362 | Mapsco: | |
| Neighborhood: | A-Duplex | Map ID: | |
| Neighborhood CD: | 513031 |
Owner |
| Name: | STILLWATER DEVELOPMENT LLC | Owner ID: | 73339 |
| Mailing Address: | 3064 S 3RD AVE WALLA WALLA, WA 99362 | % Ownership: | 100.0000000000% |
| | | Exemptions: | |
Taxes and Assessment Details
Values
| (+) Improvement Homesite Value: | + | $0 | |
| (+) Improvement Non-Homesite Value: | + | $419,780 | |
| (+) Land Homesite Value: | + | $39,680 | |
| (+) Land Non-Homesite Value: | + | $0 | |
| (+) Curr Use (HS): | + | $0 | $0 |
| (+) Curr Use (NHS): | + | $0 | $0 |
| | | -------------------------- | |
| (=) Market Value: | = | $459,460 | |
| (–) Productivity Loss: | – | $0 | |
| | | -------------------------- | |
| (=) Subtotal: | = | $459,460 | |
| (+) Senior Appraised Value: | + | $0 | |
| (+) Non-Senior Appraised Value: | + | $459,460 | |
| | | -------------------------- | |
| (=) Total Appraised Value: | = | $459,460 | |
| (–) Senior Exemption Loss: | – | $0 | |
| (–) Exemption Loss: | – | $0 | |
| | | -------------------------- | |
| (=) Taxable Value: | = | $459,460 | |
Taxing Jurisdiction
| Owner: | STILLWATER DEVELOPMENT LLC | | |
| % Ownership: | 100.0000000000% | | |
| Total Value: | $459,460 | | |
| Tax Area: | 5 - OL-140 |
| CERFD | CURRENT EXPENSE REFUND 010 | 0.0000000000 | $459,460 | $459,460 | $0.00 | | |
| CURREXP | CURRENT EXPENSE 010 | 1.0175366760 | $459,460 | $459,460 | $467.52 | | |
| HUMNSERV | HUMAN SERVICES 119 | 0.0250000000 | $459,460 | $459,460 | $11.49 | | |
| SLDREL | SOLDIERS RELIEF 121 | 0.0155990005 | $459,460 | $459,460 | $7.17 | | |
| EMERGSER | EMS 147 | 0.3792580840 | $459,460 | $459,460 | $174.25 | | |
| EMSRFD | EMS REFUND 147 | 0.0000000000 | $459,460 | $459,460 | $0.00 | | |
| PORTRFD | PORT REFUND 640 | 0.0000000000 | $459,460 | $459,460 | $0.00 | | |
| PORTWWGEN | PORT OF WW 640 | 0.2460186015 | $459,460 | $459,460 | $113.04 | | |
| SD140BOND | SD #140 BOND 764 | 0.8342371393 | $459,460 | $459,460 | $383.30 | | |
| SD140GEN | SD #140 GENERAL 760 | 2.0646500647 | $459,460 | $459,460 | $948.62 | | |
| ST2 | STATE SCHOOL PART 2 600 | 0.8131451643 | $459,460 | $459,460 | $373.61 | | |
| STATESCHL | STATE SCHOOL 600 | 1.5158548041 | $459,460 | $459,460 | $696.47 | | |
| STREFUND | STATE REFUND LEVY 603 | 0.0000000000 | $459,460 | $459,460 | $0.00 | | |
| CWWBOND | C OF WW BOND 643 | 0.2760494372 | $459,460 | $459,460 | $126.83 | | |
| CWWGEN | CITY OF WW 631 | 1.6100204973 | $459,460 | $459,460 | $739.74 | | |
| CWWRFD | CITY OF WALLA WALLA REFUND 631 | 0.0000000000 | $459,460 | $459,460 | $0.00 | | |
| | Total Tax Rate: | 8.7973694689 | | | | | |
| | | | | Taxes w/Current Exemptions: | $4,042.04 | | |
| | | | | Taxes w/o Exemptions: | $4,042.04 | | |
Improvement / Building
| Improvement #1: | RESIDENTIAL | State Code: | 12 | 2040.0 sqft | Value: | $419,780 |
| Exterior Wall: | SIDING | Heating/Cooling: | WARM & COOLED AIR | | Number of Bathrooms: | 4 | Number of Bedrooms: | 4 | | Plumbing: | 15 | Roof Covering: | COMP SHINGLE |
|
| | Type | Description | Class CD | Sub Class CD | Year Built | Area |
| | MA | Main Area | 1 | 30 | 2022 | 2040.0 |
| | SI1 | SITE IMPROVEMENT | 1 | 30 | 2022 | 3.0 |
| | ATG | Attached Garage | 1 | 30 | 2022 | 313.0 |
| | ATG | Attached Garage | 1 | 30 | 2022 | 313.0 |
| | RPC | OPEN PORCH W/ROOF , CEILED | 1 | 30 | 2022 | 213.0 |
| | RPC | OPEN PORCH W/ROOF , CEILED | 1 | 30 | 2022 | 213.0 |
| | RPC | OPEN PORCH W/ROOF , CEILED | 1 | 30 | 2022 | 40.0 |
| | RPC | OPEN PORCH W/ROOF , CEILED | 1 | 30 | 2022 | 40.0 |
Sketch
Property Image
Land
| 1 | RES 1 | Converted: Residential | 0.1458 | 6349.00 | 0.00 | 0.00 | 1.00 | $39,680 | $0 |
Roll Value History
| 2026 | N/A | N/A | N/A | N/A | N/A |
| 2025 | $418,500 | $63,490 | $0 | $481,990 | $481,990 |
| 2024 | $418,500 | $63,490 | $0 | $481,990 | $481,990 |
| 2023 | $419,780 | $39,680 | $0 | $459,460 | $459,460 |
| 2022 | $53,020 | $39,680 | $0 | $92,700 | $92,700 |
| 2021 | $0 | $39,690 | $0 | $39,690 | $39,690 |
| 2020 | $0 | $39,690 | $0 | $39,690 | $39,690 |
| 2019 | $500 | $39,690 | $0 | $40,190 | $40,190 |
| 2018 | $500 | $39,690 | $0 | $40,190 | $40,190 |
| 2017 | $500 | $25,400 | $0 | $25,900 | $25,900 |
| 2016 | $500 | $25,400 | $0 | $25,900 | $25,900 |
| 2015 | $500 | $25,400 | $0 | $25,900 | $25,900 |
| 2014 | $18,900 | $25,400 | $0 | $44,300 | $0 |
| 2013 | $18,900 | $25,400 | $0 | $44,300 | $0 |
| 2012 | $18,900 | $25,400 | $0 | $0 | $0 |
| 2011 | $23,800 | $25,400 | $0 | $0 | $0 |
| 2010 | $23,800 | $25,400 | $0 | $0 | $0 |
| 2009 | $29,300 | $25,400 | $0 | $0 | $0 |
| 2008 | $29,300 | $25,400 | $0 | $0 | $0 |
| 2007 | $29,300 | $25,400 | $0 | $0 | $0 |
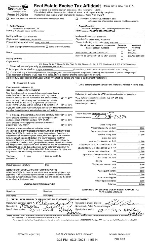
Deed and Sales History
| 1 | 03/21/2023 | QCD | QUIT CLAIM DEED | STONE CREEK CUSTOM HOMES LLC | STILLWATER DEVELOPMENT LLC | | | | 145544 | 2023-01456 |
| 2 | 07/29/2022 | SURVEY | SURVEY | | | 14 | 55 | | 0 | 2022-06385 |
| 3 | 03/09/2020 | QCD | QUIT CLAIM DEED | DELONG MAL | STONE CREEK CUSTOM HOMES LLC | | | $37,000.00 | 138761 | 2020-02172 |
| 4 | 02/11/2020 | TAX AFF | TAX AFFIDAVIT | LUCERO DAWN R | DELONG MAL | | | $0.00 | 138667 | 2020-01690 |
| 5 | 08/13/2002 | QCD | QUIT CLAIM DEED | VIAENE, ANGELA | LUCERO, DAWN R | | | | 100142 | -100142 |
Payout Agreement
| No payout information available.. |