Property
Account |
| Property ID: | 29307 | Abbreviated Legal Description: | VALLEY HOMES LOT 3 OF SHORT PLAT (WLY & NLY PTN LOT 3 & NELY PTNLOT 18) |
| Parcel Number: | 360722560217 | Agent Code: | |
| Type: | Real | | |
| Tax Area: | 6 - OL-140-F-FB | Land Use Code | 11 |
| Open Space: | N | DFL | N |
| Historic Property: | N | Remodel Property: | N |
| Multi-Family Redevelopment: | N | | |
| Township: | 7 | Section: | 22 |
| Range: | 36 |
Location |
| Address: | 1853 MATARA CT WA 99362 | Mapsco: | |
| Neighborhood: | A-Superior SFR | Map ID: | |
| Neighborhood CD: | 413211 |
Owner |
| Name: | BRITT GLENN & VICKI | Owner ID: | 77178 |
| Mailing Address: | LEE BRITT 1901 BERNARD WALLA WALLA, WA 99362 | % Ownership: | 100.0000000000% |
| | | Exemptions: | |
Taxes and Assessment Details
Values
| (+) Improvement Homesite Value: | + | N/A | |
| (+) Improvement Non-Homesite Value: | + | N/A | |
| (+) Land Homesite Value: | + | N/A | |
| (+) Land Non-Homesite Value: | + | N/A | Ag / Timber Use Value |
| (+) Curr Use (HS): | + | N/A | N/A |
| (+) Curr Use (NHS): | + | N/A | N/A |
| | | -------------------------- | |
| (=) Market Value: | = | N/A | |
| (–) Productivity Loss: | – | N/A | |
| | | -------------------------- | |
| (=) Subtotal: | = | N/A | |
| (+) Senior Appraised Value: | + | N/A | |
| (+) Non-Senior Appraised Value: | + | N/A | |
| | | -------------------------- | |
| (=) Total Appraised Value: | = | N/A | |
| (–) Senior Exemption Loss: | – | N/A | |
| (–) Exemption Loss: | – | N/A | |
| | | -------------------------- | |
| (=) Taxable Value: | = | N/A | |
Taxing Jurisdiction
| Owner: | BRITT GLENN & VICKI | | |
| % Ownership: | 100.0000000000% | | |
| Total Value: | N/A | | |
| Tax Area: | 6 - OL-140-F-FB |
| CERFD | CURRENT EXPENSE REFUND 010 | N/A | N/A | N/A | N/A | | |
| CURREXP | CURRENT EXPENSE 010 | N/A | N/A | N/A | N/A | | |
| HUMNSERV | HUMAN SERVICES 119 | N/A | N/A | N/A | N/A | | |
| SLDREL | SOLDIERS RELIEF 121 | N/A | N/A | N/A | N/A | | |
| EMERGSER | EMS 147 | N/A | N/A | N/A | N/A | | |
| EMSRFD | EMS REFUND 147 | N/A | N/A | N/A | N/A | | |
| PORTRFD | PORT REFUND 640 | N/A | N/A | N/A | N/A | | |
| PORTWWGEN | PORT OF WW 640 | N/A | N/A | N/A | N/A | | |
| SD140BOND | SD #140 BOND 764 | N/A | N/A | N/A | N/A | | |
| SD140GEN | SD #140 GENERAL 760 | N/A | N/A | N/A | N/A | | |
| ST2 | STATE SCHOOL PART 2 600 | N/A | N/A | N/A | N/A | | |
| STATESCHL | STATE SCHOOL 600 | N/A | N/A | N/A | N/A | | |
| STREFUND | STATE REFUND LEVY 603 | N/A | N/A | N/A | N/A | | |
| CWWBOND | C OF WW BOND 643 | N/A | N/A | N/A | N/A | | |
| CWWGEN | CITY OF WW 631 | N/A | N/A | N/A | N/A | | |
| CWWRFD | CITY OF WALLA WALLA REFUND 631 | N/A | N/A | N/A | N/A | | |
| | Total Tax Rate: | N/A | | | | | |
| | | | | Taxes w/Current Exemptions: | N/A | | |
| | | | | Taxes w/o Exemptions: | N/A | | |
Improvement / Building
| Improvement #1: | RESIDENTIAL | State Code: | 11 | 1620.0 sqft | Value: | N/A |
| Exterior Wall: | SIDING | Heating/Cooling: | WARM & COOLED AIR | | Number of Bathrooms: | 2 | Number of Bedrooms: | 4 | | Plumbing: | 11 | Roof Covering: | COMP SHINGLE |
|
| | Type | Description | Class CD | Sub Class CD | Year Built | Area |
| | MA | Main Area | 1 | 30 | 2006 | 1620.0 |
| | SI1 | SITE IMPROVEMENT | 1 | 30 | 0 | 3.0 |
| | ATG | Attached Garage | 1 | 30 | 2006 | 594.0 |
| | RPO | OPEN PORCH W/ROOF | 1 | 30 | 2006 | 98.0 |
Sketch
Property Image
Land
| 1 | RES 1 | Converted: Residential | 0.1653 | 7200.00 | 0.00 | 0.00 | 1.00 | N/A | N/A |
Roll Value History
| 2026 | N/A | N/A | N/A | N/A | N/A |
| 2025 | $344,400 | $57,600 | $0 | $402,000 | $402,000 |
| 2024 | $344,400 | $57,600 | $0 | $402,000 | $402,000 |
| 2023 | $328,000 | $57,600 | $0 | $385,600 | $79,520 |
| 2022 | $286,420 | $55,000 | $0 | $341,420 | $79,520 |
| 2021 | $220,320 | $55,000 | $0 | $275,320 | $79,520 |
| 2020 | $207,850 | $55,000 | $0 | $262,850 | $79,520 |
| 2019 | $207,850 | $55,000 | $0 | $262,850 | $79,520 |
| 2018 | $153,970 | $55,000 | $0 | $208,970 | $79,520 |
| 2017 | $146,630 | $55,000 | $0 | $201,630 | $79,520 |
| 2016 | $146,630 | $45,000 | $0 | $191,630 | $76,652 |
| 2015 | $139,650 | $45,000 | $0 | $184,650 | $73,860 |
| 2014 | $133,000 | $45,000 | $0 | $178,000 | $71,200 |
| 2013 | $133,000 | $45,000 | $0 | $178,000 | $71,200 |
| 2012 | $133,000 | $45,000 | $0 | $0 | $0 |
| 2011 | $133,900 | $45,000 | $0 | $0 | $0 |
| 2010 | $133,900 | $45,000 | $0 | $0 | $0 |
| 2009 | $153,800 | $45,000 | $0 | $0 | $0 |
| 2008 | $144,300 | $45,000 | $0 | $0 | $0 |
| 2007 | $79,000 | $45,000 | $0 | $0 | $0 |
Deed and Sales History
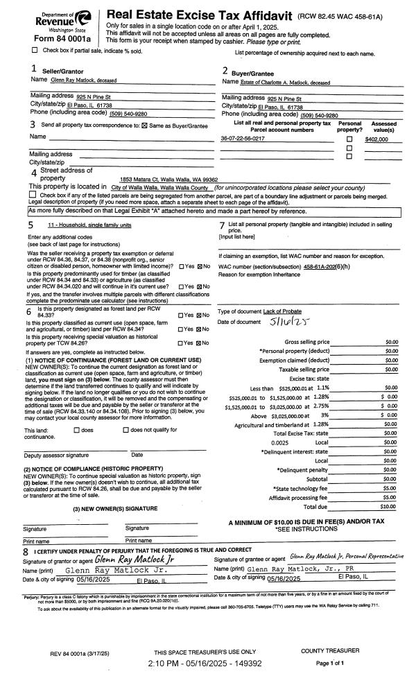
| 1 | 05/16/2025 | BARGAIN & | BARGAIN & SALE DEED | MATLOCK CHARLOTTE ESTATE OF | BRITT GLENN & VICKI | | | $400,000.00 | 149393 | 2025-02713 |
| 2 | 05/16/2025 | LOPA | LACK OF PROBATE AFFIDAVIT | MATLOCK GLENN & CHARLOTTE | MATLOCK CHARLOTTE ESTATE OF | | | | 149392 | 2025-02712 |
| 3 | 09/12/2016 | DEATH CERT | DEATH CERTIFICATE | MATLOCK GLENN RAY | | | | | 0 | |
| 4 | 11/15/2006 | WARRANTY D | WARRANTY DEED | ALLISON HOMES LLC | MATLOCK, GLENN & CHARLOTTE | | | $203,000.00 | 111667 | 2006-13741 |
| 5 | 02/27/2006 | WARRANTY D | WARRANTY DEED | TITUS CREEK DEVELOPMENT LLC | ALLISON HOMES LLC | | | $90,000.00 | 109725 | 2006-02234 |
|   | |
Payout Agreement
| No payout information available.. |