Property
Account |
| Property ID: | 29303 | Abbreviated Legal Description: | DIXIE LOTS 1 AND 2 BLK 12 & LOTS 11 AND 12 BLK 12 |
| Parcel Number: | 370826511201 | Agent Code: | |
| Type: | Real | | |
| Tax Area: | 310 - 101-8 | Land Use Code | 11 |
| Open Space: | N | DFL | N |
| Historic Property: | N | Remodel Property: | N |
| Multi-Family Redevelopment: | N | | |
| Township: | 8 | Section: | 26 |
| Range: | 37 |
Location |
| Address: | 13 KERSHAW ST WA 99329 | Mapsco: | |
| Neighborhood: | Cycle 4 Dixie (SF) | Map ID: | |
| Neighborhood CD: | 413511 |
Owner |
| Name: | TOWNSEND EDWARD E & JUDITH K | Owner ID: | 57919 |
| Mailing Address: | PO BOX 33 DIXIE, WA 99329 | % Ownership: | 100.0000000000% |
| | | Exemptions: | |
Taxes and Assessment Details
Property Tax Information as of
02/21/2026
Click on "Statement Details" to expand or collapse a tax statement.
* Please enter a valid date ** Please enter a valid date *
Statement Details |
| | TOTAL: | $0.00 | $0.00 | $0.00 | $0.00 | $0.00 | $0.00 |
|
| | $0.00 | $0.00 | $0.00 | $0.00 | $0.00 | $0.00 |
Values
| (+) Improvement Homesite Value: | + | $254,140 | |
| (+) Improvement Non-Homesite Value: | + | $0 | |
| (+) Land Homesite Value: | + | $44,200 | |
| (+) Land Non-Homesite Value: | + | $0 | |
| (+) Curr Use (HS): | + | $0 | $0 |
| (+) Curr Use (NHS): | + | $0 | $0 |
| | | -------------------------- | |
| (=) Market Value: | = | $298,340 | |
| (–) Productivity Loss: | – | $0 | |
| | | -------------------------- | |
| (=) Subtotal: | = | $298,340 | |
| (+) Senior Appraised Value: | + | $0 | |
| (+) Non-Senior Appraised Value: | + | $298,340 | |
| | | -------------------------- | |
| (=) Total Appraised Value: | = | $298,340 | |
| (–) Senior Exemption Loss: | – | $0 | |
| (–) Exemption Loss: | – | $0 | |
| | | -------------------------- | |
| (=) Taxable Value: | = | $298,340 | |
Taxing Jurisdiction
| Owner: | TOWNSEND EDWARD E & JUDITH K | | |
| % Ownership: | 100.0000000000% | | |
| Total Value: | $298,340 | | |
| Tax Area: | 310 - 101-8 |
| CERFD | CURRENT EXPENSE REFUND 010 | 0.0000000000 | $298,340 | $298,340 | $0.00 | | |
| CURREXP | CURRENT EXPENSE 010 | 1.0175366760 | $298,340 | $298,340 | $303.57 | | |
| HUMNSERV | HUMAN SERVICES 119 | 0.0250000000 | $298,340 | $298,340 | $7.46 | | |
| SLDREL | SOLDIERS RELIEF 121 | 0.0155990005 | $298,340 | $298,340 | $4.65 | | |
| EMERGSER | EMS 147 | 0.3792580840 | $298,340 | $298,340 | $113.15 | | |
| EMSRFD | EMS REFUND 147 | 0.0000000000 | $298,340 | $298,340 | $0.00 | | |
| FD8EXP | FD #8 EXPENSE 697 | 0.6647992540 | $298,340 | $298,340 | $198.34 | | |
| RLBRFD | RURAL LIBRARY REFUND 623 | 0.0000000000 | $298,340 | $298,340 | $0.00 | | |
| RURALLIB | RURAL LIBRARY 623 | 0.3710609029 | $298,340 | $298,340 | $110.70 | | |
| PORTRFD | PORT REFUND 640 | 0.0000000000 | $298,340 | $298,340 | $0.00 | | |
| PORTWWGEN | PORT OF WW 640 | 0.2460186015 | $298,340 | $298,340 | $73.40 | | |
| SD101CAP | SD #101 CAP 752 | 0.5894423472 | $298,340 | $298,340 | $175.85 | | |
| SD101GEN | SD #101 GENERAL 750 | 0.7455117868 | $298,340 | $298,340 | $222.42 | | |
| ST2 | STATE SCHOOL PART 2 600 | 0.8131451643 | $298,340 | $298,340 | $242.59 | | |
| STATESCHL | STATE SCHOOL 600 | 1.5158548041 | $298,340 | $298,340 | $452.24 | | |
| STREFUND | STATE REFUND LEVY 603 | 0.0000000000 | $298,340 | $298,340 | $0.00 | | |
| COROAD | COUNTY ROAD 115 | 1.6549953990 | $298,340 | $298,340 | $493.75 | | |
| CRPRD | COUNTY ROAD REFUND 115 | 0.0000000000 | $298,340 | $298,340 | $0.00 | | |
| | Total Tax Rate: | 8.0382220203 | | | | | |
| | | | | Taxes w/Current Exemptions: | $2,398.12 | | |
| | | | | Taxes w/o Exemptions: | $2,398.12 | | |
Improvement / Building
| Improvement #1: | RESIDENTIAL | State Code: | 11 | 1636.0 sqft | Value: | $254,140 |
| Exterior Wall: | CONCRETE BLOCK | Heating/Cooling: | STOVE-NO HEAT | | Number of Bathrooms: | 1 | Number of Bedrooms: | 2 | | Plumbing: | 5 | Roof Covering: | COMP SHINGLE |
|
| | Type | Description | Class CD | Sub Class CD | Year Built | Area |
| | MA | Main Area | 1 | 30 | 1959 | 1636.0 |
| | SI1 | SITE IMPROVEMENT | 1 | 30 | 1959 | 1.0 |
| | WDR | WOOD DECK W/ROOF | 1 | 30 | 2006 | 180.0 |
| | CPC | COVERED CARPORT/PATIO | 1 | 30 | 1959 | 207.0 |
| | POL2 | POLE BUILDING-CONCRETE | 1 | 30 | 2006 | 576.0 |
Sketch
Property Image
Land
| 1 | RES 1 | Converted: Residential | 0.4591 | 20000.00 | 0.00 | 0.00 | 1.00 | $44,200 | $0 |
Roll Value History
| 2026 | N/A | N/A | N/A | N/A | N/A |
| 2025 | $254,140 | $44,200 | $0 | $298,340 | $298,340 |
| 2024 | $254,140 | $44,200 | $0 | $298,340 | $298,340 |
| 2023 | $254,140 | $44,200 | $0 | $298,340 | $298,340 |
| 2022 | $226,040 | $29,200 | $0 | $255,240 | $255,240 |
| 2021 | $188,360 | $29,200 | $0 | $217,560 | $217,560 |
| 2020 | $156,970 | $29,200 | $0 | $186,170 | $186,170 |
| 2019 | $156,970 | $29,200 | $0 | $186,170 | $186,170 |
| 2018 | $156,970 | $29,200 | $0 | $186,170 | $186,170 |
| 2017 | $130,810 | $29,200 | $0 | $160,010 | $160,010 |
| 2016 | $124,320 | $29,200 | $0 | $153,520 | $153,520 |
| 2015 | $124,320 | $29,200 | $0 | $153,520 | $153,520 |
| 2014 | $103,600 | $29,200 | $0 | $132,800 | $45,680 |
| 2013 | $103,600 | $29,200 | $0 | $132,800 | $45,680 |
| 2012 | $97,300 | $29,200 | $0 | $0 | $0 |
| 2011 | $85,000 | $29,200 | $0 | $0 | $0 |
| 2010 | $85,000 | $29,200 | $0 | $0 | $0 |
| 2009 | $95,400 | $18,800 | $0 | $0 | $0 |
| 2008 | $95,400 | $18,800 | $0 | $0 | $0 |
| 2007 | $95,400 | $18,800 | $0 | $0 | $0 |
Deed and Sales History
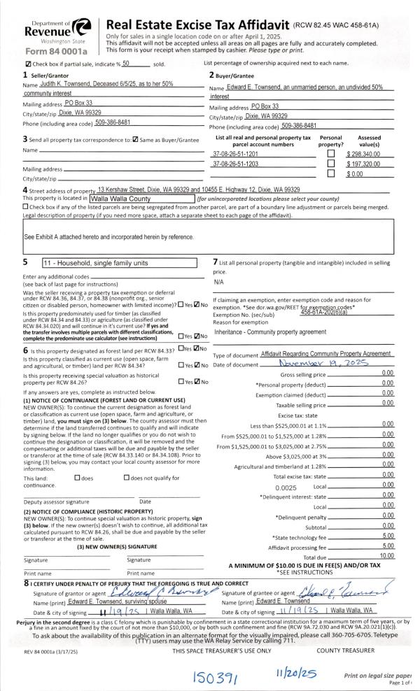
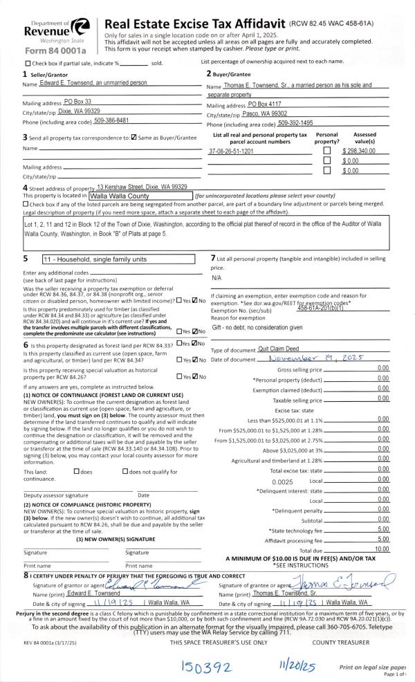
| 1 | 11/20/2025 | QCD | QUIT CLAIM DEED | TOWNSEND EDWARD E | TOWNSEND THOMAS E SR | | | | 150392 | 2025-07209 |
| 2 | 11/20/2025 | COMMUNITY | COMMUNITY PROPERTY AGREEMENT | TOWNSEND EDWARD E & JUDITH K | TOWNSEND EDWARD E | | | | 150391 | 2025-07208 |
| 3 | 12/18/2015 | QCD | QUIT CLAIM DEED | TOWNSEND RANDALL E | TOWNSEND EDWARD E & JUDITH K | | | $0.00 | 129361 | 2015-10815 |
| 4 | 01/23/2007 | WARRANTY D | WARRANTY DEED | TOWNSEND, EDWARD & JUDY | TOWNSEND, RANDALL E | | | $60,000.00 | 112118 | 2007-00905 |
| 5 | 07/16/1996 | WARRANTY D | WARRANTY DEED | | | | | $32,000.00 | 86509 | 2429-607112 |
Payout Agreement
| No payout information available.. |