Property
Account |
| Property ID: | 29255 | Abbreviated Legal Description: | TAUSICK PARK TAX 3 LOT 2 BLK 7 |
| Parcel Number: | 360722550702 | Agent Code: | |
| Type: | Real | | |
| Tax Area: | 1 - OL-140-F | Land Use Code | 11 |
| Open Space: | N | DFL | N |
| Historic Property: | N | Remodel Property: | N |
| Multi-Family Redevelopment: | N | | |
| Township: | 7 | Section: | 22 |
| Range: | 36 |
Location |
| Address: | 215 ASSUMPTION DR WA 99362 | Mapsco: | |
| Neighborhood: | A SFR | Map ID: | |
| Neighborhood CD: | 413011 |
Owner |
| Name: | MORRIS LOGAN & MERRIT | Owner ID: | 64595 |
| Mailing Address: | 215 ASSUMPTION DR WALLA WALLA, WA 99362 | % Ownership: | 100.0000000000% |
| | | Exemptions: | |
Taxes and Assessment Details
Property Tax Information as of
02/21/2026
Click on "Statement Details" to expand or collapse a tax statement.
* Please enter a valid date ** Please enter a valid date *
Statement Details |
| | TOTAL: | $0.00 | $0.00 | $0.00 | $0.00 | $0.00 | $0.00 |
|
| | $0.00 | $0.00 | $0.00 | $0.00 | $0.00 | $0.00 |
Values
| (+) Improvement Homesite Value: | + | $402,650 | |
| (+) Improvement Non-Homesite Value: | + | $0 | |
| (+) Land Homesite Value: | + | $79,260 | |
| (+) Land Non-Homesite Value: | + | $0 | |
| (+) Curr Use (HS): | + | $0 | $0 |
| (+) Curr Use (NHS): | + | $0 | $0 |
| | | -------------------------- | |
| (=) Market Value: | = | $481,910 | |
| (–) Productivity Loss: | – | $0 | |
| | | -------------------------- | |
| (=) Subtotal: | = | $481,910 | |
| (+) Senior Appraised Value: | + | $0 | |
| (+) Non-Senior Appraised Value: | + | $481,910 | |
| | | -------------------------- | |
| (=) Total Appraised Value: | = | $481,910 | |
| (–) Senior Exemption Loss: | – | $0 | |
| (–) Exemption Loss: | – | $0 | |
| | | -------------------------- | |
| (=) Taxable Value: | = | $481,910 | |
Taxing Jurisdiction
| Owner: | MORRIS LOGAN & MERRIT | | |
| % Ownership: | 100.0000000000% | | |
| Total Value: | $481,910 | | |
| Tax Area: | 1 - OL-140-F |
| CERFD | CURRENT EXPENSE REFUND 010 | 0.0000000000 | $481,910 | $481,910 | $0.00 | | |
| CURREXP | CURRENT EXPENSE 010 | 1.0175366760 | $481,910 | $481,910 | $490.36 | | |
| HUMNSERV | HUMAN SERVICES 119 | 0.0250000000 | $481,910 | $481,910 | $12.05 | | |
| SLDREL | SOLDIERS RELIEF 121 | 0.0155990005 | $481,910 | $481,910 | $7.52 | | |
| EMERGSER | EMS 147 | 0.3792580840 | $481,910 | $481,910 | $182.77 | | |
| EMSRFD | EMS REFUND 147 | 0.0000000000 | $481,910 | $481,910 | $0.00 | | |
| PORTRFD | PORT REFUND 640 | 0.0000000000 | $481,910 | $481,910 | $0.00 | | |
| PORTWWGEN | PORT OF WW 640 | 0.2460186015 | $481,910 | $481,910 | $118.56 | | |
| SD140BOND | SD #140 BOND 764 | 0.8342371393 | $481,910 | $481,910 | $402.03 | | |
| SD140GEN | SD #140 GENERAL 760 | 2.0646500647 | $481,910 | $481,910 | $994.98 | | |
| ST2 | STATE SCHOOL PART 2 600 | 0.8131451643 | $481,910 | $481,910 | $391.86 | | |
| STATESCHL | STATE SCHOOL 600 | 1.5158548041 | $481,910 | $481,910 | $730.51 | | |
| STREFUND | STATE REFUND LEVY 603 | 0.0000000000 | $481,910 | $481,910 | $0.00 | | |
| CWWBOND | C OF WW BOND 643 | 0.2760494372 | $481,910 | $481,910 | $133.03 | | |
| CWWGEN | CITY OF WW 631 | 1.6100204973 | $481,910 | $481,910 | $775.88 | | |
| CWWRFD | CITY OF WALLA WALLA REFUND 631 | 0.0000000000 | $481,910 | $481,910 | $0.00 | | |
| | Total Tax Rate: | 8.7973694689 | | | | | |
| | | | | Taxes w/Current Exemptions: | $4,239.55 | | |
| | | | | Taxes w/o Exemptions: | $4,239.55 | | |
Improvement / Building
| Improvement #1: | RESIDENTIAL | State Code: | 11 | 1872.0 sqft | Value: | $402,650 |
| Exterior Wall: | SIDING | Foundation: | SLAB FOUNDATION | | Heating/Cooling: | WARM & COOLED AIR | Number of Bathrooms: | 2.5 | | Number of Bedrooms: | 4 | Plumbing: | 12 | | Roof Covering: | COMP SHINGLE |   |   |
|
| | Type | Description | Class CD | Sub Class CD | Year Built | Area |
| | MA | Main Area | 3 | 40 | 1969 | 1872.0 |
| | UPFL | Upper Floor (included in main area) | 3 | 40 | 1969 | 672.0 |
| | SI1 | SITE IMPROVEMENT | 3 | 40 | 1969 | 3.0 |
| | OSP | Open | 3 | 40 | 1969 | 96.0 |
| | CPC | COVERED CARPORT/PATIO | 3 | 40 | 0 | 144.0 |
| | ATG | Attached Garage | 3 | 40 | 1969 | 528.0 |
| | UTST | Utility Storage Shed | 3 | 40 | 1969 | 100.0 |
| | S1F | Single One Story Fireplace | 3 | 40 | 1969 | 1.0 |
Sketch
Property Image
Land
| 1 | RES 1 | Converted: Residential | 0.2275 | 9908.00 | 0.00 | 0.00 | 1.00 | $79,260 | $0 |
Roll Value History
| 2026 | N/A | N/A | N/A | N/A | N/A |
| 2025 | $402,650 | $79,260 | $0 | $481,910 | $481,910 |
| 2024 | $402,650 | $79,260 | $0 | $481,910 | $481,910 |
| 2023 | $402,650 | $79,260 | $0 | $481,910 | $481,910 |
| 2022 | $368,960 | $52,020 | $0 | $420,980 | $420,980 |
| 2021 | $263,540 | $52,020 | $0 | $315,560 | $315,560 |
| 2020 | $250,990 | $52,020 | $0 | $303,010 | $303,010 |
| 2019 | $250,990 | $52,020 | $0 | $303,010 | $303,010 |
| 2018 | $156,000 | $52,020 | $0 | $208,020 | $208,020 |
| 2017 | $156,000 | $52,020 | $0 | $208,020 | $208,020 |
| 2016 | $180,450 | $39,600 | $0 | $220,050 | $220,050 |
| 2015 | $171,860 | $39,600 | $0 | $211,460 | $211,460 |
| 2014 | $132,200 | $39,600 | $0 | $171,800 | $43,880 |
| 2013 | $132,200 | $39,600 | $0 | $171,800 | $43,880 |
| 2012 | $124,000 | $39,600 | $0 | $0 | $0 |
| 2011 | $135,600 | $39,600 | $0 | $0 | $0 |
| 2010 | $135,600 | $39,600 | $0 | $0 | $0 |
| 2009 | $144,800 | $39,600 | $0 | $0 | $0 |
| 2008 | $144,800 | $39,600 | $0 | $0 | $0 |
| 2007 | $144,800 | $39,600 | $0 | $0 | $0 |
Deed and Sales History
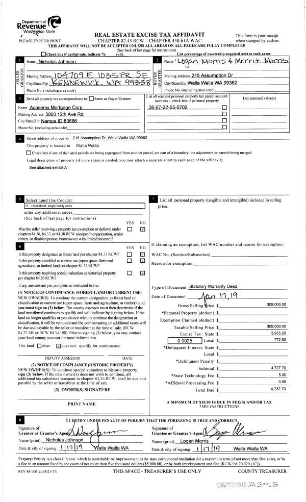
| 1 | 01/18/2019 | SWD | STATUTORY WARRANTY DEED | JOHNSON NICHOLAS | MORRIS LOGAN & MERRIT | | | $309,000.00 | 136273 | 2019-00395 |
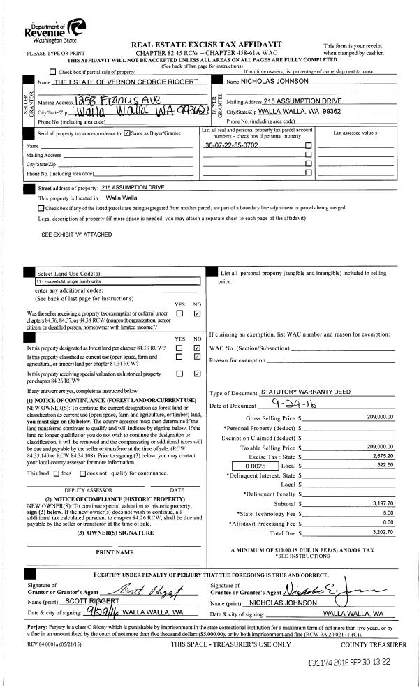
| 2 | 09/30/2016 | SWD | STATUTORY WARRANTY DEED | RIGGERT VERNON GEORGE ESTATE OF | JOHNSON NICHOLAS | | | $209,000.00 | 131174 | 2016-08087 |
| 3 | 03/22/2004 | QCD | QUIT CLAIM DEED | RIGGERT, LOIS HELEN | RIGGERT, VERNON GEORGE | | | | 104351 | 2004-03008 |
| 4 | 04/19/1993 | WARRANTY D | WARRANTY DEED | | | | | $108,000.00 | 78955 | 2059-303833 |
Payout Agreement
| No payout information available.. |