Property
Account |
| Property ID: | 29250 | Abbreviated Legal Description: | EAST MILBROOKE PARK LOT 10 BLK 4 |
| Parcel Number: | 360721660410 | Agent Code: | |
| Type: | Real | | |
| Tax Area: | 1 - OL-140-F | Land Use Code | 11 |
| Open Space: | N | DFL | N |
| Historic Property: | N | Remodel Property: | N |
| Multi-Family Redevelopment: | N | | |
| Township: | 7 | Section: | 21 |
| Range: | 36 |
Location |
| Address: | 1665 CAMBRIDGE DR WA 99362 | Mapsco: | |
| Neighborhood: | A-Superior SFR | Map ID: | |
| Neighborhood CD: | 413211 |
Owner |
| Name: | OLSON KATHERINE J & JOSEPH M | Owner ID: | 70168 |
| Mailing Address: | 3989 WHIRLWIND DR NE ROCKFORD, MI 19341-8289 | % Ownership: | 100.0000000000% |
| | | Exemptions: | |
Taxes and Assessment Details
Property Tax Information as of
02/21/2026
Click on "Statement Details" to expand or collapse a tax statement.
* Please enter a valid date ** Please enter a valid date *
Statement Details |
| | TOTAL: | $0.00 | $0.00 | $0.00 | $0.00 | $0.00 | $0.00 |
|
| | $0.00 | $0.00 | $0.00 | $0.00 | $0.00 | $0.00 |
Values
| (+) Improvement Homesite Value: | + | $292,900 | |
| (+) Improvement Non-Homesite Value: | + | $0 | |
| (+) Land Homesite Value: | + | $48,960 | |
| (+) Land Non-Homesite Value: | + | $0 | |
| (+) Curr Use (HS): | + | $0 | $0 |
| (+) Curr Use (NHS): | + | $0 | $0 |
| | | -------------------------- | |
| (=) Market Value: | = | $341,860 | |
| (–) Productivity Loss: | – | $0 | |
| | | -------------------------- | |
| (=) Subtotal: | = | $341,860 | |
| (+) Senior Appraised Value: | + | $0 | |
| (+) Non-Senior Appraised Value: | + | $341,860 | |
| | | -------------------------- | |
| (=) Total Appraised Value: | = | $341,860 | |
| (–) Senior Exemption Loss: | – | $0 | |
| (–) Exemption Loss: | – | $0 | |
| | | -------------------------- | |
| (=) Taxable Value: | = | $341,860 | |
Taxing Jurisdiction
| Owner: | OLSON KATHERINE J & JOSEPH M | | |
| % Ownership: | 100.0000000000% | | |
| Total Value: | $341,860 | | |
| Tax Area: | 1 - OL-140-F |
| CERFD | CURRENT EXPENSE REFUND 010 | 0.0000000000 | $341,860 | $341,860 | $0.00 | | |
| CURREXP | CURRENT EXPENSE 010 | 1.0175366760 | $341,860 | $341,860 | $347.86 | | |
| HUMNSERV | HUMAN SERVICES 119 | 0.0250000000 | $341,860 | $341,860 | $8.55 | | |
| SLDREL | SOLDIERS RELIEF 121 | 0.0155990005 | $341,860 | $341,860 | $5.33 | | |
| EMERGSER | EMS 147 | 0.3792580840 | $341,860 | $341,860 | $129.65 | | |
| EMSRFD | EMS REFUND 147 | 0.0000000000 | $341,860 | $341,860 | $0.00 | | |
| PORTRFD | PORT REFUND 640 | 0.0000000000 | $341,860 | $341,860 | $0.00 | | |
| PORTWWGEN | PORT OF WW 640 | 0.2460186015 | $341,860 | $341,860 | $84.10 | | |
| SD140BOND | SD #140 BOND 764 | 0.8342371393 | $341,860 | $341,860 | $285.19 | | |
| SD140GEN | SD #140 GENERAL 760 | 2.0646500647 | $341,860 | $341,860 | $705.82 | | |
| ST2 | STATE SCHOOL PART 2 600 | 0.8131451643 | $341,860 | $341,860 | $277.98 | | |
| STATESCHL | STATE SCHOOL 600 | 1.5158548041 | $341,860 | $341,860 | $518.21 | | |
| STREFUND | STATE REFUND LEVY 603 | 0.0000000000 | $341,860 | $341,860 | $0.00 | | |
| CWWBOND | C OF WW BOND 643 | 0.2760494372 | $341,860 | $341,860 | $94.37 | | |
| CWWGEN | CITY OF WW 631 | 1.6100204973 | $341,860 | $341,860 | $550.40 | | |
| CWWRFD | CITY OF WALLA WALLA REFUND 631 | 0.0000000000 | $341,860 | $341,860 | $0.00 | | |
| | Total Tax Rate: | 8.7973694689 | | | | | |
| | | | | Taxes w/Current Exemptions: | $3,007.46 | | |
| | | | | Taxes w/o Exemptions: | $3,007.46 | | |
Improvement / Building
| Improvement #1: | RESIDENTIAL | State Code: | 11 | 1120.0 sqft | Value: | $292,900 |
| Exterior Wall: | SIDING | Heating/Cooling: | WARM & COOLED AIR | | Number of Bathrooms: | 1 | Number of Bedrooms: | 4 | | Plumbing: | 6 | Roof Covering: | COMP SHINGLE |
|
| | Type | Description | Class CD | Sub Class CD | Year Built | Area |
| | MA | Main Area | 1 | 30 | 1956 | 1120.0 |
| | CPC | COVERED CARPORT/PATIO | 1 | 30 | 0 | 400.0 |
| | SI1 | SITE IMPROVEMENT | 1 | 30 | 0 | 3.0 |
| | BASE | BASEMENT | 1 | 30 | 1956 | 1120.0 |
| | OPS | OPEN PORCH W/STEPS | 1 | 30 | 1956 | 30.0 |
| | BPF | BASEMENT -PARTITIONED FINISH | 1 | 30 | 1956 | 560.0 |
| | S1F | Single One Story Fireplace | 1 | 30 | 1956 | 1.0 |
Sketch
Property Image
Land
| 1 | RES 1 | Converted: Residential | 0.1405 | 6120.00 | 0.00 | 0.00 | 1.00 | $48,960 | $0 |
Roll Value History
| 2026 | N/A | N/A | N/A | N/A | N/A |
| 2025 | $292,170 | $48,960 | $0 | $341,130 | $341,130 |
| 2024 | $278,260 | $48,960 | $0 | $327,220 | $327,220 |
| 2023 | $292,900 | $48,960 | $0 | $341,860 | $341,860 |
| 2022 | $289,600 | $32,130 | $0 | $321,730 | $321,730 |
| 2021 | $206,850 | $32,130 | $0 | $238,980 | $238,980 |
| 2020 | $179,870 | $32,130 | $0 | $212,000 | $212,000 |
| 2019 | $179,870 | $32,130 | $0 | $212,000 | $212,000 |
| 2018 | $138,360 | $32,130 | $0 | $170,490 | $170,490 |
| 2017 | $131,780 | $32,130 | $0 | $163,910 | $163,910 |
| 2016 | $131,780 | $24,500 | $0 | $156,280 | $156,280 |
| 2015 | $125,500 | $24,500 | $0 | $150,000 | $18,400 |
| 2014 | $125,500 | $24,500 | $0 | $150,000 | $18,400 |
| 2013 | $125,500 | $24,500 | $0 | $150,000 | $18,400 |
| 2012 | $119,700 | $24,500 | $0 | $0 | $0 |
| 2011 | $162,200 | $24,500 | $0 | $0 | $0 |
| 2010 | $145,200 | $24,500 | $0 | $0 | $0 |
| 2009 | $164,100 | $24,500 | $0 | $0 | $0 |
| 2008 | $126,400 | $24,500 | $0 | $0 | $0 |
| 2007 | $126,400 | $24,500 | $0 | $0 | $0 |
Deed and Sales History
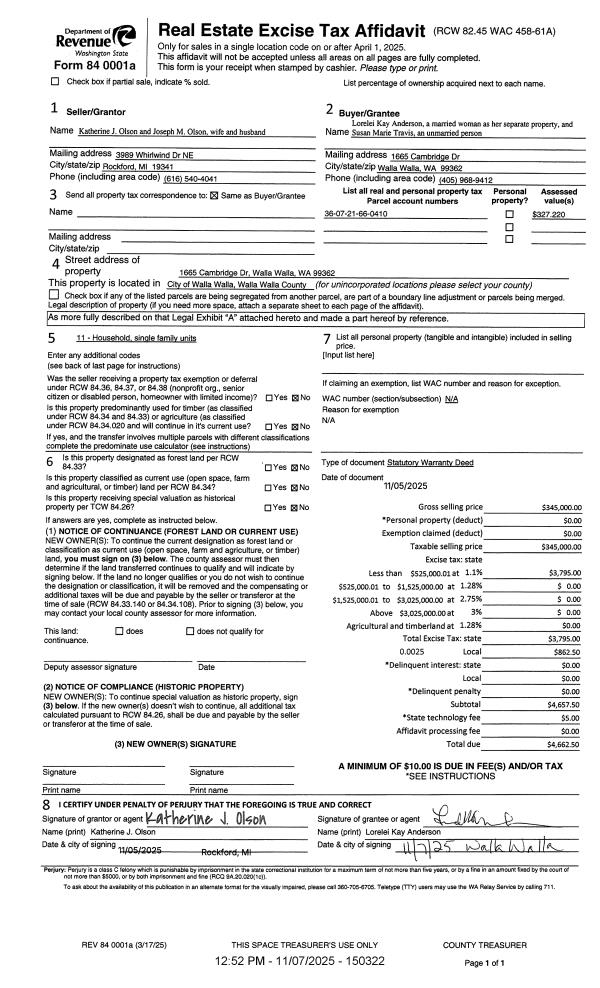
| 1 | 11/07/2025 | SWD | STATUTORY WARRANTY DEED | OLSON KATHERINE J & JOSEPH M | ANDERSON LORELEI KAY & SUSAN MARIE TRAVIS | | | $345,000.00 | 150322 | 2025-06915 |
| 2 | 08/26/2021 | SWD | STATUTORY WARRANTY DEED | SCHREINER BRANDON M | OLSON KATHERINE J & JOSEPH M | | | $335,000.00 | 142359 | 2021-10470 |
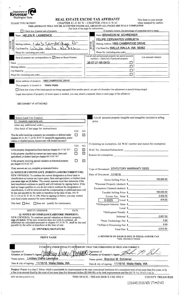
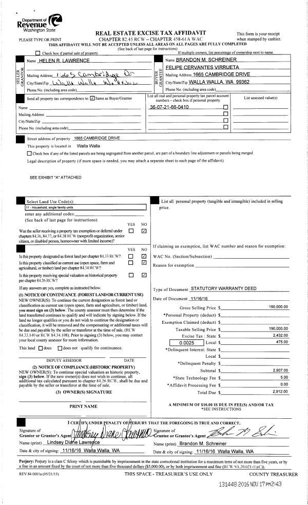
| 3 | 11/17/2016 | SWD | STATUTORY WARRANTY DEED | LAWRENCE HELEN R | SCHREINER BRANDON M | | | $190,000.00 | 131448 | 2016-09513 |
| 4 | 01/01/1963 | WARRANTY D | WARRANTY DEED | | | | | $16,280.00 | 0 | 2890-431200 |
Payout Agreement
| No payout information available.. |