Property
Account |
| Property ID: | 29236 | Abbreviated Legal Description: | EDAIR VISTAS REPLAT LOT 8 BLK 1 |
| Parcel Number: | 360715510108 | Agent Code: | |
| Type: | Real | | |
| Tax Area: | 5 - OL-140 | Land Use Code | 11 |
| Open Space: | N | DFL | N |
| Historic Property: | N | Remodel Property: | N |
| Multi-Family Redevelopment: | N | | |
| Township: | 7 | Section: | 15 |
| Range: | 36 |
Location |
| Address: | 916 SHASTA DR WA 99362 | Mapsco: | |
| Neighborhood: | A-SFR | Map ID: | |
| Neighborhood CD: | 313011 |
Owner |
| Name: | HENDERSON JOSEPH DEREK & ALICE | Owner ID: | 60294 |
| Mailing Address: | 916 SHASTA DR WALLA WALLA, WA 99362 | % Ownership: | 100.0000000000% |
| | | Exemptions: | |
Taxes and Assessment Details
Property Tax Information as of
04/19/2026
Click on "Statement Details" to expand or collapse a tax statement.
* Please enter a valid date ** Please enter a valid date *
Statement Details |
| | TOTAL: | $0.00 | $0.00 | $0.00 | $0.00 | $0.00 | $0.00 |
|
| | $0.00 | $0.00 | $0.00 | $0.00 | $0.00 | $0.00 |
Values
| (+) Improvement Homesite Value: | + | $0 | |
| (+) Improvement Non-Homesite Value: | + | $326,000 | |
| (+) Land Homesite Value: | + | $0 | |
| (+) Land Non-Homesite Value: | + | $90,000 | |
| (+) Curr Use (HS): | + | $0 | $0 |
| (+) Curr Use (NHS): | + | $0 | $0 |
| | | -------------------------- | |
| (=) Market Value: | = | $416,000 | |
| (–) Productivity Loss: | – | $0 | |
| | | -------------------------- | |
| (=) Subtotal: | = | $416,000 | |
| (+) Senior Appraised Value: | + | $0 | |
| (+) Non-Senior Appraised Value: | + | $416,000 | |
| | | -------------------------- | |
| (=) Total Appraised Value: | = | $416,000 | |
| (–) Senior Exemption Loss: | – | $0 | |
| (–) Exemption Loss: | – | $0 | |
| | | -------------------------- | |
| (=) Taxable Value: | = | $416,000 | |
Taxing Jurisdiction
| Owner: | HENDERSON JOSEPH DEREK & ALICE | | |
| % Ownership: | 100.0000000000% | | |
| Total Value: | $416,000 | | |
| Tax Area: | 5 - OL-140 |
| CERFD | CURRENT EXPENSE REFUND 010 | 0.0000000000 | $416,000 | $416,000 | $0.00 | | |
| CURREXP | CURRENT EXPENSE 010 | 1.0175366760 | $416,000 | $416,000 | $423.30 | | |
| HUMNSERV | HUMAN SERVICES 119 | 0.0250000000 | $416,000 | $416,000 | $10.40 | | |
| SLDREL | SOLDIERS RELIEF 121 | 0.0155990005 | $416,000 | $416,000 | $6.49 | | |
| EMERGSER | EMS 147 | 0.3792580840 | $416,000 | $416,000 | $157.77 | | |
| EMSRFD | EMS REFUND 147 | 0.0000000000 | $416,000 | $416,000 | $0.00 | | |
| PORTRFD | PORT REFUND 640 | 0.0000000000 | $416,000 | $416,000 | $0.00 | | |
| PORTWWGEN | PORT OF WW 640 | 0.2460186015 | $416,000 | $416,000 | $102.34 | | |
| SD140BOND | SD #140 BOND 764 | 0.8342371393 | $416,000 | $416,000 | $347.04 | | |
| SD140GEN | SD #140 GENERAL 760 | 2.0646500647 | $416,000 | $416,000 | $858.89 | | |
| ST2 | STATE SCHOOL PART 2 600 | 0.8131451643 | $416,000 | $416,000 | $338.27 | | |
| STATESCHL | STATE SCHOOL 600 | 1.5158548041 | $416,000 | $416,000 | $630.60 | | |
| STREFUND | STATE REFUND LEVY 603 | 0.0000000000 | $416,000 | $416,000 | $0.00 | | |
| CWWBOND | C OF WW BOND 643 | 0.2760494372 | $416,000 | $416,000 | $114.84 | | |
| CWWGEN | CITY OF WW 631 | 1.6100204973 | $416,000 | $416,000 | $669.77 | | |
| CWWRFD | CITY OF WALLA WALLA REFUND 631 | 0.0000000000 | $416,000 | $416,000 | $0.00 | | |
| | Total Tax Rate: | 8.7973694689 | | | | | |
| | | | | Taxes w/Current Exemptions: | $3,659.71 | | |
| | | | | Taxes w/o Exemptions: | $3,659.71 | | |
Improvement / Building
| Improvement #1: | RESIDENTIAL | State Code: | 11 | 1276.0 sqft | Value: | $326,000 |
| Exterior Wall: | PLYWOOD | Heating/Cooling: | WARM & COOLED AIR | | Number of Bathrooms: | 2.5 | Number of Bedrooms: | 5 | | Plumbing: | 11 | Roof Covering: | COMP SHINGLE |
|
| | Type | Description | Class CD | Sub Class CD | Year Built | Area |
| | MA | Main Area | 1 | 35 | 1966 | 1276.0 |
| | SI1 | SITE IMPROVEMENT | 1 | 35 | 1966 | 2.0 |
| | BASE | BASEMENT | 1 | 35 | 1966 | 1276.0 |
| | BPF | BASEMENT -PARTITIONED FINISH | 1 | 35 | 1966 | 1276.0 |
| | ATG | Attached Garage | 1 | 35 | 1966 | 462.0 |
| | S1F | Single One Story Fireplace | 1 | 35 | 1966 | 1.0 |
| | RPC | OPEN PORCH W/ROOF , CEILED | 1 | 35 | 1966 | 88.0 |
| | CPC | COVERED CARPORT/PATIO | 1 | 35 | 1966 | 176.0 |
Sketch
Property Image
Land
| 1 | RES 1 | Converted: Residential | 0.2376 | 10350.00 | 0.00 | 0.00 | 1.00 | $90,000 | $0 |
Roll Value History
| 2026 | N/A | N/A | N/A | N/A | N/A |
| 2025 | $326,000 | $90,000 | $0 | $416,000 | $416,000 |
| 2024 | $326,000 | $90,000 | $0 | $416,000 | $416,000 |
| 2023 | $326,000 | $90,000 | $0 | $416,000 | $416,000 |
| 2022 | $326,000 | $90,000 | $0 | $416,000 | $416,000 |
| 2021 | $246,710 | $55,000 | $0 | $301,710 | $301,710 |
| 2020 | $197,370 | $55,000 | $0 | $252,370 | $252,370 |
| 2019 | $197,370 | $55,000 | $0 | $252,370 | $252,370 |
| 2018 | $164,470 | $55,000 | $0 | $219,470 | $219,470 |
| 2017 | $156,640 | $55,000 | $0 | $211,640 | $211,640 |
| 2016 | $142,400 | $55,000 | $0 | $197,400 | $197,400 |
| 2015 | $142,400 | $55,000 | $0 | $197,400 | $197,400 |
| 2014 | $142,400 | $55,000 | $0 | $197,400 | $197,400 |
| 2013 | $142,400 | $55,000 | $0 | $197,400 | $197,400 |
| 2012 | $164,300 | $55,000 | $0 | $0 | $0 |
| 2011 | $164,300 | $55,000 | $0 | $0 | $0 |
| 2010 | $167,900 | $40,000 | $0 | $0 | $0 |
| 2009 | $191,000 | $40,000 | $0 | $0 | $0 |
| 2008 | $137,700 | $40,000 | $0 | $0 | $0 |
| 2007 | $137,700 | $40,000 | $0 | $0 | $0 |
Deed and Sales History
| 1 | 01/19/2017 | SWD | STATUTORY WARRANTY DEED | TUIA BEN & MAGALLI | HENDERSON JOSEPH DEREK & ALICE | | | $225,000.00 | 131789 | 2017-00497 |
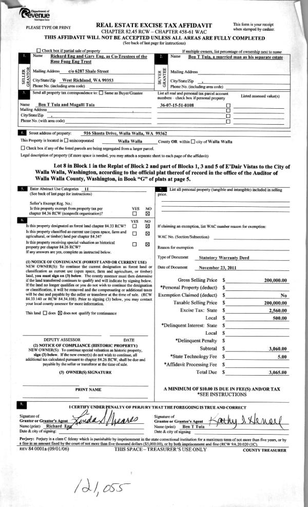
| 2 | 11/29/2011 | WARRANTY D | WARRANTY DEED | ENG, ROSE FONG TRUST | TUIA, BEN & MAGALLI | | | $200,000.00 | 121055 | 2011-09368 |
| 3 | 04/09/2009 | WARRANTY D | WARRANTY DEED | ENG, ROSE FONG (WIDOW OF BILL | ENG, ROSE FONG TRUST | | | | 116591 | 2009-03544 |
| 4 | 08/15/1966 | WARRANTY D | WARRANTY DEED | | | | | $25,362.00 | 0 | 3190-479040 |
Payout Agreement
| No payout information available.. |