Property
Account |
| Property ID: | 29214 | Abbreviated Legal Description: | 25-7-35 TAX 108; LESS TAX 108A |
| Parcel Number: | 350725240019 | Agent Code: | |
| Type: | Real | | |
| Tax Area: | 313 - 250-F-4 | Land Use Code | 11 |
| Open Space: | N | DFL | N |
| Historic Property: | N | Remodel Property: | N |
| Multi-Family Redevelopment: | N | | |
| Township: | 7 | Section: | 25 |
| Range: | 35 |
Location |
| Address: | 816 NE DAMSON AVE WA 99324 | Mapsco: | |
| Neighborhood: | MH A Rural/City Infl | Map ID: | |
| Neighborhood CD: | 313062 |
Owner |
| Name: | MERRITT GEOFF & TALITHA | Owner ID: | 66052 |
| Mailing Address: | PO BOX 122 COLLEGE PLACE, WA 99324 | % Ownership: | 100.0000000000% |
| | | Exemptions: | |
Taxes and Assessment Details
Property Tax Information as of
02/21/2026
Click on "Statement Details" to expand or collapse a tax statement.
* Please enter a valid date ** Please enter a valid date *
Statement Details |
| | TOTAL: | $0.00 | $0.00 | $0.00 | $0.00 | $0.00 | $0.00 |
|
| | $0.00 | $0.00 | $0.00 | $0.00 | $0.00 | $0.00 |
Values
| (+) Improvement Homesite Value: | + | $0 | |
| (+) Improvement Non-Homesite Value: | + | $417,270 | |
| (+) Land Homesite Value: | + | $0 | |
| (+) Land Non-Homesite Value: | + | $144,020 | |
| (+) Curr Use (HS): | + | $0 | $0 |
| (+) Curr Use (NHS): | + | $0 | $0 |
| | | -------------------------- | |
| (=) Market Value: | = | $561,290 | |
| (–) Productivity Loss: | – | $0 | |
| | | -------------------------- | |
| (=) Subtotal: | = | $561,290 | |
| (+) Senior Appraised Value: | + | $0 | |
| (+) Non-Senior Appraised Value: | + | $561,290 | |
| | | -------------------------- | |
| (=) Total Appraised Value: | = | $561,290 | |
| (–) Senior Exemption Loss: | – | $0 | |
| (–) Exemption Loss: | – | $0 | |
| | | -------------------------- | |
| (=) Taxable Value: | = | $561,290 | |
Taxing Jurisdiction
| Owner: | MERRITT GEOFF & TALITHA | | |
| % Ownership: | 100.0000000000% | | |
| Total Value: | $561,290 | | |
| Tax Area: | 313 - 250-F-4 |
| CERFD | CURRENT EXPENSE REFUND 010 | 0.0000000000 | $561,290 | $561,290 | $0.00 | | |
| CURREXP | CURRENT EXPENSE 010 | 1.0175366760 | $561,290 | $561,290 | $571.13 | | |
| HUMNSERV | HUMAN SERVICES 119 | 0.0250000000 | $561,290 | $561,290 | $14.03 | | |
| SLDREL | SOLDIERS RELIEF 121 | 0.0155990005 | $561,290 | $561,290 | $8.76 | | |
| EMERGSER | EMS 147 | 0.3792580840 | $561,290 | $561,290 | $212.87 | | |
| EMSRFD | EMS REFUND 147 | 0.0000000000 | $561,290 | $561,290 | $0.00 | | |
| FD4EXP | FD #4 EXPENSE 686 | 0.8836993059 | $561,290 | $561,290 | $496.01 | | |
| RLBRFD | RURAL LIBRARY REFUND 623 | 0.0000000000 | $561,290 | $561,290 | $0.00 | | |
| RURALLIB | RURAL LIBRARY 623 | 0.3710609029 | $561,290 | $561,290 | $208.27 | | |
| PORTRFD | PORT REFUND 640 | 0.0000000000 | $561,290 | $561,290 | $0.00 | | |
| PORTWWGEN | PORT OF WW 640 | 0.2460186015 | $561,290 | $561,290 | $138.09 | | |
| SD250BOND | SD #250 BOND 773 | 1.4560608159 | $561,290 | $561,290 | $817.27 | | |
| SD250GEN | SD #250 GENERAL 770 | 2.3880724087 | $561,290 | $561,290 | $1,340.40 | | |
| ST2 | STATE SCHOOL PART 2 600 | 0.8131451643 | $561,290 | $561,290 | $456.41 | | |
| STATESCHL | STATE SCHOOL 600 | 1.5158548041 | $561,290 | $561,290 | $850.83 | | |
| STREFUND | STATE REFUND LEVY 603 | 0.0000000000 | $561,290 | $561,290 | $0.00 | | |
| COROAD | COUNTY ROAD 115 | 1.6549953990 | $561,290 | $561,290 | $928.93 | | |
| CRPRD | COUNTY ROAD REFUND 115 | 0.0000000000 | $561,290 | $561,290 | $0.00 | | |
| | Total Tax Rate: | 10.7663011628 | | | | | |
| | | | | Taxes w/Current Exemptions: | $6,043.00 | | |
| | | | | Taxes w/o Exemptions: | $6,043.00 | | |
Improvement / Building
| Improvement #1: | MANUFACTURED HOME | State Code: | 11 | 1512.0 sqft | Value: | $134,950 |
| Exterior Wall: | HARDBOARD | Heating/Cooling: | WARM & COOLED AIR | | Number of Bathrooms: | 2 | Number of Bedrooms: | 3 | | Plumbing: | 8 | Roof Covering: | COMP SHINGLE |
|
| | Type | Description | Class CD | Sub Class CD | Year Built | Area |
| | MOBHOME | MANUFACTURD HOMES | 1 | 40 | 1993 | 1512.0 |
| | MI1 | MH SET-UP COSTS | 1 | 40 | 0 | 1.0 |
| | OPS | OPEN PORCH W/STEPS | 1 | 40 | 1993 | 15.0 |
| | CPC | COVERED CARPORT/PATIO | 1 | 40 | 1993 | 240.0 |
| | ATG | Attached Garage | 1 | 40 | 1993 | 672.0 |
| Improvement #2: | RESIDENTIAL | State Code: | 11 | 2800.0 sqft | Value: | $282,320 |
| Exterior Wall: | CEMENT FIBER | Heating/Cooling: | MINI-SPLIT HP SYSTEM | | Number of Bathrooms: | 2 | Number of Bedrooms: | 1 | | Plumbing: | 7 | Roof Covering: | COMP SHINGLE |
|
| | Type | Description | Class CD | Sub Class CD | Year Built | Area |
| | MA | Main Area | 4 | 30 | 2020 | 2800.0 |
| | ATG | Attached Garage | 4 | 30 | 2020 | 3904.0 |
| | SI1 | SITE IMPROVEMENT | 4 | 30 | 2020 | 3.0 |
| | UPFL | Upper Floor (included in main area) | 4 | 30 | 2020 | 795.0 |
| | BIG | Built In Garage | 4 | 30 | 2020 | 672.0 |
| | RPC | OPEN PORCH W/ROOF , CEILED | 4 | 30 | 2020 | 1200.0 |
Sketch
Property Image
Land
| 1 | RES 1 | Converted: Residential | 3.7900 | 165092.40 | 0.00 | 0.00 | 1.00 | $144,020 | $0 |
Roll Value History
| 2026 | N/A | N/A | N/A | N/A | N/A |
| 2025 | $500,720 | $144,020 | $0 | $644,740 | $644,740 |
| 2024 | $417,270 | $144,020 | $0 | $561,290 | $561,290 |
| 2023 | $417,270 | $144,020 | $0 | $561,290 | $561,290 |
| 2022 | $417,270 | $144,020 | $0 | $561,290 | $561,290 |
| 2021 | $441,960 | $97,300 | $0 | $539,260 | $539,260 |
| 2020 | $138,240 | $97,300 | $0 | $235,540 | $235,540 |
| 2019 | $138,240 | $97,000 | $0 | $235,240 | $235,240 |
| 2018 | $125,680 | $97,000 | $0 | $222,680 | $80,692 |
| 2017 | $104,730 | $97,000 | $0 | $201,730 | $80,692 |
| 2016 | $104,730 | $97,000 | $0 | $201,730 | $80,692 |
| 2015 | $106,800 | $97,000 | $0 | $203,800 | $203,800 |
| 2014 | $106,800 | $97,000 | $0 | $203,800 | $203,800 |
| 2013 | $106,800 | $97,000 | $0 | $203,800 | $203,800 |
| 2012 | $93,500 | $97,000 | $0 | $0 | $0 |
| 2011 | $93,500 | $97,000 | $0 | $0 | $0 |
| 2010 | $70,700 | $97,000 | $0 | $0 | $0 |
| 2009 | $130,300 | $56,000 | $0 | $0 | $0 |
| 2008 | $82,000 | $56,000 | $0 | $0 | $0 |
| 2007 | $82,000 | $56,000 | $0 | $0 | $0 |
Deed and Sales History
| 1 | 04/09/2020 | SURVEY | SURVEY | | | 13 | 191 | | 0 | 2020-03067 |
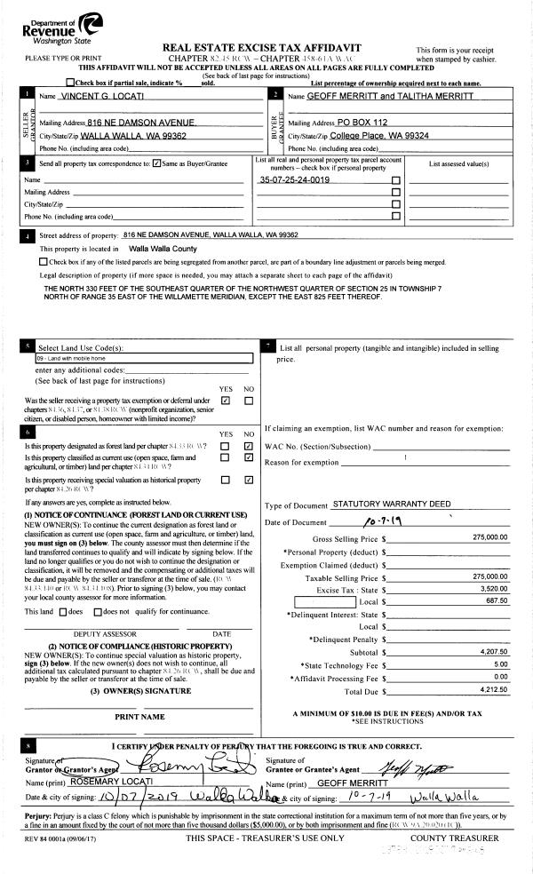
| 2 | 10/07/2019 | SWD | STATUTORY WARRANTY DEED | LOCATI VINCENT G | MERRITT GEOFF & TALITHA | | | $275,000.00 | 137831 | 2019-07994 |
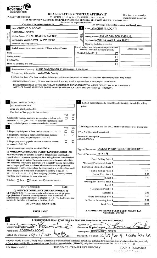
| 3 | 10/07/2019 | LOPA | LACK OF PROBATE AFFIDAVIT | LOCATI VINCENT G | LOCATI VINCENT G | | | | 0 | 2019-07993 |
Payout Agreement
| No payout information available.. |