Property
Account |
| Property ID: | 29171 | Abbreviated Legal Description: | RITZ LOTS 9 & 10 BLK 11 AND TRACT |
| Parcel Number: | 360730541116 | Agent Code: | |
| Type: | Real | | |
| Tax Area: | 1 - OL-140-F | Land Use Code | 11 |
| Open Space: | N | DFL | N |
| Historic Property: | N | Remodel Property: | N |
| Multi-Family Redevelopment: | N | | |
| Township: | 7 | Section: | 30 |
| Range: | 36 |
Location |
| Address: | 1012 WILLOW ST WA 99362 | Mapsco: | |
| Neighborhood: | A-SFR | Map ID: | |
| Neighborhood CD: | 313011 |
Owner |
| Name: | WILLIAMS ANITA JOLENE | Owner ID: | 64143 |
| Mailing Address: | IRVIN LEE & CLAUDIA K POWELL 1012 WILLOW ST WALLA WALLA, WA 99362 | % Ownership: | 100.0000000000% |
| | | Exemptions: | SNR/DSBL |
Taxes and Assessment Details
Values
| (+) Improvement Homesite Value: | + | $68,190 | |
| (+) Improvement Non-Homesite Value: | + | $68,190 | |
| (+) Land Homesite Value: | + | $36,560 | |
| (+) Land Non-Homesite Value: | + | $36,560 | |
| (+) Curr Use (HS): | + | $0 | $0 |
| (+) Curr Use (NHS): | + | $0 | $0 |
| | | -------------------------- | |
| (=) Market Value: | = | $209,500 | |
| (–) Productivity Loss: | – | $0 | |
| | | -------------------------- | |
| (=) Subtotal: | = | $209,500 | |
| (+) Senior Appraised Value: | + | $28,350 | |
| (+) Non-Senior Appraised Value: | + | $104,750 | |
| | | -------------------------- | |
| (=) Total Appraised Value: | = | $133,100 | |
| (–) Senior Exemption Loss: | – | $28,350 | |
| (–) Exemption Loss: | – | $0 | |
| | | -------------------------- | |
| (=) Taxable Value: | = | $104,750 | |
Taxing Jurisdiction
| Owner: | WILLIAMS ANITA JOLENE | | |
| % Ownership: | 100.0000000000% | | |
| Total Value: | $209,500 | | |
| Tax Area: | 1 - OL-140-F |
| CERFD | CURRENT EXPENSE REFUND 010 | 0.0000000000 | $209,500 | $104,750 | $0.00 | | |
| CURREXP | CURRENT EXPENSE 010 | 1.0175366760 | $209,500 | $104,750 | $202.40 | | |
| HUMNSERV | HUMAN SERVICES 119 | 0.0250000000 | $209,500 | $104,750 | $4.97 | | |
| SLDREL | SOLDIERS RELIEF 121 | 0.0155990005 | $209,500 | $104,750 | $3.10 | | |
| EMERGSER | EMS 147 | 0.3792580840 | $209,500 | $104,750 | $75.44 | | |
| EMSRFD | EMS REFUND 147 | 0.0000000000 | $209,500 | $104,750 | $0.00 | | |
| PORTRFD | PORT REFUND 640 | 0.0000000000 | $209,500 | $104,750 | $0.00 | | |
| PORTWWGEN | PORT OF WW 640 | 0.2460186015 | $209,500 | $104,750 | $48.94 | | |
| SD140BOND | SD #140 BOND 764 | 0.0000000000 | $209,500 | $104,750 | $165.94 | | |
| SD140GEN | SD #140 GENERAL 760 | 0.0000000000 | $209,500 | $104,750 | $410.68 | | |
| ST2 | STATE SCHOOL PART 2 600 | 0.0000000000 | $209,500 | $104,750 | $161.74 | | |
| STATESCHL | STATE SCHOOL 600 | 1.5158548041 | $209,500 | $104,750 | $301.52 | | |
| STREFUND | STATE REFUND LEVY 603 | 0.0000000000 | $209,500 | $104,750 | $0.00 | | |
| CWWBOND | C OF WW BOND 643 | 0.0000000000 | $209,500 | $104,750 | $54.91 | | |
| CWWGEN | CITY OF WW 631 | 1.6100204973 | $209,500 | $104,750 | $320.25 | | |
| CWWRFD | CITY OF WALLA WALLA REFUND 631 | 0.0000000000 | $209,500 | $104,750 | $0.00 | | |
| | Total Tax Rate: | 4.8092876634 | | | | | |
| | | | | Taxes w/Current Exemptions: | $1,749.89 | | |
| | | | | Taxes w/o Exemptions: | $1,843.03 | | |
Improvement / Building
| Improvement #1: | RESIDENTIAL | State Code: | 11 | 1544.0 sqft | Value: | $136,370 |
| Exterior Wall: | SIDING | Heating/Cooling: | FORCED AIR | | Number of Bathrooms: | 1 | Number of Bedrooms: | 3 | | Plumbing: | 7 | Roof Covering: | COMP SHINGLE |
|
| | Type | Description | Class CD | Sub Class CD | Year Built | Area |
| | MA | Main Area | 4 | 25 | 1910 | 1544.0 |
| | CPC | COVERED CARPORT/PATIO | 4 | 25 | 0 | 220.0 |
| | POL3 | POLE BUILDING-CON,ELEC,INSU | 4 | 25 | 0 | 425.0 |
| | SI1 | SITE IMPROVEMENT | 4 | 25 | 0 | 1.0 |
| | BASE | BASEMENT | 4 | 25 | 1910 | 152.0 |
| | RPS | PORCH W/STEPS,ROOF | 4 | 25 | 1910 | 28.0 |
| | OUT | OUTSIDE BASEMENT ENTRY | 4 | 25 | 1910 | 1.0 |
| | UPFL | Upper Floor (included in main area) | 4 | 25 | 1910 | 476.0 |
| | SMP | SWIMMING POOL | 4 | 25 | 1910 | 1.0 |
| | LEAN TO | LEAN TO | 4 | 25 | 1910 | 240.0 |
Sketch
Property Image
Land
| 1 | RES 1 | Converted: Residential | 0.3091 | 13464.00 | 0.00 | 0.00 | 1.00 | $73,110 | $0 |
Roll Value History
| 2026 | N/A | N/A | N/A | N/A | N/A |
| 2025 | $136,380 | $73,120 | $0 | $209,500 | $209,500 |
| 2024 | $136,380 | $73,120 | $0 | $209,500 | $209,500 |
| 2023 | $136,380 | $73,120 | $0 | $209,500 | $104,750 |
| 2022 | $113,640 | $73,120 | $0 | $186,760 | $93,380 |
| 2021 | $128,240 | $29,500 | $0 | $157,740 | $78,870 |
| 2020 | $98,640 | $29,500 | $0 | $128,140 | $64,070 |
| 2019 | $98,640 | $29,500 | $0 | $128,140 | $64,070 |
| 2018 | $82,200 | $29,500 | $0 | $111,700 | $55,850 |
| 2017 | $82,200 | $29,500 | $0 | $111,700 | $55,850 |
| 2016 | $82,200 | $29,500 | $0 | $111,700 | $0 |
| 2015 | $82,200 | $29,500 | $0 | $111,700 | $0 |
| 2014 | $82,200 | $29,500 | $0 | $111,700 | $0 |
| 2013 | $82,200 | $29,500 | $0 | $111,700 | $0 |
| 2012 | $82,200 | $29,500 | $0 | $0 | $0 |
| 2011 | $82,200 | $29,500 | $0 | $0 | $0 |
| 2010 | $82,200 | $29,500 | $0 | $0 | $0 |
| 2009 | $101,900 | $15,700 | $0 | $0 | $0 |
| 2008 | $53,500 | $15,700 | $0 | $0 | $0 |
| 2007 | $53,500 | $15,700 | $0 | $0 | $0 |
Deed and Sales History
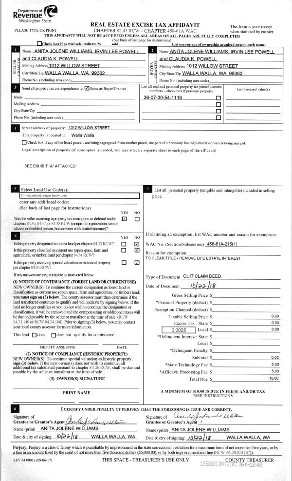
| 1 | 10/22/2018 | QCD | QUIT CLAIM DEED | WILLIAMS ANITA LIFE ESTATE | WILLIAMS ANITA JOLENE | | | $0.00 | 135803 | 2018-08860 |
Payout Agreement
| No payout information available.. |