Property
Account |
| Property ID: | 29165 | Abbreviated Legal Description: | WILLOW GLEN LOT 10 |
| Parcel Number: | 350726710010 | Agent Code: | |
| Type: | Real | | |
| Tax Area: | 311 - 250-4 | Land Use Code | 11 |
| Open Space: | N | DFL | N |
| Historic Property: | N | Remodel Property: | N |
| Multi-Family Redevelopment: | N | | |
| Township: | 7 | Section: | 26 |
| Range: | 35 |
Location |
| Address: | 18 STERLING LN WA 99324 | Mapsco: | |
| Neighborhood: | A SFR Rural/City Infl | Map ID: | |
| Neighborhood CD: | 313012 |
Owner |
| Name: | WOOD CHRISTOPHER | Owner ID: | 70483 |
| Mailing Address: | VERONICA R VOELKER 18 STERLING LN WALLA WALLA, WA 99362 | % Ownership: | 100.0000000000% |
| | | Exemptions: | |
Taxes and Assessment Details
Values
| (+) Improvement Homesite Value: | + | $424,190 | |
| (+) Improvement Non-Homesite Value: | + | $0 | |
| (+) Land Homesite Value: | + | $90,000 | |
| (+) Land Non-Homesite Value: | + | $0 | |
| (+) Curr Use (HS): | + | $0 | $0 |
| (+) Curr Use (NHS): | + | $0 | $0 |
| | | -------------------------- | |
| (=) Market Value: | = | $514,190 | |
| (–) Productivity Loss: | – | $0 | |
| | | -------------------------- | |
| (=) Subtotal: | = | $514,190 | |
| (+) Senior Appraised Value: | + | $0 | |
| (+) Non-Senior Appraised Value: | + | $514,190 | |
| | | -------------------------- | |
| (=) Total Appraised Value: | = | $514,190 | |
| (–) Senior Exemption Loss: | – | $0 | |
| (–) Exemption Loss: | – | $0 | |
| | | -------------------------- | |
| (=) Taxable Value: | = | $514,190 | |
Taxing Jurisdiction
| Owner: | WOOD CHRISTOPHER | | |
| % Ownership: | 100.0000000000% | | |
| Total Value: | $514,190 | | |
| Tax Area: | 311 - 250-4 |
| CERFD | CURRENT EXPENSE REFUND 010 | 0.0000000000 | $514,190 | $514,190 | $0.00 | | |
| CURREXP | CURRENT EXPENSE 010 | 1.0175366760 | $514,190 | $514,190 | $523.21 | | |
| HUMNSERV | HUMAN SERVICES 119 | 0.0250000000 | $514,190 | $514,190 | $12.85 | | |
| SLDREL | SOLDIERS RELIEF 121 | 0.0155990005 | $514,190 | $514,190 | $8.02 | | |
| EMERGSER | EMS 147 | 0.3792580840 | $514,190 | $514,190 | $195.01 | | |
| EMSRFD | EMS REFUND 147 | 0.0000000000 | $514,190 | $514,190 | $0.00 | | |
| FD4EXP | FD #4 EXPENSE 686 | 0.8836993059 | $514,190 | $514,190 | $454.39 | | |
| RLBRFD | RURAL LIBRARY REFUND 623 | 0.0000000000 | $514,190 | $514,190 | $0.00 | | |
| RURALLIB | RURAL LIBRARY 623 | 0.3710609029 | $514,190 | $514,190 | $190.80 | | |
| PORTRFD | PORT REFUND 640 | 0.0000000000 | $514,190 | $514,190 | $0.00 | | |
| PORTWWGEN | PORT OF WW 640 | 0.2460186015 | $514,190 | $514,190 | $126.50 | | |
| SD250BOND | SD #250 BOND 773 | 1.4560608159 | $514,190 | $514,190 | $748.69 | | |
| SD250GEN | SD #250 GENERAL 770 | 2.3880724087 | $514,190 | $514,190 | $1,227.92 | | |
| ST2 | STATE SCHOOL PART 2 600 | 0.8131451643 | $514,190 | $514,190 | $418.11 | | |
| STATESCHL | STATE SCHOOL 600 | 1.5158548041 | $514,190 | $514,190 | $779.44 | | |
| STREFUND | STATE REFUND LEVY 603 | 0.0000000000 | $514,190 | $514,190 | $0.00 | | |
| COROAD | COUNTY ROAD 115 | 1.6549953990 | $514,190 | $514,190 | $850.98 | | |
| CRPRD | COUNTY ROAD REFUND 115 | 0.0000000000 | $514,190 | $514,190 | $0.00 | | |
| | Total Tax Rate: | 10.7663011628 | | | | | |
| | | | | Taxes w/Current Exemptions: | $5,535.92 | | |
| | | | | Taxes w/o Exemptions: | $5,535.92 | | |
Improvement / Building
| Improvement #1: | RESIDENTIAL | State Code: | 11 | 2082.0 sqft | Value: | $424,190 |
| Exterior Wall: | SIDING | Heating/Cooling: | WARM & COOLED AIR | | Number of Bathrooms: | 2 | Number of Bedrooms: | 3 | | Plumbing: | 10 | Roof Covering: | COMP SHINGLE |
|
| | Type | Description | Class CD | Sub Class CD | Year Built | Area |
| | MA | Main Area | 1 | 40 | 2005 | 2082.0 |
| | CPC | COVERED CARPORT/PATIO | 1 | 40 | 0 | 200.0 |
| | SI1 | SITE IMPROVEMENT | 1 | 40 | 0 | 5.0 |
| | ATG | Attached Garage | 1 | 40 | 2005 | 788.0 |
| | RPO | OPEN PORCH W/ROOF | 1 | 40 | 2005 | 45.0 |
Sketch
Property Image
Land
| 1 | RES 1 | Converted: Residential | 0.6796 | 29605.00 | 0.00 | 0.00 | 1.00 | $90,000 | $0 |
Roll Value History
| 2026 | N/A | N/A | N/A | N/A | N/A |
| 2025 | $445,400 | $90,000 | $0 | $535,400 | $535,400 |
| 2024 | $424,190 | $90,000 | $0 | $514,190 | $514,190 |
| 2023 | $424,190 | $90,000 | $0 | $514,190 | $514,190 |
| 2022 | $403,990 | $90,000 | $0 | $493,990 | $493,990 |
| 2021 | $353,380 | $55,000 | $0 | $408,380 | $408,380 |
| 2020 | $321,250 | $55,000 | $0 | $376,250 | $376,250 |
| 2019 | $321,250 | $55,000 | $0 | $376,250 | $376,250 |
| 2018 | $292,050 | $55,000 | $0 | $347,050 | $347,050 |
| 2017 | $224,650 | $55,000 | $0 | $279,650 | $279,650 |
| 2016 | $224,650 | $55,000 | $0 | $279,650 | $91,600 |
| 2015 | $217,600 | $55,000 | $0 | $272,600 | $91,600 |
| 2014 | $217,600 | $55,000 | $0 | $272,600 | $91,600 |
| 2013 | $217,600 | $55,000 | $0 | $272,600 | $91,600 |
| 2012 | $217,600 | $55,000 | $0 | $0 | $0 |
| 2011 | $217,600 | $55,000 | $0 | $0 | $0 |
| 2010 | $212,900 | $55,000 | $0 | $0 | $0 |
| 2009 | $252,700 | $45,000 | $0 | $0 | $0 |
| 2008 | $184,000 | $45,000 | $0 | $0 | $0 |
| 2007 | $184,000 | $45,000 | $0 | $0 | $0 |
Deed and Sales History
| 1 | 10/22/2021 | SWD | STATUTORY WARRANTY DEED | FORSTER MARK W & KIMBERLY ANN | WOOD CHRISTOPHER | | | $525,000.00 | 142729 | 2021-12798 |
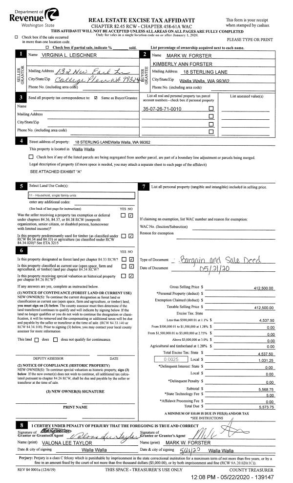
| 2 | 05/22/2020 | BARGAIN & | BARGAIN & SALE DEED | LEISCHNER VIRGINIA L | FORSTER MARK W & KIMBERLY ANN | | | $412,500.00 | 139147 | 2020-04522 |
| 3 | 08/02/2005 | WARRANTY D | WARRANTY DEED | ROFF HOMES INC | LEISCHNER, VIRGINIA L | | | $229,356.00 | 108128 | 2005-09509 |
| 4 | 09/30/2004 | WARRANTY D | WARRANTY DEED | HAYS, KAREN M | ROFF HOMES INC | | | $40,000.00 | 105855 | 2004-11338 |
| 5 | 10/10/2003 | WARRANTY D | WARRANTY DEED | "LOCATI, ETHEL LIFE ESTATE" | HAYS KAREN M | | | | 103236 | 2003-15683 |
Payout Agreement
| No payout information available.. |