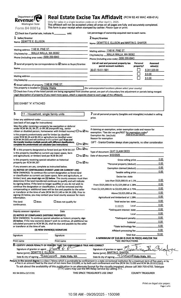
Property
Account |
| Property ID: | 29148 | Abbreviated Legal Description: | BOWMANS E1/2 OF E1/2 OF BLK 19 |
| Parcel Number: | 360719511901 | Agent Code: | |
| Type: | Real | | |
| Tax Area: | 1 - OL-140-F | Land Use Code | 11 |
| Open Space: | N | DFL | N |
| Historic Property: | N | Remodel Property: | N |
| Multi-Family Redevelopment: | N | | |
| Township: | 7 | Section: | 19 |
| Range: | 36 |
Location |
| Address: | 1148 W PINE ST WA 99362 | Mapsco: | |
| Neighborhood: | A-SFR | Map ID: | |
| Neighborhood CD: | 313011 |
Owner |
| Name: | ELLISON DEWITTE E | Owner ID: | 35763 |
| Mailing Address: | 1148 W PINE ST WALLA WALLA, WA 99362 | % Ownership: | 100.0000000000% |
| | | Exemptions: | |
Taxes and Assessment Details
Values
| (+) Improvement Homesite Value: | + | $0 | |
| (+) Improvement Non-Homesite Value: | + | $173,780 | |
| (+) Land Homesite Value: | + | $0 | |
| (+) Land Non-Homesite Value: | + | $67,740 | |
| (+) Curr Use (HS): | + | $0 | $0 |
| (+) Curr Use (NHS): | + | $0 | $0 |
| | | -------------------------- | |
| (=) Market Value: | = | $241,520 | |
| (–) Productivity Loss: | – | $0 | |
| | | -------------------------- | |
| (=) Subtotal: | = | $241,520 | |
| (+) Senior Appraised Value: | + | $0 | |
| (+) Non-Senior Appraised Value: | + | $241,520 | |
| | | -------------------------- | |
| (=) Total Appraised Value: | = | $241,520 | |
| (–) Senior Exemption Loss: | – | $0 | |
| (–) Exemption Loss: | – | $0 | |
| | | -------------------------- | |
| (=) Taxable Value: | = | $241,520 | |
Taxing Jurisdiction
| Owner: | ELLISON DEWITTE E | | |
| % Ownership: | 100.0000000000% | | |
| Total Value: | $241,520 | | |
| Tax Area: | 1 - OL-140-F |
| CERFD | CURRENT EXPENSE REFUND 010 | 0.0000000000 | $241,520 | $241,520 | $0.00 | | |
| CURREXP | CURRENT EXPENSE 010 | 1.0175366760 | $241,520 | $241,520 | $245.76 | | |
| HUMNSERV | HUMAN SERVICES 119 | 0.0250000000 | $241,520 | $241,520 | $6.04 | | |
| SLDREL | SOLDIERS RELIEF 121 | 0.0155990005 | $241,520 | $241,520 | $3.77 | | |
| EMERGSER | EMS 147 | 0.3792580840 | $241,520 | $241,520 | $91.60 | | |
| EMSRFD | EMS REFUND 147 | 0.0000000000 | $241,520 | $241,520 | $0.00 | | |
| PORTRFD | PORT REFUND 640 | 0.0000000000 | $241,520 | $241,520 | $0.00 | | |
| PORTWWGEN | PORT OF WW 640 | 0.2460186015 | $241,520 | $241,520 | $59.42 | | |
| SD140BOND | SD #140 BOND 764 | 0.8342371393 | $241,520 | $241,520 | $201.48 | | |
| SD140GEN | SD #140 GENERAL 760 | 2.0646500647 | $241,520 | $241,520 | $498.65 | | |
| ST2 | STATE SCHOOL PART 2 600 | 0.8131451643 | $241,520 | $241,520 | $196.39 | | |
| STATESCHL | STATE SCHOOL 600 | 1.5158548041 | $241,520 | $241,520 | $366.11 | | |
| STREFUND | STATE REFUND LEVY 603 | 0.0000000000 | $241,520 | $241,520 | $0.00 | | |
| CWWBOND | C OF WW BOND 643 | 0.2760494372 | $241,520 | $241,520 | $66.67 | | |
| CWWGEN | CITY OF WW 631 | 1.6100204973 | $241,520 | $241,520 | $388.85 | | |
| CWWRFD | CITY OF WALLA WALLA REFUND 631 | 0.0000000000 | $241,520 | $241,520 | $0.00 | | |
| | Total Tax Rate: | 8.7973694689 | | | | | |
| | | | | Taxes w/Current Exemptions: | $2,124.74 | | |
| | | | | Taxes w/o Exemptions: | $2,124.74 | | |
Improvement / Building
| Improvement #1: | RESIDENTIAL | State Code: | 11 | 1108.0 sqft | Value: | $173,780 |
| Exterior Wall: | SIDING | Heating/Cooling: | MINI-SPLIT HP SYSTEM | | Number of Bathrooms: | 1 | Number of Bedrooms: | 3 | | Plumbing: | 6 | Roof Covering: | COMP SHINGLE |
|
| | Type | Description | Class CD | Sub Class CD | Year Built | Area |
| | MA | Main Area | 1 | 30 | 1920 | 1108.0 |
| | CPCD | CARPORT/DIRT FLOOR | 1 | 30 | 0 | 440.0 |
| | SI1 | SITE IMPROVEMENT | 1 | 30 | 0 | 1.0 |
| | RCD | WOOD DECK W/ROOF, CEILED | 1 | 30 | 0 | 349.0 |
| | BASE | BASEMENT | 1 | 30 | 1920 | 499.0 |
| | BPF | BASEMENT -PARTITIONED FINISH | 1 | 30 | 1920 | 499.0 |
| | DTG | Detached Garage | 1 | 30 | 1920 | 528.0 |
Sketch
Property Image
Land
| 1 | RES 1 | Converted: Residential | 0.2430 | 10584.00 | 0.00 | 0.00 | 1.00 | $67,740 | $0 |
Roll Value History
| 2026 | N/A | N/A | N/A | N/A | N/A |
| 2025 | $208,540 | $67,740 | $0 | $276,280 | $276,280 |
| 2024 | $173,780 | $67,740 | $0 | $241,520 | $241,520 |
| 2023 | $173,780 | $67,740 | $0 | $241,520 | $241,520 |
| 2022 | $144,820 | $67,740 | $0 | $212,560 | $212,560 |
| 2021 | $172,170 | $27,500 | $0 | $199,670 | $199,670 |
| 2020 | $122,980 | $27,500 | $0 | $150,480 | $150,480 |
| 2019 | $122,980 | $27,500 | $0 | $150,480 | $150,480 |
| 2018 | $111,800 | $27,500 | $0 | $139,300 | $139,300 |
| 2017 | $93,170 | $27,500 | $0 | $120,670 | $120,670 |
| 2016 | $88,730 | $27,500 | $0 | $116,230 | $116,230 |
| 2015 | $86,140 | $27,500 | $0 | $113,640 | $113,640 |
| 2014 | $74,900 | $27,500 | $0 | $102,400 | $102,400 |
| 2013 | $74,900 | $27,500 | $0 | $102,400 | $102,400 |
| 2012 | $74,900 | $27,500 | $0 | $0 | $0 |
| 2011 | $74,900 | $27,500 | $0 | $0 | $0 |
| 2010 | $76,100 | $27,500 | $0 | $0 | $0 |
| 2009 | $100,500 | $14,300 | $0 | $0 | $0 |
| 2008 | $64,900 | $14,300 | $0 | $0 | $0 |
| 2007 | $64,900 | $14,300 | $0 | $0 | $0 |
Deed and Sales History
| 1 | 09/26/2025 | QCD | QUIT CLAIM DEED | ELLISON DEWITTE E | ELLISON DEWITTE E MARTIN D SHAFER | | | | 150098 | 2025-05863 |
| 2 | 12/16/2013 | WARRANTY D | WARRANTY DEED | SMITH DEBRA L | ELLISON DEWITTE E | | | $115,000.00 | 125117 | 2013-11999 |
| 3 | 05/29/1997 | WARRANTY D | WARRANTY DEED | | | | | $65,000.00 | 88233 | 2529-704788 |
Payout Agreement
| No payout information available.. |