Property
Account |
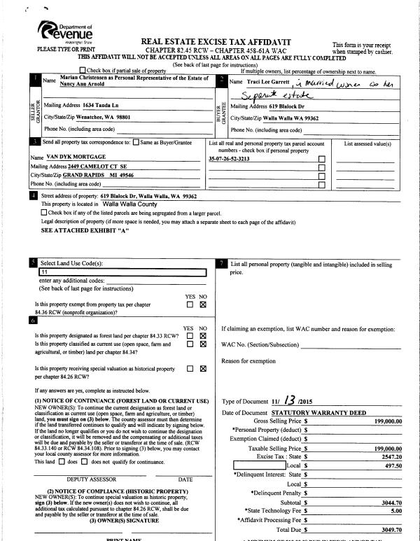
| Property ID: | 29144 | Abbreviated Legal Description: | BLALOCK ORCHARDS TAX 6 BLK 32 |
| Parcel Number: | 350726523213 | Agent Code: | |
| Type: | Real | | |
| Tax Area: | 311 - 250-4 | Land Use Code | 11 |
| Open Space: | N | DFL | N |
| Historic Property: | N | Remodel Property: | N |
| Multi-Family Redevelopment: | N | | |
| Township: | 7 | Section: | 26 |
| Range: | 35 |
Location |
| Address: | 619 BLALOCK DR WA 99324 | Mapsco: | |
| Neighborhood: | A SFR Rural/City Infl | Map ID: | |
| Neighborhood CD: | 313012 |
Owner |
| Name: | GARRETT TRACI LEE | Owner ID: | 57859 |
| Mailing Address: | 619 BLALOCK DR WALLA WALLA, WA 99362 | % Ownership: | 100.0000000000% |
| | | Exemptions: | |
Taxes and Assessment Details
Property Tax Information as of
02/21/2026
Click on "Statement Details" to expand or collapse a tax statement.
* Please enter a valid date ** Please enter a valid date *
Statement Details |
| | TOTAL: | $0.00 | $0.00 | $0.00 | $0.00 | $0.00 | $0.00 |
|
| | $0.00 | $0.00 | $0.00 | $0.00 | $0.00 | $0.00 |
Values
| (+) Improvement Homesite Value: | + | $256,040 | |
| (+) Improvement Non-Homesite Value: | + | $0 | |
| (+) Land Homesite Value: | + | $104,600 | |
| (+) Land Non-Homesite Value: | + | $0 | |
| (+) Curr Use (HS): | + | $0 | $0 |
| (+) Curr Use (NHS): | + | $0 | $0 |
| | | -------------------------- | |
| (=) Market Value: | = | $360,640 | |
| (–) Productivity Loss: | – | $0 | |
| | | -------------------------- | |
| (=) Subtotal: | = | $360,640 | |
| (+) Senior Appraised Value: | + | $0 | |
| (+) Non-Senior Appraised Value: | + | $360,640 | |
| | | -------------------------- | |
| (=) Total Appraised Value: | = | $360,640 | |
| (–) Senior Exemption Loss: | – | $0 | |
| (–) Exemption Loss: | – | $0 | |
| | | -------------------------- | |
| (=) Taxable Value: | = | $360,640 | |
Taxing Jurisdiction
| Owner: | GARRETT TRACI LEE | | |
| % Ownership: | 100.0000000000% | | |
| Total Value: | $360,640 | | |
| Tax Area: | 311 - 250-4 |
| CERFD | CURRENT EXPENSE REFUND 010 | 0.0000000000 | $360,640 | $360,640 | $0.00 | | |
| CURREXP | CURRENT EXPENSE 010 | 1.0175366760 | $360,640 | $360,640 | $366.96 | | |
| HUMNSERV | HUMAN SERVICES 119 | 0.0250000000 | $360,640 | $360,640 | $9.02 | | |
| SLDREL | SOLDIERS RELIEF 121 | 0.0155990005 | $360,640 | $360,640 | $5.63 | | |
| EMERGSER | EMS 147 | 0.3792580840 | $360,640 | $360,640 | $136.78 | | |
| EMSRFD | EMS REFUND 147 | 0.0000000000 | $360,640 | $360,640 | $0.00 | | |
| FD4EXP | FD #4 EXPENSE 686 | 0.8836993059 | $360,640 | $360,640 | $318.70 | | |
| RLBRFD | RURAL LIBRARY REFUND 623 | 0.0000000000 | $360,640 | $360,640 | $0.00 | | |
| RURALLIB | RURAL LIBRARY 623 | 0.3710609029 | $360,640 | $360,640 | $133.82 | | |
| PORTRFD | PORT REFUND 640 | 0.0000000000 | $360,640 | $360,640 | $0.00 | | |
| PORTWWGEN | PORT OF WW 640 | 0.2460186015 | $360,640 | $360,640 | $88.72 | | |
| SD250BOND | SD #250 BOND 773 | 1.4560608159 | $360,640 | $360,640 | $525.11 | | |
| SD250GEN | SD #250 GENERAL 770 | 2.3880724087 | $360,640 | $360,640 | $861.23 | | |
| ST2 | STATE SCHOOL PART 2 600 | 0.8131451643 | $360,640 | $360,640 | $293.25 | | |
| STATESCHL | STATE SCHOOL 600 | 1.5158548041 | $360,640 | $360,640 | $546.68 | | |
| STREFUND | STATE REFUND LEVY 603 | 0.0000000000 | $360,640 | $360,640 | $0.00 | | |
| COROAD | COUNTY ROAD 115 | 1.6549953990 | $360,640 | $360,640 | $596.86 | | |
| CRPRD | COUNTY ROAD REFUND 115 | 0.0000000000 | $360,640 | $360,640 | $0.00 | | |
| | Total Tax Rate: | 10.7663011628 | | | | | |
| | | | | Taxes w/Current Exemptions: | $3,882.76 | | |
| | | | | Taxes w/o Exemptions: | $3,882.76 | | |
Improvement / Building
| Improvement #1: | RESIDENTIAL | State Code: | 11 | 1232.0 sqft | Value: | $256,040 |
| Exterior Wall: | SIDING | Heating/Cooling: | WARM & COOLED AIR | | Number of Bathrooms: | 2 | Number of Bedrooms: | 3 | | Plumbing: | 9 | Roof Covering: | COMP SHINGLE |
|
| | Type | Description | Class CD | Sub Class CD | Year Built | Area |
| | MA | Main Area | 1 | 30 | 1970 | 1232.0 |
| | SI1 | SITE IMPROVEMENT | 1 | 30 | 0 | 1.0 |
| | BASE | BASEMENT | 1 | 30 | 1970 | 320.0 |
| | ATG | Attached Garage | 1 | 30 | 1970 | 616.0 |
| | RPO | OPEN PORCH W/ROOF | 1 | 30 | 1970 | 28.0 |
| | S1F | Single One Story Fireplace | 1 | 30 | 1970 | 1.0 |
| | UTST | Utility Storage Shed | 1 | 30 | 1970 | 768.0 |
| | BPF | BASEMENT -PARTITIONED FINISH | 1 | 30 | 1970 | 320.0 |
Sketch
Property Image
Land
| 1 | RES 1 | Converted: Residential | 0.6900 | 30056.00 | 0.00 | 0.00 | 1.00 | $104,600 | $0 |
Roll Value History
| 2026 | N/A | N/A | N/A | N/A | N/A |
| 2025 | $256,040 | $104,600 | $0 | $360,640 | $360,640 |
| 2024 | $256,040 | $104,600 | $0 | $360,640 | $360,640 |
| 2023 | $256,040 | $104,600 | $0 | $360,640 | $360,640 |
| 2022 | $213,370 | $104,600 | $0 | $317,970 | $317,970 |
| 2021 | $199,990 | $64,200 | $0 | $264,190 | $264,190 |
| 2020 | $159,990 | $64,200 | $0 | $224,190 | $224,190 |
| 2019 | $159,990 | $64,200 | $0 | $224,190 | $224,190 |
| 2018 | $159,990 | $64,200 | $0 | $224,190 | $224,190 |
| 2017 | $139,130 | $64,200 | $0 | $203,330 | $203,330 |
| 2016 | $132,500 | $64,200 | $0 | $196,700 | $196,700 |
| 2015 | $54,600 | $64,200 | $0 | $118,800 | $118,800 |
| 2014 | $54,600 | $64,200 | $0 | $118,800 | $6,900 |
| 2013 | $54,600 | $64,200 | $0 | $118,800 | $6,900 |
| 2012 | $54,600 | $64,200 | $0 | $0 | $0 |
| 2011 | $54,600 | $64,200 | $0 | $0 | $0 |
| 2010 | $51,800 | $64,200 | $0 | $0 | $0 |
| 2009 | $86,300 | $42,600 | $0 | $0 | $0 |
| 2008 | $60,500 | $42,600 | $0 | $0 | $0 |
| 2007 | $60,500 | $42,600 | $0 | $0 | $0 |
Deed and Sales History
| 1 | 11/19/2015 | QCD | QUIT CLAIM DEED | SANDOVAL JESS M | GARRETT TRACI LEE | | | | 129221 | 2015-10036 |
| 2 | 11/19/2015 | SWD | STATUTORY WARRANTY DEED | ARNOLD NANCY ANN ESTATE OF | GARRETT TRACI LEE | | | $199,000.00 | 129220 | 2015-10035 |
| 3 | 06/09/2015 | DEATH CERT | DEATH CERTIFICATE | ARNOLD NANCY ANN ESTATE OF | ARNOLD NANCY ANN ESTATE OF | | | | 0 | |
| 4 | 10/01/1965 | WARRANTY D | WARRANTY DEED | | | 315 | 712 | $2,500.00 | 0 | 3150-471204 |
Payout Agreement
| No payout information available.. |