Property
Account |
| Property ID: | 29143 | Abbreviated Legal Description: | BLALOCK ORCHARDS W 114.88' LOT 4 BLK 27 |
| Parcel Number: | 350726522704 | Agent Code: | |
| Type: | Real | | |
| Tax Area: | 311 - 250-4 | Land Use Code | 11 |
| Open Space: | N | DFL | N |
| Historic Property: | N | Remodel Property: | N |
| Multi-Family Redevelopment: | N | | |
| Township: | 7 | Section: | 26 |
| Range: | 35 |
Location |
| Address: | 739 WALLULA AVE WA 99324 | Mapsco: | |
| Neighborhood: | A SFR Rural/City Infl | Map ID: | |
| Neighborhood CD: | 313012 |
Owner |
| Name: | CRABTREE BRIAN & VALERIE CHASE | Owner ID: | 71875 |
| Mailing Address: | 739 WALLULA AVE WALLA WALLA, WA 99362 | % Ownership: | 100.0000000000% |
| | | Exemptions: | |
Taxes and Assessment Details
Values
| (+) Improvement Homesite Value: | + | $421,220 | |
| (+) Improvement Non-Homesite Value: | + | $0 | |
| (+) Land Homesite Value: | + | $124,890 | |
| (+) Land Non-Homesite Value: | + | $0 | |
| (+) Curr Use (HS): | + | $0 | $0 |
| (+) Curr Use (NHS): | + | $0 | $0 |
| | | -------------------------- | |
| (=) Market Value: | = | $546,110 | |
| (–) Productivity Loss: | – | $0 | |
| | | -------------------------- | |
| (=) Subtotal: | = | $546,110 | |
| (+) Senior Appraised Value: | + | $0 | |
| (+) Non-Senior Appraised Value: | + | $546,110 | |
| | | -------------------------- | |
| (=) Total Appraised Value: | = | $546,110 | |
| (–) Senior Exemption Loss: | – | $0 | |
| (–) Exemption Loss: | – | $0 | |
| | | -------------------------- | |
| (=) Taxable Value: | = | $546,110 | |
Taxing Jurisdiction
| Owner: | CRABTREE BRIAN & VALERIE CHASE | | |
| % Ownership: | 100.0000000000% | | |
| Total Value: | $546,110 | | |
| Tax Area: | 311 - 250-4 |
| CERFD | CURRENT EXPENSE REFUND 010 | 0.0000000000 | $546,110 | $546,110 | $0.00 | | |
| CURREXP | CURRENT EXPENSE 010 | 1.0175366760 | $546,110 | $546,110 | $555.69 | | |
| HUMNSERV | HUMAN SERVICES 119 | 0.0250000000 | $546,110 | $546,110 | $13.65 | | |
| SLDREL | SOLDIERS RELIEF 121 | 0.0155990005 | $546,110 | $546,110 | $8.52 | | |
| EMERGSER | EMS 147 | 0.3792580840 | $546,110 | $546,110 | $207.12 | | |
| EMSRFD | EMS REFUND 147 | 0.0000000000 | $546,110 | $546,110 | $0.00 | | |
| FD4EXP | FD #4 EXPENSE 686 | 0.8836993059 | $546,110 | $546,110 | $482.60 | | |
| RLBRFD | RURAL LIBRARY REFUND 623 | 0.0000000000 | $546,110 | $546,110 | $0.00 | | |
| RURALLIB | RURAL LIBRARY 623 | 0.3710609029 | $546,110 | $546,110 | $202.64 | | |
| PORTRFD | PORT REFUND 640 | 0.0000000000 | $546,110 | $546,110 | $0.00 | | |
| PORTWWGEN | PORT OF WW 640 | 0.2460186015 | $546,110 | $546,110 | $134.35 | | |
| SD250BOND | SD #250 BOND 773 | 1.4560608159 | $546,110 | $546,110 | $795.17 | | |
| SD250GEN | SD #250 GENERAL 770 | 2.3880724087 | $546,110 | $546,110 | $1,304.15 | | |
| ST2 | STATE SCHOOL PART 2 600 | 0.8131451643 | $546,110 | $546,110 | $444.07 | | |
| STATESCHL | STATE SCHOOL 600 | 1.5158548041 | $546,110 | $546,110 | $827.82 | | |
| STREFUND | STATE REFUND LEVY 603 | 0.0000000000 | $546,110 | $546,110 | $0.00 | | |
| COROAD | COUNTY ROAD 115 | 1.6549953990 | $546,110 | $546,110 | $903.81 | | |
| CRPRD | COUNTY ROAD REFUND 115 | 0.0000000000 | $546,110 | $546,110 | $0.00 | | |
| | Total Tax Rate: | 10.7663011628 | | | | | |
| | | | | Taxes w/Current Exemptions: | $5,879.59 | | |
| | | | | Taxes w/o Exemptions: | $5,879.59 | | |
Improvement / Building
| Improvement #1: | RESIDENTIAL | State Code: | 11 | 2402.0 sqft | Value: | $421,220 |
| Exterior Wall: | SIDING | Heating/Cooling: | MINI-SPLIT HP SYSTEM | | Number of Bathrooms: | 2.5 | Number of Bedrooms: | 3 | | Plumbing: | 12 | Roof Covering: | COMP SHINGLE |
|
| | Type | Description | Class CD | Sub Class CD | Year Built | Area |
| | MA | Main Area | 4 | 35 | 1918 | 2402.0 |
| | SI1 | SITE IMPROVEMENT | 4 | 35 | 0 | 1.0 |
| | WDR | WOOD DECK W/ROOF | 4 | 35 | 0 | 248.0 |
| | BASE | BASEMENT | 4 | 35 | 1918 | 1442.0 |
| | OPS | OPEN PORCH W/STEPS | 4 | 35 | 1918 | 84.0 |
| | S1F | Single One Story Fireplace | 4 | 35 | 1918 | 1.0 |
| | UTST | Utility Storage Shed | 4 | 35 | 1918 | 400.0 |
| | LEAN TO | LEAN TO | 1 | 35 | 1918 | 160.0 |
| | UPFL | Upper Floor (included in main area) | 4 | 35 | 1918 | 960.0 |
Sketch
Property Image
Land
| 1 | RES 1 | Converted: Residential | 0.9400 | 40946.00 | 0.00 | 0.00 | 1.00 | $124,890 | $0 |
Roll Value History
| 2026 | N/A | N/A | N/A | N/A | N/A |
| 2025 | $422,730 | $124,890 | $0 | $547,620 | $547,620 |
| 2024 | $421,220 | $124,890 | $0 | $546,110 | $546,110 |
| 2023 | $421,220 | $124,890 | $0 | $546,110 | $546,110 |
| 2022 | $197,550 | $124,890 | $0 | $322,440 | $322,440 |
| 2021 | $283,840 | $73,400 | $0 | $357,240 | $357,240 |
| 2020 | $141,920 | $73,400 | $0 | $215,320 | $7,200 |
| 2019 | $141,920 | $73,400 | $0 | $215,320 | $7,200 |
| 2018 | $132,640 | $73,400 | $0 | $206,040 | $7,200 |
| 2017 | $126,320 | $73,400 | $0 | $199,720 | $7,200 |
| 2016 | $126,320 | $73,400 | $0 | $199,720 | $7,200 |
| 2015 | $125,860 | $73,400 | $0 | $199,260 | $7,200 |
| 2014 | $89,900 | $73,400 | $0 | $163,300 | $7,200 |
| 2013 | $89,900 | $73,400 | $0 | $163,300 | $7,200 |
| 2012 | $89,900 | $73,400 | $0 | $0 | $0 |
| 2011 | $89,900 | $73,400 | $0 | $0 | $0 |
| 2010 | $115,200 | $73,400 | $0 | $0 | $0 |
| 2009 | $164,600 | $44,900 | $0 | $0 | $0 |
| 2008 | $99,600 | $44,900 | $0 | $0 | $0 |
| 2007 | $99,600 | $44,900 | $0 | $0 | $0 |
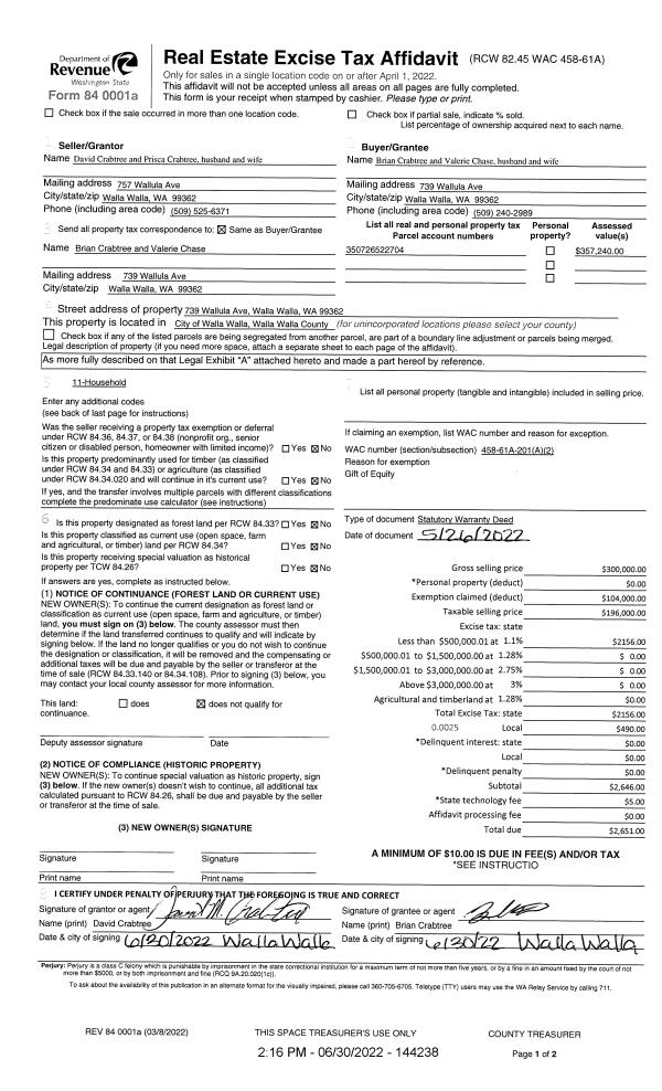
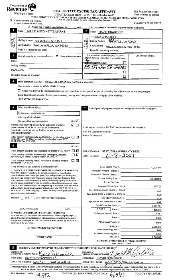
Deed and Sales History
| 1 | 06/30/2022 | SWD | STATUTORY WARRANTY DEED | CRABTREE DAVID M & PRISCA | CRABTREE BRIAN & VALERIE CHASE | | | $196,000.00 | 144238 | 2022-05557 |
| 2 | 06/15/2021 | SWD | STATUTORY WARRANTY DEED | MARKS MARIE A | CRABTREE DAVID M & PRISCA | | | $170,000.00 | 141812 | 2021-07322 |
| 3 | 06/11/1976 | QCD | QUIT CLAIM DEED | | | | | $0.00 | 0 | 4205-54776 |
Payout Agreement
| No payout information available.. |