Property
Account |
| Property ID: | 2914 | Abbreviated Legal Description: | SEC 30 TWN 7 RNG 34 LOT 2 OF SHORT PLAT 1998-14074 (AS OF 2002 TAX DIST SEG NO LONGER NEEDED BECAME DIST 318 W/ REST OF LOT 2)(PT. LOT 2 OF SHORT PLAT (PT TAX 6 SEC 29 & 30 & PT TAX 3 IN 31) (SEE 34-07-30-41-0006 FOR OTHER PT LOT 2) |
| Parcel Number: | 340730340003 | Agent Code: | |
| Type: | Real | | |
| Tax Area: | 318 - 300-6-TM | Land Use Code | 81 |
| Open Space: | N | DFL | N |
| Historic Property: | N | Remodel Property: | N |
| Multi-Family Redevelopment: | N | | |
| Township: | 7 | Section: | 30 |
| Range: | 34 |
Location |
| Address: | WA 99360 | Mapsco: | |
| Neighborhood: | 0 Farm | Map ID: | |
| Neighborhood CD: | 2220 |
Owner |
| Name: | HODNEFIELD JACOB | Owner ID: | 63440 |
| Mailing Address: | 21 REEDS ROAD TOUCHET, WA 99360 | % Ownership: | 100.0000000000% |
| | | Exemptions: | |
Taxes and Assessment Details
Values
| (+) Improvement Homesite Value: | + | $0 | |
| (+) Improvement Non-Homesite Value: | + | $0 | |
| (+) Land Homesite Value: | + | $0 | |
| (+) Land Non-Homesite Value: | + | $538,300 | |
| (+) Curr Use (HS): | + | $0 | $0 |
| (+) Curr Use (NHS): | + | $0 | $0 |
| | | -------------------------- | |
| (=) Market Value: | = | $538,300 | |
| (–) Productivity Loss: | – | $0 | |
| | | -------------------------- | |
| (=) Subtotal: | = | $538,300 | |
| (+) Senior Appraised Value: | + | $0 | |
| (+) Non-Senior Appraised Value: | + | $538,300 | |
| | | -------------------------- | |
| (=) Total Appraised Value: | = | $538,300 | |
| (–) Senior Exemption Loss: | – | $0 | |
| (–) Exemption Loss: | – | $0 | |
| | | -------------------------- | |
| (=) Taxable Value: | = | $538,300 | |
Taxing Jurisdiction
| Owner: | HODNEFIELD JACOB | | |
| % Ownership: | 100.0000000000% | | |
| Total Value: | $538,300 | | |
| Tax Area: | 318 - 300-6-TM |
| CERFD | CURRENT EXPENSE REFUND 010 | 0.0000000000 | $538,300 | $538,300 | $0.00 | | |
| CURREXP | CURRENT EXPENSE 010 | 0.9851088983 | $538,300 | $538,300 | $530.28 | | |
| HUMNSERV | HUMAN SERVICES 119 | 0.0250000000 | $538,300 | $538,300 | $13.46 | | |
| SLDREL | SOLDIERS RELIEF 121 | 0.0155990000 | $538,300 | $538,300 | $8.40 | | |
| EMERGSER | EMS 147 | 0.3676811629 | $538,300 | $538,300 | $197.92 | | |
| EMSRFD | EMS REFUND 147 | 0.0000000000 | $538,300 | $538,300 | $0.00 | | |
| FD6EXP | FD #6 EXPENSE 693 | 0.6637564225 | $538,300 | $538,300 | $357.30 | | |
| RLBRFD | RURAL LIBRARY REFUND 623 | 0.0000000000 | $538,300 | $538,300 | $0.00 | | |
| RURALLIB | RURAL LIBRARY 623 | 0.3601547782 | $538,300 | $538,300 | $193.87 | | |
| PORTRFD | PORT REFUND 640 | 0.0000000000 | $538,300 | $538,300 | $0.00 | | |
| PORTWWGEN | PORT OF WW 640 | 0.2344301070 | $538,300 | $538,300 | $126.19 | | |
| SD300BOND | SD #300 BOND 783 | 1.9432820025 | $538,300 | $538,300 | $1,046.07 | | |
| SD300GEN | SD #300 GENERAL 780 | 2.2641297109 | $538,300 | $538,300 | $1,218.78 | | |
| ST2 | STATE SCHOOL PART 2 600 | 0.8853714103 | $538,300 | $538,300 | $476.60 | | |
| STATESCHL | STATE SCHOOL 600 | 1.6424571473 | $538,300 | $538,300 | $884.13 | | |
| STREFUND | STATE REFUND LEVY 603 | 0.0000000000 | $538,300 | $538,300 | $0.00 | | |
| COROAD | COUNTY ROAD 115 | 1.6137667997 | $538,300 | $538,300 | $868.69 | | |
| CRPRD | COUNTY ROAD REFUND 115 | 0.0000000000 | $538,300 | $538,300 | $0.00 | | |
| | Total Tax Rate: | 11.0007374396 | | | | | |
| | | | | Taxes w/Current Exemptions: | $5,921.69 | | |
| | | | | Taxes w/o Exemptions: | $5,921.69 | | |
Improvement / Building
Sketch
| No sketches available for this property. |
Property Image
Land
| 1 | C4-I | Class 4 Irrigated | 38.0000 | 1655280.00 | 0.00 | 0.00 | 1.00 | $155,800 | $0 |
| 2 | WASTE | Waste | 19.6800 | 857260.80 | 0.00 | 0.00 | 1.00 | $0 | $0 |
| 3 | CC3-5 | Class 3 Circle Irrigation | 45.0000 | 1960200.00 | 0.00 | 0.00 | 1.00 | $382,500 | $0 |
Roll Value History
| 2026 | N/A | N/A | N/A | N/A | N/A |
| 2025 | $0 | $538,300 | $0 | $538,300 | $538,300 |
| 2024 | $0 | $503,700 | $0 | $503,700 | $503,700 |
| 2023 | $0 | $490,900 | $0 | $490,900 | $490,900 |
| 2022 | $0 | $444,200 | $0 | $444,200 | $444,200 |
| 2021 | $0 | $436,600 | $0 | $436,600 | $436,600 |
| 2020 | $0 | $398,900 | $0 | $398,900 | $398,900 |
| 2019 | $0 | $372,600 | $0 | $372,600 | $372,600 |
| 2018 | $0 | $296,800 | $0 | $296,800 | $296,800 |
| 2017 | $0 | $259,200 | $0 | $259,200 | $259,200 |
| 2016 | $0 | $187,360 | $0 | $187,360 | $187,360 |
| 2015 | $0 | $158,560 | $0 | $158,560 | $158,560 |
| 2014 | $0 | $158,560 | $0 | $158,560 | $158,560 |
| 2013 | $0 | $136,700 | $136,700 | $136,700 | $136,700 |
| 2012 | $0 | $117,200 | $0 | $0 | $0 |
| 2011 | $0 | $117,200 | $0 | $0 | $0 |
| 2010 | $0 | $117,200 | $0 | $0 | $0 |
| 2009 | $0 | $117,200 | $0 | $0 | $0 |
| 2008 | $0 | $84,700 | $0 | $0 | $0 |
| 2007 | $0 | $84,700 | $0 | $0 | $0 |
Deed and Sales History
| 1 | 06/20/2018 | SWD | STATUTORY WARRANTY DEED | HODNEFIELD CRAIG & TAMI K | HODNEFIELD JACOB | | 2-PARCELS | $480,000.00 | 134959 | 2018-04950 |
|   | |
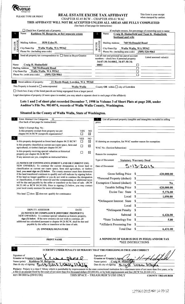
| 2 | 05/14/2015 | SWD | STATUTORY WARRANTY DEED | BERGEVIN RUSSELL F ESTATE OF | HODNEFIELD CRAIG & TAMI K | | 2-PARCELS | $420,000.00 | 127960 | 2015-04039 |
|   | |
| 3 | 12/07/1998 | SHORT PLAT | SHORT PLAT | BERGEVIN RUSSELL F ESTATE OF | | | | | 0 | 1998-14074 |
Payout Agreement
| No payout information available.. |