Property
Account |
| Property ID: | 29139 | Abbreviated Legal Description: | 25-7-35 TAX 30A |
| Parcel Number: | 350725120012 | Agent Code: | |
| Type: | Real | | |
| Tax Area: | 1 - OL-140-F | Land Use Code | 11 |
| Open Space: | N | DFL | N |
| Historic Property: | N | Remodel Property: | N |
| Multi-Family Redevelopment: | N | | |
| Township: | 7 | Section: | 25 |
| Range: | 35 |
Location |
| Address: | 505 HATCH ST WA 99362 | Mapsco: | |
| Neighborhood: | A SFR Rural/City Infl | Map ID: | |
| Neighborhood CD: | 313012 |
Owner |
| Name: | SAMS TED T & JANIFER L | Owner ID: | 9080 |
| Mailing Address: | 3536 BRADEN RD WALLA WALLA, WA 99362 | % Ownership: | 100.0000000000% |
| | | Exemptions: | |
Taxes and Assessment Details
Values
| (+) Improvement Homesite Value: | + | $227,210 | |
| (+) Improvement Non-Homesite Value: | + | $0 | |
| (+) Land Homesite Value: | + | $88,150 | |
| (+) Land Non-Homesite Value: | + | $0 | |
| (+) Curr Use (HS): | + | $0 | $0 |
| (+) Curr Use (NHS): | + | $0 | $0 |
| | | -------------------------- | |
| (=) Market Value: | = | $315,360 | |
| (–) Productivity Loss: | – | $0 | |
| | | -------------------------- | |
| (=) Subtotal: | = | $315,360 | |
| (+) Senior Appraised Value: | + | $0 | |
| (+) Non-Senior Appraised Value: | + | $315,360 | |
| | | -------------------------- | |
| (=) Total Appraised Value: | = | $315,360 | |
| (–) Senior Exemption Loss: | – | $0 | |
| (–) Exemption Loss: | – | $0 | |
| | | -------------------------- | |
| (=) Taxable Value: | = | $315,360 | |
Taxing Jurisdiction
| Owner: | SAMS TED T & JANIFER L | | |
| % Ownership: | 100.0000000000% | | |
| Total Value: | $315,360 | | |
| Tax Area: | 1 - OL-140-F |
| CERFD | CURRENT EXPENSE REFUND 010 | 0.0000000000 | $315,360 | $315,360 | $0.00 | | |
| CURREXP | CURRENT EXPENSE 010 | 1.0175366760 | $315,360 | $315,360 | $320.89 | | |
| HUMNSERV | HUMAN SERVICES 119 | 0.0250000000 | $315,360 | $315,360 | $7.88 | | |
| SLDREL | SOLDIERS RELIEF 121 | 0.0155990005 | $315,360 | $315,360 | $4.92 | | |
| EMERGSER | EMS 147 | 0.3792580840 | $315,360 | $315,360 | $119.60 | | |
| EMSRFD | EMS REFUND 147 | 0.0000000000 | $315,360 | $315,360 | $0.00 | | |
| PORTRFD | PORT REFUND 640 | 0.0000000000 | $315,360 | $315,360 | $0.00 | | |
| PORTWWGEN | PORT OF WW 640 | 0.2460186015 | $315,360 | $315,360 | $77.58 | | |
| SD140BOND | SD #140 BOND 764 | 0.8342371393 | $315,360 | $315,360 | $263.09 | | |
| SD140GEN | SD #140 GENERAL 760 | 2.0646500647 | $315,360 | $315,360 | $651.11 | | |
| ST2 | STATE SCHOOL PART 2 600 | 0.8131451643 | $315,360 | $315,360 | $256.43 | | |
| STATESCHL | STATE SCHOOL 600 | 1.5158548041 | $315,360 | $315,360 | $478.04 | | |
| STREFUND | STATE REFUND LEVY 603 | 0.0000000000 | $315,360 | $315,360 | $0.00 | | |
| CWWBOND | C OF WW BOND 643 | 0.2760494372 | $315,360 | $315,360 | $87.05 | | |
| CWWGEN | CITY OF WW 631 | 1.6100204973 | $315,360 | $315,360 | $507.74 | | |
| CWWRFD | CITY OF WALLA WALLA REFUND 631 | 0.0000000000 | $315,360 | $315,360 | $0.00 | | |
| | Total Tax Rate: | 8.7973694689 | | | | | |
| | | | | Taxes w/Current Exemptions: | $2,774.33 | | |
| | | | | Taxes w/o Exemptions: | $2,774.33 | | |
Improvement / Building
| Improvement #1: | RESIDENTIAL | State Code: | 11 | 1910.0 sqft | Value: | $227,210 |
| Exterior Wall: | SIDING | Heating/Cooling: | FORCED AIR | | Number of Bathrooms: | 1 | Number of Bedrooms: | 2 | | Plumbing: | 6 | Roof Covering: | COMP SHINGLE |
|
| | Type | Description | Class CD | Sub Class CD | Year Built | Area |
| | MA | Main Area | 4 | 30 | 1939 | 1910.0 |
| | SI1 | SITE IMPROVEMENT | 4 | 30 | 0 | 1.5 |
| | UPFL | Upper Floor (included in main area) | 4 | 30 | 1939 | 310.0 |
| | BASE | BASEMENT | 4 | 30 | 1939 | 480.0 |
| | BMF | BASEMENT - MIN FINISH | 4 | 30 | 1939 | 480.0 |
| | ATG | Attached Garage | 4 | 30 | 1939 | 480.0 |
| | CPC | COVERED CARPORT/PATIO | 4 | 30 | 1939 | 352.0 |
| | CPC | COVERED CARPORT/PATIO | 4 | 30 | 1939 | 380.0 |
| | CPCD | CARPORT/DIRT FLOOR | 4 | 30 | 1939 | 480.0 |
Sketch
Property Image
Land
| 1 | RES 1 | Converted: Residential | 0.4900 | 21344.00 | 0.00 | 0.00 | 1.00 | $88,150 | $0 |
Roll Value History
| 2026 | N/A | N/A | N/A | N/A | N/A |
| 2025 | $227,210 | $88,150 | $0 | $315,360 | $315,360 |
| 2024 | $227,210 | $88,150 | $0 | $315,360 | $315,360 |
| 2023 | $227,210 | $88,150 | $0 | $315,360 | $315,360 |
| 2022 | $227,210 | $88,150 | $0 | $315,360 | $315,360 |
| 2021 | $181,890 | $33,000 | $0 | $214,890 | $214,890 |
| 2020 | $129,920 | $33,000 | $0 | $162,920 | $162,920 |
| 2019 | $129,920 | $33,000 | $0 | $162,920 | $162,920 |
| 2018 | $121,420 | $33,000 | $0 | $154,420 | $154,420 |
| 2017 | $115,640 | $33,000 | $0 | $148,640 | $148,640 |
| 2016 | $115,640 | $33,000 | $0 | $148,640 | $148,640 |
| 2015 | $115,100 | $24,800 | $0 | $139,900 | $0 |
| 2014 | $115,100 | $24,800 | $0 | $139,900 | $0 |
| 2013 | $115,100 | $24,800 | $0 | $139,900 | $0 |
| 2012 | $115,100 | $24,800 | $0 | $0 | $0 |
| 2011 | $115,100 | $24,800 | $0 | $0 | $0 |
| 2010 | $121,600 | $33,000 | $0 | $0 | $0 |
| 2009 | $127,900 | $34,800 | $0 | $0 | $0 |
| 2008 | $77,400 | $34,800 | $0 | $0 | $0 |
| 2007 | $77,400 | $34,800 | $0 | $0 | $0 |
Deed and Sales History
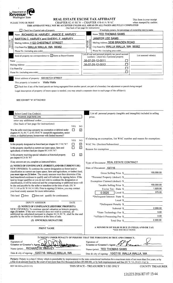
| 1 | 10/24/2019 | FUL | FULFILLMENT DEED | | SAMS TED T & JANIFER L | | | | 0 | 2019-08592 |
| 2 | 10/07/2016 | REAL ESTAT | REAL ESTATE CONTRACT | HARVEY RICHARD W | SAMS TED T & JANIFER L | | 2-PARCLES | $150,000.00 | 131223 | 2016-08304 |
|   | |
| 3 | 07/19/2016 | DEATH CERT | DEATH CERTIFICATE | HARVEY MILDRED L | HARVEY RICHARD W | | | $0.00 | 130657 | 2016-05643 |
| 4 | 03/17/2016 | DEED DEATH | DEED DEATH | HARVEY MILDRED L | | | | | 0 | 2016-01995 |
| 5 | 08/16/1983 | WARRANTY D | WARRANTY DEED | | | | | $0.00 | 0 | 4834-44 |
Payout Agreement
| No payout information available.. |