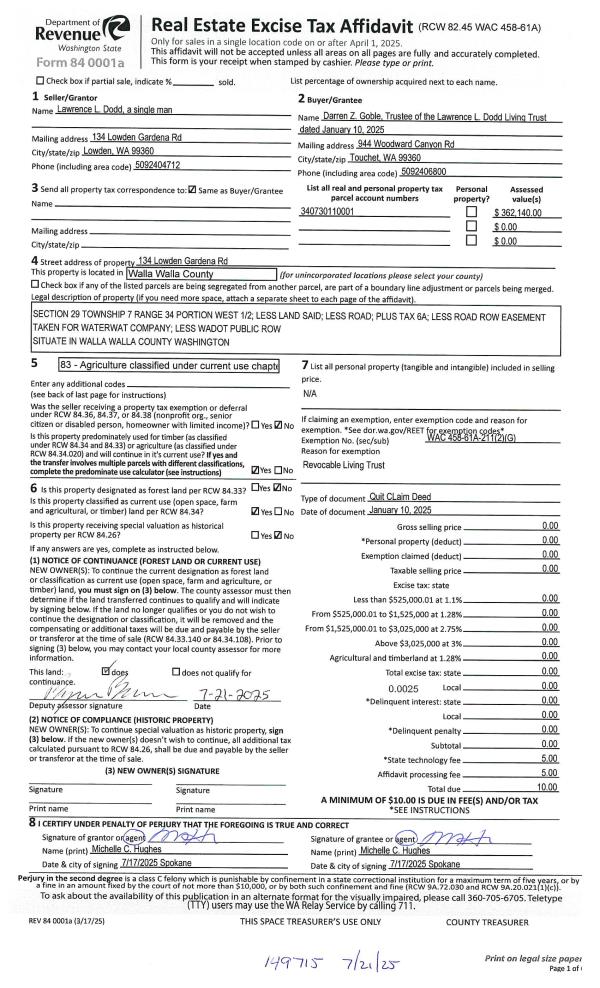
Property
Account |
| Property ID: | 2911 | Abbreviated Legal Description: | SEC 30 TWN 7 RNG 34 NE1/4 ;LESS TAX 2 & 3 & CO RD; NE1/4SE1/4 ;LESSLD SD HWY & R/W; LESS WADOT PUBLIC ROW |
| Parcel Number: | 340730110001 | Agent Code: | |
| Type: | Real | | |
| Tax Area: | 318 - 300-6-TM | Land Use Code | 83 |
| Open Space: | Y | DFL | N |
| Historic Property: | N | Remodel Property: | N |
| Multi-Family Redevelopment: | N | | |
| Township: | 7 | Section: | 30 |
| Range: | 34 |
Location |
| Address: | WA 99360 | Mapsco: | |
| Neighborhood: | 0 Farm | Map ID: | |
| Neighborhood CD: | 2220 |
Owner |
| Name: | DODD LAWRENCE L | Owner ID: | 1905 |
| Mailing Address: | 134 LOWDEN GARDENA RD TOUCHET, WA 99360 | % Ownership: | 100.0000000000% |
| | | Exemptions: | |
Taxes and Assessment Details
Values
| (+) Improvement Homesite Value: | + | $0 | |
| (+) Improvement Non-Homesite Value: | + | $0 | |
| (+) Land Homesite Value: | + | $0 | |
| (+) Land Non-Homesite Value: | + | $0 | |
| (+) Curr Use (HS): | + | $0 | $0 |
| (+) Curr Use (NHS): | + | $399,490 | $77,940 |
| | | -------------------------- | |
| (=) Market Value: | = | $399,490 | |
| (–) Productivity Loss: | – | $321,550 | |
| | | -------------------------- | |
| (=) Subtotal: | = | $77,940 | |
| (+) Senior Appraised Value: | + | $0 | |
| (+) Non-Senior Appraised Value: | + | $77,940 | |
| | | -------------------------- | |
| (=) Total Appraised Value: | = | $77,940 | |
| (–) Senior Exemption Loss: | – | $0 | |
| (–) Exemption Loss: | – | $0 | |
| | | -------------------------- | |
| (=) Taxable Value: | = | $77,940 | |
Taxing Jurisdiction
| Owner: | DODD LAWRENCE L | | |
| % Ownership: | 100.0000000000% | | |
| Total Value: | $399,490 | | |
| Tax Area: | 318 - 300-6-TM |
| CERFD | CURRENT EXPENSE REFUND 010 | 0.0000000000 | $77,940 | $77,940 | $0.00 | | |
| CURREXP | CURRENT EXPENSE 010 | 0.9851088983 | $77,940 | $77,940 | $76.78 | | |
| HUMNSERV | HUMAN SERVICES 119 | 0.0250000000 | $77,940 | $77,940 | $1.95 | | |
| SLDREL | SOLDIERS RELIEF 121 | 0.0155990000 | $77,940 | $77,940 | $1.22 | | |
| EMERGSER | EMS 147 | 0.3676811629 | $77,940 | $77,940 | $28.66 | | |
| EMSRFD | EMS REFUND 147 | 0.0000000000 | $77,940 | $77,940 | $0.00 | | |
| FD6EXP | FD #6 EXPENSE 693 | 0.6637564225 | $77,940 | $77,940 | $51.73 | | |
| RLBRFD | RURAL LIBRARY REFUND 623 | 0.0000000000 | $77,940 | $77,940 | $0.00 | | |
| RURALLIB | RURAL LIBRARY 623 | 0.3601547782 | $77,940 | $77,940 | $28.07 | | |
| PORTRFD | PORT REFUND 640 | 0.0000000000 | $77,940 | $77,940 | $0.00 | | |
| PORTWWGEN | PORT OF WW 640 | 0.2344301070 | $77,940 | $77,940 | $18.27 | | |
| SD300BOND | SD #300 BOND 783 | 1.9432820025 | $77,940 | $77,940 | $151.46 | | |
| SD300GEN | SD #300 GENERAL 780 | 2.2641297109 | $77,940 | $77,940 | $176.47 | | |
| ST2 | STATE SCHOOL PART 2 600 | 0.8853714103 | $77,940 | $77,940 | $69.01 | | |
| STATESCHL | STATE SCHOOL 600 | 1.6424571473 | $77,940 | $77,940 | $128.01 | | |
| STREFUND | STATE REFUND LEVY 603 | 0.0000000000 | $77,940 | $77,940 | $0.00 | | |
| COROAD | COUNTY ROAD 115 | 1.6137667997 | $77,940 | $77,940 | $125.78 | | |
| CRPRD | COUNTY ROAD REFUND 115 | 0.0000000000 | $77,940 | $77,940 | $0.00 | | |
| | Total Tax Rate: | 11.0007374396 | | | | | |
| | | | | Taxes w/Current Exemptions: | $857.41 | | |
| | | | | Taxes w/o Exemptions: | $857.41 | | |
Improvement / Building
Sketch
| No sketches available for this property. |
Property Image
Land
| 1 | WASTE | Waste | 30.1000 | 1311156.00 | 0.00 | 0.00 | 1.00 | $0 | $0 |
| 2 | CC3-2 | Class 3 Circle Irrigation | 45.6000 | 1986336.00 | 0.00 | 0.00 | 1.00 | $387,600 | $75,420 |
| 3 | C4-I | Class 4 Irrigated | 2.9000 | 0.00 | 0.00 | 0.00 | 1.00 | $11,890 | $2,520 |
Roll Value History
| 2026 | N/A | N/A | N/A | N/A | N/A |
| 2025 | $0 | $399,490 | $77,940 | $77,940 | $77,940 |
| 2024 | $0 | $371,550 | $76,170 | $76,170 | $76,170 |
| 2023 | $0 | $362,140 | $75,700 | $75,700 | $75,700 |
| 2022 | $0 | $329,060 | $72,830 | $72,830 | $72,830 |
| 2021 | $0 | $328,480 | $72,870 | $72,870 | $72,870 |
| 2020 | $0 | $304,520 | $71,340 | $71,340 | $71,340 |
| 2019 | $0 | $281,430 | $68,590 | $68,590 | $68,590 |
| 2018 | $0 | $225,780 | $71,500 | $71,500 | $71,500 |
| 2017 | $0 | $225,780 | $71,030 | $71,030 | $71,030 |
| 2016 | $0 | $151,380 | $71,040 | $71,040 | $71,040 |
| 2015 | $0 | $125,420 | $64,640 | $64,640 | $64,640 |
| 2014 | $0 | $125,420 | $64,640 | $64,640 | $64,640 |
| 2013 | $0 | $110,300 | $39,500 | $39,500 | $39,500 |
| 2012 | $0 | $31,400 | $0 | $0 | $0 |
| 2011 | $0 | $30,200 | $0 | $0 | $0 |
| 2010 | $0 | $31,100 | $0 | $0 | $0 |
| 2009 | $0 | $32,000 | $0 | $0 | $0 |
| 2008 | $0 | $40,300 | $0 | $0 | $0 |
| 2007 | $0 | $40,300 | $0 | $0 | $0 |
Deed and Sales History
| 1 | 04/04/2019 | WARRANTY D | WARRANTY DEED | DODD LAWRENCE L | WASH DEPT OF TRANSPORTATION | | | $333,122.00 | 136617 | 2019-02112 |
|   | |
Payout Agreement
| No payout information available.. |