Property
Account |
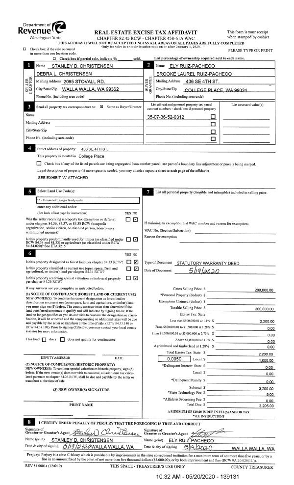
| Property ID: | 29079 | Abbreviated Legal Description: | BUCK'S SUBDIV OF BLK 2 CP #2 LT 12 BLK 3 |
| Parcel Number: | 350736520312 | Agent Code: | |
| Type: | Real | | |
| Tax Area: | 75 - CP 250 | Land Use Code | 11 |
| Open Space: | N | DFL | N |
| Historic Property: | N | Remodel Property: | N |
| Multi-Family Redevelopment: | N | | |
| Township: | 7 | Section: | 36 |
| Range: | 35 |
Location |
| Address: | 436 SE 4TH ST WA 99324 | Mapsco: | |
| Neighborhood: | A SFR | Map ID: | |
| Neighborhood CD: | 113011 |
Owner |
| Name: | RUIZ-PACHECO ELY & BROOKE LAUREL | Owner ID: | 67174 |
| Mailing Address: | 436 SE 4TH ST COLLEGE PLACE, WA 99324 | % Ownership: | 100.0000000000% |
| | | Exemptions: | |
Taxes and Assessment Details
Property Tax Information as of
02/21/2026
Click on "Statement Details" to expand or collapse a tax statement.
* Please enter a valid date ** Please enter a valid date *
Statement Details |
| | TOTAL: | $0.00 | $0.00 | $0.00 | $0.00 | $0.00 | $0.00 |
|
| | $0.00 | $0.00 | $0.00 | $0.00 | $0.00 | $0.00 |
Values
| (+) Improvement Homesite Value: | + | $0 | |
| (+) Improvement Non-Homesite Value: | + | $140,700 | |
| (+) Land Homesite Value: | + | $0 | |
| (+) Land Non-Homesite Value: | + | $61,030 | |
| (+) Curr Use (HS): | + | $0 | $0 |
| (+) Curr Use (NHS): | + | $0 | $0 |
| | | -------------------------- | |
| (=) Market Value: | = | $201,730 | |
| (–) Productivity Loss: | – | $0 | |
| | | -------------------------- | |
| (=) Subtotal: | = | $201,730 | |
| (+) Senior Appraised Value: | + | $0 | |
| (+) Non-Senior Appraised Value: | + | $201,730 | |
| | | -------------------------- | |
| (=) Total Appraised Value: | = | $201,730 | |
| (–) Senior Exemption Loss: | – | $0 | |
| (–) Exemption Loss: | – | $0 | |
| | | -------------------------- | |
| (=) Taxable Value: | = | $201,730 | |
Taxing Jurisdiction
| Owner: | RUIZ-PACHECO ELY & BROOKE LAUREL | | |
| % Ownership: | 100.0000000000% | | |
| Total Value: | $201,730 | | |
| Tax Area: | 75 - CP 250 |
| CERFD | CURRENT EXPENSE REFUND 010 | 0.0000000000 | $201,730 | $201,730 | $0.00 | | |
| CURREXP | CURRENT EXPENSE 010 | 1.0175366760 | $201,730 | $201,730 | $205.27 | | |
| HUMNSERV | HUMAN SERVICES 119 | 0.0250000000 | $201,730 | $201,730 | $5.04 | | |
| SLDREL | SOLDIERS RELIEF 121 | 0.0155990005 | $201,730 | $201,730 | $3.15 | | |
| COLLPLBOND | C OF CP BOND 644 | 0.4374241808 | $201,730 | $201,730 | $88.24 | | |
| COLLPLGEN | CITY OF CP 632 | 1.4453819216 | $201,730 | $201,730 | $291.58 | | |
| EMERGSER | EMS 147 | 0.3792580840 | $201,730 | $201,730 | $76.51 | | |
| EMSRFD | EMS REFUND 147 | 0.0000000000 | $201,730 | $201,730 | $0.00 | | |
| RURALLIB | RURAL LIBRARY 623 | 0.3710609029 | $201,730 | $201,730 | $74.85 | | |
| PORTRFD | PORT REFUND 640 | 0.0000000000 | $201,730 | $201,730 | $0.00 | | |
| PORTWWGEN | PORT OF WW 640 | 0.2460186015 | $201,730 | $201,730 | $49.63 | | |
| SD250BOND | SD #250 BOND 773 | 1.4560608159 | $201,730 | $201,730 | $293.73 | | |
| SD250GEN | SD #250 GENERAL 770 | 2.3880724087 | $201,730 | $201,730 | $481.75 | | |
| ST2 | STATE SCHOOL PART 2 600 | 0.8131451643 | $201,730 | $201,730 | $164.04 | | |
| STATESCHL | STATE SCHOOL 600 | 1.5158548041 | $201,730 | $201,730 | $305.79 | | |
| STREFUND | STATE REFUND LEVY 603 | 0.0000000000 | $201,730 | $201,730 | $0.00 | | |
| | Total Tax Rate: | 10.1104125603 | | | | | |
| | | | | Taxes w/Current Exemptions: | $2,039.58 | | |
| | | | | Taxes w/o Exemptions: | $2,039.58 | | |
Improvement / Building
| Improvement #1: | RESIDENTIAL | State Code: | 11 | 803.0 sqft | Value: | $140,700 |
| Exterior Wall: | METAL/STEEL | Heating/Cooling: | MINI-SPLIT HP SYSTEM | | Number of Bathrooms: | 1 | Number of Bedrooms: | 2 | | Plumbing: | 6 | Roof Covering: | COMP SHINGLE |
|
| | Type | Description | Class CD | Sub Class CD | Year Built | Area |
| | MA | Main Area | 1 | 20 | 1948 | 803.0 |
| | SI1 | SITE IMPROVEMENT | 1 | 20 | 1948 | 1.0 |
| | WDR | WOOD DECK W/ROOF | 1 | 20 | 1948 | 182.0 |
| | WOD | Wood Deck | 1 | 20 | 1948 | 78.0 |
| | RPS | PORCH W/STEPS,ROOF | 1 | 20 | 1948 | 48.0 |
| | DTG | Detached Garage | 1 | 20 | 1948 | 480.0 |
Sketch
Property Image
Land
| 1 | RES 1 | Converted: Residential | 0.2182 | 9506.00 | 0.00 | 0.00 | 1.00 | $61,030 | $0 |
Roll Value History
| 2026 | N/A | N/A | N/A | N/A | N/A |
| 2025 | $112,560 | $90,590 | $0 | $203,150 | $203,150 |
| 2024 | $140,700 | $61,030 | $0 | $201,730 | $201,730 |
| 2023 | $140,700 | $61,030 | $0 | $201,730 | $201,730 |
| 2022 | $140,700 | $61,030 | $0 | $201,730 | $201,730 |
| 2021 | $127,910 | $61,030 | $0 | $188,940 | $188,940 |
| 2020 | $127,910 | $61,030 | $0 | $188,940 | $188,940 |
| 2019 | $19,950 | $46,700 | $0 | $66,650 | $66,650 |
| 2018 | $19,950 | $46,700 | $0 | $66,650 | $0 |
| 2017 | $19,000 | $46,700 | $0 | $65,700 | $0 |
| 2016 | $19,000 | $46,700 | $0 | $65,700 | $0 |
| 2015 | $19,000 | $46,700 | $0 | $65,700 | $0 |
| 2014 | $19,000 | $46,700 | $0 | $65,700 | $0 |
| 2013 | $19,000 | $46,700 | $0 | $65,700 | $0 |
| 2012 | $30,600 | $46,700 | $0 | $0 | $0 |
| 2011 | $30,600 | $46,700 | $0 | $0 | $0 |
| 2010 | $30,600 | $46,700 | $0 | $0 | $0 |
| 2009 | $39,200 | $46,700 | $0 | $0 | $0 |
| 2008 | $29,500 | $24,300 | $0 | $0 | $0 |
| 2007 | $29,500 | $24,300 | $0 | $0 | $0 |
Deed and Sales History
| 1 | 05/20/2020 | SWD | STATUTORY WARRANTY DEED | CHRISTENSEN STANLEY D & DEBRA L | RUIZ-PACHECO ELY & BROOKE LAUREL | | | $200,000.00 | 139131 | 2020-04395 |
| 2 | 07/17/2019 | SWD | STATUTORY WARRANTY DEED | JOHNSON DONALD R LIFE ESTATE | CHRISTENSEN STANLEY D & DEBRA L | | | $58,000.00 | 137302 | 2019-05198 |
| 3 | | DEATH CERT | DEATH CERTIFICATE | JOHNSON DONALD ROBERT | | | | | 0 | SEE IMAGES |
| 4 | 08/23/2002 | WARRANTY D | WARRANTY DEED | BROCKMAN, VIRGINIA | THREE ANGELS BROADCASTING | | | $0.00 | 100169 | 2002-09448 |
| 5 | 07/13/1988 | WARRANTY D | WARRANTY DEED | | | | | $32,253.00 | 0 | 1718-804519 |
Payout Agreement
| No payout information available.. |